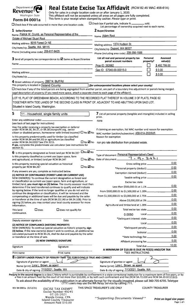
Property
Account |
| Property ID: | 370985 | Abbreviated Legal Description: | SARATOGA LOT 51 BLK B |
| Geographic ID: | S8085-00-0B051-0 | Agent Code: | |
| Type: | Real | | |
| Tax Area: | 730 - APPRAISER-S Whid Schl Dist, Special District, improved & less than 1 acre | Land Use Code | 11 |
| Open Space: | N | DFL | N |
| Historic Property: | N | Remodel Property: | N |
| Multi-Family Redevelopment: | N | | |
| Township: | | Section: | |
| Range: | |
Location |
| Address: | 3759 SARATOGA RD LANGLEY, WA 98260 | Mapsco: | |
| Neighborhood: | Cycle 4 | Map ID: | 880 |
| Neighborhood CD: | 4 |
Owner |
| Name: | SCHRADER, JAMES A | Owner ID: | 297738 |
| Mailing Address: | LISA SCHRADER 14268 214TH WAY NE WOODINVILLE, WA 98077 | % Ownership: | 100.0000000000% |
| | | Exemptions: | |
Taxes and Assessment Details
Values
| (+) Improvement Homesite Value: | + | $0 | |
| (+) Improvement Non-Homesite Value: | + | $585,917 | |
| (+) Land Homesite Value: | + | $0 | |
| (+) Land Non-Homesite Value: | + | $370,000 | |
| (+) Curr Use (HS): | + | $0 | $0 |
| (+) Curr Use (NHS): | + | $0 | $0 |
| | | -------------------------- | |
| (=) Market Value: | = | $955,917 | |
| (–) Productivity Loss: | – | $0 | |
| | | -------------------------- | |
| (=) Subtotal: | = | $955,917 | |
| (+) Senior Appraised Value: | + | $0 | |
| (+) Non-Senior Appraised Value: | + | $955,917 | |
| | | -------------------------- | |
| (=) Total Appraised Value: | = | $955,917 | |
| (–) Senior Exemption Loss: | – | $0 | |
| (–) Exemption Loss: | – | $0 | |
| | | -------------------------- | |
| (=) Taxable Value: | = | $955,917 | |
Taxing Jurisdiction
| Owner: | SCHRADER, JAMES A | | |
| % Ownership: | 100.0000000000% | | |
| Total Value: | $955,917 | | |
| Tax Area: | 730 - APPRAISER-S Whid Schl Dist, Special District, improved & less than 1 acre |
| CF | Conservation Futures | 0.0316035091 | $955,917 | $955,917 | $30.21 | | |
| FIRE3 | Fire & Rescue Dist #3 S Whidbey GEN | 1.2004855531 | $955,917 | $955,917 | $1,147.56 | | |
| HOBOND | Hospital BOND | 0.1910887512 | $955,917 | $955,917 | $182.66 | | |
| HOGEN | Hospital GEN | 0.3902502903 | $955,917 | $955,917 | $373.05 | | |
| CE | County Current Expense | 0.3708482477 | $955,917 | $955,917 | $354.50 | | |
| CR | County Roads | 0.4584763726 | $955,917 | $955,917 | $438.27 | | |
| ISLANDEMS | Hospital GEN (EMS) | 0.5000000000 | $955,917 | $955,917 | $477.96 | | |
| LIB | Library Sno-Isle GEN | 0.3153421757 | $955,917 | $955,917 | $301.44 | | |
| PORTWHID | Port of S Whidbey GEN | 0.1094540357 | $955,917 | $955,917 | $104.63 | | |
| SCH206BOND | School 206 BOND | 0.3161759235 | $955,917 | $955,917 | $302.24 | | |
| SCH206MO | School 206 Enrichment | 0.4547169547 | $955,917 | $955,917 | $434.67 | | |
| ST | State School | 1.3035497053 | $955,917 | $955,917 | $1,246.09 | | |
| ST2 | State School Part 2 | 0.8169543533 | $955,917 | $955,917 | $780.94 | | |
| SWHIDPRBD | P & R S Whidbey BOND | 0.0152817568 | $955,917 | $955,917 | $14.61 | | |
| SWHIDPRBD2 | P & R S Whidbey BOND2 | 0.0138911264 | $955,917 | $955,917 | $13.28 | | |
| SWHIDPRMT | P & R S Whidbey GEN | 0.2053334452 | $955,917 | $955,917 | $196.28 | | |
| | Total Tax Rate: | 6.6934522006 | | | | | |
| | | | | Taxes w/Current Exemptions: | $6,398.39 | | |
| | | | | Taxes w/o Exemptions: | $6,398.39 | | |
Improvement / Building
| Improvement #1: | RESIDENTIAL | State Code: | Y | 2959.2 sqft | Value: | $585,917 |
| Bathrooms: | 2 | Bedrooms: | 3 | | Ceiling: | DRYWALL PAINTED | Cooling: | HEAT PUMP/CONV/V | | Exterior Wall/Cover: | SHINGLE | Floor Covering: | CERAMIC TILE/HWD 40/60 | | Floor Structure: | WOOD W/SUBFLOOR | Foundation: | CONCRETE | | Interior Finish: | DRYWALL PAINT | Plumbing Fixture Cnt: | 12 | | Roof Slope: | 6" IN 12" | Roof Structure/Cover: | CJ ASPHALT |
|
| | Type | Description | Class CD | Sub Class CD | Year Built | Area |
| | BAS | BASE/MAIN FLOOR | 4 | 0 | 2020 | 1336.2 |
| | UPS | UPPER STORY | 4 | 0 | 2020 | 692.0 |
| | AGR | ATTACHED GARAGE | 4 | 0 | 2020 | 372.0 |
| | OWP | OPEN WOOD PORCH W/STEPS | 4 | 0 | 2020 | 264.0 |
| | OWR | OPEN WOOD PORCH W/STEPS/ROOF | 4 | 0 | 2020 | 52.5 |
| | UB8 | BASEMENT UNFINISHED 8" | 4 | 0 | 2020 | 195.0 |
| | DWN | DOWNSTAIRS LIVING AREA | 4 | 0 | 2020 | 931.0 |
Sketch
Property Image
Land
| 1 | 12 | SQ (00000-06000) | 0.0000 | 0.00 | 0.00 | 0.00 | 1.00 | $370,000 | $0 |
Roll Value History
| 2026 | N/A | N/A | N/A | N/A | N/A |
| 2025 | $585,917 | $370,000 | $0 | $955,917 | $955,917 |
| 2024 | $590,604 | $370,000 | $0 | $960,604 | $960,604 |
| 2023 | $595,292 | $380,000 | $0 | $975,292 | $975,292 |
| 2022 | $544,696 | $280,000 | $0 | $824,696 | $824,696 |
| 2021 | $482,262 | $220,000 | $0 | $702,262 | $702,262 |
| 2020 | $150,937 | $60,000 | $0 | $210,937 | $210,937 |
| 2019 | $0 | $35,000 | $0 | $35,000 | $35,000 |
| 2018 | $0 | $35,000 | $0 | $35,000 | $35,000 |
| 2017 | $0 | $35,000 | $0 | $35,000 | $35,000 |
| 2016 | $0 | $35,000 | $0 | $35,000 | $35,000 |
| 2015 | $0 | $55,000 | $0 | $55,000 | $55,000 |
| 2014 | $0 | $55,000 | $0 | $55,000 | $55,000 |
| 2013 | $0 | $55,000 | $0 | $55,000 | $55,000 |
| 2012 | $0 | $50,000 | $0 | $50,000 | $50,000 |
| 2011 | $0 | $50,000 | $0 | $50,000 | $50,000 |
| 2010 | $0 | $50,000 | $0 | $50,000 | $50,000 |
| 2009 | $0 | $50,000 | $0 | $50,000 | $50,000 |
| 2008 | $0 | $54,000 | $0 | $54,000 | $54,000 |
| 2007 | $0 | $54,000 | $0 | $54,000 | $54,000 |
Deed and Sales History
| 1 | 01/07/2021 | WD | Warranty Deed | SANKEY, PETER | SCHRADER, JAMES A | | | $725,000.00 | 46568 | 4508127 |
| 2 | 08/23/2019 | WD | Warranty Deed | SANKEY, TERRY W | SANKEY, PETER | | | $32,900.00 | 39988 | 4470046 |
| 3 | 06/08/2006 | WD | Warranty Deed | URBANO, ALICE S | SANKEY, TERRY W | | | $50,000.00 | 62601 | 4173210 |
| 4 | 08/01/1995 | WD | Warranty Deed | MOATS, MARY L | URBANO, ALICE S | | | $19,600.00 | 53042 | 95014079 |
| 5 | 01/01/1900 | OTHER | Other - Misc. Documents | Unknown | MOATS, MARY L | | | $0.00 | 0 | 0 |
Payout Agreement
| No payout information available.. |