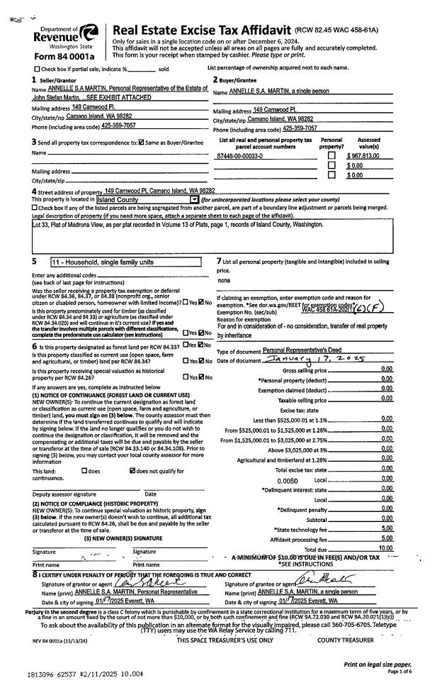
Property
Account |
| Property ID: | 371074 | Abbreviated Legal Description: | SARATOGA PT LOT 4 BLK B: BG CM NLN BLK B & CO RD N32*E106.25' S38*E118.08' S12*E11.06' TPB S12*E45' S48*W139.75' N28*W59' N40*W147.06'TPB |
| Geographic ID: | S8085-00-0B404-0 | Agent Code: | |
| Type: | Real | | |
| Tax Area: | 730 - APPRAISER-S Whid Schl Dist, Special District, improved & less than 1 acre | Land Use Code | 11 |
| Open Space: | N | DFL | N |
| Historic Property: | N | Remodel Property: | N |
| Multi-Family Redevelopment: | N | | |
| Township: | | Section: | |
| Range: | |
Location |
| Address: | 3707 BELLS LN LANGLEY, WA 98260 | Mapsco: | |
| Neighborhood: | Cycle 4 | Map ID: | 880 |
| Neighborhood CD: | 4 |
Owner |
| Name: | BISHOP, CHERYL | Owner ID: | 309735 |
| Mailing Address: | JANE MARIE DORE 3707 BELLS LN LANGLEY, WA 98260 | % Ownership: | 100.0000000000% |
| | | Exemptions: | |
Taxes and Assessment Details
Values
| (+) Improvement Homesite Value: | + | $0 | |
| (+) Improvement Non-Homesite Value: | + | $227,832 | |
| (+) Land Homesite Value: | + | $0 | |
| (+) Land Non-Homesite Value: | + | $700,000 | |
| (+) Curr Use (HS): | + | $0 | $0 |
| (+) Curr Use (NHS): | + | $0 | $0 |
| | | -------------------------- | |
| (=) Market Value: | = | $927,832 | |
| (–) Productivity Loss: | – | $0 | |
| | | -------------------------- | |
| (=) Subtotal: | = | $927,832 | |
| (+) Senior Appraised Value: | + | $0 | |
| (+) Non-Senior Appraised Value: | + | $927,832 | |
| | | -------------------------- | |
| (=) Total Appraised Value: | = | $927,832 | |
| (–) Senior Exemption Loss: | – | $0 | |
| (–) Exemption Loss: | – | $0 | |
| | | -------------------------- | |
| (=) Taxable Value: | = | $927,832 | |
Taxing Jurisdiction
| Owner: | BISHOP, CHERYL | | |
| % Ownership: | 100.0000000000% | | |
| Total Value: | $927,832 | | |
| Tax Area: | 730 - APPRAISER-S Whid Schl Dist, Special District, improved & less than 1 acre |
| CF | Conservation Futures | 0.0316035091 | $927,832 | $927,832 | $29.32 | | |
| FIRE3 | Fire & Rescue Dist #3 S Whidbey GEN | 1.2004855531 | $927,832 | $927,832 | $1,113.85 | | |
| HOBOND | Hospital BOND | 0.1910887512 | $927,832 | $927,832 | $177.30 | | |
| HOGEN | Hospital GEN | 0.3902502903 | $927,832 | $927,832 | $362.09 | | |
| CE | County Current Expense | 0.3708482477 | $927,832 | $927,832 | $344.08 | | |
| CR | County Roads | 0.4584763726 | $927,832 | $927,832 | $425.39 | | |
| ISLANDEMS | Hospital GEN (EMS) | 0.5000000000 | $927,832 | $927,832 | $463.92 | | |
| LIB | Library Sno-Isle GEN | 0.3153421757 | $927,832 | $927,832 | $292.58 | | |
| PORTWHID | Port of S Whidbey GEN | 0.1094540357 | $927,832 | $927,832 | $101.55 | | |
| SCH206BOND | School 206 BOND | 0.3161759235 | $927,832 | $927,832 | $293.36 | | |
| SCH206MO | School 206 Enrichment | 0.4547169547 | $927,832 | $927,832 | $421.90 | | |
| ST | State School | 1.3035497053 | $927,832 | $927,832 | $1,209.48 | | |
| ST2 | State School Part 2 | 0.8169543533 | $927,832 | $927,832 | $758.00 | | |
| SWHIDPRBD | P & R S Whidbey BOND | 0.0152817568 | $927,832 | $927,832 | $14.18 | | |
| SWHIDPRBD2 | P & R S Whidbey BOND2 | 0.0138911264 | $927,832 | $927,832 | $12.89 | | |
| SWHIDPRMT | P & R S Whidbey GEN | 0.2053334452 | $927,832 | $927,832 | $190.51 | | |
| | Total Tax Rate: | 6.6934522006 | | | | | |
| | | | | Taxes w/Current Exemptions: | $6,210.40 | | |
| | | | | Taxes w/o Exemptions: | $6,210.40 | | |
Improvement / Building
| Improvement #1: | RESIDENTIAL | State Code: | Y | 1150.0 sqft | Value: | $227,832 |
| Bathrooms: | 2 | Bedrooms: | 3 | | Ceiling: | DRYWALL PAINTED | Exterior Wall/Cover: | WOOD SIDING | | Floor Covering: | CERAMIC TILE/CPT 40-60 | Floor Structure: | WOOD W/SUBFLOOR | | Foundation: | CONCRETE | Heating: | WALL HEAT ELECTRIC | | Interior Finish: | DRYWALL PAINT | Plumbing Fixture Cnt: | 9 | | Roof Slope: | FLAT | Roof Structure/Cover: | CJ BUILT-UP ROCK |
|
| | Type | Description | Class CD | Sub Class CD | Year Built | Area |
| | BAS | BASE/MAIN FLOOR | 3 | 0 | 1958 | 1150.0 |
| | AGR | ATTACHED GARAGE | 3 | 0 | 1958 | 308.0 |
| | OWP | OPEN WOOD PORCH W/STEPS | 3 | 0 | 1958 | 331.6 |
| | UTY | STORAGE/UTILITY | 3 | 0 | 1958 | 144.0 |
Sketch
Property Image
Land
| 1 | LB | LOW BANK | 0.0000 | 0.00 | 45.00 | 0.00 | 1.00 | $700,000 | $0 |
Roll Value History
| 2026 | N/A | N/A | N/A | N/A | N/A |
| 2025 | $227,832 | $700,000 | $0 | $927,832 | $927,832 |
| 2024 | $230,860 | $700,000 | $0 | $930,860 | $930,860 |
| 2023 | $187,408 | $700,000 | $0 | $887,408 | $887,408 |
| 2022 | $172,221 | $700,000 | $0 | $872,221 | $872,221 |
| 2021 | $151,954 | $450,000 | $0 | $601,954 | $601,954 |
| 2020 | $135,494 | $450,000 | $0 | $585,494 | $585,494 |
| 2019 | $95,442 | $400,000 | $0 | $495,442 | $495,442 |
| 2018 | $95,806 | $400,000 | $0 | $495,806 | $495,806 |
| 2017 | $96,541 | $375,000 | $0 | $471,541 | $471,541 |
| 2016 | $98,003 | $375,000 | $0 | $473,003 | $473,003 |
| 2015 | $99,466 | $350,000 | $0 | $449,466 | $449,466 |
| 2014 | $89,024 | $350,000 | $0 | $439,024 | $439,024 |
| 2013 | $90,474 | $327,324 | $0 | $417,798 | $417,798 |
| 2012 | $91,927 | $327,324 | $0 | $419,251 | $419,251 |
| 2011 | $93,379 | $327,324 | $0 | $420,703 | $420,703 |
| 2010 | $104,826 | $327,324 | $0 | $432,150 | $432,150 |
| 2009 | $108,020 | $385,349 | $0 | $493,369 | $493,369 |
| 2008 | $107,735 | $361,544 | $0 | $469,279 | $469,279 |
| 2007 | $109,279 | $260,371 | $0 | $369,650 | $369,650 |
Deed and Sales History
| 1 | 08/15/2023 | WD | Warranty Deed | BLUHM, GARY L | BISHOP, CHERYL | | | $1,125,000.00 | 57686 | 4563749 |
| 2 | 01/24/2006 | 5 | DNU - Marriage License/Name Change | BLUHM, GARY L | BLUHM, GARY L | | | $0.00 | 61148 | 4165100 |
| 3 | 04/11/2000 | PRD | Personal Representatives Deed | BLUHM, GARY L | BLUHM, GARY L | | | $0.00 | 1644 | 20007927 |
| 4 | 08/19/1999 | PRD | Personal Representatives Deed | BLUHM, HAROLD E | BLUHM, GARY L | | | $0.00 | 93397 | 99019527 |
| 5 | 01/01/1900 | OTHER | Other - Misc. Documents | Unknown | BLUHM, HAROLD E | | | $0.00 | 0 | 0 |
Payout Agreement
| No payout information available.. |