Property
Account |
| Property ID: | 371387 | Abbreviated Legal Description: | SARATOGA S200'OF N400'OF FOLL: N600' OF LOTS 3 & 4 BLK D & VAC ST & S200'OF N400'OF LOT 16 E OF RD TGW ADJ VAC ST EX OF ST ON N & WLN |
| Geographic ID: | S8085-00-0D004-3 | Agent Code: | |
| Type: | Real | | |
| Tax Area: | 732 - APPRAISER-S Whid Schl Dist, Special District, improved, greater than 1 acre | Land Use Code | 11 |
| Open Space: | N | DFL | N |
| Historic Property: | N | Remodel Property: | N |
| Multi-Family Redevelopment: | N | | |
| Township: | | Section: | |
| Range: | |
Location |
| Address: | 3925 SARATOGA RD LANGLEY, WA 98260 | Mapsco: | |
| Neighborhood: | Cycle 4 | Map ID: | 881 |
| Neighborhood CD: | 4 |
Owner |
| Name: | NILSEN JTWROS, NICHOLAS MARTIN FOSS | Owner ID: | 311908 |
| Mailing Address: | PATRICIA LOUISE NILSEN JTWROS 3925 SARATOGA RD LANGLEY, WA 98260 | % Ownership: | 100.0000000000% |
| | | Exemptions: | |
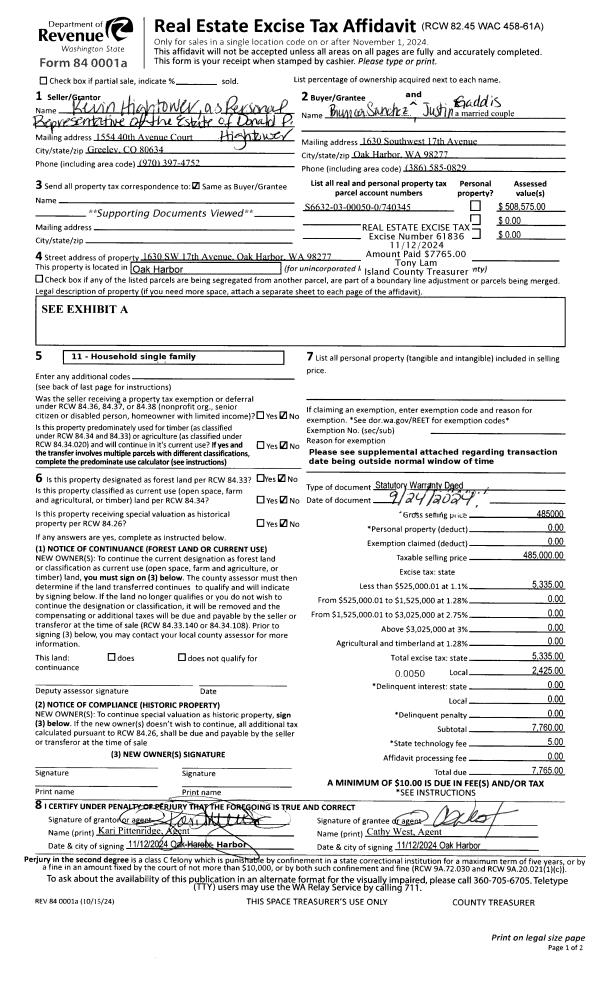
Taxes and Assessment Details
Values
| (+) Improvement Homesite Value: | + | $0 | |
| (+) Improvement Non-Homesite Value: | + | $252,818 | |
| (+) Land Homesite Value: | + | $0 | |
| (+) Land Non-Homesite Value: | + | $750,000 | |
| (+) Curr Use (HS): | + | $0 | $0 |
| (+) Curr Use (NHS): | + | $0 | $0 |
| | | -------------------------- | |
| (=) Market Value: | = | $1,002,818 | |
| (–) Productivity Loss: | – | $0 | |
| | | -------------------------- | |
| (=) Subtotal: | = | $1,002,818 | |
| (+) Senior Appraised Value: | + | $0 | |
| (+) Non-Senior Appraised Value: | + | $1,002,818 | |
| | | -------------------------- | |
| (=) Total Appraised Value: | = | $1,002,818 | |
| (–) Senior Exemption Loss: | – | $0 | |
| (–) Exemption Loss: | – | $0 | |
| | | -------------------------- | |
| (=) Taxable Value: | = | $1,002,818 | |
Taxing Jurisdiction
| Owner: | NILSEN JTWROS, NICHOLAS MARTIN FOSS | | |
| % Ownership: | 100.0000000000% | | |
| Total Value: | $1,002,818 | | |
| Tax Area: | 732 - APPRAISER-S Whid Schl Dist, Special District, improved, greater than 1 acre |
| CF | Conservation Futures | 0.0316035091 | $1,002,818 | $1,002,818 | $31.69 | | |
| FIRE3 | Fire & Rescue Dist #3 S Whidbey GEN | 1.2004855531 | $1,002,818 | $1,002,818 | $1,203.87 | | |
| HOBOND | Hospital BOND | 0.1910887512 | $1,002,818 | $1,002,818 | $191.63 | | |
| HOGEN | Hospital GEN | 0.3902502903 | $1,002,818 | $1,002,818 | $391.35 | | |
| CE | County Current Expense | 0.3708482477 | $1,002,818 | $1,002,818 | $371.89 | | |
| CR | County Roads | 0.4584763726 | $1,002,818 | $1,002,818 | $459.77 | | |
| ISLANDEMS | Hospital GEN (EMS) | 0.5000000000 | $1,002,818 | $1,002,818 | $501.41 | | |
| LIB | Library Sno-Isle GEN | 0.3153421757 | $1,002,818 | $1,002,818 | $316.23 | | |
| PORTWHID | Port of S Whidbey GEN | 0.1094540357 | $1,002,818 | $1,002,818 | $109.76 | | |
| SCH206BOND | School 206 BOND | 0.3161759235 | $1,002,818 | $1,002,818 | $317.07 | | |
| SCH206MO | School 206 Enrichment | 0.4547169547 | $1,002,818 | $1,002,818 | $456.00 | | |
| ST | State School | 1.3035497053 | $1,002,818 | $1,002,818 | $1,307.22 | | |
| ST2 | State School Part 2 | 0.8169543533 | $1,002,818 | $1,002,818 | $819.26 | | |
| SWHIDPRBD | P & R S Whidbey BOND | 0.0152817568 | $1,002,818 | $1,002,818 | $15.32 | | |
| SWHIDPRBD2 | P & R S Whidbey BOND2 | 0.0138911264 | $1,002,818 | $1,002,818 | $13.93 | | |
| SWHIDPRMT | P & R S Whidbey GEN | 0.2053334452 | $1,002,818 | $1,002,818 | $205.91 | | |
| | Total Tax Rate: | 6.6934522006 | | | | | |
| | | | | Taxes w/Current Exemptions: | $6,712.31 | | |
| | | | | Taxes w/o Exemptions: | $6,712.31 | | |
Improvement / Building
| Improvement #1: | RESIDENTIAL | State Code: | Y | 2308.3 sqft | Value: | $252,818 |
| Bathrooms: | 3 | Bedrooms: | 4 | | Ceiling: | DRY WALL SPRAYED | Exterior Wall/Cover: | PLY/HARDBOARD T-111 | | Floor Covering: | CARPET/VINYL 80-20 | Floor Structure: | WOOD W/SUBFLOOR | | Foundation: | CONCRETE | Heating: | HEAT PUMP | | Interior Finish: | DRYWALL PAINT | Plumbing Fixture Cnt: | 12 | | Roof Slope: | 4" IN 12" | Roof Structure/Cover: | CJ ASPHALT |
|
| | Type | Description | Class CD | Sub Class CD | Year Built | Area |
| | BAS | BASE/MAIN FLOOR | 3 | 0 | 1971 | 956.1 |
| | OP1 | OPEN PORCH SLAB | 3 | 0 | 1971 | 240.0 |
| | BIG | BUILT IN GARAGE | 3 | 0 | 1971 | 837.1 |
| | UPS | UPPER STORY | 3 | 0 | 1971 | 1352.2 |
| | BAW | BALCONY WOOD RAIL | 3 | 0 | 1971 | 60.0 |
| | BAR | BALCONY W/ROOF | 3 | 0 | 1971 | 169.1 |
| | OWP | OPEN WOOD PORCH W/STEPS | 3 | 0 | 1971 | 497.7 |
| | OWR | OPEN WOOD PORCH W/STEPS/ROOF | 3 | 0 | 1971 | 64.0 |
Sketch
Property Image
Land
| 1 | HB | HIGH BLUFF | 0.0000 | 0.00 | 200.00 | 0.00 | 1.00 | $750,000 | $0 |
Roll Value History
| 2026 | N/A | N/A | N/A | N/A | N/A |
| 2025 | $252,818 | $750,000 | $0 | $1,002,818 | $1,002,818 |
| 2024 | $196,147 | $750,000 | $0 | $946,147 | $946,147 |
| 2023 | $284,570 | $750,000 | $0 | $1,034,570 | $1,034,570 |
| 2022 | $261,635 | $750,000 | $0 | $1,011,635 | $1,011,635 |
| 2021 | $230,930 | $600,000 | $0 | $830,930 | $830,930 |
| 2020 | $212,560 | $450,000 | $0 | $662,560 | $662,560 |
| 2019 | $163,869 | $450,000 | $0 | $613,869 | $613,869 |
| 2018 | $164,497 | $450,000 | $0 | $614,497 | $614,497 |
| 2017 | $165,697 | $450,000 | $0 | $615,697 | $615,697 |
| 2016 | $168,209 | $450,000 | $0 | $618,209 | $618,209 |
| 2015 | $170,719 | $450,000 | $0 | $620,719 | $620,719 |
| 2014 | $167,024 | $450,000 | $0 | $617,024 | $617,024 |
| 2013 | $169,584 | $562,564 | $0 | $732,148 | $732,148 |
| 2012 | $172,142 | $562,564 | $0 | $734,706 | $734,706 |
| 2011 | $174,699 | $562,564 | $0 | $737,263 | $737,263 |
| 2010 | $183,200 | $562,564 | $0 | $745,764 | $745,764 |
| 2009 | $191,467 | $803,726 | $0 | $995,193 | $995,193 |
| 2008 | $194,221 | $803,726 | $0 | $997,947 | $997,947 |
| 2007 | $140,811 | $563,246 | $0 | $704,057 | $704,057 |
Deed and Sales History
| 1 | 03/26/2024 | QCD | Quit Claim Deed | NILSEN, NICHOLAS M | NILSEN JTWROS, NICHOLAS MARTIN FOSS | | | $0.00 | 59596 | 4570996 |
| 2 | 06/02/2023 | WD | Warranty Deed | MATTHEWS, SUSAN L | NILSEN, NICHOLAS M | | | $0.00 | 56903 | 4560629 |
| 3 | 02/08/2008 | QCD | Quit Claim Deed | MATTHEWS, SUSAN L | MATTHEWS, SUSAN L | | | $0.00 | 80416 | 4222336 |
| 4 | 10/31/2001 | WD | Warranty Deed | Unknown | MATTHEWS, SUSAN L | | | $470,000.00 | 14264 | 4002032 |
Payout Agreement
| No payout information available.. |