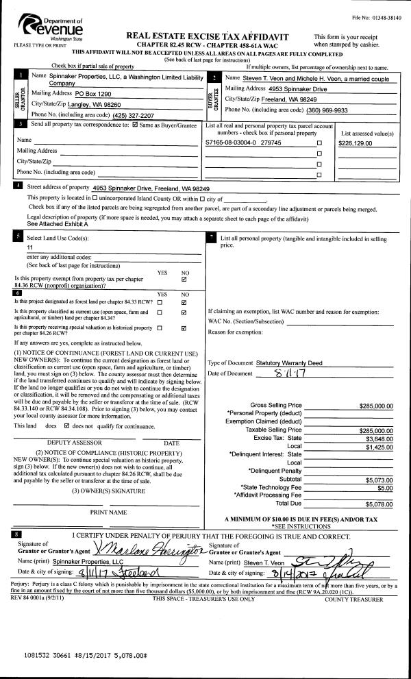
Property
Account |
| Property ID: | 371412 | Abbreviated Legal Description: | SARATOGA TIDELAND TR ADJ TO PLAT OF SARATOGA: BG NWCR BLK R S40*E60' TPB S40*E60' N40*E 128.86' N40*W60.01' S40*W 128.90' TPB INCL ADJ TIDES ALSO TGW LAND LY BET NWLY & SELY EXT SWLY FR ML TO RD TGW & SUB EZ |
| Geographic ID: | S8085-00-0R002-0 | Agent Code: | |
| Type: | Real | | |
| Tax Area: | 730 - APPRAISER-S Whid Schl Dist, Special District, improved & less than 1 acre | Land Use Code | 11 |
| Open Space: | N | DFL | N |
| Historic Property: | N | Remodel Property: | N |
| Multi-Family Redevelopment: | N | | |
| Township: | | Section: | |
| Range: | |
Location |
| Address: | 3725 BELLS LN LANGLEY, WA 98260 | Mapsco: | |
| Neighborhood: | Cycle 4 | Map ID: | 880 |
| Neighborhood CD: | 4 |
Owner |
| Name: | KOSS, PAUL | Owner ID: | 288329 |
| Mailing Address: | HEATHER ZORN 124 NE 59TH ST SEATTLE, WA 98105 | % Ownership: | 100.0000000000% |
| | | Exemptions: | |
Taxes and Assessment Details
Values
| (+) Improvement Homesite Value: | + | $0 | |
| (+) Improvement Non-Homesite Value: | + | $4,000 | |
| (+) Land Homesite Value: | + | $0 | |
| (+) Land Non-Homesite Value: | + | $350,600 | |
| (+) Curr Use (HS): | + | $0 | $0 |
| (+) Curr Use (NHS): | + | $0 | $0 |
| | | -------------------------- | |
| (=) Market Value: | = | $354,600 | |
| (–) Productivity Loss: | – | $0 | |
| | | -------------------------- | |
| (=) Subtotal: | = | $354,600 | |
| (+) Senior Appraised Value: | + | $0 | |
| (+) Non-Senior Appraised Value: | + | $354,600 | |
| | | -------------------------- | |
| (=) Total Appraised Value: | = | $354,600 | |
| (–) Senior Exemption Loss: | – | $0 | |
| (–) Exemption Loss: | – | $0 | |
| | | -------------------------- | |
| (=) Taxable Value: | = | $354,600 | |
Taxing Jurisdiction
| Owner: | KOSS, PAUL | | |
| % Ownership: | 100.0000000000% | | |
| Total Value: | $354,600 | | |
| Tax Area: | 730 - APPRAISER-S Whid Schl Dist, Special District, improved & less than 1 acre |
| CF | Conservation Futures | 0.0316035091 | $354,600 | $354,600 | $11.21 | | |
| FIRE3 | Fire & Rescue Dist #3 S Whidbey GEN | 1.2004855531 | $354,600 | $354,600 | $425.69 | | |
| HOBOND | Hospital BOND | 0.1910887512 | $354,600 | $354,600 | $67.76 | | |
| HOGEN | Hospital GEN | 0.3902502903 | $354,600 | $354,600 | $138.38 | | |
| CE | County Current Expense | 0.3708482477 | $354,600 | $354,600 | $131.50 | | |
| CR | County Roads | 0.4584763726 | $354,600 | $354,600 | $162.58 | | |
| ISLANDEMS | Hospital GEN (EMS) | 0.5000000000 | $354,600 | $354,600 | $177.30 | | |
| LIB | Library Sno-Isle GEN | 0.3153421757 | $354,600 | $354,600 | $111.82 | | |
| PORTWHID | Port of S Whidbey GEN | 0.1094540357 | $354,600 | $354,600 | $38.81 | | |
| SCH206BOND | School 206 BOND | 0.3161759235 | $354,600 | $354,600 | $112.12 | | |
| SCH206MO | School 206 Enrichment | 0.4547169547 | $354,600 | $354,600 | $161.24 | | |
| ST | State School | 1.3035497053 | $354,600 | $354,600 | $462.24 | | |
| ST2 | State School Part 2 | 0.8169543533 | $354,600 | $354,600 | $289.69 | | |
| SWHIDPRBD | P & R S Whidbey BOND | 0.0152817568 | $354,600 | $354,600 | $5.42 | | |
| SWHIDPRBD2 | P & R S Whidbey BOND2 | 0.0138911264 | $354,600 | $354,600 | $4.93 | | |
| SWHIDPRMT | P & R S Whidbey GEN | 0.2053334452 | $354,600 | $354,600 | $72.81 | | |
| | Total Tax Rate: | 6.6934522006 | | | | | |
| | | | | Taxes w/Current Exemptions: | $2,373.50 | | |
| | | | | Taxes w/o Exemptions: | $2,373.50 | | |
Improvement / Building
| Improvement #1: | RESIDENTIAL | State Code: | Y | 0.0 sqft | Value: | $4,000 |
Sketch
| No sketches available for this property. |
Property Image
Land
| 1 | LB | LOW BANK | 0.0000 | 0.00 | 60.00 | 0.00 | 1.00 | $350,000 | $0 |
| 2 | 55 | TIDES | 0.0000 | 0.00 | 60.00 | 0.00 | 1.00 | $600 | $0 |
Roll Value History
| 2026 | N/A | N/A | N/A | N/A | N/A |
| 2025 | $4,000 | $350,600 | $0 | $354,600 | $354,600 |
| 2024 | $4,000 | $350,600 | $0 | $354,600 | $354,600 |
| 2023 | $4,000 | $350,600 | $0 | $354,600 | $354,600 |
| 2022 | $4,000 | $350,600 | $0 | $354,600 | $354,600 |
| 2021 | $4,000 | $350,600 | $0 | $354,600 | $354,600 |
| 2020 | $4,000 | $350,600 | $0 | $354,600 | $354,600 |
| 2019 | $4,000 | $350,600 | $0 | $354,600 | $354,600 |
| 2018 | $4,000 | $300,600 | $0 | $304,600 | $304,600 |
| 2017 | $4,000 | $400,600 | $0 | $404,600 | $404,600 |
| 2016 | $4,000 | $400,600 | $0 | $404,600 | $404,600 |
| 2015 | $4,000 | $400,600 | $0 | $404,600 | $404,600 |
| 2014 | $4,000 | $400,600 | $0 | $404,600 | $404,600 |
| 2013 | $4,000 | $408,480 | $0 | $412,480 | $412,480 |
| 2012 | $4,000 | $408,480 | $0 | $412,480 | $412,480 |
| 2011 | $4,000 | $408,480 | $0 | $412,480 | $412,480 |
| 2010 | $4,000 | $408,480 | $0 | $412,480 | $412,480 |
| 2009 | $4,000 | $480,786 | $0 | $484,786 | $484,786 |
| 2008 | $4,000 | $451,122 | $0 | $455,122 | $455,122 |
| 2007 | $4,000 | $324,630 | $0 | $328,630 | $328,630 |
Deed and Sales History
| 1 | 12/18/2018 | WD | Warranty Deed | SALING III, GEORGE E | KOSS, PAUL | | | $365,000.00 | 37084 | 4457037 |
| 2 | 06/08/2017 | WD | Warranty Deed | DOTSON FAMILY TRUST | SALING III, GEORGE E | | | $322,500.00 | 29742 | 4424287 |
| 3 | 08/01/1997 | QCD | Quit Claim Deed | DOTSON, FAMILY T | DOTSON, FAMILY T | | | $0.00 | 72570 | 97012141 |
| 4 | 08/01/1997 | QCD | Quit Claim Deed | DOTSON, JOHN L | DOTSON, FAMILY T | | | $0.00 | 72571 | 97012142 |
| 5 | 02/01/1996 | QCD | Quit Claim Deed | DOTSON, JOHN L | DOTSON, JOHN L | | | $0.00 | 60788 | 96004233 |
| 6 | 02/01/1996 | QCD | Quit Claim Deed | DOTSON, JOHN L | DOTSON, JOHN L | | | $0.00 | 60787 | 96004232 |
| 7 | 01/01/1995 | QCD | Quit Claim Deed | DOTSON, JOHN L | DOTSON, JOHN L | | | $0.00 | 50748 | 95003461 |
| 8 | 01/01/1995 | QCD | Quit Claim Deed | DOTSON, JOHN L | DOTSON, JOHN L | | | $0.00 | 50883 | 95004209 |
| 9 | 12/01/1994 | QCD | Quit Claim Deed | DOTSON, JOHN L | DOTSON, JOHN L | | | $0.00 | 45184 | 94026254 |
| 10 | 12/01/1994 | QCD | Quit Claim Deed | DOTSON, JOHN L | DOTSON, JOHN L | | | $0.00 | 45185 | 94026255 |
| 11 | 12/01/1994 | QCD | Quit Claim Deed | DOTSON, JOHN L | DOTSON, JOHN L | | | $0.00 | 45183 | 94026257 |
| 12 | 03/01/1982 | TRUSTEED | Trustee's Deed | WATSON, LYLE S | DOTSON, JOHN L | | | $10,500.00 | 20492 | 393624 |
| 13 | 01/01/1900 | OTHER | Other - Misc. Documents | Unknown | WATSON, LYLE S | | | $0.00 | 0 | 0 |
Payout Agreement
| No payout information available.. |