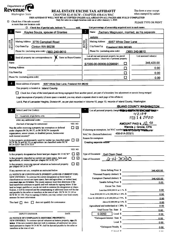
Property
Account |
| Property ID: | 372233 | Abbreviated Legal Description: | SARATOGA BCH 1 LOT 3 |
| Geographic ID: | S8090-00-00003-0 | Agent Code: | |
| Type: | Real | | |
| Tax Area: | 710 - APPRAISER-S Whid Schl Dist, outside Langley, improved & 1 acre or less | Land Use Code | 11 |
| Open Space: | N | DFL | N |
| Historic Property: | N | Remodel Property: | N |
| Multi-Family Redevelopment: | N | | |
| Township: | | Section: | |
| Range: | |
Location |
| Address: | 3208 HARBOR VIEW DR LANGLEY, WA 98260 | Mapsco: | |
| Neighborhood: | Cycle 3 | Map ID: | 379 |
| Neighborhood CD: | 3 |
Owner |
| Name: | THE KOKEMI TRUST | Owner ID: | 317468 |
| Mailing Address: | 3208 HARBOR VIEW DR LANGLEY, WA 98260 | % Ownership: | 100.0000000000% |
| | | Exemptions: | |
Taxes and Assessment Details
Values
| (+) Improvement Homesite Value: | + | $0 | |
| (+) Improvement Non-Homesite Value: | + | $169,102 | |
| (+) Land Homesite Value: | + | $0 | |
| (+) Land Non-Homesite Value: | + | $240,000 | |
| (+) Curr Use (HS): | + | $0 | $0 |
| (+) Curr Use (NHS): | + | $0 | $0 |
| | | -------------------------- | |
| (=) Market Value: | = | $409,102 | |
| (–) Productivity Loss: | – | $0 | |
| | | -------------------------- | |
| (=) Subtotal: | = | $409,102 | |
| (+) Senior Appraised Value: | + | $0 | |
| (+) Non-Senior Appraised Value: | + | $409,102 | |
| | | -------------------------- | |
| (=) Total Appraised Value: | = | $409,102 | |
| (–) Senior Exemption Loss: | – | $0 | |
| (–) Exemption Loss: | – | $0 | |
| | | -------------------------- | |
| (=) Taxable Value: | = | $409,102 | |
Taxing Jurisdiction
| Owner: | THE KOKEMI TRUST | | |
| % Ownership: | 100.0000000000% | | |
| Total Value: | $409,102 | | |
| Tax Area: | 710 - APPRAISER-S Whid Schl Dist, outside Langley, improved & 1 acre or less |
| CF | Conservation Futures | 0.0316035091 | $409,102 | $409,102 | $12.93 | | |
| FIRE3 | Fire & Rescue Dist #3 S Whidbey GEN | 1.2004855531 | $409,102 | $409,102 | $491.12 | | |
| HOBOND | Hospital BOND | 0.1910887512 | $409,102 | $409,102 | $78.17 | | |
| HOGEN | Hospital GEN | 0.3902502903 | $409,102 | $409,102 | $159.65 | | |
| CE | County Current Expense | 0.3708482477 | $409,102 | $409,102 | $151.71 | | |
| CR | County Roads | 0.4584763726 | $409,102 | $409,102 | $187.56 | | |
| ISLANDEMS | Hospital GEN (EMS) | 0.5000000000 | $409,102 | $409,102 | $204.55 | | |
| LIB | Library Sno-Isle GEN | 0.3153421757 | $409,102 | $409,102 | $129.01 | | |
| PORTWHID | Port of S Whidbey GEN | 0.1094540357 | $409,102 | $409,102 | $44.78 | | |
| SCH206BOND | School 206 BOND | 0.3161759235 | $409,102 | $409,102 | $129.35 | | |
| SCH206MO | School 206 Enrichment | 0.4547169547 | $409,102 | $409,102 | $186.03 | | |
| ST | State School | 1.3035497053 | $409,102 | $409,102 | $533.28 | | |
| ST2 | State School Part 2 | 0.8169543533 | $409,102 | $409,102 | $334.22 | | |
| SWHIDPRBD | P & R S Whidbey BOND | 0.0152817568 | $409,102 | $409,102 | $6.25 | | |
| SWHIDPRBD2 | P & R S Whidbey BOND2 | 0.0138911264 | $409,102 | $409,102 | $5.68 | | |
| SWHIDPRMT | P & R S Whidbey GEN | 0.2053334452 | $409,102 | $409,102 | $84.00 | | |
| | Total Tax Rate: | 6.6934522006 | | | | | |
| | | | | Taxes w/Current Exemptions: | $2,738.29 | | |
| | | | | Taxes w/o Exemptions: | $2,738.29 | | |
Improvement / Building
| Improvement #1: | RESIDENTIAL | State Code: | Y | 1008.0 sqft | Value: | $169,102 |
| Bathrooms: | 1 | Bedrooms: | 2 | | Ceiling: | DRY WALL SPRAYED | Exterior Wall/Cover: | WOOD SIDING | | Floor Covering: | CARPET/VINYL 60-40 | Floor Structure: | WOOD W/SUBFLOOR | | Foundation: | CONCRETE | Heating: | BASEBOARD ELECTRIC | | Interior Finish: | DRYWALL PAINT | Plumbing Fixture Cnt: | 6 | | Roof Slope: | 4" IN 12" | Roof Structure/Cover: | CJ ASPHALT |
|
| | Type | Description | Class CD | Sub Class CD | Year Built | Area |
| | BAS | BASE/MAIN FLOOR | 3 | 0 | 1978 | 1008.0 |
| | AGR | ATTACHED GARAGE | 3 | 0 | 1978 | 336.0 |
Sketch
Property Image
Land
| 1 | 15 | SQ (12001-21780) | 0.0000 | 0.00 | 0.00 | 0.00 | 1.00 | $240,000 | $0 |
Roll Value History
| 2026 | N/A | N/A | N/A | N/A | N/A |
| 2025 | $169,102 | $240,000 | $0 | $409,102 | $409,102 |
| 2024 | $174,969 | $260,000 | $0 | $434,969 | $434,969 |
| 2023 | $177,264 | $280,000 | $0 | $457,264 | $457,264 |
| 2022 | $162,595 | $210,000 | $0 | $372,595 | $372,595 |
| 2021 | $143,193 | $150,000 | $0 | $293,193 | $293,193 |
| 2020 | $139,596 | $130,000 | $0 | $269,596 | $269,596 |
| 2019 | $93,891 | $160,000 | $0 | $253,891 | $253,891 |
| 2018 | $94,194 | $120,000 | $0 | $214,194 | $214,194 |
| 2017 | $94,802 | $120,000 | $0 | $214,802 | $214,802 |
| 2016 | $96,017 | $90,000 | $0 | $186,017 | $186,017 |
| 2015 | $97,233 | $65,000 | $0 | $162,233 | $162,233 |
| 2014 | $82,541 | $65,000 | $0 | $147,541 | $147,541 |
| 2013 | $80,248 | $65,000 | $0 | $145,248 | $145,248 |
| 2012 | $81,395 | $68,850 | $0 | $150,245 | $150,245 |
| 2011 | $82,541 | $81,000 | $0 | $163,541 | $163,541 |
| 2010 | $85,410 | $90,000 | $0 | $175,410 | $175,410 |
| 2009 | $89,184 | $120,000 | $0 | $209,184 | $209,184 |
| 2008 | $89,191 | $120,000 | $0 | $209,191 | $209,191 |
| 2007 | $87,286 | $120,000 | $0 | $207,286 | $207,286 |
Deed and Sales History
| 1 | 07/08/2025 | QCD | Quit Claim Deed | HOLDEN, HEIDI | THE KOKEMI TRUST | | | $0.00 | 64231 | 4588626 |
| 2 | 03/26/2015 | WD | Warranty Deed | FLEMING, SCOTT B | HOLDEN, HEIDI | | | $185,000.00 | 18995 | 4375866 |
| 3 | 01/01/1900 | OTHER | Other - Misc. Documents | Unknown | FLEMING, SCOTT B | | | $0.00 | 0 | 0 |
Payout Agreement
| No payout information available.. |