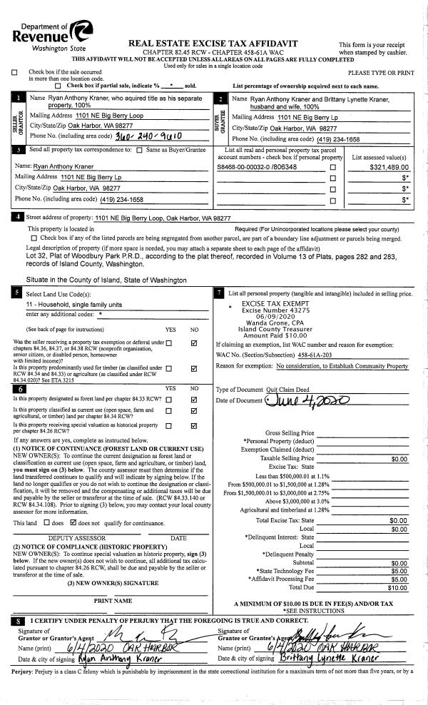
Property
Account |
| Property ID: | 372475 | Abbreviated Legal Description: | SARATOGA BCH 1 LOT 27 |
| Geographic ID: | S8090-00-00027-0 | Agent Code: | |
| Type: | Real | | |
| Tax Area: | 710 - APPRAISER-S Whid Schl Dist, outside Langley, improved & 1 acre or less | Land Use Code | 11 |
| Open Space: | N | DFL | N |
| Historic Property: | N | Remodel Property: | N |
| Multi-Family Redevelopment: | N | | |
| Township: | | Section: | |
| Range: | |
Location |
| Address: | 3274 HARBOR VIEW DR LANGLEY, WA 98260 | Mapsco: | |
| Neighborhood: | Cycle 3 | Map ID: | 379 |
| Neighborhood CD: | 3 |
Owner |
| Name: | HV PROPERTIES LLC | Owner ID: | 314344 |
| Mailing Address: | 1911 4TH AVE N DUVALL, WA 98109 | % Ownership: | 100.0000000000% |
| | | Exemptions: | |
Taxes and Assessment Details
Values
| (+) Improvement Homesite Value: | + | $0 | |
| (+) Improvement Non-Homesite Value: | + | $364,179 | |
| (+) Land Homesite Value: | + | $0 | |
| (+) Land Non-Homesite Value: | + | $600,000 | |
| (+) Curr Use (HS): | + | $0 | $0 |
| (+) Curr Use (NHS): | + | $0 | $0 |
| | | -------------------------- | |
| (=) Market Value: | = | $964,179 | |
| (–) Productivity Loss: | – | $0 | |
| | | -------------------------- | |
| (=) Subtotal: | = | $964,179 | |
| (+) Senior Appraised Value: | + | $0 | |
| (+) Non-Senior Appraised Value: | + | $964,179 | |
| | | -------------------------- | |
| (=) Total Appraised Value: | = | $964,179 | |
| (–) Senior Exemption Loss: | – | $0 | |
| (–) Exemption Loss: | – | $0 | |
| | | -------------------------- | |
| (=) Taxable Value: | = | $964,179 | |
Taxing Jurisdiction
| Owner: | HV PROPERTIES LLC | | |
| % Ownership: | 100.0000000000% | | |
| Total Value: | $964,179 | | |
| Tax Area: | 710 - APPRAISER-S Whid Schl Dist, outside Langley, improved & 1 acre or less |
| CF | Conservation Futures | 0.0316035091 | $964,179 | $964,179 | $30.47 | | |
| FIRE3 | Fire & Rescue Dist #3 S Whidbey GEN | 1.2004855531 | $964,179 | $964,179 | $1,157.48 | | |
| HOBOND | Hospital BOND | 0.1910887512 | $964,179 | $964,179 | $184.24 | | |
| HOGEN | Hospital GEN | 0.3902502903 | $964,179 | $964,179 | $376.27 | | |
| CE | County Current Expense | 0.3708482477 | $964,179 | $964,179 | $357.56 | | |
| CR | County Roads | 0.4584763726 | $964,179 | $964,179 | $442.05 | | |
| ISLANDEMS | Hospital GEN (EMS) | 0.5000000000 | $964,179 | $964,179 | $482.09 | | |
| LIB | Library Sno-Isle GEN | 0.3153421757 | $964,179 | $964,179 | $304.05 | | |
| PORTWHID | Port of S Whidbey GEN | 0.1094540357 | $964,179 | $964,179 | $105.53 | | |
| SCH206BOND | School 206 BOND | 0.3161759235 | $964,179 | $964,179 | $304.85 | | |
| SCH206MO | School 206 Enrichment | 0.4547169547 | $964,179 | $964,179 | $438.43 | | |
| ST | State School | 1.3035497053 | $964,179 | $964,179 | $1,256.86 | | |
| ST2 | State School Part 2 | 0.8169543533 | $964,179 | $964,179 | $787.69 | | |
| SWHIDPRBD | P & R S Whidbey BOND | 0.0152817568 | $964,179 | $964,179 | $14.73 | | |
| SWHIDPRBD2 | P & R S Whidbey BOND2 | 0.0138911264 | $964,179 | $964,179 | $13.39 | | |
| SWHIDPRMT | P & R S Whidbey GEN | 0.2053334452 | $964,179 | $964,179 | $197.98 | | |
| | Total Tax Rate: | 6.6934522006 | | | | | |
| | | | | Taxes w/Current Exemptions: | $6,453.67 | | |
| | | | | Taxes w/o Exemptions: | $6,453.67 | | |
Improvement / Building
| Improvement #1: | RESIDENTIAL | State Code: | Y | 1757.0 sqft | Value: | $364,179 |
| Bathrooms: | 2.5 | Bedrooms: | 2 | | Ceiling: | DRYWALL PAINTED | Exterior Wall/Cover: | CEMENT FIBER | | Floor Covering: | CERAMIC TILE/HWD 40/60 | Floor Structure: | WOOD W/SUBFLOOR | | Foundation: | CONCRETE | Heating: | BASEBOARD ELECTRIC | | Interior Finish: | DRYWALL PAINT | Plumbing Fixture Cnt: | 12 | | Roof Slope: | 8" IN 12" | Roof Structure/Cover: | BEAM ASPHALT |
|
| | Type | Description | Class CD | Sub Class CD | Year Built | Area |
| | BAS | BASE/MAIN FLOOR | 3 | 0 | 1981 | 1209.0 |
| | UPS | UPPER STORY | 3 | 0 | 1981 | 548.0 |
| | BAW | BALCONY WOOD RAIL | 3 | 0 | 1981 | 96.0 |
| | OWP | OPEN WOOD PORCH W/STEPS | 3 | 0 | 1981 | 930.5 |
Sketch
| No sketches available for this property. |
Property Image
Land
| 1 | HB | HIGH BLUFF | 0.0000 | 0.00 | 70.00 | 0.00 | 1.00 | $600,000 | $0 |
Roll Value History
| 2026 | N/A | N/A | N/A | N/A | N/A |
| 2025 | $364,179 | $600,000 | $0 | $964,179 | $964,179 |
| 2024 | $375,186 | $600,000 | $0 | $975,186 | $975,186 |
| 2023 | $378,340 | $550,000 | $0 | $928,340 | $928,340 |
| 2022 | $345,635 | $550,000 | $0 | $895,635 | $895,635 |
| 2021 | $302,875 | $350,000 | $0 | $652,875 | $652,875 |
| 2020 | $293,928 | $350,000 | $0 | $643,928 | $643,928 |
| 2019 | $199,994 | $300,000 | $0 | $499,994 | $499,994 |
| 2018 | $200,574 | $250,000 | $0 | $450,574 | $450,574 |
| 2017 | $201,734 | $250,000 | $0 | $451,734 | $451,734 |
| 2016 | $204,051 | $250,000 | $0 | $454,051 | $454,051 |
| 2015 | $135,746 | $200,000 | $0 | $335,746 | $335,746 |
| 2014 | $95,092 | $200,000 | $0 | $295,092 | $295,092 |
| 2013 | $98,632 | $178,420 | $0 | $277,052 | $277,052 |
| 2012 | $99,900 | $178,420 | $0 | $278,320 | $278,320 |
| 2011 | $101,168 | $178,420 | $0 | $279,588 | $279,588 |
| 2010 | $103,380 | $198,248 | $0 | $301,628 | $301,628 |
| 2009 | $107,973 | $275,704 | $0 | $383,677 | $383,677 |
| 2008 | $109,455 | $318,950 | $0 | $428,405 | $428,405 |
| 2007 | $105,284 | $318,950 | $0 | $424,234 | $424,234 |
Deed and Sales History
| 1 | 10/18/2024 | WD | Warranty Deed | PHELPS, RUSSELL G | HV PROPERTIES LLC | | | $770,000.00 | 61670 | 4578635 |
| 2 | 12/12/2001 | QCD | Quit Claim Deed | COX, ALLEN H | PHELPS, RUSSELL G | | | $70,343.00 | 14787 | 4006229 |
| 3 | 12/22/1998 | QCD | Quit Claim Deed | COX, ALLEN H | COX, ALLEN H | | | $0.00 | 90416 | 99002731 |
| 4 | 05/01/1996 | WD | Warranty Deed | RENYK, W M | COX, ALLEN H | | | $162,500.00 | 61664 | 96008335 |
| 5 | 01/01/1900 | OTHER | Other - Misc. Documents | Unknown | RENYK, W M | | | $0.00 | 0 | 0 |
Payout Agreement
| No payout information available.. |