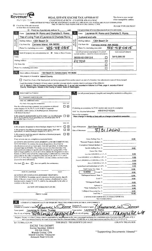
Property
Account |
| Property ID: | 372661 | Abbreviated Legal Description: | Saratoga Beach - 1,s Lot 46 & 47,s Blk 0;s LOT B BLA 423-15s |
| Geographic ID: | S8090-00-00046-0 | Agent Code: | |
| Type: | Real | | |
| Tax Area: | 710 - APPRAISER-S Whid Schl Dist, outside Langley, improved & 1 acre or less | Land Use Code | 11 |
| Open Space: | N | DFL | N |
| Historic Property: | N | Remodel Property: | N |
| Multi-Family Redevelopment: | N | | |
| Township: | | Section: | |
| Range: | |
Location |
| Address: | 3372 HARBOR VIEW DR LANGLEY, WA 98260 | Mapsco: | |
| Neighborhood: | Cycle 3 | Map ID: | 379 |
| Neighborhood CD: | 3 |
Owner |
| Name: | BOGGIO, ANTON C | Owner ID: | 277845 |
| Mailing Address: | CYNTHIA A BOGGIO 3372 HARBOR VIEW DR LANGLEY, WA 98260 | % Ownership: | 100.0000000000% |
| | | Exemptions: | |
Taxes and Assessment Details
Values
| (+) Improvement Homesite Value: | + | $0 | |
| (+) Improvement Non-Homesite Value: | + | $382,879 | |
| (+) Land Homesite Value: | + | $0 | |
| (+) Land Non-Homesite Value: | + | $650,000 | |
| (+) Curr Use (HS): | + | $0 | $0 |
| (+) Curr Use (NHS): | + | $0 | $0 |
| | | -------------------------- | |
| (=) Market Value: | = | $1,032,879 | |
| (–) Productivity Loss: | – | $0 | |
| | | -------------------------- | |
| (=) Subtotal: | = | $1,032,879 | |
| (+) Senior Appraised Value: | + | $0 | |
| (+) Non-Senior Appraised Value: | + | $1,032,879 | |
| | | -------------------------- | |
| (=) Total Appraised Value: | = | $1,032,879 | |
| (–) Senior Exemption Loss: | – | $0 | |
| (–) Exemption Loss: | – | $0 | |
| | | -------------------------- | |
| (=) Taxable Value: | = | $1,032,879 | |
Taxing Jurisdiction
| Owner: | BOGGIO, ANTON C | | |
| % Ownership: | 100.0000000000% | | |
| Total Value: | $1,032,879 | | |
| Tax Area: | 710 - APPRAISER-S Whid Schl Dist, outside Langley, improved & 1 acre or less |
| CF | Conservation Futures | 0.0316035091 | $1,032,879 | $1,032,879 | $32.64 | | |
| FIRE3 | Fire & Rescue Dist #3 S Whidbey GEN | 1.2004855531 | $1,032,879 | $1,032,879 | $1,239.96 | | |
| HOBOND | Hospital BOND | 0.1910887512 | $1,032,879 | $1,032,879 | $197.37 | | |
| HOGEN | Hospital GEN | 0.3902502903 | $1,032,879 | $1,032,879 | $403.08 | | |
| CE | County Current Expense | 0.3708482477 | $1,032,879 | $1,032,879 | $383.04 | | |
| CR | County Roads | 0.4584763726 | $1,032,879 | $1,032,879 | $473.55 | | |
| ISLANDEMS | Hospital GEN (EMS) | 0.5000000000 | $1,032,879 | $1,032,879 | $516.44 | | |
| LIB | Library Sno-Isle GEN | 0.3153421757 | $1,032,879 | $1,032,879 | $325.71 | | |
| PORTWHID | Port of S Whidbey GEN | 0.1094540357 | $1,032,879 | $1,032,879 | $113.05 | | |
| SCH206BOND | School 206 BOND | 0.3161759235 | $1,032,879 | $1,032,879 | $326.57 | | |
| SCH206MO | School 206 Enrichment | 0.4547169547 | $1,032,879 | $1,032,879 | $469.67 | | |
| ST | State School | 1.3035497053 | $1,032,879 | $1,032,879 | $1,346.41 | | |
| ST2 | State School Part 2 | 0.8169543533 | $1,032,879 | $1,032,879 | $843.81 | | |
| SWHIDPRBD | P & R S Whidbey BOND | 0.0152817568 | $1,032,879 | $1,032,879 | $15.78 | | |
| SWHIDPRBD2 | P & R S Whidbey BOND2 | 0.0138911264 | $1,032,879 | $1,032,879 | $14.35 | | |
| SWHIDPRMT | P & R S Whidbey GEN | 0.2053334452 | $1,032,879 | $1,032,879 | $212.08 | | |
| | Total Tax Rate: | 6.6934522006 | | | | | |
| | | | | Taxes w/Current Exemptions: | $6,913.51 | | |
| | | | | Taxes w/o Exemptions: | $6,913.51 | | |
Improvement / Building
| Improvement #1: | RESIDENTIAL | State Code: | Y | 1667.8 sqft | Value: | $382,879 |
| Bathrooms: | 2 | Bedrooms: | 2 | | Ceiling: | DRYWALL PAINTED | Cooling: | HEAT PUMP/CONV/V | | Exterior Wall/Cover: | CEMENT FIBER | Floor Covering: | HARDWOOD/CARP 60-40 | | Floor Structure: | WOOD W/SUBFLOOR | Foundation: | CONCRETE | | Interior Finish: | DRYWALL PAINT | Plumbing Fixture Cnt: | 10 | | Roof Slope: | 8" IN 12" | Roof Structure/Cover: | CJ ASPHALT |
|
| | Type | Description | Class CD | Sub Class CD | Year Built | Area |
| | BAS | BASE/MAIN FLOOR | 3 | 0 | 2018 | 1667.8 |
| | OWR | OPEN WOOD PORCH W/STEPS/ROOF | 3 | 0 | 2018 | 60.0 |
| | AGR | ATTACHED GARAGE | 3 | 0 | 2018 | 484.0 |
| | OWP | OPEN WOOD PORCH W/STEPS | 3 | 0 | 2018 | 180.0 |
Sketch
Property Image
Land
| 1 | HB | HIGH BLUFF | 0.0000 | 0.00 | 54.50 | 0.00 | 1.00 | $650,000 | $0 |
Roll Value History
| 2026 | N/A | N/A | N/A | N/A | N/A |
| 2025 | $382,879 | $650,000 | $0 | $1,032,879 | $1,032,879 |
| 2024 | $385,992 | $650,000 | $0 | $1,035,992 | $1,035,992 |
| 2023 | $389,104 | $575,000 | $0 | $964,104 | $964,104 |
| 2022 | $355,162 | $650,000 | $0 | $1,005,162 | $1,005,162 |
| 2021 | $311,294 | $350,000 | $0 | $661,294 | $661,294 |
| 2020 | $302,947 | $350,000 | $0 | $652,947 | $652,947 |
| 2019 | $209,153 | $300,000 | $0 | $509,153 | $509,153 |
| 2018 | $210,734 | $250,000 | $0 | $460,734 | $460,734 |
| 2017 | $0 | $150,000 | $0 | $150,000 | $150,000 |
| 2016 | $0 | $150,000 | $0 | $150,000 | $150,000 |
| 2015 | $0 | $150,000 | $0 | $150,000 | $150,000 |
| 2014 | $0 | $150,000 | $0 | $150,000 | $150,000 |
| 2013 | $0 | $222,100 | $0 | $222,100 | $222,100 |
| 2012 | $0 | $222,100 | $0 | $222,100 | $222,100 |
| 2011 | $0 | $133,050 | $0 | $133,050 | $133,050 |
| 2010 | $0 | $147,830 | $0 | $147,830 | $147,830 |
| 2009 | $0 | $162,104 | $0 | $162,104 | $162,104 |
| 2008 | $0 | $162,104 | $0 | $162,104 | $162,104 |
| 2007 | $0 | $162,104 | $0 | $162,104 | $162,104 |
Deed and Sales History
| 1 | 02/01/2016 | QCD | Quit Claim Deed | NORDIN INVESTMENTS LLC | NORDIN INVESTMENTS LLC | | | $10,000.00 | 23031 | 4393535 |
| 2 | 09/19/2016 | WD | Warranty Deed | NORDIN INVESTMENTS LLC | BOGGIO, ANTON C | | | $118,000.00 | 26227 | 4407778 |
| 3 | 01/13/2007 | QCD | Quit Claim Deed | NORDIN, WARREN | NORDIN INVESTMENTS LLC, | | | $0.00 | 71038 | 4198045 |
| 4 | 01/20/2000 | WD | Warranty Deed | KROGH NORDIN LUMBER CO, | NORDIN, WARREN | | | $15,000.00 | 426 | 20002165 |
| 5 | 01/01/1900 | OTHER | Other - Misc. Documents | Unknown | KROGH NORDIN LUMBER CO, | | | $0.00 | 0 | 0 |
Payout Agreement
| No payout information available.. |