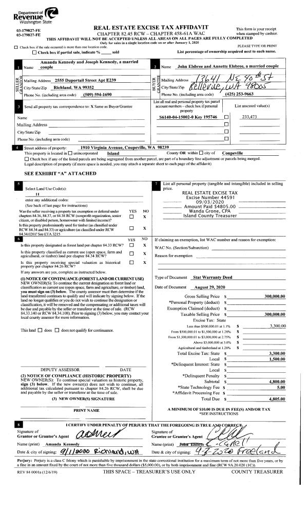
Property
Account |
| Property ID: | 372947 | Abbreviated Legal Description: | SARATOGA BCH 1 LOT 74 |
| Geographic ID: | S8090-00-00074-0 | Agent Code: | |
| Type: | Real | | |
| Tax Area: | 710 - APPRAISER-S Whid Schl Dist, outside Langley, improved & 1 acre or less | Land Use Code | 11 |
| Open Space: | N | DFL | N |
| Historic Property: | N | Remodel Property: | N |
| Multi-Family Redevelopment: | N | | |
| Township: | | Section: | |
| Range: | |
Location |
| Address: | 3289 MARDELL DR LANGLEY, WA 98260 | Mapsco: | |
| Neighborhood: | Cycle 3 | Map ID: | 379 |
| Neighborhood CD: | 3 |
Owner |
| Name: | SOLTYS, JOAN | Owner ID: | 178237 |
| Mailing Address: | 3289 MARDELL DR LANGLEY, WA 98260-9401 | % Ownership: | 100.0000000000% |
| | | Exemptions: | SNR/DSBL |
Taxes and Assessment Details
Values
| (+) Improvement Homesite Value: | + | $220,847 | |
| (+) Improvement Non-Homesite Value: | + | $0 | |
| (+) Land Homesite Value: | + | $310,000 | |
| (+) Land Non-Homesite Value: | + | $0 | |
| (+) Curr Use (HS): | + | $0 | $0 |
| (+) Curr Use (NHS): | + | $0 | $0 |
| | | -------------------------- | |
| (=) Market Value: | = | $530,847 | |
| (–) Productivity Loss: | – | $0 | |
| | | -------------------------- | |
| (=) Subtotal: | = | $530,847 | |
| (+) Senior Appraised Value: | + | $255,782 | |
| (+) Non-Senior Appraised Value: | + | $0 | |
| | | -------------------------- | |
| (=) Total Appraised Value: | = | $255,782 | |
| (–) Senior Exemption Loss: | – | $153,469 | |
| (–) Exemption Loss: | – | $0 | |
| | | -------------------------- | |
| (=) Taxable Value: | = | $102,313 | |
Taxing Jurisdiction
| Owner: | SOLTYS, JOAN | | |
| % Ownership: | 100.0000000000% | | |
| Total Value: | $530,847 | | |
| Tax Area: | 710 - APPRAISER-S Whid Schl Dist, outside Langley, improved & 1 acre or less |
| CF | Conservation Futures | 0.0316035091 | $530,847 | $102,313 | $3.23 | | |
| FIRE3 | Fire & Rescue Dist #3 S Whidbey GEN | 1.2004855531 | $530,847 | $102,313 | $122.83 | | |
| HOBOND | Hospital BOND | 0.0000000000 | $530,847 | $0 | $0.00 | | |
| HOGEN | Hospital GEN | 0.3902502903 | $530,847 | $102,313 | $39.93 | | |
| CE | County Current Expense | 0.3708482477 | $530,847 | $102,313 | $37.94 | | |
| CR | County Roads | 0.4584763726 | $530,847 | $102,313 | $46.91 | | |
| ISLANDEMS | Hospital GEN (EMS) | 0.5000000000 | $530,847 | $102,313 | $51.16 | | |
| LIB | Library Sno-Isle GEN | 0.3153421757 | $530,847 | $102,313 | $32.26 | | |
| PORTWHID | Port of S Whidbey GEN | 0.1094540357 | $530,847 | $102,313 | $11.20 | | |
| SCH206BOND | School 206 BOND | 0.3161759235 | $530,847 | $102,313 | $32.35 | | |
| SCH206MO | School 206 Enrichment | 0.0000000000 | $530,847 | $0 | $0.00 | | |
| ST | State School | 1.3035497053 | $530,847 | $102,313 | $133.37 | | |
| ST2 | State School Part 2 | 0.0000000000 | $530,847 | $0 | $0.00 | | |
| SWHIDPRBD | P & R S Whidbey BOND | 0.0000000000 | $530,847 | $0 | $0.00 | | |
| SWHIDPRBD2 | P & R S Whidbey BOND2 | 0.0000000000 | $530,847 | $0 | $0.00 | | |
| SWHIDPRMT | P & R S Whidbey GEN | 0.2053334452 | $530,847 | $102,313 | $21.01 | | |
| | Total Tax Rate: | 5.2015192582 | | | | | |
| | | | | Taxes w/Current Exemptions: | $532.19 | | |
| | | | | Taxes w/o Exemptions: | $3,553.19 | | |
Improvement / Building
| Improvement #1: | RESIDENTIAL | State Code: | Y | 1194.0 sqft | Value: | $220,847 |
| Bathrooms: | 2 | Bedrooms: | 1 | | Ceiling: | DRYWALL PAINTED | Exterior Wall/Cover: | WOOD SIDING | | Floor Covering: | CERAMIC TILE/CPT 40-60 | Floor Structure: | WOOD W/SUBFLOOR | | Foundation: | CONCRETE | Heating: | WALL HEAT ELECTRIC | | Interior Finish: | DRYWALL PAINT | Plumbing Fixture Cnt: | 9 | | Roof Slope: | 8" IN 12" | Roof Structure/Cover: | CJ ALUMINIUM HEAVY |
|
| | Type | Description | Class CD | Sub Class CD | Year Built | Area |
| | BAS | BASE/MAIN FLOOR | 3 | 0 | 1998 | 753.0 |
| | OP4 | OPEN PORCH W/CEILING-ROOF | 3 | 0 | 1998 | 76.0 |
| | AGR | ATTACHED GARAGE | 3 | 0 | 1998 | 480.0 |
| | UPS | UPPER STORY | 3 | 0 | 1998 | 441.0 |
| | ENP | ENCLOSED PORCH | 3 | 0 | 1998 | 119.0 |
Sketch
Property Image
Land
| 1 | 15 | SQ (12001-21780) | 0.0000 | 0.00 | 0.00 | 0.00 | 1.00 | $310,000 | $0 |
Roll Value History
| 2026 | N/A | N/A | N/A | N/A | N/A |
| 2025 | $220,847 | $310,000 | $0 | $530,847 | $102,313 |
| 2024 | $223,862 | $310,000 | $0 | $533,862 | $102,313 |
| 2023 | $226,876 | $310,000 | $0 | $536,876 | $102,313 |
| 2022 | $208,175 | $280,000 | $0 | $488,175 | $102,313 |
| 2021 | $183,392 | $180,000 | $0 | $363,392 | $102,313 |
| 2020 | $178,639 | $165,000 | $0 | $343,639 | $102,313 |
| 2019 | $126,056 | $190,000 | $0 | $316,056 | $102,313 |
| 2018 | $126,452 | $120,000 | $0 | $246,452 | $98,581 |
| 2017 | $127,250 | $120,000 | $0 | $247,250 | $98,900 |
| 2016 | $128,839 | $90,000 | $0 | $218,839 | $87,536 |
| 2015 | $130,430 | $75,000 | $0 | $205,430 | $82,172 |
| 2014 | $132,022 | $64,260 | $0 | $196,282 | $78,513 |
| 2013 | $142,263 | $64,260 | $0 | $206,523 | $82,609 |
| 2012 | $143,949 | $64,260 | $0 | $208,209 | $83,284 |
| 2011 | $145,635 | $75,600 | $0 | $221,235 | $88,494 |
| 2010 | $153,407 | $84,000 | $0 | $237,407 | $94,963 |
| 2009 | $160,053 | $84,000 | $0 | $244,053 | $97,621 |
| 2008 | $162,041 | $109,700 | $0 | $271,741 | $102,313 |
| 2007 | $164,246 | $109,498 | $0 | $273,744 | $102,313 |
Deed and Sales History
| 1 | 08/31/1998 | WD | Warranty Deed | HERRERA, ALBERT F | SOLTYS, JOAN | | | $148,000.00 | 83711 | 98019408 |
| 2 | 08/01/1996 | WD | Warranty Deed | CLARK, CHARLES M | HERRERA, VICTOR O | | | $23,000.00 | 62952 | 96014487 |
| 3 | 10/01/1990 | WD | Warranty Deed | CLARK, CHARLES M | HERRERA, ALBERT F | | | $13,500.00 | 6082 | 90020681 |
| 4 | 01/01/1900 | WD | Warranty Deed | Unknown | SOLTYS, JOAN | | | $0.00 | 0 | 0 |
| 5 | 01/01/1900 | OTHER | Other - Misc. Documents | SOLTYS, JOAN | CLARK, CHARLES M | | | $0.00 | 0 | 0 |
Payout Agreement
| No payout information available.. |