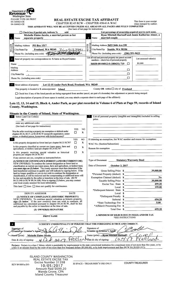
Property
Account |
| Property ID: | 373018 | Abbreviated Legal Description: | SARATOGA BCH 1 LOT 82 |
| Geographic ID: | S8090-00-00082-0 | Agent Code: | |
| Type: | Real | | |
| Tax Area: | 710 - APPRAISER-S Whid Schl Dist, outside Langley, improved & 1 acre or less | Land Use Code | 11 |
| Open Space: | N | DFL | N |
| Historic Property: | N | Remodel Property: | N |
| Multi-Family Redevelopment: | N | | |
| Township: | | Section: | |
| Range: | |
Location |
| Address: | 3239 MARDELL DR LANGLEY, WA 98260 | Mapsco: | |
| Neighborhood: | Cycle 3 | Map ID: | 379 |
| Neighborhood CD: | 3 |
Owner |
| Name: | CUNNINGHAM, TEKLA | Owner ID: | 299905 |
| Mailing Address: | DAVID SAWYER 4738 38TH AVE NE SEATTLE, WA 98105 | % Ownership: | 100.0000000000% |
| | | Exemptions: | |
Taxes and Assessment Details
Values
| (+) Improvement Homesite Value: | + | $0 | |
| (+) Improvement Non-Homesite Value: | + | $45,469 | |
| (+) Land Homesite Value: | + | $0 | |
| (+) Land Non-Homesite Value: | + | $240,000 | |
| (+) Curr Use (HS): | + | $0 | $0 |
| (+) Curr Use (NHS): | + | $0 | $0 |
| | | -------------------------- | |
| (=) Market Value: | = | $285,469 | |
| (–) Productivity Loss: | – | $0 | |
| | | -------------------------- | |
| (=) Subtotal: | = | $285,469 | |
| (+) Senior Appraised Value: | + | $0 | |
| (+) Non-Senior Appraised Value: | + | $285,469 | |
| | | -------------------------- | |
| (=) Total Appraised Value: | = | $285,469 | |
| (–) Senior Exemption Loss: | – | $0 | |
| (–) Exemption Loss: | – | $0 | |
| | | -------------------------- | |
| (=) Taxable Value: | = | $285,469 | |
Taxing Jurisdiction
| Owner: | CUNNINGHAM, TEKLA | | |
| % Ownership: | 100.0000000000% | | |
| Total Value: | $285,469 | | |
| Tax Area: | 710 - APPRAISER-S Whid Schl Dist, outside Langley, improved & 1 acre or less |
| CF | Conservation Futures | 0.0316035091 | $285,469 | $285,469 | $9.02 | | |
| FIRE3 | Fire & Rescue Dist #3 S Whidbey GEN | 1.2004855531 | $285,469 | $285,469 | $342.70 | | |
| HOBOND | Hospital BOND | 0.1910887512 | $285,469 | $285,469 | $54.55 | | |
| HOGEN | Hospital GEN | 0.3902502903 | $285,469 | $285,469 | $111.40 | | |
| CE | County Current Expense | 0.3708482477 | $285,469 | $285,469 | $105.87 | | |
| CR | County Roads | 0.4584763726 | $285,469 | $285,469 | $130.88 | | |
| ISLANDEMS | Hospital GEN (EMS) | 0.5000000000 | $285,469 | $285,469 | $142.73 | | |
| LIB | Library Sno-Isle GEN | 0.3153421757 | $285,469 | $285,469 | $90.02 | | |
| PORTWHID | Port of S Whidbey GEN | 0.1094540357 | $285,469 | $285,469 | $31.25 | | |
| SCH206BOND | School 206 BOND | 0.3161759235 | $285,469 | $285,469 | $90.26 | | |
| SCH206MO | School 206 Enrichment | 0.4547169547 | $285,469 | $285,469 | $129.81 | | |
| ST | State School | 1.3035497053 | $285,469 | $285,469 | $372.12 | | |
| ST2 | State School Part 2 | 0.8169543533 | $285,469 | $285,469 | $233.22 | | |
| SWHIDPRBD | P & R S Whidbey BOND | 0.0152817568 | $285,469 | $285,469 | $4.36 | | |
| SWHIDPRBD2 | P & R S Whidbey BOND2 | 0.0138911264 | $285,469 | $285,469 | $3.97 | | |
| SWHIDPRMT | P & R S Whidbey GEN | 0.2053334452 | $285,469 | $285,469 | $58.62 | | |
| | Total Tax Rate: | 6.6934522006 | | | | | |
| | | | | Taxes w/Current Exemptions: | $1,910.78 | | |
| | | | | Taxes w/o Exemptions: | $1,910.78 | | |
Improvement / Building
| Improvement #1: | RESIDENTIAL | State Code: | Y | 0.0 sqft | Value: | $3,329 |
| | Type | Description | Class CD | Sub Class CD | Year Built | Area |
| | oCAR | CARPORT | 1 | 0 | 1900 | 0.0 |
| | oUTI | UTILITY | 1 | 0 | 1900 | 0.0 |
| | oWDD | WOOD DECK | 1 | 0 | 1900 | 0.0 |
| | oWDD | WOOD DECK | 1 | 0 | 1900 | 0.0 |
| Improvement #2: | MANUFACTURED HOME | State Code: | Y | 1056.0 sqft | Value: | $42,140 |
| Bathrooms: | 0 | Bedrooms: | 0 | | Ceiling: | PLASTER PAINTED | Cooling: | EVAP NO DUCT | | Exterior Wall/Cover: | VINYL | Floor Covering: | CARPET 100% | | Floor Structure: | SLAB ON GRADE | Foundation: | SLAB | | Heating: | FHA ELECTRIC | Interior Finish: | PLASTER | | Plumbing Fixture Cnt: | 1 | Roof Slope: | FLAT | | Roof Structure/Cover: | CJ ALUMINIUM HEAVY |   |   |
|
| | Type | Description | Class CD | Sub Class CD | Year Built | Area |
| | BAS | BASE/MAIN FLOOR | 4 | 0 | 1979 | 1056.0 |
| | OWP | OPEN WOOD PORCH W/STEPS | 4 | 0 | 1979 | 96.0 |
Sketch
| No sketches available for this property. |
Property Image
Land
| 1 | 15 | SQ (12001-21780) | 0.0000 | 0.00 | 0.00 | 0.00 | 1.00 | $240,000 | $0 |
Roll Value History
| 2026 | N/A | N/A | N/A | N/A | N/A |
| 2025 | $45,469 | $240,000 | $0 | $285,469 | $285,469 |
| 2024 | $48,023 | $260,000 | $0 | $308,023 | $308,023 |
| 2023 | $45,525 | $280,000 | $0 | $325,525 | $325,525 |
| 2022 | $43,549 | $210,000 | $0 | $253,549 | $253,549 |
| 2021 | $27,322 | $150,000 | $0 | $177,322 | $177,322 |
| 2020 | $28,283 | $130,000 | $0 | $158,283 | $158,283 |
| 2019 | $29,264 | $160,000 | $0 | $189,264 | $189,264 |
| 2018 | $30,576 | $120,000 | $0 | $150,576 | $150,576 |
| 2017 | $31,886 | $120,000 | $0 | $151,886 | $151,886 |
| 2016 | $33,851 | $90,000 | $0 | $123,851 | $123,851 |
| 2015 | $35,162 | $65,000 | $0 | $100,162 | $100,162 |
| 2014 | $36,472 | $65,000 | $0 | $101,472 | $101,472 |
| 2013 | $38,246 | $65,000 | $0 | $103,246 | $103,246 |
| 2012 | $39,569 | $68,850 | $0 | $108,419 | $108,419 |
| 2011 | $40,892 | $81,000 | $0 | $121,892 | $121,892 |
| 2010 | $50,466 | $90,000 | $0 | $140,466 | $140,466 |
| 2009 | $53,201 | $120,000 | $0 | $173,201 | $173,201 |
| 2008 | $53,935 | $120,048 | $0 | $173,983 | $173,983 |
| 2007 | $52,874 | $120,000 | $0 | $172,874 | $172,874 |
Deed and Sales History
| 1 | 06/10/2021 | WD | Warranty Deed | MICHEL, ANN R | CUNNINGHAM, TEKLA | | | $350,000.00 | 48809 | 4522517 |
| 2 | 06/11/2021 | QCD | Quit Claim Deed | MICHEL, ANN R | MICHEL, ANN R | | | $0.00 | 48808 | 4522516 |
| 3 | 12/28/2017 | QCD | Quit Claim Deed | RIEMER TRUSTEE, ELIZABETH L | MICHEL, ANN R | | | $0.00 | 33739 | 4442885 |
| 4 | 05/05/2009 | WD | Warranty Deed | MICHEL, PAUL | RIEMER TRUSTEE, ELIZABETH L | | | $173,800.00 | 91033 | 4251156 |
| 5 | 10/12/2006 | WD | Warranty Deed | RISTE, KAREN M | MICHEL, PAUL | | | $175,000.00 | 64525 | 4184786 |
| 6 | 07/01/1989 | OTHER | Other - Misc. Documents | RISTE, KAREN M | RISTE, KAREN M | | | $27,239.00 | 92947 | 0 |
| 7 | 07/01/1989 | WD | Warranty Deed | MATSON, MILDRED | RISTE, KAREN M | | | $19,761.00 | 92949 | 89009895 |
| 8 | 07/01/1980 | OTHER | Other - Misc. Documents | MATSON, MILDRED | MATSON, MILDRED | | | $23,000.00 | 2318 | 0 |
| 9 | 02/01/1980 | CD | DNU - Correction Deed | SHEFFER, THEODORE & | MATSON, MILDRED | | | $1,000.00 | 762 | 365988 |
| 10 | 01/01/1900 | OTHER | Other - Misc. Documents | Unknown | SHEFFER, THEODORE & | | | $0.00 | 0 | 0 |
Payout Agreement
| No payout information available.. |