Property
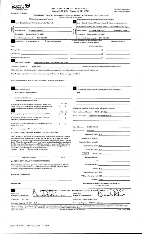
Account |
| Property ID: | 373161 | Abbreviated Legal Description: | SARATOGA BCH 1 LOT 97 |
| Geographic ID: | S8090-00-00097-0 | Agent Code: | |
| Type: | Real | | |
| Tax Area: | 710 - APPRAISER-S Whid Schl Dist, outside Langley, improved & 1 acre or less | Land Use Code | 11 |
| Open Space: | N | DFL | N |
| Historic Property: | N | Remodel Property: | N |
| Multi-Family Redevelopment: | N | | |
| Township: | | Section: | |
| Range: | |
Location |
| Address: | 3300 MARDELL DR LANGLEY, WA 98260 | Mapsco: | |
| Neighborhood: | Cycle 3 | Map ID: | 379 |
| Neighborhood CD: | 3 |
Owner |
| Name: | SAVAGE, KAREN | Owner ID: | 292157 |
| Mailing Address: | 3300 MARDELL DR LANGLEY, WA 98260 | % Ownership: | 100.0000000000% |
| | | Exemptions: | |
Taxes and Assessment Details
Values
| (+) Improvement Homesite Value: | + | $0 | |
| (+) Improvement Non-Homesite Value: | + | $191,316 | |
| (+) Land Homesite Value: | + | $0 | |
| (+) Land Non-Homesite Value: | + | $240,000 | |
| (+) Curr Use (HS): | + | $0 | $0 |
| (+) Curr Use (NHS): | + | $0 | $0 |
| | | -------------------------- | |
| (=) Market Value: | = | $431,316 | |
| (–) Productivity Loss: | – | $0 | |
| | | -------------------------- | |
| (=) Subtotal: | = | $431,316 | |
| (+) Senior Appraised Value: | + | $0 | |
| (+) Non-Senior Appraised Value: | + | $431,316 | |
| | | -------------------------- | |
| (=) Total Appraised Value: | = | $431,316 | |
| (–) Senior Exemption Loss: | – | $0 | |
| (–) Exemption Loss: | – | $0 | |
| | | -------------------------- | |
| (=) Taxable Value: | = | $431,316 | |
Taxing Jurisdiction
| Owner: | SAVAGE, KAREN | | |
| % Ownership: | 100.0000000000% | | |
| Total Value: | $431,316 | | |
| Tax Area: | 710 - APPRAISER-S Whid Schl Dist, outside Langley, improved & 1 acre or less |
| CF | Conservation Futures | 0.0316035091 | $431,316 | $431,316 | $13.63 | | |
| FIRE3 | Fire & Rescue Dist #3 S Whidbey GEN | 1.2004855531 | $431,316 | $431,316 | $517.79 | | |
| HOBOND | Hospital BOND | 0.1910887512 | $431,316 | $431,316 | $82.42 | | |
| HOGEN | Hospital GEN | 0.3902502903 | $431,316 | $431,316 | $168.32 | | |
| CE | County Current Expense | 0.3708482477 | $431,316 | $431,316 | $159.95 | | |
| CR | County Roads | 0.4584763726 | $431,316 | $431,316 | $197.75 | | |
| ISLANDEMS | Hospital GEN (EMS) | 0.5000000000 | $431,316 | $431,316 | $215.66 | | |
| LIB | Library Sno-Isle GEN | 0.3153421757 | $431,316 | $431,316 | $136.01 | | |
| PORTWHID | Port of S Whidbey GEN | 0.1094540357 | $431,316 | $431,316 | $47.21 | | |
| SCH206BOND | School 206 BOND | 0.3161759235 | $431,316 | $431,316 | $136.37 | | |
| SCH206MO | School 206 Enrichment | 0.4547169547 | $431,316 | $431,316 | $196.13 | | |
| ST | State School | 1.3035497053 | $431,316 | $431,316 | $562.24 | | |
| ST2 | State School Part 2 | 0.8169543533 | $431,316 | $431,316 | $352.37 | | |
| SWHIDPRBD | P & R S Whidbey BOND | 0.0152817568 | $431,316 | $431,316 | $6.59 | | |
| SWHIDPRBD2 | P & R S Whidbey BOND2 | 0.0138911264 | $431,316 | $431,316 | $5.99 | | |
| SWHIDPRMT | P & R S Whidbey GEN | 0.2053334452 | $431,316 | $431,316 | $88.56 | | |
| | Total Tax Rate: | 6.6934522006 | | | | | |
| | | | | Taxes w/Current Exemptions: | $2,886.99 | | |
| | | | | Taxes w/o Exemptions: | $2,886.99 | | |
Improvement / Building
| Improvement #1: | RESIDENTIAL | State Code: | Y | 796.0 sqft | Value: | $191,316 |
| Bathrooms: | 2 | Bedrooms: | 1 | | Ceiling: | TONGUE & GROOVE | Exterior Wall/Cover: | SHINGLE | | Floor Covering: | CERAMIC TILE/CPT 40-60 | Floor Structure: | SLAB ON GRADE | | Foundation: | SLAB | Heating: | FHA GAS | | Interior Finish: | DRYWALL PAINT | Plumbing Fixture Cnt: | 12 | | Roof Slope: | 18" IN 12" | Roof Structure/Cover: | BEAM ASPHALT |
|
| | Type | Description | Class CD | Sub Class CD | Year Built | Area |
| | BAS | BASE/MAIN FLOOR | 3 | 0 | 1968 | 448.0 |
| | UPS | UPPER STORY | 3 | 0 | 1968 | 348.0 |
| | OWP | OPEN WOOD PORCH W/STEPS | 3 | 0 | 1968 | 64.0 |
| | oUTI | UTILITY | 3 | 0 | 1968 | 0.0 |
| | ENP | ENCLOSED PORCH | 3 | 0 | 1968 | 80.0 |
| | OWR | OPEN WOOD PORCH W/STEPS/ROOF | 3 | 0 | 1968 | 144.0 |
Sketch
Property Image
Land
| 1 | 14 | SQ (08001-12000) | 0.0000 | 0.00 | 0.00 | 0.00 | 1.00 | $240,000 | $0 |
Roll Value History
| 2026 | N/A | N/A | N/A | N/A | N/A |
| 2025 | $191,316 | $240,000 | $0 | $431,316 | $431,316 |
| 2024 | $193,675 | $260,000 | $0 | $453,675 | $453,675 |
| 2023 | $196,034 | $280,000 | $0 | $476,034 | $476,034 |
| 2022 | $179,833 | $210,000 | $0 | $389,833 | $389,833 |
| 2021 | $179,807 | $150,000 | $0 | $329,807 | $329,807 |
| 2020 | $173,824 | $130,000 | $0 | $303,824 | $303,824 |
| 2019 | $55,429 | $160,000 | $0 | $215,429 | $215,429 |
| 2018 | $55,644 | $120,000 | $0 | $175,644 | $175,644 |
| 2017 | $56,074 | $120,000 | $0 | $176,074 | $176,074 |
| 2016 | $56,932 | $90,000 | $0 | $146,932 | $146,932 |
| 2015 | $57,790 | $75,000 | $0 | $132,790 | $132,790 |
| 2014 | $58,649 | $65,000 | $0 | $123,649 | $123,649 |
| 2013 | $64,307 | $65,000 | $0 | $129,307 | $129,307 |
| 2012 | $65,164 | $68,850 | $0 | $134,014 | $134,014 |
| 2011 | $66,023 | $81,000 | $0 | $147,023 | $147,023 |
| 2010 | $71,264 | $90,000 | $0 | $161,264 | $161,264 |
| 2009 | $74,409 | $120,000 | $0 | $194,409 | $194,409 |
| 2008 | $75,718 | $120,000 | $0 | $195,718 | $195,718 |
| 2007 | $73,928 | $120,000 | $0 | $193,928 | $193,928 |
Deed and Sales History
| 1 | 10/07/2019 | WD | Warranty Deed | JOHNSON, ROBERT | SAVAGE, KAREN | | | $325,000.00 | 40626 | 4473106 |
| 2 | 10/25/2016 | WD | Warranty Deed | PETRI TRUSTEE, SANDRA K | JOHNSON, ROBERT | | | $226,500.00 | 26740 | 4410522 |
| 3 | 10/25/2016 | TRUSTEED | Trustee's Deed | PETRI, MICHAEL | PETRI TRUSTEE, SANDRA K | | | $0.00 | 26738 | 4410521 |
| 4 | 02/02/2015 | PRD | Personal Representatives Deed | PETRI, JACLYN J | PETRI, MICHAEL | | | $0.00 | 18510 | 4373427 |
| 5 | 10/01/1984 | WD | Warranty Deed | , | PETRI, JACLYN J | | | $38,500.00 | 43075 | 84004672 |
Payout Agreement
| No payout information available.. |