Property
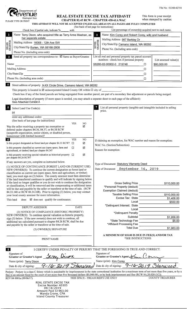
Account |
| Property ID: | 374268 | Abbreviated Legal Description: | SARATOGA BCH 3 LOT 207 |
| Geographic ID: | S8090-03-00207-0 | Agent Code: | |
| Type: | Real | | |
| Tax Area: | 710 - APPRAISER-S Whid Schl Dist, outside Langley, improved & 1 acre or less | Land Use Code | 11 |
| Open Space: | N | DFL | N |
| Historic Property: | N | Remodel Property: | N |
| Multi-Family Redevelopment: | N | | |
| Township: | | Section: | |
| Range: | |
Location |
| Address: | | Mapsco: | |
| Neighborhood: | Cycle 3 | Map ID: | 378 |
| Neighborhood CD: | 3 |
Owner |
| Name: | LEUNG, JACKSON | Owner ID: | 198383 |
| Mailing Address: | BENNY & MACER LEUNG 1164 SABAL DR SAN JOSE, CA 95132-2746 | % Ownership: | 100.0000000000% |
| | | Exemptions: | |
Taxes and Assessment Details
Values
| (+) Improvement Homesite Value: | + | $0 | |
| (+) Improvement Non-Homesite Value: | + | $4,000 | |
| (+) Land Homesite Value: | + | $0 | |
| (+) Land Non-Homesite Value: | + | $70,000 | |
| (+) Curr Use (HS): | + | $0 | $0 |
| (+) Curr Use (NHS): | + | $0 | $0 |
| | | -------------------------- | |
| (=) Market Value: | = | $74,000 | |
| (–) Productivity Loss: | – | $0 | |
| | | -------------------------- | |
| (=) Subtotal: | = | $74,000 | |
| (+) Senior Appraised Value: | + | $0 | |
| (+) Non-Senior Appraised Value: | + | $74,000 | |
| | | -------------------------- | |
| (=) Total Appraised Value: | = | $74,000 | |
| (–) Senior Exemption Loss: | – | $0 | |
| (–) Exemption Loss: | – | $0 | |
| | | -------------------------- | |
| (=) Taxable Value: | = | $74,000 | |
Taxing Jurisdiction
| Owner: | LEUNG, JACKSON | | |
| % Ownership: | 100.0000000000% | | |
| Total Value: | $74,000 | | |
| Tax Area: | 710 - APPRAISER-S Whid Schl Dist, outside Langley, improved & 1 acre or less |
| CF | Conservation Futures | 0.0316035091 | $74,000 | $74,000 | $2.34 | | |
| FIRE3 | Fire & Rescue Dist #3 S Whidbey GEN | 1.2004855531 | $74,000 | $74,000 | $88.84 | | |
| HOBOND | Hospital BOND | 0.1910887512 | $74,000 | $74,000 | $14.14 | | |
| HOGEN | Hospital GEN | 0.3902502903 | $74,000 | $74,000 | $28.88 | | |
| CE | County Current Expense | 0.3708482477 | $74,000 | $74,000 | $27.44 | | |
| CR | County Roads | 0.4584763726 | $74,000 | $74,000 | $33.93 | | |
| ISLANDEMS | Hospital GEN (EMS) | 0.5000000000 | $74,000 | $74,000 | $37.00 | | |
| LIB | Library Sno-Isle GEN | 0.3153421757 | $74,000 | $74,000 | $23.34 | | |
| PORTWHID | Port of S Whidbey GEN | 0.1094540357 | $74,000 | $74,000 | $8.10 | | |
| SCH206BOND | School 206 BOND | 0.3161759235 | $74,000 | $74,000 | $23.40 | | |
| SCH206MO | School 206 Enrichment | 0.4547169547 | $74,000 | $74,000 | $33.65 | | |
| ST | State School | 1.3035497053 | $74,000 | $74,000 | $96.46 | | |
| ST2 | State School Part 2 | 0.8169543533 | $74,000 | $74,000 | $60.45 | | |
| SWHIDPRBD | P & R S Whidbey BOND | 0.0152817568 | $74,000 | $74,000 | $1.13 | | |
| SWHIDPRBD2 | P & R S Whidbey BOND2 | 0.0138911264 | $74,000 | $74,000 | $1.03 | | |
| SWHIDPRMT | P & R S Whidbey GEN | 0.2053334452 | $74,000 | $74,000 | $15.19 | | |
| | Total Tax Rate: | 6.6934522006 | | | | | |
| | | | | Taxes w/Current Exemptions: | $495.32 | | |
| | | | | Taxes w/o Exemptions: | $495.32 | | |
Improvement / Building
| Improvement #1: | RESIDENTIAL | State Code: | Y | 0.0 sqft | Value: | $4,000 |
Sketch
| No sketches available for this property. |
Property Image
Land
| 1 | 14 | SQ (08001-12000) | 0.0000 | 0.00 | 0.00 | 0.00 | 1.00 | $70,000 | $0 |
Roll Value History
| 2026 | N/A | N/A | N/A | N/A | N/A |
| 2025 | $4,000 | $70,000 | $0 | $74,000 | $74,000 |
| 2024 | $4,000 | $70,000 | $0 | $74,000 | $74,000 |
| 2023 | $4,000 | $70,000 | $0 | $74,000 | $74,000 |
| 2022 | $4,000 | $70,000 | $0 | $74,000 | $74,000 |
| 2021 | $4,000 | $60,000 | $0 | $64,000 | $64,000 |
| 2020 | $4,000 | $60,000 | $0 | $64,000 | $64,000 |
| 2019 | $4,000 | $60,000 | $0 | $64,000 | $64,000 |
| 2018 | $4,000 | $60,000 | $0 | $64,000 | $64,000 |
| 2017 | $4,000 | $60,000 | $0 | $64,000 | $64,000 |
| 2016 | $4,000 | $45,000 | $0 | $49,000 | $49,000 |
| 2015 | $4,000 | $45,000 | $0 | $49,000 | $49,000 |
| 2014 | $4,000 | $45,000 | $0 | $49,000 | $49,000 |
| 2013 | $4,000 | $34,425 | $0 | $38,425 | $38,425 |
| 2012 | $4,000 | $34,425 | $0 | $38,425 | $38,425 |
| 2011 | $4,000 | $40,500 | $0 | $44,500 | $44,500 |
| 2010 | $4,000 | $45,000 | $0 | $49,000 | $49,000 |
| 2009 | $4,000 | $40,000 | $0 | $44,000 | $44,000 |
| 2008 | $4,000 | $40,000 | $0 | $44,000 | $44,000 |
| 2007 | $4,000 | $40,000 | $0 | $44,000 | $44,000 |
Deed and Sales History
| 1 | 05/21/2007 | QCD | Quit Claim Deed | LEUNG, JACKSON | LEUNG, JACKSON | | | $5,239.00 | 71674 | 4202613 |
| 2 | 10/05/2005 | WD | Warranty Deed | FILE, THOMAS L | LEUNG, JACKSON | | | $44,838.00 | 55226 | 4150963 |
| 3 | 06/01/1978 | OTHER | Other - Misc. Documents | Unknown | FILE, THOMAS L | | | $20,000.00 | 83222 | 335845 |
Payout Agreement
| No payout information available.. |