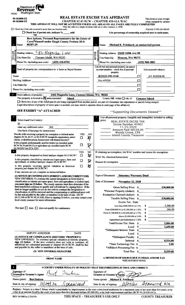
Property
Account |
| Property ID: | 374810 | Abbreviated Legal Description: | SARATOGA BCH 3 LOT 265 |
| Geographic ID: | S8090-03-00265-0 | Agent Code: | |
| Type: | Real | | |
| Tax Area: | 710 - APPRAISER-S Whid Schl Dist, outside Langley, improved & 1 acre or less | Land Use Code | 11 |
| Open Space: | N | DFL | N |
| Historic Property: | N | Remodel Property: | N |
| Multi-Family Redevelopment: | N | | |
| Township: | | Section: | |
| Range: | |
Location |
| Address: | 3625 EAST HARBOR RD LANGLEY, WA 98260 | Mapsco: | |
| Neighborhood: | Cycle 3 | Map ID: | 407 |
| Neighborhood CD: | 3 |
Owner |
| Name: | EARNSHAW, NELSON D | Owner ID: | 295379 |
| Mailing Address: | 3625 E HARBOR RD LANGLEY, WA 98260 | % Ownership: | 100.0000000000% |
| | | Exemptions: | |
Taxes and Assessment Details
Values
| (+) Improvement Homesite Value: | + | $0 | |
| (+) Improvement Non-Homesite Value: | + | $147,895 | |
| (+) Land Homesite Value: | + | $0 | |
| (+) Land Non-Homesite Value: | + | $240,000 | |
| (+) Curr Use (HS): | + | $0 | $0 |
| (+) Curr Use (NHS): | + | $0 | $0 |
| | | -------------------------- | |
| (=) Market Value: | = | $387,895 | |
| (–) Productivity Loss: | – | $0 | |
| | | -------------------------- | |
| (=) Subtotal: | = | $387,895 | |
| (+) Senior Appraised Value: | + | $0 | |
| (+) Non-Senior Appraised Value: | + | $387,895 | |
| | | -------------------------- | |
| (=) Total Appraised Value: | = | $387,895 | |
| (–) Senior Exemption Loss: | – | $0 | |
| (–) Exemption Loss: | – | $0 | |
| | | -------------------------- | |
| (=) Taxable Value: | = | $387,895 | |
Taxing Jurisdiction
| Owner: | EARNSHAW, NELSON D | | |
| % Ownership: | 100.0000000000% | | |
| Total Value: | $387,895 | | |
| Tax Area: | 710 - APPRAISER-S Whid Schl Dist, outside Langley, improved & 1 acre or less |
| CF | Conservation Futures | 0.0316035091 | $387,895 | $387,895 | $12.26 | | |
| FIRE3 | Fire & Rescue Dist #3 S Whidbey GEN | 1.2004855531 | $387,895 | $387,895 | $465.66 | | |
| HOBOND | Hospital BOND | 0.1910887512 | $387,895 | $387,895 | $74.12 | | |
| HOGEN | Hospital GEN | 0.3902502903 | $387,895 | $387,895 | $151.38 | | |
| CE | County Current Expense | 0.3708482477 | $387,895 | $387,895 | $143.85 | | |
| CR | County Roads | 0.4584763726 | $387,895 | $387,895 | $177.84 | | |
| ISLANDEMS | Hospital GEN (EMS) | 0.5000000000 | $387,895 | $387,895 | $193.95 | | |
| LIB | Library Sno-Isle GEN | 0.3153421757 | $387,895 | $387,895 | $122.32 | | |
| PORTWHID | Port of S Whidbey GEN | 0.1094540357 | $387,895 | $387,895 | $42.46 | | |
| SCH206BOND | School 206 BOND | 0.3161759235 | $387,895 | $387,895 | $122.64 | | |
| SCH206MO | School 206 Enrichment | 0.4547169547 | $387,895 | $387,895 | $176.38 | | |
| ST | State School | 1.3035497053 | $387,895 | $387,895 | $505.64 | | |
| ST2 | State School Part 2 | 0.8169543533 | $387,895 | $387,895 | $316.89 | | |
| SWHIDPRBD | P & R S Whidbey BOND | 0.0152817568 | $387,895 | $387,895 | $5.93 | | |
| SWHIDPRBD2 | P & R S Whidbey BOND2 | 0.0138911264 | $387,895 | $387,895 | $5.39 | | |
| SWHIDPRMT | P & R S Whidbey GEN | 0.2053334452 | $387,895 | $387,895 | $79.65 | | |
| | Total Tax Rate: | 6.6934522006 | | | | | |
| | | | | Taxes w/Current Exemptions: | $2,596.36 | | |
| | | | | Taxes w/o Exemptions: | $2,596.36 | | |
Improvement / Building
| Improvement #1: | RESIDENTIAL | State Code: | Y | 714.7 sqft | Value: | $147,895 |
| Bathrooms: | 1 | Bedrooms: | 1 | | Ceiling: | BEAM PAINTED | Cooling: | HEAT PUMP/CONV/V | | Exterior Wall/Cover: | PLY/HARDBOARD T-111 | Floor Covering: | CARPET/VINYL 60-40 | | Floor Structure: | WOOD W/SUBFLOOR | Foundation: | CONCRETE | | Interior Finish: | DRYWALL PAINT | Plumbing Fixture Cnt: | 6 | | Roof Slope: | 8" IN 12" | Roof Structure/Cover: | BEAM ASPHALT |
|
| | Type | Description | Class CD | Sub Class CD | Year Built | Area |
| | BAS | BASE/MAIN FLOOR | 3 | 0 | 1969 | 714.7 |
| | OWP | OPEN WOOD PORCH W/STEPS | 3 | 0 | 1969 | 124.0 |
| | OWR | OPEN WOOD PORCH W/STEPS/ROOF | 3 | 0 | 1969 | 593.6 |
| | DGR | DETACHED GARAGE | 3 | 0 | 1969 | 180.0 |
| | UTY | STORAGE/UTILITY | 3 | 0 | 1969 | 144.0 |
Sketch
Property Image
Land
| 1 | 15 | SQ (12001-21780) | 0.0000 | 0.00 | 0.00 | 0.00 | 1.00 | $240,000 | $0 |
Roll Value History
| 2026 | N/A | N/A | N/A | N/A | N/A |
| 2025 | $147,895 | $240,000 | $0 | $387,895 | $387,895 |
| 2024 | $147,784 | $260,000 | $0 | $407,784 | $407,784 |
| 2023 | $150,083 | $280,000 | $0 | $430,083 | $430,083 |
| 2022 | $137,983 | $210,000 | $0 | $347,983 | $347,983 |
| 2021 | $121,800 | $150,000 | $0 | $271,800 | $271,800 |
| 2020 | $118,711 | $130,000 | $0 | $248,711 | $248,711 |
| 2019 | $78,305 | $160,000 | $0 | $238,305 | $238,305 |
| 2018 | $78,604 | $120,000 | $0 | $198,604 | $198,604 |
| 2017 | $79,208 | $120,000 | $0 | $199,208 | $199,208 |
| 2016 | $70,467 | $90,000 | $0 | $160,467 | $160,467 |
| 2015 | $71,551 | $65,000 | $0 | $136,551 | $136,551 |
| 2014 | $72,636 | $65,000 | $0 | $137,636 | $137,636 |
| 2013 | $74,414 | $57,146 | $0 | $131,560 | $131,560 |
| 2012 | $75,498 | $57,146 | $0 | $132,644 | $132,644 |
| 2011 | $76,583 | $67,230 | $0 | $143,813 | $143,813 |
| 2010 | $81,783 | $74,700 | $0 | $156,483 | $156,483 |
| 2009 | $85,397 | $84,000 | $0 | $169,397 | $169,397 |
Deed and Sales History
| 1 | 07/07/2020 | QCD | Quit Claim Deed | EARNSHAW, NELSON D | EARNSHAW, NELSON D | | | $0.00 | 43990 | 4492463 |
| 2 | 05/27/2014 | SPWARDEED | Special Warranty Deed | FEDERAL NATIONAL MORTGAGE ASSOCIATION | EARNSHAW, NELSON D | | | $134,900.00 | 15474 | 4360228 |
| 3 | 08/23/2013 | TRUSTEED | Trustee's Deed | BARRETT, SUSAN J | FEDERAL NATIONAL MORTGAGE ASSOCIATION | | | $219,150.00 | 12552 | 4347093 |
| 4 | 01/26/2009 | QCD | Quit Claim Deed | BARRETT, SUSAN J | BARRETT, SUSAN J | | | $0.00 | 90168 | 4243421 |
| 5 | 09/16/2004 | QCD | Quit Claim Deed | BARRETT, SUSAN J | BARRETT, SUSAN J | | | $0.00 | 44372 | 4113140 |
| 6 | 10/04/1999 | WD | Warranty Deed | GOETZ, RITA M | BARRETT, SUSAN J | | | $109,500.00 | 94702 | 99026291 |
| 7 | 01/01/1998 | 5 | DNU - Marriage License/Name Change | LOONEY, RITA M | GOETZ, RITA M | | | $0.00 | 67755 | 96014964 |
| 8 | 11/01/1995 | QCD | Quit Claim Deed | LOONEY, RITA M | LOONEY, RITA M | | | $0.00 | 54179 | 95019223 |
| 9 | 02/01/1995 | QCD | Quit Claim Deed | LOONEY, STEVEN M | LOONEY, RITA M | | | $0.00 | 50704 | 95003278 |
| 10 | 10/01/1992 | WD | Warranty Deed | LOONEY, RITA M | LOONEY, STEVEN M | | | $89,000.00 | 24114 | 92019983 |
| 11 | 10/01/1992 | QCD | Quit Claim Deed | RIPPEE, MARIAN C | LOONEY, RITA M | | | $0.00 | 24164 | 92020189 |
| 12 | 07/01/1988 | WD | Warranty Deed | ORRIS, GARY D | RIPPEE, MARIAN C | | | $32,000.00 | 82375 | 88008994 |
| 13 | 09/01/1984 | WD | Warranty Deed | HILL, GENE B | ORRIS, GARY D | | | $39,500.00 | 42762 | 84003395 |
| 14 | 01/01/1900 | OTHER | Other - Misc. Documents | Unknown | HILL, GENE B | | | $0.00 | 0 | 0 |
Payout Agreement
| No payout information available.. |