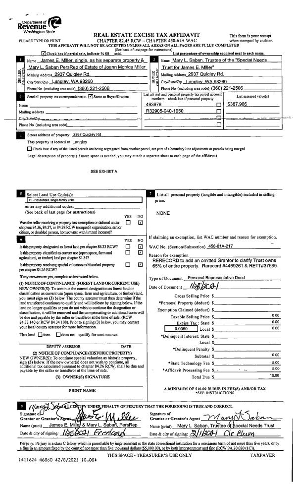
Property
Account |
| Property ID: | 375640 | Abbreviated Legal Description: | SARATOGA BCH 5 LOT 13 |
| Geographic ID: | S8090-05-00013-0 | Agent Code: | |
| Type: | Real | | |
| Tax Area: | 710 - APPRAISER-S Whid Schl Dist, outside Langley, improved & 1 acre or less | Land Use Code | 11 |
| Open Space: | N | DFL | N |
| Historic Property: | N | Remodel Property: | N |
| Multi-Family Redevelopment: | N | | |
| Township: | | Section: | |
| Range: | |
Location |
| Address: | 3663 HOLMES VIEW DR LANGLEY, WA 98260 | Mapsco: | |
| Neighborhood: | Cycle 3 | Map ID: | 407 |
| Neighborhood CD: | 3 |
Owner |
| Name: | WRIGHT, CHARLES | Owner ID: | 296920 |
| Mailing Address: | 3503 SMUGGLER'S COVE RD GREENBANK, WA 98253 | % Ownership: | 100.0000000000% |
| | | Exemptions: | |
Taxes and Assessment Details
Values
| (+) Improvement Homesite Value: | + | $0 | |
| (+) Improvement Non-Homesite Value: | + | $296,275 | |
| (+) Land Homesite Value: | + | $0 | |
| (+) Land Non-Homesite Value: | + | $240,000 | |
| (+) Curr Use (HS): | + | $0 | $0 |
| (+) Curr Use (NHS): | + | $0 | $0 |
| | | -------------------------- | |
| (=) Market Value: | = | $536,275 | |
| (–) Productivity Loss: | – | $0 | |
| | | -------------------------- | |
| (=) Subtotal: | = | $536,275 | |
| (+) Senior Appraised Value: | + | $0 | |
| (+) Non-Senior Appraised Value: | + | $536,275 | |
| | | -------------------------- | |
| (=) Total Appraised Value: | = | $536,275 | |
| (–) Senior Exemption Loss: | – | $0 | |
| (–) Exemption Loss: | – | $0 | |
| | | -------------------------- | |
| (=) Taxable Value: | = | $536,275 | |
Taxing Jurisdiction
| Owner: | WRIGHT, CHARLES | | |
| % Ownership: | 100.0000000000% | | |
| Total Value: | $536,275 | | |
| Tax Area: | 710 - APPRAISER-S Whid Schl Dist, outside Langley, improved & 1 acre or less |
| CF | Conservation Futures | 0.0316035091 | $536,275 | $536,275 | $16.95 | | |
| FIRE3 | Fire & Rescue Dist #3 S Whidbey GEN | 1.2004855531 | $536,275 | $536,275 | $643.79 | | |
| HOBOND | Hospital BOND | 0.1910887512 | $536,275 | $536,275 | $102.48 | | |
| HOGEN | Hospital GEN | 0.3902502903 | $536,275 | $536,275 | $209.28 | | |
| CE | County Current Expense | 0.3708482477 | $536,275 | $536,275 | $198.88 | | |
| CR | County Roads | 0.4584763726 | $536,275 | $536,275 | $245.87 | | |
| ISLANDEMS | Hospital GEN (EMS) | 0.5000000000 | $536,275 | $536,275 | $268.14 | | |
| LIB | Library Sno-Isle GEN | 0.3153421757 | $536,275 | $536,275 | $169.11 | | |
| PORTWHID | Port of S Whidbey GEN | 0.1094540357 | $536,275 | $536,275 | $58.70 | | |
| SCH206BOND | School 206 BOND | 0.3161759235 | $536,275 | $536,275 | $169.56 | | |
| SCH206MO | School 206 Enrichment | 0.4547169547 | $536,275 | $536,275 | $243.85 | | |
| ST | State School | 1.3035497053 | $536,275 | $536,275 | $699.06 | | |
| ST2 | State School Part 2 | 0.8169543533 | $536,275 | $536,275 | $438.11 | | |
| SWHIDPRBD | P & R S Whidbey BOND | 0.0152817568 | $536,275 | $536,275 | $8.20 | | |
| SWHIDPRBD2 | P & R S Whidbey BOND2 | 0.0138911264 | $536,275 | $536,275 | $7.45 | | |
| SWHIDPRMT | P & R S Whidbey GEN | 0.2053334452 | $536,275 | $536,275 | $110.12 | | |
| | Total Tax Rate: | 6.6934522006 | | | | | |
| | | | | Taxes w/Current Exemptions: | $3,589.55 | | |
| | | | | Taxes w/o Exemptions: | $3,589.55 | | |
Improvement / Building
| Improvement #1: | RESIDENTIAL | State Code: | Y | 1737.5 sqft | Value: | $296,275 |
| Bathrooms: | 2 | Bedrooms: | 3 | | Ceiling: | DRY WALL SPRAYED | Cooling: | HEAT PUMP/CONV/V | | Exterior Wall/Cover: | PLY/HARDBOARD T-111 | Floor Covering: | CARPET/VINYL 60-40 | | Floor Structure: | WOOD W/SUBFLOOR | Foundation: | CONCRETE | | Interior Finish: | DRYWALL PAINT | Plumbing Fixture Cnt: | 9 | | Roof Slope: | 4" IN 12" | Roof Structure/Cover: | CJ ASPHALT |
|
| | Type | Description | Class CD | Sub Class CD | Year Built | Area |
| | BAS | BASE/MAIN FLOOR | 3 | 0 | 1981 | 905.5 |
| | OWP | OPEN WOOD PORCH W/STEPS | 3 | 0 | 1981 | 582.5 |
| | DGR | DETACHED GARAGE | 3 | 0 | 1981 | 336.0 |
| | DWN | DOWNSTAIRS LIVING AREA | 3 | 0 | 1981 | 832.0 |
Sketch
Property Image
Land
| 1 | 15 | SQ (12001-21780) | 0.3000 | 13068.00 | 0.00 | 0.00 | 1.00 | $240,000 | $0 |
Roll Value History
| 2026 | N/A | N/A | N/A | N/A | N/A |
| 2025 | $296,275 | $240,000 | $0 | $536,275 | $536,275 |
| 2024 | $298,560 | $260,000 | $0 | $558,560 | $558,560 |
| 2023 | $301,008 | $280,000 | $0 | $581,008 | $581,008 |
| 2022 | $222,867 | $210,000 | $0 | $432,867 | $432,867 |
| 2021 | $45,409 | $150,000 | $0 | $195,409 | $195,409 |
| 2020 | $116,635 | $130,000 | $0 | $246,635 | $246,635 |
| 2019 | $98,655 | $160,000 | $0 | $258,655 | $258,655 |
| 2018 | $99,027 | $120,000 | $0 | $219,027 | $219,027 |
| 2017 | $92,433 | $120,000 | $0 | $212,433 | $212,433 |
| 2016 | $93,813 | $90,000 | $0 | $183,813 | $49,705 |
| 2015 | $95,192 | $65,000 | $0 | $160,192 | $49,705 |
| 2014 | $96,573 | $65,000 | $0 | $161,573 | $49,705 |
| 2013 | $99,314 | $65,000 | $0 | $164,314 | $49,705 |
| 2012 | $100,775 | $68,850 | $0 | $169,625 | $49,705 |
| 2011 | $102,234 | $81,000 | $0 | $183,234 | $49,705 |
| 2010 | $98,812 | $90,000 | $0 | $188,812 | $49,705 |
| 2009 | $103,326 | $120,000 | $0 | $223,326 | $49,705 |
| 2008 | $104,868 | $120,000 | $0 | $224,868 | $49,705 |
| 2007 | $104,709 | $120,000 | $0 | $224,709 | $49,705 |
Deed and Sales History
| 1 | 10/09/2020 | WD | Warranty Deed | FEDERAL NATIONAL MORTGAGE ASSOCIATION | WRIGHT, CHARLES | | | $0.00 | 45210 | 4499271 |
| 2 | 10/09/2019 | TRUSTEED | Trustee's Deed | RUDD, ANN S | FEDERAL NATIONAL MORTGAGE ASSOCIATION | | | $0.00 | 40969 | 4474819 |
| 3 | 01/01/1983 | WD | Warranty Deed | RUDD, PAYTON H | RUDD, ANN S | | | $0.00 | 30237 | 405337 |
| 4 | 12/01/1979 | TRUSTEED | Trustee's Deed | FORT, WARD E | RUDD, PAYTON H | | | $7,000.00 | 95748 | 0 |
| 5 | 01/01/1900 | OTHER | Other - Misc. Documents | Unknown | FORT, WARD E | | | $0.00 | 0 | 0 |
Payout Agreement
| No payout information available.. |