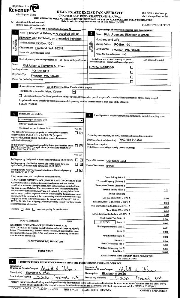
Property
Account |
| Property ID: | 376051 | Abbreviated Legal Description: | SARATOGA BCH 5 LOT 54 |
| Geographic ID: | S8090-05-00054-0 | Agent Code: | |
| Type: | Real | | |
| Tax Area: | 710 - APPRAISER-S Whid Schl Dist, outside Langley, improved & 1 acre or less | Land Use Code | 11 |
| Open Space: | N | DFL | N |
| Historic Property: | N | Remodel Property: | N |
| Multi-Family Redevelopment: | N | | |
| Township: | | Section: | |
| Range: | |
Location |
| Address: | 3695 EMMET PLACE LANGLEY, WA 98260 | Mapsco: | |
| Neighborhood: | Cycle 3 | Map ID: | 407 |
| Neighborhood CD: | 3 |
Owner |
| Name: | COBER, BENJAMIN | Owner ID: | 302963 |
| Mailing Address: | MELISSA COBER 3695 S EMMET PL LANGLEY, WA 98260 | % Ownership: | 100.0000000000% |
| | | Exemptions: | |
Taxes and Assessment Details
Values
| (+) Improvement Homesite Value: | + | $0 | |
| (+) Improvement Non-Homesite Value: | + | $321,172 | |
| (+) Land Homesite Value: | + | $0 | |
| (+) Land Non-Homesite Value: | + | $245,000 | |
| (+) Curr Use (HS): | + | $0 | $0 |
| (+) Curr Use (NHS): | + | $0 | $0 |
| | | -------------------------- | |
| (=) Market Value: | = | $566,172 | |
| (–) Productivity Loss: | – | $0 | |
| | | -------------------------- | |
| (=) Subtotal: | = | $566,172 | |
| (+) Senior Appraised Value: | + | $0 | |
| (+) Non-Senior Appraised Value: | + | $566,172 | |
| | | -------------------------- | |
| (=) Total Appraised Value: | = | $566,172 | |
| (–) Senior Exemption Loss: | – | $0 | |
| (–) Exemption Loss: | – | $0 | |
| | | -------------------------- | |
| (=) Taxable Value: | = | $566,172 | |
Taxing Jurisdiction
| Owner: | COBER, BENJAMIN | | |
| % Ownership: | 100.0000000000% | | |
| Total Value: | $566,172 | | |
| Tax Area: | 710 - APPRAISER-S Whid Schl Dist, outside Langley, improved & 1 acre or less |
| CF | Conservation Futures | 0.0316035091 | $566,172 | $566,172 | $17.89 | | |
| FIRE3 | Fire & Rescue Dist #3 S Whidbey GEN | 1.2004855531 | $566,172 | $566,172 | $679.68 | | |
| HOBOND | Hospital BOND | 0.1910887512 | $566,172 | $566,172 | $108.19 | | |
| HOGEN | Hospital GEN | 0.3902502903 | $566,172 | $566,172 | $220.95 | | |
| CE | County Current Expense | 0.3708482477 | $566,172 | $566,172 | $209.96 | | |
| CR | County Roads | 0.4584763726 | $566,172 | $566,172 | $259.58 | | |
| ISLANDEMS | Hospital GEN (EMS) | 0.5000000000 | $566,172 | $566,172 | $283.09 | | |
| LIB | Library Sno-Isle GEN | 0.3153421757 | $566,172 | $566,172 | $178.54 | | |
| PORTWHID | Port of S Whidbey GEN | 0.1094540357 | $566,172 | $566,172 | $61.97 | | |
| SCH206BOND | School 206 BOND | 0.3161759235 | $566,172 | $566,172 | $179.01 | | |
| SCH206MO | School 206 Enrichment | 0.4547169547 | $566,172 | $566,172 | $257.45 | | |
| ST | State School | 1.3035497053 | $566,172 | $566,172 | $738.03 | | |
| ST2 | State School Part 2 | 0.8169543533 | $566,172 | $566,172 | $462.54 | | |
| SWHIDPRBD | P & R S Whidbey BOND | 0.0152817568 | $566,172 | $566,172 | $8.65 | | |
| SWHIDPRBD2 | P & R S Whidbey BOND2 | 0.0138911264 | $566,172 | $566,172 | $7.86 | | |
| SWHIDPRMT | P & R S Whidbey GEN | 0.2053334452 | $566,172 | $566,172 | $116.25 | | |
| | Total Tax Rate: | 6.6934522006 | | | | | |
| | | | | Taxes w/Current Exemptions: | $3,789.64 | | |
| | | | | Taxes w/o Exemptions: | $3,789.64 | | |
Improvement / Building
| Improvement #1: | RESIDENTIAL | State Code: | Y | 2075.0 sqft | Value: | $321,172 |
| Bathrooms: | 2.5 | Bedrooms: | 3 | | Ceiling: | DRYWALL PAINTED | Cooling: | HEAT PUMP/CONV/V | | Exterior Wall/Cover: | CEMENT FIBER | Floor Covering: | CARPET/VINYL 20-80 | | Floor Structure: | WOOD W/SUBFLOOR | Foundation: | CONCRETE | | Interior Finish: | DRYWALL PAINT | Plumbing Fixture Cnt: | 10 | | Roof Slope: | 6" IN 12" | Roof Structure/Cover: | CJ ASPHALT |
|
| | Type | Description | Class CD | Sub Class CD | Year Built | Area |
| | BAS | BASE/MAIN FLOOR | 3 | 0 | 1990 | 1415.0 |
| | OP1 | OPEN PORCH SLAB | 3 | 0 | 1990 | 122.0 |
| | UPS | UPPER STORY | 3 | 0 | 1990 | 660.0 |
| | OWP | OPEN WOOD PORCH W/STEPS | 3 | 0 | 1990 | 200.0 |
| | OWP | OPEN WOOD PORCH W/STEPS | 3 | 0 | 1990 | 160.0 |
| | OWC | OPEN WOOD PORCH W/STEPS/ROOF/C | 3 | 0 | 1990 | 78.0 |
| | oPOL | POLE BARN | 3 | 0 | 1990 | 0.0 |
| | oUTI | UTILITY | 3 | 0 | 1990 | 0.0 |
Sketch
Property Image
Land
| 1 | 16 | AC (00.51-01.00) | 0.0000 | 0.00 | 0.00 | 0.00 | 1.00 | $245,000 | $0 |
Roll Value History
| 2026 | N/A | N/A | N/A | N/A | N/A |
| 2025 | $321,172 | $245,000 | $0 | $566,172 | $566,172 |
| 2024 | $325,156 | $260,000 | $0 | $585,156 | $585,156 |
| 2023 | $329,140 | $280,000 | $0 | $609,140 | $609,140 |
| 2022 | $339,915 | $240,000 | $0 | $579,915 | $579,915 |
| 2021 | $253,808 | $150,000 | $0 | $403,808 | $403,808 |
| 2020 | $248,330 | $130,000 | $0 | $378,330 | $378,330 |
| 2019 | $192,353 | $160,000 | $0 | $352,353 | $352,353 |
| 2018 | $192,878 | $150,000 | $0 | $342,878 | $342,878 |
| 2017 | $193,930 | $120,000 | $0 | $313,930 | $313,930 |
| 2016 | $196,036 | $90,000 | $0 | $286,036 | $286,036 |
| 2015 | $198,141 | $65,000 | $0 | $263,141 | $263,141 |
| 2014 | $200,245 | $65,000 | $0 | $265,245 | $265,245 |
| 2013 | $208,163 | $65,000 | $0 | $273,163 | $273,163 |
| 2012 | $210,411 | $68,850 | $0 | $279,261 | $279,261 |
| 2011 | $212,660 | $81,000 | $0 | $293,660 | $293,660 |
| 2010 | $221,799 | $90,000 | $0 | $311,799 | $311,799 |
| 2009 | $231,034 | $120,000 | $0 | $351,034 | $351,034 |
| 2008 | $234,706 | $120,000 | $0 | $354,706 | $354,706 |
| 2007 | $222,865 | $120,000 | $0 | $342,865 | $342,865 |
Deed and Sales History
| 1 | 01/27/2022 | WD | Warranty Deed | OTT, ALAN | COBER, BENJAMIN | | | $585,000.00 | 51952 | 4539700 |
| 2 | 12/27/2019 | SPWARDEED | Special Warranty Deed | MTGLQ INVESTORS LP | OTT, ALAN | | | $300,000.00 | 42155 | 4481568 |
| 3 | 07/18/2019 | SHERIFFD | Sheriff Deed | PETERSON, STEPHEN L | MTGLQ INVESTORS LP | | | $0.00 | 39608 | 4468497 |
| 4 | 03/21/2007 | WD | Warranty Deed | CARON, KEVIN | PETERSON, STEPHEN L | | | $385,000.00 | 70972 | 4197504 |
| 5 | 12/07/2005 | DECREE | Divorce Decree/Legal Separation | CARON, KEVIN | CARON, KEVIN | | | $0.00 | 60581 | 4162115 |
| 6 | 10/10/2002 | WD | Warranty Deed | SCHMID, WILLIAM H | CARON, KEVIN | | | $206,000.00 | 24091 | 4034098 |
| 7 | 06/01/1997 | WD | Warranty Deed | MCDONIE, E H | SCHMID, WILLIAM H | | | $154,000.00 | 72111 | 97009899 |
| 8 | 06/01/1993 | WD | Warranty Deed | MILLS, DUNCAN C | MCDONIE, E H | | | $135,000.00 | 32518 | 93013035 |
| 9 | 12/01/1990 | WD | Warranty Deed | , | MILLS, DUNCAN C | | | $119,950.00 | 6693 | 90023364 |
| 10 | 01/01/1900 | OTHER | Other - Misc. Documents | Unknown | , | | | $0.00 | 0 | 0 |
Payout Agreement
| No payout information available.. |