Property
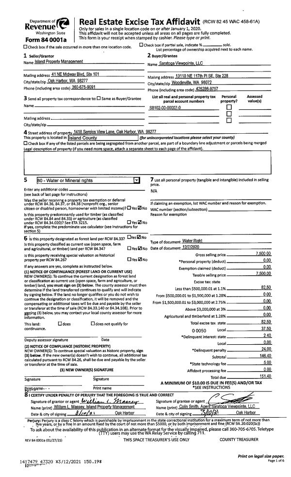
Account |
| Property ID: | 376300 | Abbreviated Legal Description: | SARATOGA SHORES LOTS 1 & 2 TGW & SUB EZ AF#87010046 AF#96005752 |
| Geographic ID: | S8095-00-00001-0 | Agent Code: | |
| Type: | Real | | |
| Tax Area: | 540 - APPRAISER-Stan/Cam Schl Dist, Special Dist, improved & less than 1 acre | Land Use Code | 11 |
| Open Space: | N | DFL | N |
| Historic Property: | N | Remodel Property: | N |
| Multi-Family Redevelopment: | N | | |
| Township: | | Section: | |
| Range: | |
Location |
| Address: | 2094 BREEZY POINT RD CAMANO ISLAND, WA 98282 | Mapsco: | |
| Neighborhood: | Cycle 5 | Map ID: | 532 |
| Neighborhood CD: | 5 |
Owner |
| Name: | SIVASUBRAMANIAN TTEE, SWAMINANTHAN | Owner ID: | 296740 |
| Mailing Address: | DIVYA SHEETAL KUMAR TTEE 7619 NE 16TH ST MEDINA, WA 98039 | % Ownership: | 100.0000000000% |
| | | Exemptions: | |
Taxes and Assessment Details
Values
| (+) Improvement Homesite Value: | + | $0 | |
| (+) Improvement Non-Homesite Value: | + | $1,772,551 | |
| (+) Land Homesite Value: | + | $0 | |
| (+) Land Non-Homesite Value: | + | $1,101,500 | |
| (+) Curr Use (HS): | + | $0 | $0 |
| (+) Curr Use (NHS): | + | $0 | $0 |
| | | -------------------------- | |
| (=) Market Value: | = | $2,874,051 | |
| (–) Productivity Loss: | – | $0 | |
| | | -------------------------- | |
| (=) Subtotal: | = | $2,874,051 | |
| (+) Senior Appraised Value: | + | $0 | |
| (+) Non-Senior Appraised Value: | + | $2,874,051 | |
| | | -------------------------- | |
| (=) Total Appraised Value: | = | $2,874,051 | |
| (–) Senior Exemption Loss: | – | $0 | |
| (–) Exemption Loss: | – | $0 | |
| | | -------------------------- | |
| (=) Taxable Value: | = | $2,874,051 | |
Taxing Jurisdiction
| Owner: | SIVASUBRAMANIAN TTEE, SWAMINANTHAN | | |
| % Ownership: | 100.0000000000% | | |
| Total Value: | $2,874,051 | | |
| Tax Area: | 540 - APPRAISER-Stan/Cam Schl Dist, Special Dist, improved & less than 1 acre |
| CF | Conservation Futures | 0.0316035091 | $2,874,051 | $2,874,051 | $90.83 | | |
| EMS1 | Fire & Rescue Dist #1 Camano GEN (EMS) | 0.3677864386 | $2,874,051 | $2,874,051 | $1,057.04 | | |
| FIRE1 | Fire & Rescue Dist #1 Camano GEN | 1.2502910536 | $2,874,051 | $2,874,051 | $3,593.40 | | |
| FIRE1BOND | Fire & Rescue Dist #1 Camano BOND | 0.1570001679 | $2,874,051 | $2,874,051 | $451.23 | | |
| CE | County Current Expense | 0.3708482477 | $2,874,051 | $2,874,051 | $1,065.84 | | |
| CR | County Roads | 0.4584763726 | $2,874,051 | $2,874,051 | $1,317.68 | | |
| LCIB | Library Sno-Isle BOND (Camano Island) | 0.0396325772 | $2,874,051 | $2,874,051 | $113.91 | | |
| LIB | Library Sno-Isle GEN | 0.3153421757 | $2,874,051 | $2,874,051 | $906.31 | | |
| SCH205_401 | School 205-401 Enrichment | 1.2698420524 | $2,874,051 | $2,874,051 | $3,649.59 | | |
| SCH205BOND | School 205-401 BOND | 0.9396497583 | $2,874,051 | $2,874,051 | $2,700.60 | | |
| ST | State School | 1.3035497053 | $2,874,051 | $2,874,051 | $3,746.47 | | |
| ST2 | State School Part 2 | 0.8169543533 | $2,874,051 | $2,874,051 | $2,347.97 | | |
| | Total Tax Rate: | 7.3209764117 | | | | | |
| | | | | Taxes w/Current Exemptions: | $21,040.87 | | |
| | | | | Taxes w/o Exemptions: | $21,040.87 | | |
Improvement / Building
| Improvement #1: | RESIDENTIAL | State Code: | Y | 5591.4 sqft | Value: | $1,772,551 |
| Bathrooms: | 4.75 | Bedrooms: | 3 | | Ceiling: | DRYWALL PAINTED | Exterior Wall/Cover: | CEMENT FIBER | | Floor Covering: | CERAMIC TILE/CPT 40-60 | Floor Structure: | SLAB ABOVE GRADE | | Foundation: | SLAB | Heating: | RADIANT FLOOR | | Interior Finish: | DRYWALL PAINT | Plumbing Fixture Cnt: | 24 | | Roof Slope: | 8" IN 12" | Roof Structure/Cover: | CJ ASPHALT |
|
| | Type | Description | Class CD | Sub Class CD | Year Built | Area |
| | BAS | BASE/MAIN FLOOR | 7 | 0 | 2007 | 2282.3 |
| | OP2 | OPEN PORCH W/STEPS | 7 | 0 | 2007 | 138.2 |
| | OP2 | OPEN PORCH W/STEPS | 7 | 0 | 2007 | 914.9 |
| | OP4 | OPEN PORCH W/CEILING-ROOF | 7 | 0 | 2007 | 479.5 |
| | OP4 | OPEN PORCH W/CEILING-ROOF | 7 | 0 | 2007 | 1719.6 |
| | BIG | BUILT IN GARAGE | 7 | 0 | 2007 | 1148.0 |
| | UTY | STORAGE/UTILITY | 7 | 0 | 2007 | 120.0 |
| | UPS | UPPER STORY | 7 | 0 | 2007 | 3309.1 |
| | UTY | STORAGE/UTILITY | 7 | 0 | 2007 | 160.0 |
| | OWP | OPEN WOOD PORCH W/STEPS | 7 | 0 | 2007 | 60.0 |
| | OWP | OPEN WOOD PORCH W/STEPS | 7 | 0 | 2007 | 60.0 |
Sketch
Property Image
Land
| 1 | LB | LOW BANK | 0.0000 | 0.00 | 150.00 | 0.00 | 1.00 | $1,100,000 | $0 |
| 2 | 55 | TIDES | 0.0000 | 0.00 | 150.00 | 0.00 | 1.00 | $1,500 | $0 |
Roll Value History
| 2026 | N/A | N/A | N/A | N/A | N/A |
| 2025 | $1,772,551 | $1,101,500 | $0 | $2,874,051 | $2,874,051 |
| 2024 | $1,787,448 | $1,101,500 | $0 | $2,888,948 | $2,888,948 |
| 2023 | $1,803,335 | $1,101,500 | $0 | $2,904,835 | $2,904,835 |
| 2022 | $1,645,551 | $1,101,500 | $0 | $2,747,051 | $2,747,051 |
| 2021 | $1,470,565 | $1,001,500 | $0 | $2,472,065 | $2,472,065 |
| 2020 | $1,209,120 | $901,500 | $0 | $2,110,620 | $2,110,620 |
| 2019 | $1,201,360 | $901,500 | $0 | $2,102,860 | $2,102,860 |
| 2018 | $1,204,765 | $901,500 | $0 | $2,106,265 | $2,106,265 |
| 2017 | $1,211,569 | $901,500 | $0 | $2,113,069 | $2,113,069 |
| 2016 | $1,225,186 | $901,500 | $0 | $2,126,686 | $2,126,686 |
| 2015 | $1,227,837 | $901,500 | $0 | $2,129,337 | $2,129,337 |
| 2014 | $1,241,174 | $901,500 | $0 | $2,142,674 | $2,142,674 |
| 2013 | $1,254,510 | $914,447 | $0 | $2,168,957 | $2,168,957 |
| 2012 | $1,267,848 | $914,447 | $0 | $2,182,295 | $2,182,295 |
| 2011 | $1,281,183 | $1,142,684 | $0 | $2,423,867 | $2,423,867 |
| 2010 | $1,275,532 | $1,142,684 | $0 | $2,418,216 | $2,418,216 |
| 2009 | $1,315,344 | $1,231,396 | $0 | $2,546,740 | $2,546,740 |
| 2008 | $1,332,566 | $1,231,396 | $0 | $2,563,962 | $2,563,962 |
| 2007 | $555,585 | $1,460,198 | $0 | $2,015,783 | $2,015,783 |
Deed and Sales History
| 1 | 11/04/2020 | WD | Warranty Deed | COTTER, WILLIAM R | SIVASUBRAMANIAN TTEE, SWAMINANTHAN | | | $3,150,000.00 | 45764 | 4502742 |
| 2 | 04/30/1998 | WD | Warranty Deed | BRACKEN, JOHN L | COTTER, WILLIAM R/DEBRA R | | | $682,500.00 | 81619 | 98008652 |
| 3 | 07/01/1997 | WD | Warranty Deed | MILLER, RUTH G | BRACKEN, JOHN L | | | $575,000.00 | 72580 | 97012219 |
| 4 | 07/01/1991 | QCD | Quit Claim Deed | MILLER, RUTH G | MILLER, RUTH G | | | $0.00 | 12588 | 91011057 |
| 5 | 05/01/1991 | OTHER | Other - Misc. Documents | MILLER, C M | MILLER, RUTH G | | | $0.00 | 64213 | 91000710 |
| 6 | 01/01/1900 | OTHER | Other - Misc. Documents | Unknown | COTTER, WILLIAM R | | | $0.00 | 81619 | 98008652 |
| 7 | 01/01/1900 | OTHER | Other - Misc. Documents | COTTER, WILLIAM R | MILLER, C M | | | $0.00 | 0 | 0 |
Payout Agreement
| No payout information available.. |