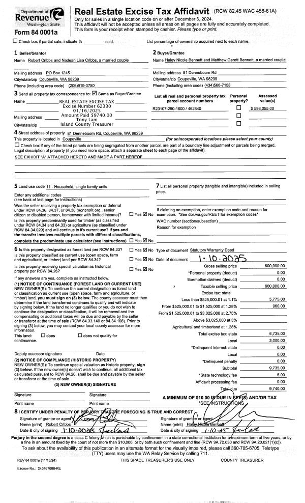
Property
Account |
| Property ID: | 376391 | Abbreviated Legal Description: | SARATOGA SHORES LOT 12 INCL TIDES |
| Geographic ID: | S8095-00-00012-0 | Agent Code: | |
| Type: | Real | | |
| Tax Area: | 540 - APPRAISER-Stan/Cam Schl Dist, Special Dist, improved & less than 1 acre | Land Use Code | 11 |
| Open Space: | N | DFL | N |
| Historic Property: | N | Remodel Property: | N |
| Multi-Family Redevelopment: | N | | |
| Township: | | Section: | |
| Range: | |
Location |
| Address: | 2124 OTTER LN CAMANO ISLAND, WA 98282 | Mapsco: | |
| Neighborhood: | Cycle 5 | Map ID: | 532 |
| Neighborhood CD: | 5 |
Owner |
| Name: | DOYLE, SCOTT A | Owner ID: | 313287 |
| Mailing Address: | SUSAN DOYLE 14842 NORTHEAST 192ND ST WOODINVILLE, WA 98072 | % Ownership: | 100.0000000000% |
| | | Exemptions: | |
Taxes and Assessment Details
Values
| (+) Improvement Homesite Value: | + | $0 | |
| (+) Improvement Non-Homesite Value: | + | $984,098 | |
| (+) Land Homesite Value: | + | $0 | |
| (+) Land Non-Homesite Value: | + | $951,000 | |
| (+) Curr Use (HS): | + | $0 | $0 |
| (+) Curr Use (NHS): | + | $0 | $0 |
| | | -------------------------- | |
| (=) Market Value: | = | $1,935,098 | |
| (–) Productivity Loss: | – | $0 | |
| | | -------------------------- | |
| (=) Subtotal: | = | $1,935,098 | |
| (+) Senior Appraised Value: | + | $0 | |
| (+) Non-Senior Appraised Value: | + | $1,935,098 | |
| | | -------------------------- | |
| (=) Total Appraised Value: | = | $1,935,098 | |
| (–) Senior Exemption Loss: | – | $0 | |
| (–) Exemption Loss: | – | $0 | |
| | | -------------------------- | |
| (=) Taxable Value: | = | $1,935,098 | |
Taxing Jurisdiction
| Owner: | DOYLE, SCOTT A | | |
| % Ownership: | 100.0000000000% | | |
| Total Value: | $1,935,098 | | |
| Tax Area: | 540 - APPRAISER-Stan/Cam Schl Dist, Special Dist, improved & less than 1 acre |
| CF | Conservation Futures | 0.0316035091 | $1,935,098 | $1,935,098 | $61.16 | | |
| EMS1 | Fire & Rescue Dist #1 Camano GEN (EMS) | 0.3677864386 | $1,935,098 | $1,935,098 | $711.70 | | |
| FIRE1 | Fire & Rescue Dist #1 Camano GEN | 1.2502910536 | $1,935,098 | $1,935,098 | $2,419.44 | | |
| FIRE1BOND | Fire & Rescue Dist #1 Camano BOND | 0.1570001679 | $1,935,098 | $1,935,098 | $303.81 | | |
| CE | County Current Expense | 0.3708482477 | $1,935,098 | $1,935,098 | $717.63 | | |
| CR | County Roads | 0.4584763726 | $1,935,098 | $1,935,098 | $887.20 | | |
| LCIB | Library Sno-Isle BOND (Camano Island) | 0.0396325772 | $1,935,098 | $1,935,098 | $76.69 | | |
| LIB | Library Sno-Isle GEN | 0.3153421757 | $1,935,098 | $1,935,098 | $610.22 | | |
| SCH205_401 | School 205-401 Enrichment | 1.2698420524 | $1,935,098 | $1,935,098 | $2,457.27 | | |
| SCH205BOND | School 205-401 BOND | 0.9396497583 | $1,935,098 | $1,935,098 | $1,818.31 | | |
| ST | State School | 1.3035497053 | $1,935,098 | $1,935,098 | $2,522.50 | | |
| ST2 | State School Part 2 | 0.8169543533 | $1,935,098 | $1,935,098 | $1,580.89 | | |
| | Total Tax Rate: | 7.3209764117 | | | | | |
| | | | | Taxes w/Current Exemptions: | $14,166.82 | | |
| | | | | Taxes w/o Exemptions: | $14,166.82 | | |
Improvement / Building
| Improvement #1: | RESIDENTIAL | State Code: | Y | 2598.3 sqft | Value: | $853,276 |
| Bathrooms: | 2.5 | Bedrooms: | 3 | | Ceiling: | DRYWALL PAINTED | Exterior Wall/Cover: | SHINGLE | | Floor Covering: | CERAMIC TILE/HWD 40/60 | Floor Structure: | WOOD W/SUBFLOOR | | Foundation: | CONCRETE | Heating: | RADIANT FLOOR | | Interior Finish: | DRYWALL PAINT | Plumbing Fixture Cnt: | 14 | | Roof Slope: | 8" IN 12" | Roof Structure/Cover: | CJ ALUMINIUM HEAVY |
|
| | Type | Description | Class CD | Sub Class CD | Year Built | Area |
| | BAS | BASE/MAIN FLOOR | 5 | 0 | 1979 | 1920.3 |
| | UTY | STORAGE/UTILITY | 5 | 0 | 1979 | 503.9 |
| | AGR | ATTACHED GARAGE | 5 | 0 | 1979 | 283.5 |
| | UPS | UPPER STORY | 5 | 0 | 1979 | 678.0 |
| | OWP | OPEN WOOD PORCH W/STEPS | 5 | 0 | 1979 | 409.0 |
| | OWC | OPEN WOOD PORCH W/STEPS/ROOF/C | 5 | 0 | 1979 | 301.3 |
| | OWP | OPEN WOOD PORCH W/STEPS | 5 | 0 | 1979 | 66.2 |
| | OWC | OPEN WOOD PORCH W/STEPS/ROOF/C | 5 | 0 | 1979 | 73.0 |
| | oELE | ELEVATOR | 5 | 0 | 1979 | 0.0 |
| Improvement #2: | RESIDENTIAL | State Code: | Y | 480.0 sqft | Value: | $130,822 |
| Bathrooms: | 1 | Bedrooms: | 1 | | Ceiling: | DRYWALL PAINTED | Exterior Wall/Cover: | SHINGLE | | Floor Covering: | COLORED CONCRETE | Floor Structure: | SLAB ON GRADE | | Foundation: | SLAB | Heating: | BASEBOARD ELECTRIC | | Interior Finish: | DRYWALL PAINT | Plumbing Fixture Cnt: | 5 | | Roof Slope: | 4" IN 12" | Roof Structure/Cover: | CJ ALUMINIUM HEAVY |
|
| | Type | Description | Class CD | Sub Class CD | Year Built | Area |
| | BAS | BASE/MAIN FLOOR | 4 | 0 | 1979 | 480.0 |
| | OP1 | OPEN PORCH SLAB | 4 | 0 | 1979 | 108.0 |
Sketch
Property Image
Land
| 1 | LB | LOW BANK | 0.0000 | 0.00 | 100.00 | 0.00 | 1.00 | $950,000 | $0 |
| 2 | 55 | TIDES | 0.0000 | 0.00 | 100.00 | 0.00 | 1.00 | $1,000 | $0 |
Roll Value History
| 2026 | N/A | N/A | N/A | N/A | N/A |
| 2025 | $984,098 | $951,000 | $0 | $1,935,098 | $1,935,098 |
| 2024 | $748,286 | $901,000 | $0 | $1,649,286 | $1,649,286 |
| 2023 | $756,766 | $901,000 | $0 | $1,657,766 | $1,657,766 |
| 2022 | $691,033 | $901,000 | $0 | $1,592,033 | $1,592,033 |
| 2021 | $564,160 | $801,000 | $0 | $1,365,160 | $1,365,160 |
| 2020 | $549,861 | $601,000 | $0 | $1,150,861 | $1,150,861 |
| 2019 | $436,460 | $601,000 | $0 | $1,037,460 | $1,037,460 |
| 2018 | $437,670 | $601,000 | $0 | $1,038,670 | $1,038,670 |
| 2017 | $440,089 | $601,000 | $0 | $1,041,089 | $1,041,089 |
| 2016 | $444,925 | $601,000 | $0 | $1,045,925 | $1,045,925 |
| 2015 | $423,372 | $601,000 | $0 | $1,024,372 | $1,024,372 |
| 2014 | $427,763 | $601,000 | $0 | $1,028,763 | $1,028,763 |
| 2013 | $432,153 | $458,103 | $0 | $890,256 | $890,256 |
| 2012 | $436,545 | $458,103 | $0 | $894,648 | $894,648 |
| 2011 | $400,638 | $572,379 | $0 | $973,017 | $973,017 |
| 2010 | $328,882 | $572,379 | $0 | $901,261 | $901,261 |
| 2009 | $218,275 | $616,797 | $0 | $835,072 | $835,072 |
| 2008 | $221,255 | $616,797 | $0 | $838,052 | $838,052 |
| 2007 | $224,391 | $731,180 | $0 | $955,571 | $955,571 |
Deed and Sales History
| 1 | 07/22/2024 | WD | Warranty Deed | GALANTE, RAYMOND M | DOYLE, SCOTT A | | | $2,600,000.00 | 60748 | 4575078 |
| 2 | 11/01/1978 | OTHER | Other - Misc. Documents | Unknown | GALANTE, RAYMOND M | | | $55,000.00 | 85682 | 343333 |
Payout Agreement
| No payout information available.. |