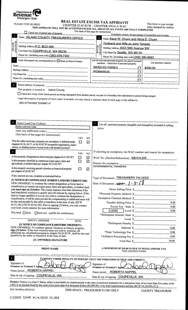
Property
Account |
| Property ID: | 376408 | Abbreviated Legal Description: | SARATOGA SHORES LOTS 13, 14 & W/2 LOT 15 INCL ADJ TIDES |
| Geographic ID: | S8095-00-00013-0 | Agent Code: | |
| Type: | Real | | |
| Tax Area: | 540 - APPRAISER-Stan/Cam Schl Dist, Special Dist, improved & less than 1 acre | Land Use Code | 11 |
| Open Space: | N | DFL | N |
| Historic Property: | N | Remodel Property: | N |
| Multi-Family Redevelopment: | N | | |
| Township: | | Section: | |
| Range: | |
Location |
| Address: | 2172 BREEZY POINT RD CAMANO ISLAND, WA 98282 | Mapsco: | |
| Neighborhood: | Cycle 5 | Map ID: | 532 |
| Neighborhood CD: | 5 |
Owner |
| Name: | OTTER LANE, LLC | Owner ID: | 283392 |
| Mailing Address: | 6129 66TH DR SE SNOHOMISH, WA 98290 | % Ownership: | 100.0000000000% |
| | | Exemptions: | |
Taxes and Assessment Details
Values
| (+) Improvement Homesite Value: | + | $0 | |
| (+) Improvement Non-Homesite Value: | + | $319,514 | |
| (+) Land Homesite Value: | + | $0 | |
| (+) Land Non-Homesite Value: | + | $1,014,490 | |
| (+) Curr Use (HS): | + | $0 | $0 |
| (+) Curr Use (NHS): | + | $0 | $0 |
| | | -------------------------- | |
| (=) Market Value: | = | $1,334,004 | |
| (–) Productivity Loss: | – | $0 | |
| | | -------------------------- | |
| (=) Subtotal: | = | $1,334,004 | |
| (+) Senior Appraised Value: | + | $0 | |
| (+) Non-Senior Appraised Value: | + | $1,334,004 | |
| | | -------------------------- | |
| (=) Total Appraised Value: | = | $1,334,004 | |
| (–) Senior Exemption Loss: | – | $0 | |
| (–) Exemption Loss: | – | $0 | |
| | | -------------------------- | |
| (=) Taxable Value: | = | $1,334,004 | |
Taxing Jurisdiction
| Owner: | OTTER LANE, LLC | | |
| % Ownership: | 100.0000000000% | | |
| Total Value: | $1,334,004 | | |
| Tax Area: | 540 - APPRAISER-Stan/Cam Schl Dist, Special Dist, improved & less than 1 acre |
| CF | Conservation Futures | 0.0316035091 | $1,334,004 | $1,334,004 | $42.16 | | |
| EMS1 | Fire & Rescue Dist #1 Camano GEN (EMS) | 0.3677864386 | $1,334,004 | $1,334,004 | $490.63 | | |
| FIRE1 | Fire & Rescue Dist #1 Camano GEN | 1.2502910536 | $1,334,004 | $1,334,004 | $1,667.89 | | |
| FIRE1BOND | Fire & Rescue Dist #1 Camano BOND | 0.1570001679 | $1,334,004 | $1,334,004 | $209.44 | | |
| CE | County Current Expense | 0.3708482477 | $1,334,004 | $1,334,004 | $494.71 | | |
| CR | County Roads | 0.4584763726 | $1,334,004 | $1,334,004 | $611.61 | | |
| LCIB | Library Sno-Isle BOND (Camano Island) | 0.0396325772 | $1,334,004 | $1,334,004 | $52.87 | | |
| LIB | Library Sno-Isle GEN | 0.3153421757 | $1,334,004 | $1,334,004 | $420.67 | | |
| SCH205_401 | School 205-401 Enrichment | 1.2698420524 | $1,334,004 | $1,334,004 | $1,693.97 | | |
| SCH205BOND | School 205-401 BOND | 0.9396497583 | $1,334,004 | $1,334,004 | $1,253.50 | | |
| ST | State School | 1.3035497053 | $1,334,004 | $1,334,004 | $1,738.94 | | |
| ST2 | State School Part 2 | 0.8169543533 | $1,334,004 | $1,334,004 | $1,089.82 | | |
| | Total Tax Rate: | 7.3209764117 | | | | | |
| | | | | Taxes w/Current Exemptions: | $9,766.21 | | |
| | | | | Taxes w/o Exemptions: | $9,766.21 | | |
Improvement / Building
| Improvement #1: | RESIDENTIAL | State Code: | Y | 2070.0 sqft | Value: | $319,514 |
| Bathrooms: | 2 | Bedrooms: | 3 | | Ceiling: | DRYWALL PAINTED | Exterior Wall/Cover: | WOOD SIDING | | Floor Covering: | CARPET/VINYL 80-20 | Floor Structure: | WOOD W/SUBFLOOR | | Foundation: | CONCRETE | Heating: | FHA OIL | | Interior Finish: | DRYWALL PAINT | Plumbing Fixture Cnt: | 10 | | Roof Slope: | 6" IN 12" | Roof Structure/Cover: | CJ ASPHALT |
|
| | Type | Description | Class CD | Sub Class CD | Year Built | Area |
| | BAS | BASE/MAIN FLOOR | 4 | 0 | 1954 | 2070.0 |
| | UB8 | BASEMENT UNFINISHED 8" | 4 | 0 | 1954 | 480.0 |
| | OP3 | OPEN PORCH W/ROOF | 4 | 0 | 1954 | 145.0 |
| | OP3 | OPEN PORCH W/ROOF | 4 | 0 | 1954 | 404.0 |
| | OP3 | OPEN PORCH W/ROOF | 4 | 0 | 1954 | 220.0 |
| | AGR | ATTACHED GARAGE | 4 | 0 | 1954 | 360.0 |
| | UTY | STORAGE/UTILITY | 4 | 0 | 1954 | 40.0 |
| | ENP | ENCLOSED PORCH | 4 | 0 | 1954 | 64.0 |
| | OCP | OPEN CARPORT | 4 | 0 | 1954 | 484.0 |
Sketch
Property Image
Land
| 1 | MB | MEDIUM BANK | 0.0000 | 0.00 | 150.00 | 0.00 | 1.00 | $1,012,000 | $0 |
| 2 | 55 | TIDES | 0.0000 | 0.00 | 249.00 | 0.00 | 1.00 | $2,490 | $0 |
Roll Value History
| 2026 | N/A | N/A | N/A | N/A | N/A |
| 2025 | $319,514 | $1,014,490 | $0 | $1,334,004 | $1,334,004 |
| 2024 | $324,906 | $1,014,490 | $0 | $1,339,396 | $1,339,396 |
| 2023 | $330,297 | $1,014,490 | $0 | $1,344,787 | $1,344,787 |
| 2022 | $303,973 | $902,490 | $0 | $1,206,463 | $1,206,463 |
| 2021 | $205,943 | $802,490 | $0 | $1,008,433 | $1,008,433 |
| 2020 | $202,283 | $802,490 | $0 | $1,004,773 | $1,004,773 |
| 2019 | $156,168 | $802,490 | $0 | $958,658 | $958,658 |
| 2018 | $156,861 | $802,490 | $0 | $959,351 | $959,351 |
| 2017 | $158,251 | $802,490 | $0 | $960,741 | $960,741 |
| 2016 | $161,028 | $802,490 | $0 | $963,518 | $963,518 |
| 2015 | $140,718 | $1,241,214 | $0 | $1,381,932 | $1,381,932 |
| 2014 | $143,474 | $1,241,214 | $0 | $1,384,688 | $1,384,688 |
| 2013 | $146,226 | $1,241,214 | $0 | $1,387,440 | $1,387,440 |
| 2012 | $148,981 | $1,241,214 | $0 | $1,390,195 | $1,390,195 |
| 2011 | $151,735 | $1,550,895 | $0 | $1,702,630 | $1,702,630 |
| 2010 | $169,503 | $1,550,895 | $0 | $1,720,398 | $1,720,398 |
| 2009 | $167,462 | $1,661,369 | $0 | $1,828,831 | $1,828,831 |
| 2008 | $170,112 | $1,661,369 | $0 | $1,831,481 | $1,831,481 |
| 2007 | $172,762 | $1,827,919 | $0 | $2,000,681 | $2,000,681 |
Deed and Sales History
| 1 | 12/21/2017 | QCD | Quit Claim Deed | WEGNER, GREG R | OTTER LANE, LLC | | | $0.00 | 32395 | 4436343 |
| 2 | 12/06/2017 | WD | Warranty Deed | WEGNER, GARY A | WEGNER, GREG R | | | $633,333.00 | 32282 | 4435784 |
| 3 | 11/01/2017 | QCD | Quit Claim Deed | WEGNER, MELBA J | WEGNER, GARY A | | | $0.00 | 31834 | 4433700 |
| 4 | 03/01/1994 | PRD | Personal Representatives Deed | WEGNER, HERBERT E | WEGNER, MELBA J | | | $0.00 | 40993 | 94006450 |
| 5 | 05/01/1985 | WD | Warranty Deed | WEGNER, HERBERT E | WEGNER, HERBERT E | | | $300,000.00 | 51291 | 85005283 |
| 6 | 05/01/1985 | QCD | Quit Claim Deed | LOFQUIST, HERBERT F | WEGNER, HERBERT E | | | $0.00 | 51530 | 85006165 |
| 7 | 01/01/1900 | OTHER | Other - Misc. Documents | Unknown | LOFQUIST, HERBERT F | | | $0.00 | 0 | 0 |
Payout Agreement
| No payout information available.. |