Property
Account |
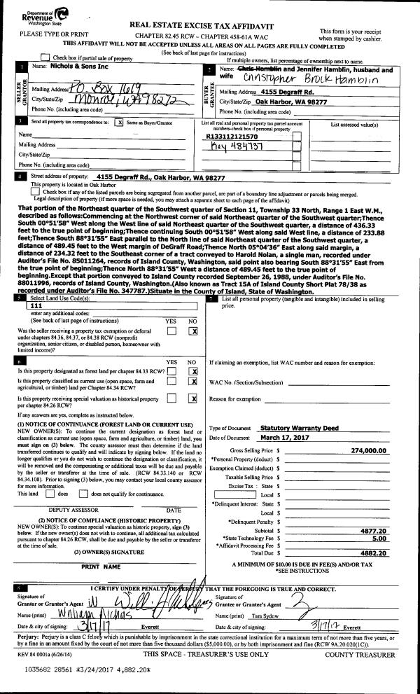
| Property ID: | 376499 | Abbreviated Legal Description: | SARATOGA SHORES LOT 27 |
| Geographic ID: | S8095-00-00027-0 | Agent Code: | |
| Type: | Real | | |
| Tax Area: | 540 - APPRAISER-Stan/Cam Schl Dist, Special Dist, improved & less than 1 acre | Land Use Code | 11 |
| Open Space: | N | DFL | N |
| Historic Property: | N | Remodel Property: | Y |
| Multi-Family Redevelopment: | N | | |
| Township: | | Section: | |
| Range: | |
Location |
| Address: | 383 VINE ST CAMANO ISLAND, WA 98282 | Mapsco: | |
| Neighborhood: | Cycle 5 | Map ID: | 535 |
| Neighborhood CD: | 5 |
Owner |
| Name: | PATE, SCOTT T | Owner ID: | 278864 |
| Mailing Address: | LISA D PATE 383 VINE ST CAMANO ISLAND, WA 98282 | % Ownership: | 100.0000000000% |
| | | Exemptions: | |
Taxes and Assessment Details
Values
| (+) Improvement Homesite Value: | + | $0 | |
| (+) Improvement Non-Homesite Value: | + | $839,499 | |
| (+) Land Homesite Value: | + | $0 | |
| (+) Land Non-Homesite Value: | + | $400,000 | |
| (+) Curr Use (HS): | + | $0 | $0 |
| (+) Curr Use (NHS): | + | $0 | $0 |
| | | -------------------------- | |
| (=) Market Value: | = | $1,239,499 | |
| (–) Productivity Loss: | – | $0 | |
| | | -------------------------- | |
| (=) Subtotal: | = | $1,239,499 | |
| (+) Senior Appraised Value: | + | $0 | |
| (+) Non-Senior Appraised Value: | + | $1,239,499 | |
| | | -------------------------- | |
| (=) Total Appraised Value: | = | $1,239,499 | |
| (–) Senior Exemption Loss: | – | $0 | |
| (–) Exemption Loss: | – | $0 | |
| | | -------------------------- | |
| (=) Taxable Value: | = | $1,239,499 | |
Taxing Jurisdiction
| Owner: | PATE, SCOTT T | | |
| % Ownership: | 100.0000000000% | | |
| Total Value: | $1,239,499 | | |
| Tax Area: | 540 - APPRAISER-Stan/Cam Schl Dist, Special Dist, improved & less than 1 acre |
| CF | Conservation Futures | 0.0316035091 | $1,239,499 | $1,239,499 | $39.17 | | |
| EMS1 | Fire & Rescue Dist #1 Camano GEN (EMS) | 0.3677864386 | $1,239,499 | $1,239,499 | $455.87 | | |
| FIRE1 | Fire & Rescue Dist #1 Camano GEN | 1.2502910536 | $1,239,499 | $1,239,499 | $1,549.73 | | |
| FIRE1BOND | Fire & Rescue Dist #1 Camano BOND | 0.1570001679 | $1,239,499 | $1,239,499 | $194.60 | | |
| CE | County Current Expense | 0.3708482477 | $1,239,499 | $1,239,499 | $459.67 | | |
| CR | County Roads | 0.4584763726 | $1,239,499 | $1,239,499 | $568.28 | | |
| LCIB | Library Sno-Isle BOND (Camano Island) | 0.0396325772 | $1,239,499 | $1,239,499 | $49.12 | | |
| LIB | Library Sno-Isle GEN | 0.3153421757 | $1,239,499 | $1,239,499 | $390.87 | | |
| SCH205_401 | School 205-401 Enrichment | 1.2698420524 | $1,239,499 | $1,239,499 | $1,573.97 | | |
| SCH205BOND | School 205-401 BOND | 0.9396497583 | $1,239,499 | $1,239,499 | $1,164.69 | | |
| ST | State School | 1.3035497053 | $1,239,499 | $1,239,499 | $1,615.75 | | |
| ST2 | State School Part 2 | 0.8169543533 | $1,239,499 | $1,239,499 | $1,012.61 | | |
| | Total Tax Rate: | 7.3209764117 | | | | | |
| | | | | Taxes w/Current Exemptions: | $9,074.33 | | |
| | | | | Taxes w/o Exemptions: | $9,074.33 | | |
Improvement / Building
| Improvement #1: | RESIDENTIAL | State Code: | Y | 2564.0 sqft | Value: | $562,549 |
| Bathrooms: | 2.5 | Bedrooms: | 3 | | Ceiling: | BEAM PAINTED | Exterior Wall/Cover: | CEMENT FIBER | | Floor Covering: | HARDWOOD 100% | Floor Structure: | WOOD W/SUBFLOOR | | Foundation: | CONCRETE | Heating: | FHA ELECTRIC | | Interior Finish: | DRYWALL PAINT | Plumbing Fixture Cnt: | 14 | | Roof Slope: | 5" IN 12" | Roof Structure/Cover: | BEAM ASPHALT |
|
| | Type | Description | Class CD | Sub Class CD | Year Built | Area |
| | BAS | BASE/MAIN FLOOR | 4 | 0 | 1989 | 1515.0 |
| | UB8 | BASEMENT UNFINISHED 8" | 4 | 0 | 1989 | 394.0 |
| | AGR | ATTACHED GARAGE | 4 | 0 | 1989 | 864.0 |
| | OWP | OPEN WOOD PORCH W/STEPS | 4 | 0 | 1989 | 419.5 |
| | DWN | DOWNSTAIRS LIVING AREA | 4 | 0 | 1989 | 1049.0 |
| Improvement #2: | RESIDENTIAL | State Code: | Y | 1361.7 sqft | Value: | $276,950 |
| Bathrooms: | 1.5 | Bedrooms: | 1 | | Ceiling: | BEAM PAINTED | Cooling: | HEAT PUMP/CONV/V | | Exterior Wall/Cover: | CEMENT FIBER | Floor Covering: | VINYL TILE | | Floor Structure: | WOOD W/SUBFLOOR | Foundation: | CONCRETE | | Interior Finish: | DRYWALL PAINT | Plumbing Fixture Cnt: | 9 | | Roof Slope: | 5" IN 12" | Roof Structure/Cover: | BEAM ALUMINUM HEAVY |
|
| | Type | Description | Class CD | Sub Class CD | Year Built | Area |
| | BAS | BASE/MAIN FLOOR | 4 | 0 | 2020 | 1361.7 |
| | AGR | ATTACHED GARAGE | 4 | 0 | 2020 | 426.0 |
| | UTY | STORAGE/UTILITY | 4 | 0 | 2020 | 159.7 |
Sketch
Property Image
Land
| 1 | HB | HIGH BLUFF | 0.7460 | 32495.76 | 100.00 | 0.00 | 1.00 | $400,000 | $0 |
Roll Value History
| 2026 | N/A | N/A | N/A | N/A | N/A |
| 2025 | $839,499 | $400,000 | $0 | $1,239,499 | $1,239,499 |
| 2024 | $835,009 | $400,000 | $0 | $1,235,009 | $1,235,009 |
| 2023 | $845,447 | $400,000 | $0 | $1,245,447 | $1,245,447 |
| 2022 | $781,476 | $400,000 | $0 | $1,181,476 | $1,181,476 |
| 2021 | $436,293 | $350,000 | $0 | $786,293 | $786,293 |
| 2020 | $327,505 | $300,000 | $0 | $627,505 | $627,505 |
| 2019 | $256,070 | $300,000 | $0 | $556,070 | $556,070 |
| 2018 | $256,837 | $300,000 | $0 | $556,837 | $556,837 |
| 2017 | $258,376 | $300,000 | $0 | $558,376 | $558,376 |
| 2016 | $240,708 | $300,000 | $0 | $540,708 | $540,708 |
| 2015 | $253,885 | $300,000 | $0 | $553,885 | $553,885 |
| 2014 | $257,262 | $300,000 | $0 | $557,262 | $557,262 |
| 2013 | $260,638 | $264,056 | $0 | $524,694 | $524,694 |
| 2012 | $264,015 | $264,056 | $0 | $528,071 | $528,071 |
| 2011 | $267,394 | $330,070 | $0 | $597,464 | $597,464 |
| 2010 | $282,952 | $402,519 | $0 | $685,471 | $685,471 |
| 2009 | $294,192 | $432,816 | $0 | $727,008 | $727,008 |
| 2008 | $297,733 | $340,070 | $0 | $637,803 | $637,803 |
| 2007 | $301,309 | $380,878 | $0 | $682,187 | $682,187 |
Deed and Sales History
| 1 | 02/23/2017 | WD | Warranty Deed | SANFORD, LLOYD B | PATE, SCOTT T | | | $550,000.00 | 28384 | 4418624 |
| 2 | 12/27/2006 | WD | Warranty Deed | DUERDEN, RALPH C | SANFORD, LLOYD B | | | $700,000.00 | 65392 | 4190499 |
| 3 | 05/01/1988 | WD | Warranty Deed | MACDONALD, ANGUS J | DUERDEN, RALPH C | | | $39,000.00 | 81743 | 88006471 |
| 4 | 01/01/1900 | OTHER | Other - Misc. Documents | Unknown | MACDONALD, ANGUS J | | | $0.00 | 0 | 0 |
Payout Agreement
| No payout information available.. |