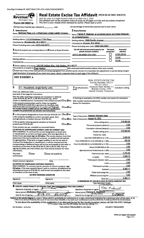
Property
Account |
| Property ID: | 376701 | Abbreviated Legal Description: | SARATOGA VISTA LOT 2 BLK 1 |
| Geographic ID: | S8105-00-01002-0 | Agent Code: | |
| Type: | Real | | |
| Tax Area: | 542 - APPRAISER-Stan/Cam Schl Dist, Special Dist, improved, greater than 1 acre | Land Use Code | 11 |
| Open Space: | N | DFL | N |
| Historic Property: | N | Remodel Property: | N |
| Multi-Family Redevelopment: | N | | |
| Township: | | Section: | |
| Range: | |
Location |
| Address: | 2788 SOUTH CAMANO DR CAMANO ISLAND, WA 98282 | Mapsco: | |
| Neighborhood: | Cycle 5 | Map ID: | 859 |
| Neighborhood CD: | 5 |
Owner |
| Name: | KLEIN, FRED | Owner ID: | 288368 |
| Mailing Address: | ELLEN KLEIN 485 IRIS LN CAMANO ISLAND, WA 98282 | % Ownership: | 100.0000000000% |
| | | Exemptions: | |
Taxes and Assessment Details
Values
| (+) Improvement Homesite Value: | + | $0 | |
| (+) Improvement Non-Homesite Value: | + | $1 | |
| (+) Land Homesite Value: | + | $0 | |
| (+) Land Non-Homesite Value: | + | $40,000 | |
| (+) Curr Use (HS): | + | $0 | $0 |
| (+) Curr Use (NHS): | + | $0 | $0 |
| | | -------------------------- | |
| (=) Market Value: | = | $40,001 | |
| (–) Productivity Loss: | – | $0 | |
| | | -------------------------- | |
| (=) Subtotal: | = | $40,001 | |
| (+) Senior Appraised Value: | + | $0 | |
| (+) Non-Senior Appraised Value: | + | $40,001 | |
| | | -------------------------- | |
| (=) Total Appraised Value: | = | $40,001 | |
| (–) Senior Exemption Loss: | – | $0 | |
| (–) Exemption Loss: | – | $0 | |
| | | -------------------------- | |
| (=) Taxable Value: | = | $40,001 | |
Taxing Jurisdiction
| Owner: | KLEIN, FRED | | |
| % Ownership: | 100.0000000000% | | |
| Total Value: | $40,001 | | |
| Tax Area: | 542 - APPRAISER-Stan/Cam Schl Dist, Special Dist, improved, greater than 1 acre |
| CF | Conservation Futures | 0.0316035091 | $40,001 | $40,001 | $1.26 | | |
| EMS1 | Fire & Rescue Dist #1 Camano GEN (EMS) | 0.3677864386 | $40,001 | $40,001 | $14.71 | | |
| FIRE1 | Fire & Rescue Dist #1 Camano GEN | 1.2502910536 | $40,001 | $40,001 | $50.01 | | |
| FIRE1BOND | Fire & Rescue Dist #1 Camano BOND | 0.1570001679 | $40,001 | $40,001 | $6.28 | | |
| CE | County Current Expense | 0.3708482477 | $40,001 | $40,001 | $14.83 | | |
| CR | County Roads | 0.4584763726 | $40,001 | $40,001 | $18.34 | | |
| LCIB | Library Sno-Isle BOND (Camano Island) | 0.0396325772 | $40,001 | $40,001 | $1.59 | | |
| LIB | Library Sno-Isle GEN | 0.3153421757 | $40,001 | $40,001 | $12.61 | | |
| SCH205_401 | School 205-401 Enrichment | 1.2698420524 | $40,001 | $40,001 | $50.79 | | |
| SCH205BOND | School 205-401 BOND | 0.9396497583 | $40,001 | $40,001 | $37.59 | | |
| ST | State School | 1.3035497053 | $40,001 | $40,001 | $52.14 | | |
| ST2 | State School Part 2 | 0.8169543533 | $40,001 | $40,001 | $32.68 | | |
| | Total Tax Rate: | 7.3209764117 | | | | | |
| | | | | Taxes w/Current Exemptions: | $292.83 | | |
| | | | | Taxes w/o Exemptions: | $292.83 | | |
Improvement / Building
| Improvement #1: | MANUFACTURED HOME | State Code: | Y | 1560.0 sqft | Value: | $1 |
| Bathrooms: | 1 | Bedrooms: | 2 | | Ceiling: | PLASTER PAINTED | Cooling: | EVAP NO DUCT | | Exterior Wall/Cover: | VINYL | Floor Covering: | CARPET 100% | | Floor Structure: | SLAB ON GRADE | Foundation: | SLAB | | Heating: | FHA ELECTRIC | Interior Finish: | PLASTER | | Roof Slope: | FLAT | Roof Structure/Cover: | CJ ALUMINIUM HEAVY |
|
Sketch
Property Image
Land
| 1 | HB | HIGH BLUFF | 1.0800 | 47044.80 | 62.00 | 0.00 | 1.00 | $40,000 | $0 |
Roll Value History
| 2026 | N/A | N/A | N/A | N/A | N/A |
| 2025 | $1 | $40,000 | $0 | $40,001 | $40,001 |
| 2024 | $1 | $40,000 | $0 | $40,001 | $40,001 |
| 2023 | $1 | $25,000 | $0 | $25,001 | $25,001 |
| 2022 | $1 | $25,000 | $0 | $25,001 | $25,001 |
| 2021 | $1 | $50,000 | $0 | $50,001 | $50,001 |
| 2020 | $1 | $50,000 | $0 | $50,001 | $50,001 |
| 2019 | $1 | $50,000 | $0 | $50,001 | $50,001 |
| 2018 | $1 | $25,000 | $0 | $25,001 | $25,001 |
| 2017 | $1 | $25,000 | $0 | $25,001 | $25,001 |
| 2016 | $499 | $25,000 | $0 | $25,499 | $25,499 |
| 2015 | $1,000 | $25,000 | $0 | $26,000 | $26,000 |
| 2014 | $1,000 | $25,000 | $0 | $26,000 | $26,000 |
| 2013 | $5,972 | $26,892 | $0 | $32,864 | $32,864 |
| 2012 | $5,972 | $26,892 | $0 | $32,864 | $32,864 |
| 2011 | $5,972 | $33,615 | $0 | $39,587 | $39,587 |
| 2010 | $5,751 | $33,615 | $0 | $39,366 | $39,366 |
| 2009 | $7,578 | $33,615 | $0 | $41,193 | $41,193 |
| 2008 | $7,578 | $33,641 | $0 | $41,219 | $41,219 |
| 2007 | $6,082 | $61,501 | $0 | $67,583 | $67,583 |
Deed and Sales History
| 1 | 12/24/2018 | WD | Warranty Deed | CARLOS UNDIV 1/2 INT, SALLY S | KLEIN, FRED | | | $70,000.00 | 37148 | 4457271 |
| 2 | 08/01/1993 | OTHER | Other - Misc. Documents | CARLOS, SALLY S | CARLOS, SALLY S | | | $0.00 | 33032 | 0 |
| 3 | 07/01/1993 | WD | Warranty Deed | ANGEL, DONALD E | CARLOS, SALLY S | | | $0.00 | 33031 | 93015657 |
| 4 | 07/01/1989 | OTHER | Other - Misc. Documents | OSTERLOF, HOLGER | ANGEL, DONALD E | | | $1,746.00 | 92628 | 0 |
| 5 | 07/01/1989 | WD | Warranty Deed | ANGEL, DONALD E | ANGEL, DONALD E | | | $48,254.00 | 92629 | 89008883 |
| 6 | 01/01/1900 | OTHER | Other - Misc. Documents | Unknown | OSTERLOF, RACHEL | | | $0.00 | 0 | 0 |
| 7 | 01/01/1900 | OTHER | Other - Misc. Documents | OSTERLOF, RACHEL | OSTERLOF, HOLGER | | | $0.00 | 0 | 0 |
Payout Agreement
| No payout information available.. |