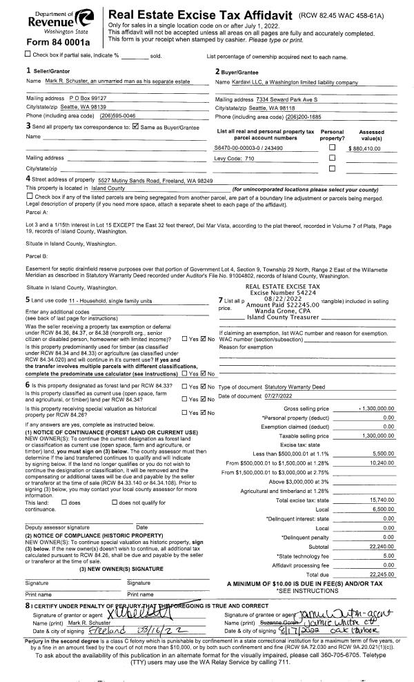
Property
Account |
| Property ID: | 376729 | Abbreviated Legal Description: | SARATOGA VISTA LOT 4 BLK 1 |
| Geographic ID: | S8105-00-01004-0 | Agent Code: | |
| Type: | Real | | |
| Tax Area: | 540 - APPRAISER-Stan/Cam Schl Dist, Special Dist, improved & less than 1 acre | Land Use Code | 11 |
| Open Space: | N | DFL | N |
| Historic Property: | N | Remodel Property: | N |
| Multi-Family Redevelopment: | N | | |
| Township: | | Section: | |
| Range: | |
Location |
| Address: | 2790 IRENELLA LN CAMANO ISLAND, WA 98282 | Mapsco: | |
| Neighborhood: | Cycle 5 | Map ID: | 859 |
| Neighborhood CD: | 5 |
Owner |
| Name: | WOODRUFF, THOMASM SCOTT | Owner ID: | 316120 |
| Mailing Address: | ERIN MICHELLE DEGRAW 2790 SOUTH IRENELLA LN CAMANO ISLAND, WA 98282 | % Ownership: | 100.0000000000% |
| | | Exemptions: | |
Taxes and Assessment Details
Values
| (+) Improvement Homesite Value: | + | $0 | |
| (+) Improvement Non-Homesite Value: | + | $195,067 | |
| (+) Land Homesite Value: | + | $0 | |
| (+) Land Non-Homesite Value: | + | $550,000 | |
| (+) Curr Use (HS): | + | $0 | $0 |
| (+) Curr Use (NHS): | + | $0 | $0 |
| | | -------------------------- | |
| (=) Market Value: | = | $745,067 | |
| (–) Productivity Loss: | – | $0 | |
| | | -------------------------- | |
| (=) Subtotal: | = | $745,067 | |
| (+) Senior Appraised Value: | + | $0 | |
| (+) Non-Senior Appraised Value: | + | $745,067 | |
| | | -------------------------- | |
| (=) Total Appraised Value: | = | $745,067 | |
| (–) Senior Exemption Loss: | – | $0 | |
| (–) Exemption Loss: | – | $0 | |
| | | -------------------------- | |
| (=) Taxable Value: | = | $745,067 | |
Taxing Jurisdiction
| Owner: | WOODRUFF, THOMASM SCOTT | | |
| % Ownership: | 100.0000000000% | | |
| Total Value: | $745,067 | | |
| Tax Area: | 540 - APPRAISER-Stan/Cam Schl Dist, Special Dist, improved & less than 1 acre |
| CF | Conservation Futures | 0.0316035091 | $745,067 | $745,067 | $23.55 | | |
| EMS1 | Fire & Rescue Dist #1 Camano GEN (EMS) | 0.3677864386 | $745,067 | $745,067 | $274.03 | | |
| FIRE1 | Fire & Rescue Dist #1 Camano GEN | 1.2502910536 | $745,067 | $745,067 | $931.55 | | |
| FIRE1BOND | Fire & Rescue Dist #1 Camano BOND | 0.1570001679 | $745,067 | $745,067 | $116.98 | | |
| CE | County Current Expense | 0.3708482477 | $745,067 | $745,067 | $276.31 | | |
| CR | County Roads | 0.4584763726 | $745,067 | $745,067 | $341.60 | | |
| LCIB | Library Sno-Isle BOND (Camano Island) | 0.0396325772 | $745,067 | $745,067 | $29.53 | | |
| LIB | Library Sno-Isle GEN | 0.3153421757 | $745,067 | $745,067 | $234.95 | | |
| SCH205_401 | School 205-401 Enrichment | 1.2698420524 | $745,067 | $745,067 | $946.12 | | |
| SCH205BOND | School 205-401 BOND | 0.9396497583 | $745,067 | $745,067 | $700.10 | | |
| ST | State School | 1.3035497053 | $745,067 | $745,067 | $971.23 | | |
| ST2 | State School Part 2 | 0.8169543533 | $745,067 | $745,067 | $608.69 | | |
| | Total Tax Rate: | 7.3209764117 | | | | | |
| | | | | Taxes w/Current Exemptions: | $5,454.64 | | |
| | | | | Taxes w/o Exemptions: | $5,454.64 | | |
Improvement / Building
| Improvement #1: | RESIDENTIAL | State Code: | Y | 1347.0 sqft | Value: | $195,067 |
| Bathrooms: | 2 | Bedrooms: | 2 | | Ceiling: | DRYWALL PAINTED | Exterior Wall/Cover: | PLY/HARDBOARD T-111 | | Floor Covering: | CARPET/VINYL 80-20 | Floor Structure: | WOOD W/SUBFLOOR | | Foundation: | CONCRETE | Heating: | WALL HEAT ELECTRIC | | Interior Finish: | DRYWALL PAINT | Plumbing Fixture Cnt: | 9 | | Roof Slope: | 6" IN 12" | Roof Structure/Cover: | BEAM ASPHALT |
|
| | Type | Description | Class CD | Sub Class CD | Year Built | Area |
| | BAS | BASE/MAIN FLOOR | 3 | 0 | 1972 | 817.0 |
| | BAW | BALCONY WOOD RAIL | 3 | 0 | 1972 | 50.0 |
| | OWP | OPEN WOOD PORCH W/STEPS | 3 | 0 | 1972 | 366.6 |
| | UPH | HALF STORY | 3 | 0 | 1972 | 530.0 |
Sketch
Property Image
Land
| 1 | HB | HIGH BLUFF | 0.5086 | 22154.62 | 60.00 | 0.00 | 1.00 | $550,000 | $0 |
Roll Value History
| 2026 | N/A | N/A | N/A | N/A | N/A |
| 2025 | $195,067 | $550,000 | $0 | $745,067 | $745,067 |
| 2024 | $197,730 | $550,000 | $0 | $747,730 | $747,730 |
| 2023 | $200,393 | $550,000 | $0 | $750,393 | $750,393 |
| 2022 | $183,865 | $500,000 | $0 | $683,865 | $683,865 |
| 2021 | $142,417 | $300,000 | $0 | $442,417 | $442,417 |
| 2020 | $138,933 | $330,000 | $0 | $468,933 | $468,933 |
| 2019 | $99,839 | $350,000 | $0 | $449,839 | $449,839 |
| 2018 | $100,189 | $350,000 | $0 | $450,189 | $450,189 |
| 2017 | $100,843 | $300,000 | $0 | $400,843 | $400,843 |
| 2016 | $102,243 | $300,000 | $0 | $402,243 | $402,243 |
| 2015 | $82,164 | $250,000 | $0 | $332,164 | $332,164 |
| 2014 | $83,581 | $250,000 | $0 | $333,581 | $333,581 |
| 2013 | $84,997 | $188,396 | $0 | $273,393 | $273,393 |
| 2012 | $86,413 | $188,396 | $0 | $274,809 | $274,809 |
| 2011 | $87,831 | $235,495 | $0 | $323,326 | $323,326 |
| 2010 | $97,612 | $235,495 | $0 | $333,107 | $333,107 |
| 2009 | $94,674 | $282,272 | $0 | $376,946 | $376,946 |
| 2008 | $94,674 | $179,928 | $0 | $274,602 | $274,602 |
| 2007 | $96,004 | $217,713 | $0 | $313,717 | $313,717 |
Deed and Sales History
| 1 | 04/07/2025 | WD | Warranty Deed | 2790 IRENELLA, LLC | WOODRUFF, THOMASM SCOTT | | | $750,000.00 | 63135 | 4584500 |
| 2 | 05/04/2021 | QCD | Quit Claim Deed | LORD, JAMES M | 2790 IRENELLA, LLC | | | $0.00 | 48443 | 4520476 |
| 3 | 06/01/1995 | WD | Warranty Deed | MOORE, CHADLY S | LORD, JAMES M | | | $200,000.00 | 52026 | 95009419 |
| 4 | 05/01/1987 | WD | Warranty Deed | HITCHCOCK, PAUL H | MOORE, CHADLY S | | | $89,000.00 | 71453 | 87006992 |
| 5 | 01/01/1983 | WD | Warranty Deed | RAINIER, ROBERT C | HITCHCOCK, PAUL H | | | $81,000.00 | 30181 | 405132 |
| 6 | 05/01/1980 | EXECUTORD | Executor Deed | POWELL, ROBERT D | RAINIER, ROBERT C | | | $66,000.00 | 1880 | 369481 |
| 7 | 01/01/1900 | OTHER | Other - Misc. Documents | Unknown | POWELL, ROBERT D | | | $0.00 | 0 | 0 |
Payout Agreement
| No payout information available.. |