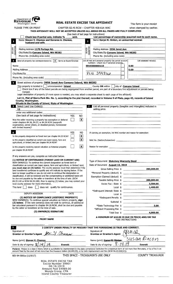
Property
Account |
| Property ID: | 376952 | Abbreviated Legal Description: | SCATCHET HEAD #1 LOT 4 BLK 1 PT DRAINFIELD FOR 01001-0 AF#90011373 |
| Geographic ID: | S8110-00-01004-0 | Agent Code: | |
| Type: | Real | | |
| Tax Area: | 740 - APPRAISER-S Whid Schl Dist, Special District, improved & less than 1 acre | Land Use Code | 11 |
| Open Space: | N | DFL | N |
| Historic Property: | N | Remodel Property: | N |
| Multi-Family Redevelopment: | N | | |
| Township: | | Section: | |
| Range: | |
Location |
| Address: | 7815 SONGBIRD WAY CLINTON, WA 98236 | Mapsco: | |
| Neighborhood: | Cycle 4 | Map ID: | 697 |
| Neighborhood CD: | 4 |
Owner |
| Name: | JONES, VERNON R | Owner ID: | 290615 |
| Mailing Address: | MARSHA A JONES 7815 SONGBIRD WAY CLINTON, WA 98236 | % Ownership: | 100.0000000000% |
| | | Exemptions: | |
Taxes and Assessment Details
Values
| (+) Improvement Homesite Value: | + | $0 | |
| (+) Improvement Non-Homesite Value: | + | $257,665 | |
| (+) Land Homesite Value: | + | $0 | |
| (+) Land Non-Homesite Value: | + | $210,000 | |
| (+) Curr Use (HS): | + | $0 | $0 |
| (+) Curr Use (NHS): | + | $0 | $0 |
| | | -------------------------- | |
| (=) Market Value: | = | $467,665 | |
| (–) Productivity Loss: | – | $0 | |
| | | -------------------------- | |
| (=) Subtotal: | = | $467,665 | |
| (+) Senior Appraised Value: | + | $0 | |
| (+) Non-Senior Appraised Value: | + | $467,665 | |
| | | -------------------------- | |
| (=) Total Appraised Value: | = | $467,665 | |
| (–) Senior Exemption Loss: | – | $0 | |
| (–) Exemption Loss: | – | $0 | |
| | | -------------------------- | |
| (=) Taxable Value: | = | $467,665 | |
Taxing Jurisdiction
| Owner: | JONES, VERNON R | | |
| % Ownership: | 100.0000000000% | | |
| Total Value: | $467,665 | | |
| Tax Area: | 740 - APPRAISER-S Whid Schl Dist, Special District, improved & less than 1 acre |
| CF | Conservation Futures | 0.0316035091 | $467,665 | $467,665 | $14.78 | | |
| FIRE3 | Fire & Rescue Dist #3 S Whidbey GEN | 1.2004855531 | $467,665 | $467,665 | $561.43 | | |
| HOBOND | Hospital BOND | 0.1910887512 | $467,665 | $467,665 | $89.37 | | |
| HOGEN | Hospital GEN | 0.3902502903 | $467,665 | $467,665 | $182.51 | | |
| CE | County Current Expense | 0.3708482477 | $467,665 | $467,665 | $173.43 | | |
| CR | County Roads | 0.4584763726 | $467,665 | $467,665 | $214.41 | | |
| ISLANDEMS | Hospital GEN (EMS) | 0.5000000000 | $467,665 | $467,665 | $233.83 | | |
| LIB | Library Sno-Isle GEN | 0.3153421757 | $467,665 | $467,665 | $147.47 | | |
| PORTWHID | Port of S Whidbey GEN | 0.1094540357 | $467,665 | $467,665 | $51.19 | | |
| SCH206BOND | School 206 BOND | 0.3161759235 | $467,665 | $467,665 | $147.86 | | |
| SCH206MO | School 206 Enrichment | 0.4547169547 | $467,665 | $467,665 | $212.66 | | |
| ST | State School | 1.3035497053 | $467,665 | $467,665 | $609.62 | | |
| ST2 | State School Part 2 | 0.8169543533 | $467,665 | $467,665 | $382.06 | | |
| SWHIDPRBD | P & R S Whidbey BOND | 0.0152817568 | $467,665 | $467,665 | $7.15 | | |
| SWHIDPRBD2 | P & R S Whidbey BOND2 | 0.0138911264 | $467,665 | $467,665 | $6.50 | | |
| SWHIDPRMT | P & R S Whidbey GEN | 0.2053334452 | $467,665 | $467,665 | $96.03 | | |
| | Total Tax Rate: | 6.6934522006 | | | | | |
| | | | | Taxes w/Current Exemptions: | $3,130.30 | | |
| | | | | Taxes w/o Exemptions: | $3,130.30 | | |
Improvement / Building
| Improvement #1: | RESIDENTIAL | State Code: | Y | 1665.6 sqft | Value: | $257,665 |
| Bathrooms: | 1.5 | Bedrooms: | 3 | | Ceiling: | DRYWALL PAINTED | Exterior Wall/Cover: | WOOD SIDING | | Floor Covering: | CARPET/VINYL 80-20 | Floor Structure: | SLAB ABOVE GRADE | | Foundation: | SLAB/CONCRETE | Heating: | BASEBOARD ELECTRIC | | Interior Finish: | DRYWALL PAINT | Plumbing Fixture Cnt: | 9 | | Roof Slope: | 4" IN 12" | Roof Structure/Cover: | CJ ASPHALT |
|
| | Type | Description | Class CD | Sub Class CD | Year Built | Area |
| | BAS | BASE/MAIN FLOOR | 3 | 0 | 1991 | 1138.1 |
| | BIG | BUILT IN GARAGE | 3 | 0 | 1991 | 480.0 |
| | OWP | OPEN WOOD PORCH W/STEPS | 3 | 0 | 1991 | 96.0 |
| | DWN | DOWNSTAIRS LIVING AREA | 3 | 0 | 1991 | 527.5 |
Sketch
Property Image
Land
| 1 | 14 | SQ (08001-12000) | 0.0000 | 0.00 | 0.00 | 0.00 | 1.00 | $210,000 | $0 |
Roll Value History
| 2026 | N/A | N/A | N/A | N/A | N/A |
| 2025 | $257,665 | $210,000 | $0 | $467,665 | $467,665 |
| 2024 | $266,517 | $205,000 | $0 | $471,517 | $471,517 |
| 2023 | $269,757 | $210,000 | $0 | $479,757 | $479,757 |
| 2022 | $247,209 | $200,000 | $0 | $447,209 | $447,209 |
| 2021 | $217,507 | $140,000 | $0 | $357,507 | $357,507 |
| 2020 | $211,985 | $120,000 | $0 | $331,985 | $331,985 |
| 2019 | $127,426 | $135,000 | $0 | $262,426 | $262,426 |
| 2018 | $127,839 | $120,000 | $0 | $247,839 | $247,839 |
| 2017 | $128,681 | $80,000 | $0 | $208,681 | $208,681 |
| 2016 | $130,330 | $70,000 | $0 | $200,330 | $200,330 |
| 2015 | $131,981 | $55,000 | $0 | $186,981 | $186,981 |
| 2014 | $129,930 | $55,000 | $0 | $184,930 | $184,930 |
| 2013 | $131,559 | $55,000 | $0 | $186,559 | $186,559 |
| 2012 | $133,188 | $65,025 | $0 | $198,213 | $198,213 |
| 2011 | $134,817 | $76,500 | $0 | $211,317 | $211,317 |
| 2010 | $146,291 | $85,000 | $0 | $231,291 | $231,291 |
| 2009 | $152,400 | $114,000 | $0 | $266,400 | $266,400 |
| 2008 | $142,753 | $123,000 | $0 | $265,753 | $265,753 |
| 2007 | $144,471 | $88,000 | $0 | $232,471 | $232,471 |
Deed and Sales History
| 1 | 06/27/2019 | WD | Warranty Deed | FARRELL, AMBER M | JONES, VERNON R | | | $345,000.00 | 39210 | 4466383 |
| 2 | 10/30/2003 | TRUSTEED | Trustee's Deed | NEW YORK, THE BANK OF | FARRELL, AMBER M | | | $135,000.00 | 35153 | 4082968 |
| 3 | 06/26/2003 | TRUSTEED | Trustee's Deed | SMITH, PHILLIP R | NEW YORK, THE BANK OF | | | $120,215.00 | 32799 | 4064950 |
| 4 | 10/13/1998 | WD | Warranty Deed | MCLEAN, RAYMOND H | SMITH, PHILLIP R | | | $137,000.00 | 84239 | 98023087 |
| 5 | 04/01/1991 | WD | Warranty Deed | R, K P | MCLEAN, RAYMOND H | | | $15,000.00 | 11327 | 91005685 |
| 6 | 05/01/1990 | WD | Warranty Deed | REPOSA, TODD A | R, K P | | | $12,000.00 | 3235 | 90010448 |
| 7 | 01/01/1988 | QCD | Quit Claim Deed | REPOSA, TODD | REPOSA, TODD A | | | $0.00 | 80216 | 88000999 |
| 8 | 04/01/1985 | QCD | Quit Claim Deed | SHOSKY, BURNET A | REPOSA, TODD | | | $0.00 | 50933 | 85003885 |
| 9 | 09/01/1983 | REC | Real Estate Contract | HUHTA, FRANK W | SHOSKY, BURNET A | | | $9,250.00 | 32641 | 414928 |
| 10 | 06/01/1982 | CD | DNU - Correction Deed | BERRY, MARK H | HUHTA, FRANK W | | | $0.00 | 21382 | 398117 |
| 11 | 07/01/1981 | EXECUTORD | Executor Deed | HUHTA, FRANK W | BERRY, MARK H | | | $10,500.00 | 12157 | 385369 |
| 12 | 08/01/1980 | TRUSTEED | Trustee's Deed | KINSKIE, A R | HUHTA, FRANK W | | | $7,000.00 | 3003 | 373475 |
| 13 | 01/01/1900 | OTHER | Other - Misc. Documents | Unknown | KINSKIE, A R | | | $0.00 | 0 | 0 |
Payout Agreement
| No payout information available.. |