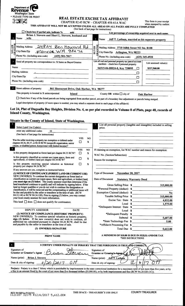
Property
Account |
| Property ID: | 377381 | Abbreviated Legal Description: | SCAT HD 1 LOT 26 BLK 2 |
| Geographic ID: | S8110-00-02026-0 | Agent Code: | |
| Type: | Real | | |
| Tax Area: | 740 - APPRAISER-S Whid Schl Dist, Special District, improved & less than 1 acre | Land Use Code | 11 |
| Open Space: | N | DFL | N |
| Historic Property: | N | Remodel Property: | N |
| Multi-Family Redevelopment: | N | | |
| Township: | | Section: | |
| Range: | |
Location |
| Address: | 3625 CASEY ST CLINTON, WA 98236 | Mapsco: | |
| Neighborhood: | Cycle 4 | Map ID: | 697 |
| Neighborhood CD: | 4 |
Owner |
| Name: | LONG, TARA ANNE | Owner ID: | 285396 |
| Mailing Address: | PO BOX 71 CLINTON, WA 98236 | % Ownership: | 100.0000000000% |
| | | Exemptions: | |
Taxes and Assessment Details
Values
| (+) Improvement Homesite Value: | + | $0 | |
| (+) Improvement Non-Homesite Value: | + | $193,162 | |
| (+) Land Homesite Value: | + | $0 | |
| (+) Land Non-Homesite Value: | + | $210,000 | |
| (+) Curr Use (HS): | + | $0 | $0 |
| (+) Curr Use (NHS): | + | $0 | $0 |
| | | -------------------------- | |
| (=) Market Value: | = | $403,162 | |
| (–) Productivity Loss: | – | $0 | |
| | | -------------------------- | |
| (=) Subtotal: | = | $403,162 | |
| (+) Senior Appraised Value: | + | $0 | |
| (+) Non-Senior Appraised Value: | + | $403,162 | |
| | | -------------------------- | |
| (=) Total Appraised Value: | = | $403,162 | |
| (–) Senior Exemption Loss: | – | $0 | |
| (–) Exemption Loss: | – | $0 | |
| | | -------------------------- | |
| (=) Taxable Value: | = | $403,162 | |
Taxing Jurisdiction
| Owner: | LONG, TARA ANNE | | |
| % Ownership: | 100.0000000000% | | |
| Total Value: | $403,162 | | |
| Tax Area: | 740 - APPRAISER-S Whid Schl Dist, Special District, improved & less than 1 acre |
| CF | Conservation Futures | 0.0316035091 | $403,162 | $403,162 | $12.74 | | |
| FIRE3 | Fire & Rescue Dist #3 S Whidbey GEN | 1.2004855531 | $403,162 | $403,162 | $483.99 | | |
| HOBOND | Hospital BOND | 0.1910887512 | $403,162 | $403,162 | $77.04 | | |
| HOGEN | Hospital GEN | 0.3902502903 | $403,162 | $403,162 | $157.33 | | |
| CE | County Current Expense | 0.3708482477 | $403,162 | $403,162 | $149.51 | | |
| CR | County Roads | 0.4584763726 | $403,162 | $403,162 | $184.84 | | |
| ISLANDEMS | Hospital GEN (EMS) | 0.5000000000 | $403,162 | $403,162 | $201.58 | | |
| LIB | Library Sno-Isle GEN | 0.3153421757 | $403,162 | $403,162 | $127.13 | | |
| PORTWHID | Port of S Whidbey GEN | 0.1094540357 | $403,162 | $403,162 | $44.13 | | |
| SCH206BOND | School 206 BOND | 0.3161759235 | $403,162 | $403,162 | $127.47 | | |
| SCH206MO | School 206 Enrichment | 0.4547169547 | $403,162 | $403,162 | $183.32 | | |
| ST | State School | 1.3035497053 | $403,162 | $403,162 | $525.54 | | |
| ST2 | State School Part 2 | 0.8169543533 | $403,162 | $403,162 | $329.36 | | |
| SWHIDPRBD | P & R S Whidbey BOND | 0.0152817568 | $403,162 | $403,162 | $6.16 | | |
| SWHIDPRBD2 | P & R S Whidbey BOND2 | 0.0138911264 | $403,162 | $403,162 | $5.60 | | |
| SWHIDPRMT | P & R S Whidbey GEN | 0.2053334452 | $403,162 | $403,162 | $82.78 | | |
| | Total Tax Rate: | 6.6934522006 | | | | | |
| | | | | Taxes w/Current Exemptions: | $2,698.52 | | |
| | | | | Taxes w/o Exemptions: | $2,698.52 | | |
Improvement / Building
| Improvement #1: | RESIDENTIAL | State Code: | Y | 924.0 sqft | Value: | $193,162 |
| Bathrooms: | 1 | Bedrooms: | 2 | | Ceiling: | DRYWALL PAINTED | Cooling: | HEAT PUMP/CONV/V | | Exterior Wall/Cover: | CEMENT FIBER | Floor Covering: | HARDWOOD/CARP 60-40 | | Floor Structure: | WOOD W/SUBFLOOR | Foundation: | CONCRETE | | Interior Finish: | DRYWALL PAINT | Plumbing Fixture Cnt: | 6 | | Roof Slope: | 8" IN 12" | Roof Structure/Cover: | CJ ASPHALT |
|
| | Type | Description | Class CD | Sub Class CD | Year Built | Area |
| | BAS | BASE/MAIN FLOOR | 3 | 0 | 2003 | 924.0 |
| | OWP | OPEN WOOD PORCH W/STEPS | 3 | 0 | 2003 | 36.0 |
| | OWR | OPEN WOOD PORCH W/STEPS/ROOF | 3 | 0 | 2003 | 64.0 |
Sketch
Property Image
Land
| 1 | 14 | SQ (08001-12000) | 0.0000 | 0.00 | 0.00 | 0.00 | 1.00 | $210,000 | $0 |
Roll Value History
| 2026 | N/A | N/A | N/A | N/A | N/A |
| 2025 | $193,162 | $210,000 | $0 | $403,162 | $403,162 |
| 2024 | $194,785 | $205,000 | $0 | $399,785 | $399,785 |
| 2023 | $196,517 | $210,000 | $0 | $406,517 | $406,517 |
| 2022 | $179,325 | $200,000 | $0 | $379,325 | $379,325 |
| 2021 | $157,209 | $140,000 | $0 | $297,209 | $297,209 |
| 2020 | $152,568 | $120,000 | $0 | $272,568 | $272,568 |
| 2019 | $110,609 | $135,000 | $0 | $245,609 | $245,609 |
| 2018 | $110,899 | $120,000 | $0 | $230,899 | $230,899 |
| 2017 | $89,618 | $80,000 | $0 | $169,618 | $169,618 |
| 2016 | $90,649 | $70,000 | $0 | $160,649 | $160,649 |
| 2015 | $91,678 | $55,000 | $0 | $146,678 | $146,678 |
| 2014 | $91,802 | $55,000 | $0 | $146,802 | $146,802 |
| 2013 | $92,821 | $55,000 | $0 | $147,821 | $147,821 |
| 2012 | $93,841 | $65,025 | $0 | $158,866 | $158,866 |
| 2011 | $94,860 | $76,500 | $0 | $171,360 | $171,360 |
| 2010 | $96,600 | $85,000 | $0 | $181,600 | $181,600 |
| 2009 | $100,631 | $114,000 | $0 | $214,631 | $214,631 |
| 2008 | $102,763 | $123,000 | $0 | $225,763 | $225,763 |
| 2007 | $102,841 | $88,000 | $0 | $190,841 | $190,841 |
Deed and Sales History
| 1 | 06/08/2018 | WD | Warranty Deed | HABITAT FOR HUMANITY OF ISLAND COUNTY | LONG, TARA ANNE | | | $249,000.00 | 34479 | 4445982 |
| 2 | 10/06/2017 | DEEDINLIEU | Deed In Lieu Of Foreclosure | MCCARTHY, REBECCA | HABITAT FOR HUMANITY OF ISLAND COUNTY | | | $0.00 | 31579 | 4432426 |
| 3 | 10/09/2003 | WD | Warranty Deed | OF ISLAND COUNTY, HABITAT FOR | MCCARTHY, REBECCA | | | $60,000.00 | 34938 | 4081273 |
| 4 | 04/16/2003 | WD | Warranty Deed | ZUVER, ROBERT & | OF ISLAND COUNTY, HABITAT FOR | | | $15,000.00 | 31702 | 4056326 |
| 5 | 06/01/1996 | WD | Warranty Deed | GOSS, DANNY J | ZUVER, ROBERT & | | | $15,000.00 | 62066 | 96010239 |
| 6 | 01/01/1995 | WD | Warranty Deed | GIFFORD, GORDON J | GOSS, DANNY J | | | $19,000.00 | 50245 | 95001172 |
| 7 | 07/01/1971 | EXECUTORD | Executor Deed | SCATCHET, HTS I | GIFFORD, GORDON J | | | $2,500.00 | 41741 | 0 |
| 8 | 01/01/1900 | OTHER | Other - Misc. Documents | Unknown | SCATCHET, HTS I | | | $0.00 | 0 | 0 |
Payout Agreement
| No payout information available.. |