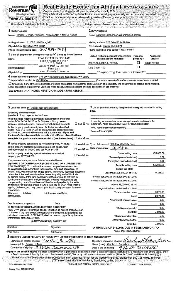
Property
Account |
| Property ID: | 377862 | Abbreviated Legal Description: | SCAT HD 1 LOT 11 BLK 5 |
| Geographic ID: | S8110-00-05011-0 | Agent Code: | |
| Type: | Real | | |
| Tax Area: | 740 - APPRAISER-S Whid Schl Dist, Special District, improved & less than 1 acre | Land Use Code | 11 |
| Open Space: | N | DFL | N |
| Historic Property: | N | Remodel Property: | N |
| Multi-Family Redevelopment: | N | | |
| Township: | | Section: | |
| Range: | |
Location |
| Address: | 7902 GUEMES AVE CLINTON, WA 98236 | Mapsco: | |
| Neighborhood: | Cycle 4 | Map ID: | 697 |
| Neighborhood CD: | 4 |
Owner |
| Name: | MARTINEZ-HARTER, NOE | Owner ID: | 313381 |
| Mailing Address: | 8020 MUKILTEO SPEEDWAY 6 MUKILTEO, WA 98275 | % Ownership: | 100.0000000000% |
| | | Exemptions: | |
Taxes and Assessment Details
Values
| (+) Improvement Homesite Value: | + | $0 | |
| (+) Improvement Non-Homesite Value: | + | $242,576 | |
| (+) Land Homesite Value: | + | $0 | |
| (+) Land Non-Homesite Value: | + | $210,000 | |
| (+) Curr Use (HS): | + | $0 | $0 |
| (+) Curr Use (NHS): | + | $0 | $0 |
| | | -------------------------- | |
| (=) Market Value: | = | $452,576 | |
| (–) Productivity Loss: | – | $0 | |
| | | -------------------------- | |
| (=) Subtotal: | = | $452,576 | |
| (+) Senior Appraised Value: | + | $0 | |
| (+) Non-Senior Appraised Value: | + | $452,576 | |
| | | -------------------------- | |
| (=) Total Appraised Value: | = | $452,576 | |
| (–) Senior Exemption Loss: | – | $0 | |
| (–) Exemption Loss: | – | $0 | |
| | | -------------------------- | |
| (=) Taxable Value: | = | $452,576 | |
Taxing Jurisdiction
| Owner: | MARTINEZ-HARTER, NOE | | |
| % Ownership: | 100.0000000000% | | |
| Total Value: | $452,576 | | |
| Tax Area: | 740 - APPRAISER-S Whid Schl Dist, Special District, improved & less than 1 acre |
| CF | Conservation Futures | 0.0316035091 | $452,576 | $452,576 | $14.30 | | |
| FIRE3 | Fire & Rescue Dist #3 S Whidbey GEN | 1.2004855531 | $452,576 | $452,576 | $543.31 | | |
| HOBOND | Hospital BOND | 0.1910887512 | $452,576 | $452,576 | $86.48 | | |
| HOGEN | Hospital GEN | 0.3902502903 | $452,576 | $452,576 | $176.62 | | |
| CE | County Current Expense | 0.3708482477 | $452,576 | $452,576 | $167.84 | | |
| CR | County Roads | 0.4584763726 | $452,576 | $452,576 | $207.50 | | |
| ISLANDEMS | Hospital GEN (EMS) | 0.5000000000 | $452,576 | $452,576 | $226.29 | | |
| LIB | Library Sno-Isle GEN | 0.3153421757 | $452,576 | $452,576 | $142.72 | | |
| PORTWHID | Port of S Whidbey GEN | 0.1094540357 | $452,576 | $452,576 | $49.54 | | |
| SCH206BOND | School 206 BOND | 0.3161759235 | $452,576 | $452,576 | $143.09 | | |
| SCH206MO | School 206 Enrichment | 0.4547169547 | $452,576 | $452,576 | $205.79 | | |
| ST | State School | 1.3035497053 | $452,576 | $452,576 | $589.96 | | |
| ST2 | State School Part 2 | 0.8169543533 | $452,576 | $452,576 | $369.73 | | |
| SWHIDPRBD | P & R S Whidbey BOND | 0.0152817568 | $452,576 | $452,576 | $6.92 | | |
| SWHIDPRBD2 | P & R S Whidbey BOND2 | 0.0138911264 | $452,576 | $452,576 | $6.29 | | |
| SWHIDPRMT | P & R S Whidbey GEN | 0.2053334452 | $452,576 | $452,576 | $92.93 | | |
| | Total Tax Rate: | 6.6934522006 | | | | | |
| | | | | Taxes w/Current Exemptions: | $3,029.31 | | |
| | | | | Taxes w/o Exemptions: | $3,029.31 | | |
Improvement / Building
| Improvement #1: | RESIDENTIAL | State Code: | Y | 1508.0 sqft | Value: | $242,576 |
| Bathrooms: | 2 | Bedrooms: | 3 | | Ceiling: | DRYWALL PAINTED | Cooling: | HEAT PUMP/CONV/V | | Exterior Wall/Cover: | PLY/HARDBOARD T-111 | Floor Covering: | HARDWOOD 100% | | Floor Structure: | WOOD W/SUBFLOOR | Foundation: | CONCRETE | | Interior Finish: | DRYWALL PAINT | Plumbing Fixture Cnt: | 9 | | Roof Slope: | 4" IN 12" | Roof Structure/Cover: | CJ ASPHALT |
|
| | Type | Description | Class CD | Sub Class CD | Year Built | Area |
| | BAS | BASE/MAIN FLOOR | 3 | 0 | 1990 | 1508.0 |
| | AGR | ATTACHED GARAGE | 3 | 0 | 1990 | 506.0 |
| | OWP | OPEN WOOD PORCH W/STEPS | 3 | 0 | 1990 | 192.0 |
| | OWC | OPEN WOOD PORCH W/STEPS/ROOF/C | 3 | 0 | 1990 | 72.0 |
| | OWC | OPEN WOOD PORCH W/STEPS/ROOF/C | 3 | 0 | 1990 | 32.0 |
Sketch
Property Image
Land
| 1 | 13 | SQ (06001-08000) | 0.1655 | 7209.18 | 0.00 | 0.00 | 1.00 | $210,000 | $0 |
Roll Value History
| 2026 | N/A | N/A | N/A | N/A | N/A |
| 2025 | $242,576 | $210,000 | $0 | $452,576 | $452,576 |
| 2024 | $245,887 | $205,000 | $0 | $450,887 | $450,887 |
| 2023 | $229,917 | $210,000 | $0 | $439,917 | $439,917 |
| 2022 | $210,964 | $200,000 | $0 | $410,964 | $410,964 |
| 2021 | $185,850 | $140,000 | $0 | $325,850 | $325,850 |
| 2020 | $162,358 | $120,000 | $0 | $282,358 | $282,358 |
| 2019 | $116,799 | $135,000 | $0 | $251,799 | $251,799 |
| 2018 | $117,197 | $120,000 | $0 | $237,197 | $237,197 |
| 2017 | $117,993 | $80,000 | $0 | $197,993 | $197,993 |
| 2016 | $119,589 | $70,000 | $0 | $189,589 | $189,589 |
| 2015 | $121,184 | $55,000 | $0 | $176,184 | $176,184 |
| 2014 | $125,232 | $55,000 | $0 | $180,232 | $180,232 |
| 2013 | $126,893 | $55,000 | $0 | $181,893 | $52,322 |
| 2012 | $128,558 | $65,025 | $0 | $193,583 | $52,322 |
| 2011 | $130,220 | $76,500 | $0 | $206,720 | $52,322 |
| 2010 | $134,161 | $85,000 | $0 | $219,161 | $52,322 |
| 2009 | $139,985 | $114,000 | $0 | $253,985 | $52,322 |
| 2008 | $146,264 | $123,000 | $0 | $269,264 | $52,322 |
| 2007 | $148,037 | $88,000 | $0 | $236,037 | $52,322 |
Deed and Sales History
| 1 | 08/01/2024 | WD | Warranty Deed | UHLIG, JONATHAN | MARTINEZ-HARTER, NOE | | | $461,000.00 | 60829 | 4575410 |
| 2 | 10/26/2015 | SPWARDEED | Special Warranty Deed | U.S. BANK NATIONAL ASSOCIATION | UHLIG, JONATHAN | | | $139,900.00 | 22075 | 4389108 |
| 3 | 07/28/2014 | TRUSTEED | Trustee's Deed | MEYER, ROBERT L | U.S. BANK NATIONAL ASSOCIATION | | | $190,000.00 | 16291 | 4363452 |
| 4 | 03/20/2008 | ESTSEPPROP | Establish Separate Property | MEYER, ROBERT L | MEYER, ROBERT L | | | $0.00 | 80917 | 4226430 |
| 5 | 04/26/2007 | QCD | Quit Claim Deed | MEYER, ROBERT L | MEYER, ROBERT L | | | $0.00 | 71445 | 4200948 |
| 6 | 08/23/2006 | QCD | Quit Claim Deed | MEYER, ROBERT L | MEYER, ROBERT L | | | $0.00 | 63737 | 4180425 |
| 7 | 07/01/1991 | WD | Warranty Deed | STORMS, FREDRIC G | MEYER, ROBERT L | | | $114,950.00 | 12718 | 91011586 |
| 8 | 02/01/1991 | QCD | Quit Claim Deed | STORMS, FRED & | STORMS, FREDRIC G | | | $0.00 | 10410 | 91001874 |
| 9 | 05/01/1990 | WD | Warranty Deed | STARR, VALERIE A | STORMS, FRED & | | | $16,000.00 | 2981 | 90009723 |
| 10 | 02/01/1990 | WD | Warranty Deed | O'NEIL, LOUISE | STARR, VALERIE A | | | $8,000.00 | 967 | 90003162 |
| 11 | 01/01/1900 | OTHER | Other - Misc. Documents | Unknown | O'NEIL, LOUISE | | | $0.00 | 0 | 0 |
Payout Agreement
| No payout information available.. |