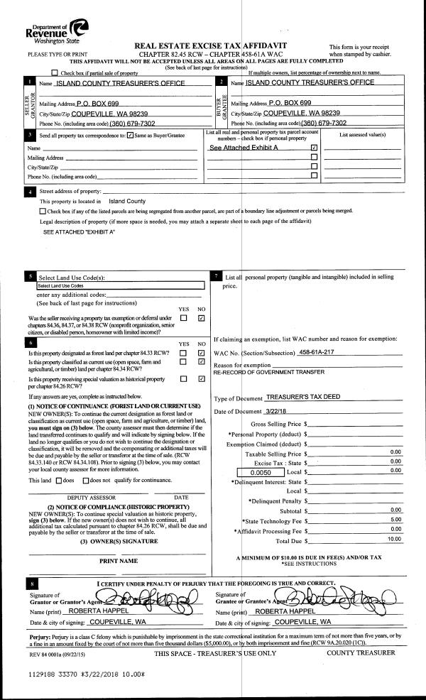
Property
Account |
| Property ID: | 377915 | Abbreviated Legal Description: | SCAT HD 1 LOT 16 BLK 5 |
| Geographic ID: | S8110-00-05016-0 | Agent Code: | |
| Type: | Real | | |
| Tax Area: | 740 - APPRAISER-S Whid Schl Dist, Special District, improved & less than 1 acre | Land Use Code | 11 |
| Open Space: | N | DFL | N |
| Historic Property: | N | Remodel Property: | N |
| Multi-Family Redevelopment: | N | | |
| Township: | | Section: | |
| Range: | |
Location |
| Address: | 3651 HARPER ST CLINTON, WA 98236 | Mapsco: | |
| Neighborhood: | Cycle 4 | Map ID: | 697 |
| Neighborhood CD: | 4 |
Owner |
| Name: | JOHNSON, KATHRYN H | Owner ID: | 283642 |
| Mailing Address: | 201 AVENUE D BILLINGS, MT 59101-0646 | % Ownership: | 100.0000000000% |
| | | Exemptions: | |
Taxes and Assessment Details
Values
| (+) Improvement Homesite Value: | + | $0 | |
| (+) Improvement Non-Homesite Value: | + | $239,810 | |
| (+) Land Homesite Value: | + | $0 | |
| (+) Land Non-Homesite Value: | + | $210,000 | |
| (+) Curr Use (HS): | + | $0 | $0 |
| (+) Curr Use (NHS): | + | $0 | $0 |
| | | -------------------------- | |
| (=) Market Value: | = | $449,810 | |
| (–) Productivity Loss: | – | $0 | |
| | | -------------------------- | |
| (=) Subtotal: | = | $449,810 | |
| (+) Senior Appraised Value: | + | $0 | |
| (+) Non-Senior Appraised Value: | + | $449,810 | |
| | | -------------------------- | |
| (=) Total Appraised Value: | = | $449,810 | |
| (–) Senior Exemption Loss: | – | $0 | |
| (–) Exemption Loss: | – | $0 | |
| | | -------------------------- | |
| (=) Taxable Value: | = | $449,810 | |
Taxing Jurisdiction
| Owner: | JOHNSON, KATHRYN H | | |
| % Ownership: | 100.0000000000% | | |
| Total Value: | $449,810 | | |
| Tax Area: | 740 - APPRAISER-S Whid Schl Dist, Special District, improved & less than 1 acre |
| CF | Conservation Futures | 0.0316035091 | $449,810 | $449,810 | $14.22 | | |
| FIRE3 | Fire & Rescue Dist #3 S Whidbey GEN | 1.2004855531 | $449,810 | $449,810 | $539.99 | | |
| HOBOND | Hospital BOND | 0.1910887512 | $449,810 | $449,810 | $85.95 | | |
| HOGEN | Hospital GEN | 0.3902502903 | $449,810 | $449,810 | $175.54 | | |
| CE | County Current Expense | 0.3708482477 | $449,810 | $449,810 | $166.81 | | |
| CR | County Roads | 0.4584763726 | $449,810 | $449,810 | $206.23 | | |
| ISLANDEMS | Hospital GEN (EMS) | 0.5000000000 | $449,810 | $449,810 | $224.91 | | |
| LIB | Library Sno-Isle GEN | 0.3153421757 | $449,810 | $449,810 | $141.84 | | |
| PORTWHID | Port of S Whidbey GEN | 0.1094540357 | $449,810 | $449,810 | $49.23 | | |
| SCH206BOND | School 206 BOND | 0.3161759235 | $449,810 | $449,810 | $142.22 | | |
| SCH206MO | School 206 Enrichment | 0.4547169547 | $449,810 | $449,810 | $204.54 | | |
| ST | State School | 1.3035497053 | $449,810 | $449,810 | $586.35 | | |
| ST2 | State School Part 2 | 0.8169543533 | $449,810 | $449,810 | $367.47 | | |
| SWHIDPRBD | P & R S Whidbey BOND | 0.0152817568 | $449,810 | $449,810 | $6.87 | | |
| SWHIDPRBD2 | P & R S Whidbey BOND2 | 0.0138911264 | $449,810 | $449,810 | $6.25 | | |
| SWHIDPRMT | P & R S Whidbey GEN | 0.2053334452 | $449,810 | $449,810 | $92.36 | | |
| | Total Tax Rate: | 6.6934522006 | | | | | |
| | | | | Taxes w/Current Exemptions: | $3,010.78 | | |
| | | | | Taxes w/o Exemptions: | $3,010.78 | | |
Improvement / Building
| Improvement #1: | RESIDENTIAL | State Code: | Y | 1972.0 sqft | Value: | $239,810 |
| Bathrooms: | 2 | Bedrooms: | 2 | | Ceiling: | DRYWALL PAINTED | Exterior Wall/Cover: | PLY/HARDBOARD T-111 | | Floor Covering: | CARPET/VINYL 80-20 | Floor Structure: | WOOD W/SUBFLOOR | | Foundation: | CONCRETE | Heating: | FHA GAS | | Interior Finish: | DRYWALL PAINT | Plumbing Fixture Cnt: | 9 | | Roof Slope: | 12" IN 12" | Roof Structure/Cover: | CJ ASPHALT |
|
| | Type | Description | Class CD | Sub Class CD | Year Built | Area |
| | BAS | BASE/MAIN FLOOR | 3 | 0 | 1997 | 1356.0 |
| | OP1 | OPEN PORCH SLAB | 3 | 0 | 1997 | 99.0 |
| | UPH | HALF STORY | 3 | 0 | 1997 | 352.0 |
| | UPH | HALF STORY | 3 | 0 | 1997 | 264.0 |
Sketch
Property Image
Land
| 1 | 13 | SQ (06001-08000) | 0.0000 | 0.00 | 0.00 | 0.00 | 1.00 | $210,000 | $0 |
Roll Value History
| 2026 | N/A | N/A | N/A | N/A | N/A |
| 2025 | $239,810 | $210,000 | $0 | $449,810 | $449,810 |
| 2024 | $242,875 | $205,000 | $0 | $447,875 | $447,875 |
| 2023 | $245,939 | $210,000 | $0 | $455,939 | $455,939 |
| 2022 | $225,469 | $200,000 | $0 | $425,469 | $425,469 |
| 2021 | $198,482 | $140,000 | $0 | $338,482 | $338,482 |
| 2020 | $193,771 | $120,000 | $0 | $313,771 | $313,771 |
| 2019 | $148,180 | $135,000 | $0 | $283,180 | $283,180 |
| 2018 | $148,621 | $120,000 | $0 | $268,621 | $268,621 |
| 2017 | $149,500 | $80,000 | $0 | $229,500 | $229,500 |
| 2016 | $151,258 | $70,000 | $0 | $221,258 | $221,258 |
| 2015 | $136,630 | $55,000 | $0 | $191,630 | $191,630 |
| 2014 | $136,370 | $55,000 | $0 | $191,370 | $191,370 |
| 2013 | $130,411 | $55,000 | $0 | $185,411 | $185,411 |
| 2012 | $131,949 | $65,025 | $0 | $196,974 | $196,974 |
| 2011 | $133,487 | $76,500 | $0 | $209,987 | $209,987 |
| 2010 | $137,874 | $85,000 | $0 | $222,874 | $222,874 |
| 2009 | $143,933 | $114,000 | $0 | $257,933 | $257,933 |
| 2008 | $144,511 | $123,000 | $0 | $267,511 | $267,511 |
| 2007 | $146,212 | $88,000 | $0 | $234,212 | $234,212 |
Deed and Sales History
| 1 | 01/13/2018 | QCD | Quit Claim Deed | JOHNSON, KATHRYN H | JOHNSON, KATHRYN H | | | $0.00 | 32667 | 4437753 |
| 2 | 06/03/2013 | WD | Warranty Deed | STINE, ERIK O | JOHNSON, KATHRYN H | | | $190,000.00 | 11514 | 4341219 |
| 3 | 03/05/2012 | CCOMPROP | Create Community Property | STINE, ERIK O | STINE, ERIK O | | | $0.00 | 7055 | 4311189 |
| 4 | 06/16/2004 | WD | Warranty Deed | BOYD, KEITH D | STINE, ERIK O | | | $169,000.00 | 42646 | 4104007 |
| 5 | 08/15/1998 | WD | Warranty Deed | PORTER, KEITH A | BOYD, KEITH D | | | $131,000.00 | 83408 | 98017740 |
| 6 | 02/01/1996 | QCD | Quit Claim Deed | PORTER, KEITH A | PORTER, KEITH A | | | $0.00 | 60736 | 96003925 |
| 7 | 07/01/1988 | WD | Warranty Deed | ANDERSON, CLAY S | PORTER, KEITH A | | | $15,000.00 | 82493 | 88009413 |
| 8 | 07/01/1983 | REC | Real Estate Contract | BREEDLOVE, ROBERT E | ANDERSON, CLAY S | | | $9,000.00 | 31833 | 411727 |
| 9 | 01/01/1982 | CD | DNU - Correction Deed | BREEDLOVE, DANIEL R | BREEDLOVE, ROBERT E | | | $1.00 | 20716 | 394612 |
| 10 | 12/01/1981 | CD | DNU - Correction Deed | GOTTLIEB, HARRIS | BREEDLOVE, DANIEL R | | | $1.00 | 20715 | 394611 |
| 11 | 07/01/1981 | EXECUTORD | Executor Deed | BREEDLOVE, DANIEL | GOTTLIEB, HARRIS | | | $9,500.00 | 12231 | 385650 |
| 12 | 01/01/1900 | OTHER | Other - Misc. Documents | Unknown | BOYD, KEITH D | | | $0.00 | 83408 | 98017740 |
| 13 | 01/01/1900 | OTHER | Other - Misc. Documents | BOYD, KEITH D | BREEDLOVE, DANIEL | | | $0.00 | 0 | 0 |
Payout Agreement
| No payout information available.. |