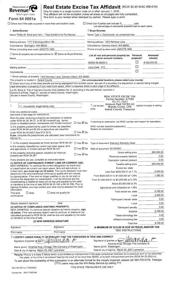
Property
Account |
| Property ID: | 378638 | Abbreviated Legal Description: | SCAT HD 1 LOT 6 BLK 9 |
| Geographic ID: | S8110-00-09006-0 | Agent Code: | |
| Type: | Real | | |
| Tax Area: | 740 - APPRAISER-S Whid Schl Dist, Special District, improved & less than 1 acre | Land Use Code | 11 |
| Open Space: | N | DFL | N |
| Historic Property: | N | Remodel Property: | N |
| Multi-Family Redevelopment: | N | | |
| Township: | | Section: | |
| Range: | |
Location |
| Address: | 7921 DECATUR AVE CLINTON, WA 98236 | Mapsco: | |
| Neighborhood: | Cycle 4 | Map ID: | 697 |
| Neighborhood CD: | 4 |
Owner |
| Name: | PEABODY, KARA C | Owner ID: | 301115 |
| Mailing Address: | PO BOX 138 LANGLEY, WA 98260-0138 | % Ownership: | 100.0000000000% |
| | | Exemptions: | |
Taxes and Assessment Details
Values
| (+) Improvement Homesite Value: | + | $0 | |
| (+) Improvement Non-Homesite Value: | + | $300,440 | |
| (+) Land Homesite Value: | + | $0 | |
| (+) Land Non-Homesite Value: | + | $210,000 | |
| (+) Curr Use (HS): | + | $0 | $0 |
| (+) Curr Use (NHS): | + | $0 | $0 |
| | | -------------------------- | |
| (=) Market Value: | = | $510,440 | |
| (–) Productivity Loss: | – | $0 | |
| | | -------------------------- | |
| (=) Subtotal: | = | $510,440 | |
| (+) Senior Appraised Value: | + | $0 | |
| (+) Non-Senior Appraised Value: | + | $510,440 | |
| | | -------------------------- | |
| (=) Total Appraised Value: | = | $510,440 | |
| (–) Senior Exemption Loss: | – | $0 | |
| (–) Exemption Loss: | – | $0 | |
| | | -------------------------- | |
| (=) Taxable Value: | = | $510,440 | |
Taxing Jurisdiction
| Owner: | PEABODY, KARA C | | |
| % Ownership: | 100.0000000000% | | |
| Total Value: | $510,440 | | |
| Tax Area: | 740 - APPRAISER-S Whid Schl Dist, Special District, improved & less than 1 acre |
| CF | Conservation Futures | 0.0316035091 | $510,440 | $510,440 | $16.13 | | |
| FIRE3 | Fire & Rescue Dist #3 S Whidbey GEN | 1.2004855531 | $510,440 | $510,440 | $612.78 | | |
| HOBOND | Hospital BOND | 0.1910887512 | $510,440 | $510,440 | $97.54 | | |
| HOGEN | Hospital GEN | 0.3902502903 | $510,440 | $510,440 | $199.20 | | |
| CE | County Current Expense | 0.3708482477 | $510,440 | $510,440 | $189.30 | | |
| CR | County Roads | 0.4584763726 | $510,440 | $510,440 | $234.02 | | |
| ISLANDEMS | Hospital GEN (EMS) | 0.5000000000 | $510,440 | $510,440 | $255.22 | | |
| LIB | Library Sno-Isle GEN | 0.3153421757 | $510,440 | $510,440 | $160.96 | | |
| PORTWHID | Port of S Whidbey GEN | 0.1094540357 | $510,440 | $510,440 | $55.87 | | |
| SCH206BOND | School 206 BOND | 0.3161759235 | $510,440 | $510,440 | $161.39 | | |
| SCH206MO | School 206 Enrichment | 0.4547169547 | $510,440 | $510,440 | $232.11 | | |
| ST | State School | 1.3035497053 | $510,440 | $510,440 | $665.38 | | |
| ST2 | State School Part 2 | 0.8169543533 | $510,440 | $510,440 | $417.01 | | |
| SWHIDPRBD | P & R S Whidbey BOND | 0.0152817568 | $510,440 | $510,440 | $7.80 | | |
| SWHIDPRBD2 | P & R S Whidbey BOND2 | 0.0138911264 | $510,440 | $510,440 | $7.09 | | |
| SWHIDPRMT | P & R S Whidbey GEN | 0.2053334452 | $510,440 | $510,440 | $104.81 | | |
| | Total Tax Rate: | 6.6934522006 | | | | | |
| | | | | Taxes w/Current Exemptions: | $3,416.61 | | |
| | | | | Taxes w/o Exemptions: | $3,416.61 | | |
Improvement / Building
| Improvement #1: | RESIDENTIAL | State Code: | Y | 1436.0 sqft | Value: | $300,440 |
| Bathrooms: | 2 | Bedrooms: | 2 | | Ceiling: | DRYWALL PAINTED | Exterior Wall/Cover: | SHINGLE | | Floor Covering: | HARDWOOD/CARP 20-80 | Floor Structure: | WOOD W/SUBFLOOR | | Foundation: | CONCRETE | Heating: | WALL HEAT ELECTRIC | | Interior Finish: | DRYWALL PAINT | Plumbing Fixture Cnt: | 9 | | Roof Slope: | 12" IN 12" | Roof Structure/Cover: | CJ ASPHALT |
|
| | Type | Description | Class CD | Sub Class CD | Year Built | Area |
| | BAS | BASE/MAIN FLOOR | 4 | 0 | 1994 | 932.0 |
| | OWP | OPEN WOOD PORCH W/STEPS | 4 | 0 | 1994 | 164.0 |
| | OWR | OPEN WOOD PORCH W/STEPS/ROOF | 4 | 0 | 1994 | 237.9 |
| | UPS | UPPER STORY | 4 | 0 | 1994 | 504.0 |
Sketch
Property Image
Land
| 1 | 14 | SQ (08001-12000) | 0.0000 | 0.00 | 0.00 | 0.00 | 1.00 | $210,000 | $0 |
Roll Value History
| 2026 | N/A | N/A | N/A | N/A | N/A |
| 2025 | $300,440 | $210,000 | $0 | $510,440 | $510,440 |
| 2024 | $304,047 | $205,000 | $0 | $509,047 | $509,047 |
| 2023 | $307,656 | $210,000 | $0 | $517,656 | $517,656 |
| 2022 | $281,852 | $200,000 | $0 | $481,852 | $481,852 |
| 2021 | $247,937 | $140,000 | $0 | $387,937 | $387,937 |
| 2020 | $245,011 | $120,000 | $0 | $365,011 | $365,011 |
| 2019 | $181,216 | $135,000 | $0 | $316,216 | $316,216 |
| 2018 | $173,429 | $120,000 | $0 | $293,429 | $293,429 |
| 2017 | $127,162 | $80,000 | $0 | $207,162 | $207,162 |
| 2016 | $128,751 | $70,000 | $0 | $198,751 | $198,751 |
| 2015 | $130,341 | $55,000 | $0 | $185,341 | $185,341 |
| 2014 | $113,917 | $55,000 | $0 | $168,917 | $168,917 |
| 2013 | $115,338 | $55,000 | $0 | $170,338 | $170,338 |
| 2012 | $116,757 | $65,025 | $0 | $181,782 | $181,782 |
| 2011 | $118,177 | $76,500 | $0 | $194,677 | $194,677 |
| 2010 | $123,400 | $85,000 | $0 | $208,400 | $208,400 |
| 2009 | $128,707 | $114,000 | $0 | $242,707 | $242,707 |
| 2008 | $128,384 | $123,000 | $0 | $251,384 | $251,384 |
| 2007 | $130,035 | $88,000 | $0 | $218,035 | $218,035 |
Deed and Sales History
| 1 | 10/05/2021 | CRTDOC | DNU - Court Document | LUMLEY, KARA CHRISTINA | PEABODY, KARA C | | | | 89239 | |
| 2 | 08/29/2020 | WD | Warranty Deed | ANASTASIO, JON M | LUMLEY, KARA CHRISTINA | | | $450,000.00 | 44551 | 4495434 |
|   | |
| 3 | 06/21/2018 | WD | Warranty Deed | SWEENY, ROBERT H | ANASTASIO, JON M | | | $375,000.00 | 34609 | 4446528 |
|   | |
| 4 | 04/17/2007 | WD | Warranty Deed | WICK-GIFFIN, STACY | SWEENY, ROBERT H | | | $288,823.00 | 71336 | 4200428 |
| 5 | 02/13/2000 | TRUSTEED | Trustee's Deed | HOUSEHOLD FINANCE CORP III, | WICK-GIFFIN, STACY | | | $126,000.00 | 956 | 20004695 |
| 6 | 10/31/1999 | QCD | Quit Claim Deed | BREITBARTH, DOUGLAS J | HOUSEHOLD FINANCE CORP III, | | | $0.00 | 95241 | 99029124 |
| 7 | 09/01/1996 | WD | Warranty Deed | LEMAHIEU, DOUGLAS D | BREITBARTH, DOUGLAS J | | | $111,900.00 | 63490 | 96017144 |
| 8 | 07/01/1994 | WD | Warranty Deed | RHODE, WILLIAM R | LEMAHIEU, DOUGLAS D | | | $104,000.00 | 43084 | 94016660 |
| 9 | 11/01/1993 | WD | Warranty Deed | ANDREWS, TEDFORD G | RHODE, WILLIAM R | | | $17,000.00 | 34437 | 93023097 |
| 10 | 07/01/1990 | WD | Warranty Deed | PHIPPS, GENE | ANDREWS, TEDFORD G | | | $5,000.00 | 4543 | 90014971 |
| 11 | 01/01/1990 | WD | Warranty Deed | SCATCHET, HEAD C | PHIPPS, GENE | | | $1,600.00 | 419 | 90001295 |
| 12 | 08/01/1987 | SHERIFFD | Sheriff Deed | LOONEY, WILLIAM A | SCATCHET, HEAD C | | | $0.00 | 62293 | 0 |
| 13 | 05/01/1983 | TTAXD | Treasurer's Tax Deed | DORMER, VERNON P | LOONEY, WILLIAM A | | | $0.00 | 60007 | 409523 |
| 14 | 01/01/1900 | OTHER | Other - Misc. Documents | Unknown | DORMER, VERNON P | | | $0.00 | 0 | 0 |
Payout Agreement
| No payout information available.. |