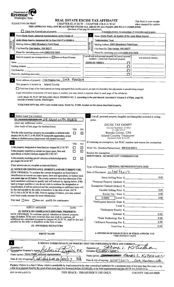
Property
Account |
| Property ID: | 37864 | Abbreviated Legal Description: | 72 - SW SW:BG NE CR SW SW S1*W560' TPB N88*W363' N1* E100' S88*E363' S1*W100' TPB EX RD TGW & SUB EZ AF#91018483 |
| Geographic ID: | R13327-082-1130 | Agent Code: | |
| Type: | Real | | |
| Tax Area: | 110 - APPRAISER-OH Schl Dist, outside OH, improved & 1 acre or less | Land Use Code | 11 |
| Open Space: | N | DFL | N |
| Historic Property: | N | Remodel Property: | N |
| Multi-Family Redevelopment: | N | | |
| Township: | 33 | Section: | 27 |
| Range: | R1 |
Location |
| Address: | 2861 HELLER RD OAK HARBOR, WA 98277 | Mapsco: | |
| Neighborhood: | Cycle 6 | Map ID: | 234 |
| Neighborhood CD: | 6 |
Owner |
| Name: | CLOWARD, DAVID R | Owner ID: | 283311 |
| Mailing Address: | CELESTIA A S CLOWARD 1217 E 1525 N LAYTON, UT 84040 | % Ownership: | 100.0000000000% |
| | | Exemptions: | |
Taxes and Assessment Details
Values
| (+) Improvement Homesite Value: | + | $0 | |
| (+) Improvement Non-Homesite Value: | + | $343,854 | |
| (+) Land Homesite Value: | + | $0 | |
| (+) Land Non-Homesite Value: | + | $200,000 | |
| (+) Curr Use (HS): | + | $0 | $0 |
| (+) Curr Use (NHS): | + | $0 | $0 |
| | | -------------------------- | |
| (=) Market Value: | = | $543,854 | |
| (–) Productivity Loss: | – | $0 | |
| | | -------------------------- | |
| (=) Subtotal: | = | $543,854 | |
| (+) Senior Appraised Value: | + | $0 | |
| (+) Non-Senior Appraised Value: | + | $543,854 | |
| | | -------------------------- | |
| (=) Total Appraised Value: | = | $543,854 | |
| (–) Senior Exemption Loss: | – | $0 | |
| (–) Exemption Loss: | – | $0 | |
| | | -------------------------- | |
| (=) Taxable Value: | = | $543,854 | |
Taxing Jurisdiction
| Owner: | CLOWARD, DAVID R | | |
| % Ownership: | 100.0000000000% | | |
| Total Value: | $543,854 | | |
| Tax Area: | 110 - APPRAISER-OH Schl Dist, outside OH, improved & 1 acre or less |
| CF | Conservation Futures | 0.0316035091 | $543,854 | $543,854 | $17.19 | | |
| CEM1 | Cemetery #1 | 0.0040320932 | $543,854 | $543,854 | $2.19 | | |
| FIRE2 | Fire & Rescue Dist #2 N Whidbey GEN | 0.5475949600 | $543,854 | $543,854 | $297.81 | | |
| HOBOND | Hospital BOND | 0.1910887512 | $543,854 | $543,854 | $103.92 | | |
| HOGEN | Hospital GEN | 0.3902502903 | $543,854 | $543,854 | $212.24 | | |
| CE | County Current Expense | 0.3708482477 | $543,854 | $543,854 | $201.69 | | |
| CR | County Roads | 0.4584763726 | $543,854 | $543,854 | $249.34 | | |
| ISLANDEMS | Hospital GEN (EMS) | 0.5000000000 | $543,854 | $543,854 | $271.93 | | |
| LIB | Library Sno-Isle GEN | 0.3153421757 | $543,854 | $543,854 | $171.50 | | |
| NWHIDPRMT | P & R N Whidbey GEN | 0.2004466701 | $543,854 | $543,854 | $109.01 | | |
| SCH201MO | School 201 Enrichment | 1.8559231640 | $543,854 | $543,854 | $1,009.35 | | |
| ST | State School | 1.3035497053 | $543,854 | $543,854 | $708.94 | | |
| ST2 | State School Part 2 | 0.8169543533 | $543,854 | $543,854 | $444.30 | | |
| | Total Tax Rate: | 6.9861102925 | | | | | |
| | | | | Taxes w/Current Exemptions: | $3,799.41 | | |
| | | | | Taxes w/o Exemptions: | $3,799.41 | | |
Improvement / Building
| Improvement #1: | RESIDENTIAL | State Code: | Y | 2564.0 sqft | Value: | $343,854 |
| Bathrooms: | 3 | Bedrooms: | 5 | | Ceiling: | DRY WALL SPRAYED | Exterior Wall/Cover: | PLY/HARDBOARD T-111 | | Floor Covering: | HARDWOOD/CARP 60-40 | Floor Structure: | WOOD W/SUBFLOOR | | Foundation: | CONCRETE | Heating: | FHA GAS | | Interior Finish: | DRYWALL PAINT | Plumbing Fixture Cnt: | 12 | | Roof Slope: | 4" IN 12" | Roof Structure/Cover: | CJ ASPHALT |
|
| | Type | Description | Class CD | Sub Class CD | Year Built | Area |
| | BAS | BASE/MAIN FLOOR | 3 | 0 | 1972 | 1696.0 |
| | UTY | STORAGE/UTILITY | 3 | 0 | 1972 | 96.0 |
| | BIG | BUILT IN GARAGE | 3 | 0 | 1972 | 720.0 |
| | OWP | OPEN WOOD PORCH W/STEPS | 3 | 0 | 1972 | 561.0 |
| | DWN | DOWNSTAIRS LIVING AREA | 3 | 0 | 1972 | 868.0 |
Sketch
Property Image
Land
| 1 | 16 | AC (00.51-01.00) | 0.7700 | 33541.20 | 0.00 | 0.00 | 1.00 | $200,000 | $0 |
Roll Value History
| 2026 | N/A | N/A | N/A | N/A | N/A |
| 2025 | $343,854 | $200,000 | $0 | $543,854 | $543,854 |
| 2024 | $348,550 | $190,000 | $0 | $538,550 | $538,550 |
| 2023 | $353,245 | $190,000 | $0 | $543,245 | $543,245 |
| 2022 | $324,123 | $160,000 | $0 | $484,123 | $484,123 |
| 2021 | $285,540 | $125,000 | $0 | $410,540 | $410,540 |
| 2020 | $278,914 | $110,000 | $0 | $388,914 | $388,914 |
| 2019 | $217,762 | $155,000 | $0 | $372,762 | $372,762 |
| 2018 | $218,448 | $150,000 | $0 | $368,448 | $368,448 |
| 2017 | $193,129 | $120,000 | $0 | $313,129 | $313,129 |
| 2016 | $146,294 | $90,000 | $0 | $236,294 | $236,294 |
| 2015 | $148,693 | $85,000 | $0 | $233,693 | $233,693 |
| 2014 | $151,091 | $100,000 | $0 | $251,091 | $251,091 |
| 2013 | $148,282 | $85,500 | $0 | $233,782 | $233,782 |
| 2012 | $150,599 | $85,500 | $0 | $236,099 | $236,099 |
| 2011 | $152,916 | $95,000 | $0 | $247,916 | $247,916 |
| 2010 | $173,617 | $95,000 | $0 | $268,617 | $268,617 |
| 2009 | $181,260 | $105,000 | $0 | $286,260 | $286,260 |
| 2008 | $183,984 | $92,500 | $0 | $276,484 | $276,484 |
| 2007 | $186,910 | $92,500 | $0 | $279,410 | $279,410 |
Deed and Sales History
| 1 | 12/07/2017 | WD | Warranty Deed | HONDA, DAGAN P | CLOWARD, DAVID R | | | $347,250.00 | 32314 | 4435948 |
| 2 | 06/03/2013 | WD | Warranty Deed | NICHOLSON, ROBERT B | HONDA, DAGAN P | | | $269,000.00 | 11480 | 4340989 |
| 3 | 10/01/1978 | OTHER | Other - Misc. Documents | NO, | NICHOLSON, ROBERT B | | | $64,250.00 | 85336 | 342172 |
| 4 | 01/01/1900 | OTHER | Other - Misc. Documents | Unknown | NO, | | | $0.00 | 853360 | 34217200 |
Payout Agreement
| No payout information available.. |