Property
Account |
| Property ID: | 378683 | Abbreviated Legal Description: | SCAT HD 1 LOT 11 BLK 9 |
| Geographic ID: | S8110-00-09011-0 | Agent Code: | |
| Type: | Real | | |
| Tax Area: | 740 - APPRAISER-S Whid Schl Dist, Special District, improved & less than 1 acre | Land Use Code | 11 |
| Open Space: | N | DFL | N |
| Historic Property: | N | Remodel Property: | N |
| Multi-Family Redevelopment: | N | | |
| Township: | | Section: | |
| Range: | |
Location |
| Address: | 3681 HARPER ST CLINTON, WA 98236 | Mapsco: | |
| Neighborhood: | Cycle 4 | Map ID: | 697 |
| Neighborhood CD: | 4 |
Owner |
| Name: | BAIRD, RANDALL | Owner ID: | 282124 |
| Mailing Address: | PATRICIA A BAIRD 3681 HARPER ST CLINTON, WA 98236 | % Ownership: | 100.0000000000% |
| | | Exemptions: | SNR/DSBL |
Taxes and Assessment Details
Values
| (+) Improvement Homesite Value: | + | $251,124 | |
| (+) Improvement Non-Homesite Value: | + | $0 | |
| (+) Land Homesite Value: | + | $210,000 | |
| (+) Land Non-Homesite Value: | + | $0 | |
| (+) Curr Use (HS): | + | $0 | $0 |
| (+) Curr Use (NHS): | + | $0 | $0 |
| | | -------------------------- | |
| (=) Market Value: | = | $461,124 | |
| (–) Productivity Loss: | – | $0 | |
| | | -------------------------- | |
| (=) Subtotal: | = | $461,124 | |
| (+) Senior Appraised Value: | + | $344,069 | |
| (+) Non-Senior Appraised Value: | + | $0 | |
| | | -------------------------- | |
| (=) Total Appraised Value: | = | $344,069 | |
| (–) Senior Exemption Loss: | – | $0 | |
| (–) Exemption Loss: | – | $0 | |
| | | -------------------------- | |
| (=) Taxable Value: | = | $344,069 | |
Taxing Jurisdiction
| Owner: | BAIRD, RANDALL | | |
| % Ownership: | 100.0000000000% | | |
| Total Value: | $461,124 | | |
| Tax Area: | 740 - APPRAISER-S Whid Schl Dist, Special District, improved & less than 1 acre |
| CF | Conservation Futures | 0.0316035091 | $461,124 | $344,069 | $10.87 | | |
| FIRE3 | Fire & Rescue Dist #3 S Whidbey GEN | 1.2004855531 | $461,124 | $344,069 | $413.05 | | |
| HOBOND | Hospital BOND | 0.0000000000 | $461,124 | $0 | $0.00 | | |
| HOGEN | Hospital GEN | 0.3902502903 | $461,124 | $344,069 | $134.27 | | |
| CE | County Current Expense | 0.3708482477 | $461,124 | $344,069 | $127.60 | | |
| CR | County Roads | 0.4584763726 | $461,124 | $344,069 | $157.75 | | |
| ISLANDEMS | Hospital GEN (EMS) | 0.5000000000 | $461,124 | $344,069 | $172.03 | | |
| LIB | Library Sno-Isle GEN | 0.3153421757 | $461,124 | $344,069 | $108.50 | | |
| PORTWHID | Port of S Whidbey GEN | 0.1094540357 | $461,124 | $344,069 | $37.66 | | |
| SCH206BOND | School 206 BOND | 0.3161759235 | $461,124 | $344,069 | $108.79 | | |
| SCH206MO | School 206 Enrichment | 0.0000000000 | $461,124 | $0 | $0.00 | | |
| ST | State School | 1.3035497053 | $461,124 | $344,069 | $448.51 | | |
| ST2 | State School Part 2 | 0.0000000000 | $461,124 | $0 | $0.00 | | |
| SWHIDPRBD | P & R S Whidbey BOND | 0.0000000000 | $461,124 | $0 | $0.00 | | |
| SWHIDPRBD2 | P & R S Whidbey BOND2 | 0.0000000000 | $461,124 | $0 | $0.00 | | |
| SWHIDPRMT | P & R S Whidbey GEN | 0.2053334452 | $461,124 | $344,069 | $70.65 | | |
| | Total Tax Rate: | 5.2015192582 | | | | | |
| | | | | Taxes w/Current Exemptions: | $1,789.68 | | |
| | | | | Taxes w/o Exemptions: | $3,086.51 | | |
Improvement / Building
| Improvement #1: | RESIDENTIAL | State Code: | Y | 1557.0 sqft | Value: | $251,124 |
| Bathrooms: | 1.75 | Bedrooms: | 2 | | Ceiling: | BEAM PAINTED | Exterior Wall/Cover: | WOOD SIDING | | Floor Covering: | CARPET/VINYL 60-40 | Floor Structure: | SLAB ON GRADE | | Foundation: | SLAB/CONCRETE | Heating: | RADIANT FLOOR | | Interior Finish: | DRYWALL PAINT | Plumbing Fixture Cnt: | 9 | | Roof Slope: | 4" IN 12" | Roof Structure/Cover: | BEAM ASPHALT |
|
| | Type | Description | Class CD | Sub Class CD | Year Built | Area |
| | BAS | BASE/MAIN FLOOR | 3 | 0 | 1996 | 1557.0 |
| | OP4 | OPEN PORCH W/CEILING-ROOF | 3 | 0 | 1996 | 47.0 |
| | OWP | OPEN WOOD PORCH W/STEPS | 3 | 0 | 1996 | 257.5 |
| | OWR | OPEN WOOD PORCH W/STEPS/ROOF | 3 | 0 | 1996 | 24.0 |
| | UTY | STORAGE/UTILITY | 3 | 0 | 1996 | 192.0 |
Sketch
Property Image
Land
| 1 | 15 | SQ (12001-21780) | 0.0000 | 0.00 | 0.00 | 0.00 | 1.00 | $210,000 | $0 |
Roll Value History
| 2026 | N/A | N/A | N/A | N/A | N/A |
| 2025 | $251,124 | $210,000 | $0 | $461,124 | $344,069 |
| 2024 | $249,595 | $205,000 | $0 | $454,595 | $344,069 |
| 2023 | $252,786 | $210,000 | $0 | $462,786 | $137,628 |
| 2022 | $231,790 | $200,000 | $0 | $431,790 | $137,628 |
| 2021 | $204,069 | $140,000 | $0 | $344,069 | $137,628 |
| 2020 | $194,355 | $120,000 | $0 | $314,355 | $314,355 |
| 2019 | $142,109 | $135,000 | $0 | $277,109 | $277,109 |
| 2018 | $142,546 | $120,000 | $0 | $262,546 | $262,546 |
| 2017 | $141,325 | $80,000 | $0 | $221,325 | $221,325 |
| 2016 | $143,048 | $70,000 | $0 | $213,048 | $213,048 |
| 2015 | $144,772 | $55,000 | $0 | $199,772 | $199,772 |
| 2014 | $129,387 | $55,000 | $0 | $184,387 | $184,387 |
| 2013 | $130,945 | $55,000 | $0 | $185,945 | $185,945 |
| 2012 | $132,505 | $58,523 | $0 | $191,028 | $191,028 |
| 2011 | $134,064 | $68,850 | $0 | $202,914 | $202,914 |
| 2010 | $140,439 | $76,500 | $0 | $216,939 | $216,939 |
| 2009 | $146,417 | $91,200 | $0 | $237,617 | $237,617 |
| 2008 | $146,893 | $110,700 | $0 | $257,593 | $257,593 |
| 2007 | $148,554 | $82,000 | $0 | $230,554 | $230,554 |
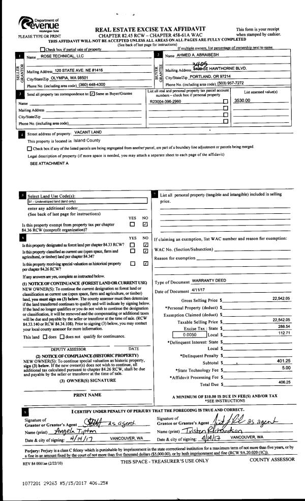
Deed and Sales History
| 1 | 09/21/2017 | WD | Warranty Deed | DRESSLER, LAURA | BAIRD, RANDALL | | | $298,000.00 | 31237 | 4430880 |
| 2 | 03/06/2008 | WD | Warranty Deed | MC CLEERY, CONSTANCE L | DRESSLER, LAURA | | | $250,000.00 | 80624 | 4224114 |
| 3 | 04/02/2004 | PRD | Personal Representatives Deed | MC CLEERY, CONSTANCE L | MC CLEERY, CONSTANCE L | | | $0.00 | 41805 | 4099280 |
| 4 | 07/31/2003 | PRD | Personal Representatives Deed | CROSS, SHIRLEY A | MC CLEERY, CONSTANCE L | | | $0.00 | 33482 | 4070864 |
| 5 | 05/01/1994 | WD | Warranty Deed | UNDERWOOD, DAVE A | CROSS, SHIRLEY A | | | $24,500.00 | 42021 | 94011825 |
| 6 | 01/01/1990 | WD | Warranty Deed | BIGGER, CELESTINE H | UNDERWOOD, DAVE A | | | $10,950.00 | 266 | 90000793 |
| 7 | 01/01/1985 | OTHER | Other - Misc. Documents | PETERSON, CELESTINE H | BIGGER, CELESTINE H | | | $0.00 | 61009 | 0 |
| 8 | 01/01/1983 | OTHER | Other - Misc. Documents | PETERSON, JENS R | PETERSON, CELESTINE H | | | $0.00 | 59803 | 0 |
| 9 | 01/01/1900 | OTHER | Other - Misc. Documents | Unknown | PETERSON, JENS R | | | $0.00 | 0 | 0 |
Payout Agreement
| No payout information available.. |