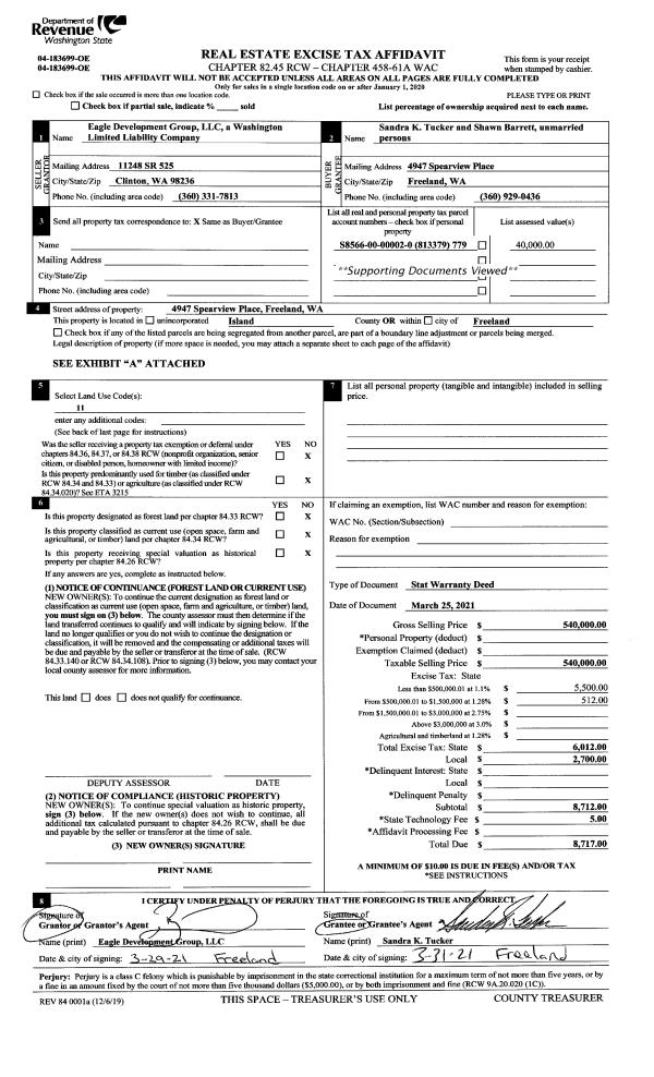
Property
Account |
| Property ID: | 378736 | Abbreviated Legal Description: | SCAT HD 1 LOT 16 BLK 9 |
| Geographic ID: | S8110-00-09016-0 | Agent Code: | |
| Type: | Real | | |
| Tax Area: | 740 - APPRAISER-S Whid Schl Dist, Special District, improved & less than 1 acre | Land Use Code | 11 |
| Open Space: | N | DFL | N |
| Historic Property: | N | Remodel Property: | N |
| Multi-Family Redevelopment: | N | | |
| Township: | | Section: | |
| Range: | |
Location |
| Address: | 3654 HARPER ST CLINTON, WA 98236 | Mapsco: | |
| Neighborhood: | Cycle 4 | Map ID: | 697 |
| Neighborhood CD: | 4 |
Owner |
| Name: | KASPRISIN, RONALD | Owner ID: | 294114 |
| Mailing Address: | PO BOX 1515 LANGLEY, WA 98260 | % Ownership: | 100.0000000000% |
| | | Exemptions: | |
Taxes and Assessment Details
Values
| (+) Improvement Homesite Value: | + | $0 | |
| (+) Improvement Non-Homesite Value: | + | $175,213 | |
| (+) Land Homesite Value: | + | $0 | |
| (+) Land Non-Homesite Value: | + | $210,000 | |
| (+) Curr Use (HS): | + | $0 | $0 |
| (+) Curr Use (NHS): | + | $0 | $0 |
| | | -------------------------- | |
| (=) Market Value: | = | $385,213 | |
| (–) Productivity Loss: | – | $0 | |
| | | -------------------------- | |
| (=) Subtotal: | = | $385,213 | |
| (+) Senior Appraised Value: | + | $0 | |
| (+) Non-Senior Appraised Value: | + | $385,213 | |
| | | -------------------------- | |
| (=) Total Appraised Value: | = | $385,213 | |
| (–) Senior Exemption Loss: | – | $0 | |
| (–) Exemption Loss: | – | $0 | |
| | | -------------------------- | |
| (=) Taxable Value: | = | $385,213 | |
Taxing Jurisdiction
| Owner: | KASPRISIN, RONALD | | |
| % Ownership: | 100.0000000000% | | |
| Total Value: | $385,213 | | |
| Tax Area: | 740 - APPRAISER-S Whid Schl Dist, Special District, improved & less than 1 acre |
| CF | Conservation Futures | 0.0316035091 | $385,213 | $385,213 | $12.17 | | |
| FIRE3 | Fire & Rescue Dist #3 S Whidbey GEN | 1.2004855531 | $385,213 | $385,213 | $462.44 | | |
| HOBOND | Hospital BOND | 0.1910887512 | $385,213 | $385,213 | $73.61 | | |
| HOGEN | Hospital GEN | 0.3902502903 | $385,213 | $385,213 | $150.33 | | |
| CE | County Current Expense | 0.3708482477 | $385,213 | $385,213 | $142.86 | | |
| CR | County Roads | 0.4584763726 | $385,213 | $385,213 | $176.61 | | |
| ISLANDEMS | Hospital GEN (EMS) | 0.5000000000 | $385,213 | $385,213 | $192.61 | | |
| LIB | Library Sno-Isle GEN | 0.3153421757 | $385,213 | $385,213 | $121.47 | | |
| PORTWHID | Port of S Whidbey GEN | 0.1094540357 | $385,213 | $385,213 | $42.16 | | |
| SCH206BOND | School 206 BOND | 0.3161759235 | $385,213 | $385,213 | $121.80 | | |
| SCH206MO | School 206 Enrichment | 0.4547169547 | $385,213 | $385,213 | $175.16 | | |
| ST | State School | 1.3035497053 | $385,213 | $385,213 | $502.14 | | |
| ST2 | State School Part 2 | 0.8169543533 | $385,213 | $385,213 | $314.70 | | |
| SWHIDPRBD | P & R S Whidbey BOND | 0.0152817568 | $385,213 | $385,213 | $5.89 | | |
| SWHIDPRBD2 | P & R S Whidbey BOND2 | 0.0138911264 | $385,213 | $385,213 | $5.35 | | |
| SWHIDPRMT | P & R S Whidbey GEN | 0.2053334452 | $385,213 | $385,213 | $79.10 | | |
| | Total Tax Rate: | 6.6934522006 | | | | | |
| | | | | Taxes w/Current Exemptions: | $2,578.40 | | |
| | | | | Taxes w/o Exemptions: | $2,578.40 | | |
Improvement / Building
| Improvement #1: | RESIDENTIAL | State Code: | Y | 1152.0 sqft | Value: | $175,213 |
| Bathrooms: | 2 | Bedrooms: | 2 | | Ceiling: | DRYWALL PAINTED | Exterior Wall/Cover: | PLY/HARDBOARD T-111 | | Floor Covering: | HARDWOOD/CARP 20-80 | Floor Structure: | WOOD W/SUBFLOOR | | Foundation: | CONCRETE | Heating: | WALL HEAT ELECTRIC | | Interior Finish: | DRYWALL PAINT | Plumbing Fixture Cnt: | 8 | | Roof Slope: | 4" IN 12" | Roof Structure/Cover: | CJ ASPHALT |
|
| | Type | Description | Class CD | Sub Class CD | Year Built | Area |
| | BAS | BASE/MAIN FLOOR | 3 | 0 | 1995 | 576.0 |
| | OP1 | OPEN PORCH SLAB | 3 | 0 | 1995 | 96.0 |
| | OCP | OPEN CARPORT | 3 | 0 | 1995 | 255.3 |
| | UTY | STORAGE/UTILITY | 3 | 0 | 1995 | 64.7 |
| | OWP | OPEN WOOD PORCH W/STEPS | 3 | 0 | 1995 | 128.0 |
| | OWC | OPEN WOOD PORCH W/STEPS/ROOF/C | 3 | 0 | 1995 | 45.0 |
| | DWN | DOWNSTAIRS LIVING AREA | 3 | 0 | 1995 | 576.0 |
Sketch
Property Image
Land
| 1 | 13 | SQ (06001-08000) | 0.0000 | 0.00 | 0.00 | 0.00 | 1.00 | $210,000 | $0 |
Roll Value History
| 2026 | N/A | N/A | N/A | N/A | N/A |
| 2025 | $175,213 | $210,000 | $0 | $385,213 | $385,213 |
| 2024 | $177,426 | $205,000 | $0 | $382,426 | $382,426 |
| 2023 | $179,636 | $210,000 | $0 | $389,636 | $389,636 |
| 2022 | $164,667 | $200,000 | $0 | $364,667 | $364,667 |
| 2021 | $144,919 | $140,000 | $0 | $284,919 | $284,919 |
| 2020 | $132,943 | $120,000 | $0 | $252,943 | $252,943 |
| 2019 | $92,950 | $135,000 | $0 | $227,950 | $227,950 |
| 2018 | $93,239 | $120,000 | $0 | $213,239 | $213,239 |
| 2017 | $93,802 | $80,000 | $0 | $173,802 | $173,802 |
| 2016 | $94,961 | $70,000 | $0 | $164,961 | $164,961 |
| 2015 | $96,118 | $55,000 | $0 | $151,118 | $151,118 |
| 2014 | $93,742 | $55,000 | $0 | $148,742 | $148,742 |
| 2013 | $94,901 | $55,000 | $0 | $149,901 | $149,901 |
| 2012 | $96,060 | $65,025 | $0 | $161,085 | $161,085 |
| 2011 | $97,217 | $76,500 | $0 | $173,717 | $173,717 |
| 2010 | $102,135 | $85,000 | $0 | $187,135 | $187,135 |
| 2009 | $106,665 | $114,000 | $0 | $220,665 | $220,665 |
| 2008 | $109,390 | $123,000 | $0 | $232,390 | $232,390 |
| 2007 | $110,994 | $88,000 | $0 | $198,994 | $198,994 |
Deed and Sales History
| 1 | 05/01/2020 | WD | Warranty Deed | EASTERLY-FUENTES, DENESE | KASPRISIN, RONALD | | | $310,000.00 | 42921 | 4486044 |
| 2 | 05/05/2006 | WD | Warranty Deed | NEWMAN, HEATHER | EASTERLY-FUENTES, DENESE | | | $219,900.00 | 62106 | 4170481 |
| 3 | 10/31/2005 | QCD | Quit Claim Deed | GARDNER, DUSTIN D | NEWMAN, HEATHER | | | $0.00 | 55494 | 4152650 |
| 4 | 03/03/2004 | WD | Warranty Deed | SPANG, RICHARD R | GARDNER, DUSTIN D | | | $146,500.00 | 40891 | 4093627 |
| 5 | 02/27/2003 | QCD | Quit Claim Deed | SPANG, RICHARD R | SPANG, RICHARD R | | | $0.00 | 30891 | 4049921 |
| 6 | 08/28/1998 | WD | Warranty Deed | LONG, LOREN O | SPANG, RICHARD R | | | $129,000.00 | 83539 | 98018431 |
| 7 | 03/01/1996 | WD | Warranty Deed | RHODE, WILLIAM R | LONG, LOREN O | | | $98,500.00 | 60917 | 96004820 |
| 8 | 03/01/1994 | WD | Warranty Deed | BARBER, WILLIAM A | RHODE, WILLIAM R | | | $12,365.00 | 41489 | 94009100 |
| 9 | 01/01/1900 | OTHER | Other - Misc. Documents | Unknown | BARBER, WILLIAM A | | | $0.00 | 0 | 0 |
Payout Agreement
| No payout information available.. |