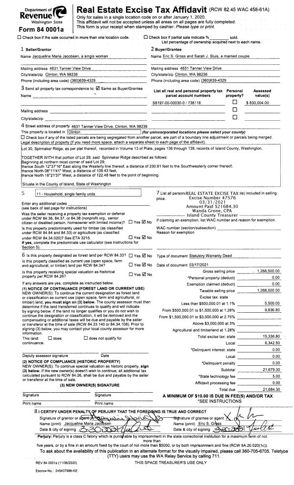
Property
Account |
| Property ID: | 378763 | Abbreviated Legal Description: | SCATCHET HEAD #1 LOT 19 BLK 9 |
| Geographic ID: | S8110-00-09019-0 | Agent Code: | |
| Type: | Real | | |
| Tax Area: | 740 - APPRAISER-S Whid Schl Dist, Special District, improved & less than 1 acre | Land Use Code | 11 |
| Open Space: | N | DFL | N |
| Historic Property: | N | Remodel Property: | N |
| Multi-Family Redevelopment: | N | | |
| Township: | | Section: | |
| Range: | |
Location |
| Address: | 3634 HARPER ST CLINTON, WA 98236 | Mapsco: | |
| Neighborhood: | Cycle 4 | Map ID: | 697 |
| Neighborhood CD: | 4 |
Owner |
| Name: | RUSCIGNO, CHRISTI J | Owner ID: | 2520 |
| Mailing Address: | 3634 HARPER ST CLINTON, WA 98236-9208 | % Ownership: | 100.0000000000% |
| | | Exemptions: | |
Taxes and Assessment Details
Values
| (+) Improvement Homesite Value: | + | $0 | |
| (+) Improvement Non-Homesite Value: | + | $189,005 | |
| (+) Land Homesite Value: | + | $0 | |
| (+) Land Non-Homesite Value: | + | $210,000 | |
| (+) Curr Use (HS): | + | $0 | $0 |
| (+) Curr Use (NHS): | + | $0 | $0 |
| | | -------------------------- | |
| (=) Market Value: | = | $399,005 | |
| (–) Productivity Loss: | – | $0 | |
| | | -------------------------- | |
| (=) Subtotal: | = | $399,005 | |
| (+) Senior Appraised Value: | + | $0 | |
| (+) Non-Senior Appraised Value: | + | $399,005 | |
| | | -------------------------- | |
| (=) Total Appraised Value: | = | $399,005 | |
| (–) Senior Exemption Loss: | – | $0 | |
| (–) Exemption Loss: | – | $0 | |
| | | -------------------------- | |
| (=) Taxable Value: | = | $399,005 | |
Taxing Jurisdiction
| Owner: | RUSCIGNO, CHRISTI J | | |
| % Ownership: | 100.0000000000% | | |
| Total Value: | $399,005 | | |
| Tax Area: | 740 - APPRAISER-S Whid Schl Dist, Special District, improved & less than 1 acre |
| CF | Conservation Futures | 0.0316035091 | $399,005 | $399,005 | $12.61 | | |
| FIRE3 | Fire & Rescue Dist #3 S Whidbey GEN | 1.2004855531 | $399,005 | $399,005 | $479.00 | | |
| HOBOND | Hospital BOND | 0.1910887512 | $399,005 | $399,005 | $76.25 | | |
| HOGEN | Hospital GEN | 0.3902502903 | $399,005 | $399,005 | $155.71 | | |
| CE | County Current Expense | 0.3708482477 | $399,005 | $399,005 | $147.97 | | |
| CR | County Roads | 0.4584763726 | $399,005 | $399,005 | $182.93 | | |
| ISLANDEMS | Hospital GEN (EMS) | 0.5000000000 | $399,005 | $399,005 | $199.50 | | |
| LIB | Library Sno-Isle GEN | 0.3153421757 | $399,005 | $399,005 | $125.82 | | |
| PORTWHID | Port of S Whidbey GEN | 0.1094540357 | $399,005 | $399,005 | $43.67 | | |
| SCH206BOND | School 206 BOND | 0.3161759235 | $399,005 | $399,005 | $126.16 | | |
| SCH206MO | School 206 Enrichment | 0.4547169547 | $399,005 | $399,005 | $181.43 | | |
| ST | State School | 1.3035497053 | $399,005 | $399,005 | $520.12 | | |
| ST2 | State School Part 2 | 0.8169543533 | $399,005 | $399,005 | $325.97 | | |
| SWHIDPRBD | P & R S Whidbey BOND | 0.0152817568 | $399,005 | $399,005 | $6.10 | | |
| SWHIDPRBD2 | P & R S Whidbey BOND2 | 0.0138911264 | $399,005 | $399,005 | $5.54 | | |
| SWHIDPRMT | P & R S Whidbey GEN | 0.2053334452 | $399,005 | $399,005 | $81.93 | | |
| | Total Tax Rate: | 6.6934522006 | | | | | |
| | | | | Taxes w/Current Exemptions: | $2,670.71 | | |
| | | | | Taxes w/o Exemptions: | $2,670.71 | | |
Improvement / Building
| Improvement #1: | RESIDENTIAL | State Code: | Y | 1520.4 sqft | Value: | $189,005 |
| Bathrooms: | 2 | Bedrooms: | 3 | | Ceiling: | BEAM PAINTED | Exterior Wall/Cover: | WOOD SIDING | | Floor Covering: | SOFTWOOD 100% | Floor Structure: | SLAB ON GRADE | | Foundation: | CONCRETE | Heating: | FHA GAS | | Interior Finish: | DRYWALL PAINT | Plumbing Fixture Cnt: | 9 | | Roof Slope: | 4" IN 12" | Roof Structure/Cover: | BEAM ASPHALT |
|
| | Type | Description | Class CD | Sub Class CD | Year Built | Area |
| | BAS | BASE/MAIN FLOOR | 3 | 0 | 1977 | 821.7 |
| | DWN | DOWNSTAIRS LIVING AREA | 3 | 0 | 1977 | 698.7 |
| | OP1 | OPEN PORCH SLAB | 3 | 0 | 1977 | 97.1 |
| | OWP | OPEN WOOD PORCH W/STEPS | 3 | 0 | 1977 | 302.7 |
Sketch
Property Image
Land
| 1 | 13 | SQ (06001-08000) | 0.0000 | 0.00 | 0.00 | 0.00 | 1.00 | $210,000 | $0 |
Roll Value History
| 2026 | N/A | N/A | N/A | N/A | N/A |
| 2025 | $189,005 | $210,000 | $0 | $399,005 | $399,005 |
| 2024 | $188,357 | $205,000 | $0 | $393,357 | $393,357 |
| 2023 | $191,077 | $210,000 | $0 | $401,077 | $88,202 |
| 2022 | $175,478 | $200,000 | $0 | $375,478 | $220,504 |
| 2021 | $164,435 | $140,000 | $0 | $304,435 | $220,504 |
| 2020 | $146,564 | $120,000 | $0 | $266,564 | $220,504 |
| 2019 | $100,137 | $135,000 | $0 | $235,137 | $220,504 |
| 2018 | $100,504 | $120,000 | $0 | $220,504 | $220,504 |
| 2017 | $101,238 | $80,000 | $0 | $181,238 | $181,238 |
| 2016 | $102,705 | $70,000 | $0 | $172,705 | $172,705 |
| 2015 | $103,558 | $55,000 | $0 | $158,558 | $158,558 |
| 2014 | $89,393 | $55,000 | $0 | $144,393 | $144,393 |
| 2013 | $90,752 | $55,000 | $0 | $145,752 | $145,752 |
| 2012 | $92,109 | $65,025 | $0 | $157,134 | $157,134 |
| 2011 | $93,468 | $76,500 | $0 | $169,968 | $169,968 |
| 2010 | $95,765 | $85,000 | $0 | $180,765 | $180,765 |
| 2009 | $99,982 | $114,000 | $0 | $213,982 | $213,982 |
| 2008 | $98,045 | $123,000 | $0 | $221,045 | $221,045 |
| 2007 | $99,433 | $88,000 | $0 | $187,433 | $187,433 |
Deed and Sales History
| 1 | 03/01/1993 | QCD | Quit Claim Deed | RUSCIGNO, VICTOR F | RUSCIGNO, CHRISTI J | | | $0.00 | 31131 | 93005751 |
| 2 | 06/01/1989 | WD | Warranty Deed | RUSCIGNO, CHRISTI | RUSCIGNO, VICTOR F | | | $0.00 | 92146 | 89007309 |
| 3 | 06/01/1982 | CD | DNU - Correction Deed | RUSCIGNO, DOMONIC | RUSCIGNO, CHRISTI | | | $0.00 | 22326 | 401106 |
| 4 | 05/01/1971 | OTHER | Other - Misc. Documents | SCATCHET, HTS I | RUSCIGNO, DOMONIC | | | $2,200.00 | 41247 | 0 |
| 5 | 01/01/1900 | OTHER | Other - Misc. Documents | Unknown | SCATCHET, HTS I | | | $0.00 | 0 | 0 |
Payout Agreement
| No payout information available.. |