Property
Account |
| Property ID: | 380251 | Abbreviated Legal Description: | SCAT HD 1 LOT 76 BLK 14 DRAINFIELD LOC 32815-233- 2320 AF#96006155 |
| Geographic ID: | S8110-00-14076-0 | Agent Code: | |
| Type: | Real | | |
| Tax Area: | 740 - APPRAISER-S Whid Schl Dist, Special District, improved & less than 1 acre | Land Use Code | 11 |
| Open Space: | N | DFL | N |
| Historic Property: | N | Remodel Property: | N |
| Multi-Family Redevelopment: | N | | |
| Township: | | Section: | |
| Range: | |
Location |
| Address: | 3644 DRIFTWOOD DR CLINTON, WA 98236 | Mapsco: | |
| Neighborhood: | Cycle 4 | Map ID: | 712 |
| Neighborhood CD: | 4 |
Owner |
| Name: | MOORHEAD, TODD | Owner ID: | 313967 |
| Mailing Address: | 3644 DRIFTWOOD DR CLINTON, WA 98236 | % Ownership: | 100.0000000000% |
| | | Exemptions: | |
Taxes and Assessment Details
Values
| (+) Improvement Homesite Value: | + | $0 | |
| (+) Improvement Non-Homesite Value: | + | $427,802 | |
| (+) Land Homesite Value: | + | $0 | |
| (+) Land Non-Homesite Value: | + | $850,000 | |
| (+) Curr Use (HS): | + | $0 | $0 |
| (+) Curr Use (NHS): | + | $0 | $0 |
| | | -------------------------- | |
| (=) Market Value: | = | $1,277,802 | |
| (–) Productivity Loss: | – | $0 | |
| | | -------------------------- | |
| (=) Subtotal: | = | $1,277,802 | |
| (+) Senior Appraised Value: | + | $0 | |
| (+) Non-Senior Appraised Value: | + | $1,277,802 | |
| | | -------------------------- | |
| (=) Total Appraised Value: | = | $1,277,802 | |
| (–) Senior Exemption Loss: | – | $0 | |
| (–) Exemption Loss: | – | $0 | |
| | | -------------------------- | |
| (=) Taxable Value: | = | $1,277,802 | |
Taxing Jurisdiction
| Owner: | MOORHEAD, TODD | | |
| % Ownership: | 100.0000000000% | | |
| Total Value: | $1,277,802 | | |
| Tax Area: | 740 - APPRAISER-S Whid Schl Dist, Special District, improved & less than 1 acre |
| CF | Conservation Futures | 0.0316035091 | $1,277,802 | $1,277,802 | $40.38 | | |
| FIRE3 | Fire & Rescue Dist #3 S Whidbey GEN | 1.2004855531 | $1,277,802 | $1,277,802 | $1,533.98 | | |
| HOBOND | Hospital BOND | 0.1910887512 | $1,277,802 | $1,277,802 | $244.17 | | |
| HOGEN | Hospital GEN | 0.3902502903 | $1,277,802 | $1,277,802 | $498.66 | | |
| CE | County Current Expense | 0.3708482477 | $1,277,802 | $1,277,802 | $473.87 | | |
| CR | County Roads | 0.4584763726 | $1,277,802 | $1,277,802 | $585.84 | | |
| ISLANDEMS | Hospital GEN (EMS) | 0.5000000000 | $1,277,802 | $1,277,802 | $638.90 | | |
| LIB | Library Sno-Isle GEN | 0.3153421757 | $1,277,802 | $1,277,802 | $402.94 | | |
| PORTWHID | Port of S Whidbey GEN | 0.1094540357 | $1,277,802 | $1,277,802 | $139.86 | | |
| SCH206BOND | School 206 BOND | 0.3161759235 | $1,277,802 | $1,277,802 | $404.01 | | |
| SCH206MO | School 206 Enrichment | 0.4547169547 | $1,277,802 | $1,277,802 | $581.04 | | |
| ST | State School | 1.3035497053 | $1,277,802 | $1,277,802 | $1,665.68 | | |
| ST2 | State School Part 2 | 0.8169543533 | $1,277,802 | $1,277,802 | $1,043.91 | | |
| SWHIDPRBD | P & R S Whidbey BOND | 0.0152817568 | $1,277,802 | $1,277,802 | $19.53 | | |
| SWHIDPRBD2 | P & R S Whidbey BOND2 | 0.0138911264 | $1,277,802 | $1,277,802 | $17.75 | | |
| SWHIDPRMT | P & R S Whidbey GEN | 0.2053334452 | $1,277,802 | $1,277,802 | $262.38 | | |
| | Total Tax Rate: | 6.6934522006 | | | | | |
| | | | | Taxes w/Current Exemptions: | $8,552.90 | | |
| | | | | Taxes w/o Exemptions: | $8,552.90 | | |
Improvement / Building
| Improvement #1: | RESIDENTIAL | State Code: | Y | 2671.0 sqft | Value: | $427,802 |
| Bathrooms: | 2.5 | Bedrooms: | 3 | | Ceiling: | DRYWALL PAINTED | Exterior Wall/Cover: | CEMENT FIBER | | Floor Covering: | HARDWOOD/CARP 20-80 | Floor Structure: | WOOD W/SUBFLOOR | | Foundation: | CONCRETE | Heating: | FHA ELECTRIC | | Interior Finish: | DRYWALL PAINT | Plumbing Fixture Cnt: | 12 | | Roof Slope: | 5" IN 12" | Roof Structure/Cover: | CJ ASPHALT |
|
| | Type | Description | Class CD | Sub Class CD | Year Built | Area |
| | BAS | BASE/MAIN FLOOR | 4 | 0 | 1997 | 1243.0 |
| | OP1 | OPEN PORCH SLAB | 4 | 0 | 1997 | 987.0 |
| | OP1 | OPEN PORCH SLAB | 4 | 0 | 1997 | 342.0 |
| | OP4 | OPEN PORCH W/CEILING-ROOF | 4 | 0 | 1997 | 35.0 |
| | BIG | BUILT IN GARAGE | 4 | 0 | 1997 | 616.0 |
| | UPS | UPPER STORY | 4 | 0 | 1997 | 1428.0 |
| | OWP | OPEN WOOD PORCH W/STEPS | 4 | 0 | 1997 | 218.6 |
Sketch
Property Image
Land
| 1 | LB | LOW BANK | 0.1653 | 7200.47 | 60.00 | 0.00 | 1.00 | $850,000 | $0 |
Roll Value History
| 2026 | N/A | N/A | N/A | N/A | N/A |
| 2025 | $427,802 | $850,000 | $0 | $1,277,802 | $1,277,802 |
| 2024 | $433,564 | $850,000 | $0 | $1,283,564 | $1,283,564 |
| 2023 | $439,327 | $850,000 | $0 | $1,289,327 | $1,289,327 |
| 2022 | $403,047 | $900,000 | $0 | $1,303,047 | $1,303,047 |
| 2021 | $354,998 | $500,000 | $0 | $854,998 | $854,998 |
| 2020 | $346,645 | $500,000 | $0 | $846,645 | $846,645 |
| 2019 | $265,725 | $525,000 | $0 | $790,725 | $790,725 |
| 2018 | $266,552 | $400,000 | $0 | $666,552 | $666,552 |
| 2017 | $268,202 | $350,000 | $0 | $618,202 | $618,202 |
| 2016 | $271,512 | $350,000 | $0 | $621,512 | $621,512 |
| 2015 | $274,823 | $300,000 | $0 | $574,823 | $574,823 |
| 2014 | $273,012 | $300,000 | $0 | $573,012 | $573,012 |
| 2013 | $276,256 | $310,360 | $0 | $586,616 | $586,616 |
| 2012 | $279,500 | $310,360 | $0 | $589,860 | $589,860 |
| 2011 | $282,743 | $310,360 | $0 | $593,103 | $593,103 |
| 2010 | $293,915 | $344,844 | $0 | $638,759 | $638,759 |
| 2009 | $306,561 | $454,230 | $0 | $760,791 | $760,791 |
| 2008 | $300,154 | $609,403 | $0 | $909,557 | $909,557 |
| 2007 | $303,364 | $402,134 | $0 | $705,498 | $705,498 |
Deed and Sales History
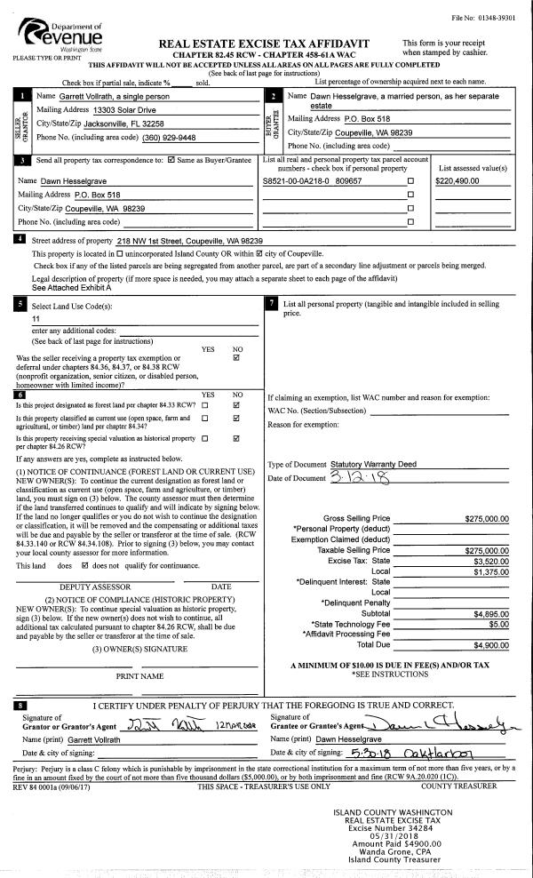
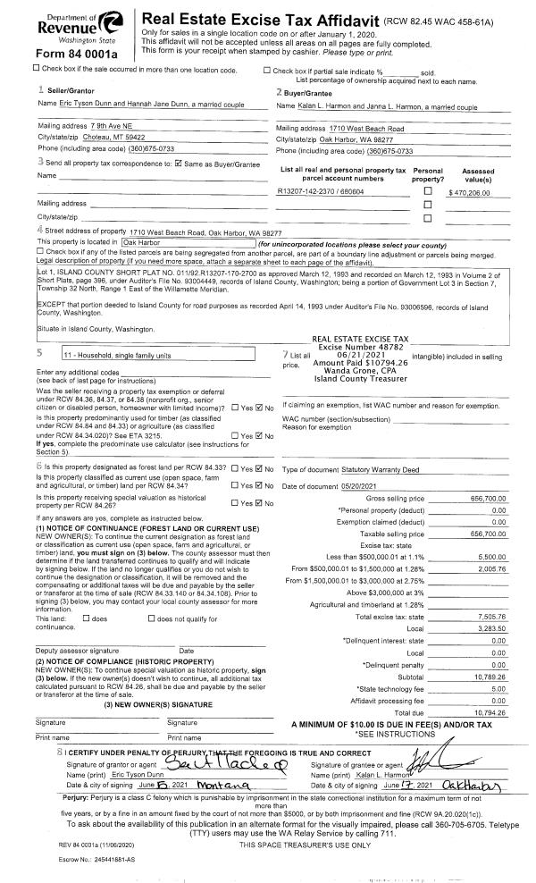
| 1 | 09/16/2024 | QCD | Quit Claim Deed | 3644 DRIFTWOOD, LLC | MOORHEAD, TODD | | | $0.00 | 61354 | 4577407 |
| 2 | 04/30/2018 | WD | Warranty Deed | MOORHEAD, TODD ANTHONY | 3644 DRIFTWOOD, LLC | | | $0.00 | 34017 | 4444042 |
| 3 | 01/21/2011 | WD | Warranty Deed | WELLS FARGO BANK NA AKA WACHOVIA MORTGAGE | MOORHEAD, TODD ANTHONY | | | $570,000.00 | 3620 | 4290647 |
| 4 | 10/22/2010 | TRUSTEED | Trustee's Deed | MCLAUGHLIN, KENNETH R | WELLS FARGO BANK NA AKA WACHOVIA MORTGAGE | | | $610,465.00 | 2762 | 4284089 |
| 5 | 02/01/1984 | QCD | Quit Claim Deed | MCLAUGHLIN, KENNETH R | MCLAUGHLIN, KENNETH R | | | $0.00 | 40712 | 422252 |
| 6 | 01/01/1900 | OTHER | Other - Misc. Documents | Unknown | MCLAUGHLIN, KENNETH R | | | $0.00 | 0 | 0 |
Payout Agreement
| No payout information available.. |