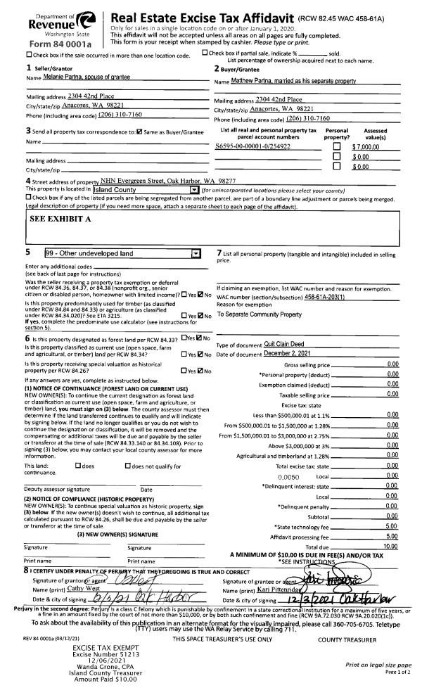
Property
Account |
| Property ID: | 380288 | Abbreviated Legal Description: | SCAT HD 1 LOT 79 BLK 14 DRAINFIELD LOC 32815-233- 2320 AF#96009842 |
| Geographic ID: | S8110-00-14079-0 | Agent Code: | |
| Type: | Real | | |
| Tax Area: | 740 - APPRAISER-S Whid Schl Dist, Special District, improved & less than 1 acre | Land Use Code | 11 |
| Open Space: | N | DFL | N |
| Historic Property: | N | Remodel Property: | N |
| Multi-Family Redevelopment: | N | | |
| Township: | | Section: | |
| Range: | |
Location |
| Address: | 3626 DRIFTWOOD DR CLINTON, WA 98236 | Mapsco: | |
| Neighborhood: | Cycle 4 | Map ID: | 712 |
| Neighborhood CD: | 4 |
Owner |
| Name: | GIOVANNA INVESTMENTS GP, LLC | Owner ID: | 100997 |
| Mailing Address: | PO BOX 2019 SNOHOMISH, WA 98291-2019 | % Ownership: | 100.0000000000% |
| | | Exemptions: | |
Taxes and Assessment Details
Values
| (+) Improvement Homesite Value: | + | $0 | |
| (+) Improvement Non-Homesite Value: | + | $832,998 | |
| (+) Land Homesite Value: | + | $0 | |
| (+) Land Non-Homesite Value: | + | $850,000 | |
| (+) Curr Use (HS): | + | $0 | $0 |
| (+) Curr Use (NHS): | + | $0 | $0 |
| | | -------------------------- | |
| (=) Market Value: | = | $1,682,998 | |
| (–) Productivity Loss: | – | $0 | |
| | | -------------------------- | |
| (=) Subtotal: | = | $1,682,998 | |
| (+) Senior Appraised Value: | + | $0 | |
| (+) Non-Senior Appraised Value: | + | $1,682,998 | |
| | | -------------------------- | |
| (=) Total Appraised Value: | = | $1,682,998 | |
| (–) Senior Exemption Loss: | – | $0 | |
| (–) Exemption Loss: | – | $0 | |
| | | -------------------------- | |
| (=) Taxable Value: | = | $1,682,998 | |
Taxing Jurisdiction
| Owner: | GIOVANNA INVESTMENTS GP, LLC | | |
| % Ownership: | 100.0000000000% | | |
| Total Value: | $1,682,998 | | |
| Tax Area: | 740 - APPRAISER-S Whid Schl Dist, Special District, improved & less than 1 acre |
| CF | Conservation Futures | 0.0316035091 | $1,682,998 | $1,682,998 | $53.19 | | |
| FIRE3 | Fire & Rescue Dist #3 S Whidbey GEN | 1.2004855531 | $1,682,998 | $1,682,998 | $2,020.41 | | |
| HOBOND | Hospital BOND | 0.1910887512 | $1,682,998 | $1,682,998 | $321.60 | | |
| HOGEN | Hospital GEN | 0.3902502903 | $1,682,998 | $1,682,998 | $656.79 | | |
| CE | County Current Expense | 0.3708482477 | $1,682,998 | $1,682,998 | $624.14 | | |
| CR | County Roads | 0.4584763726 | $1,682,998 | $1,682,998 | $771.61 | | |
| ISLANDEMS | Hospital GEN (EMS) | 0.5000000000 | $1,682,998 | $1,682,998 | $841.50 | | |
| LIB | Library Sno-Isle GEN | 0.3153421757 | $1,682,998 | $1,682,998 | $530.72 | | |
| PORTWHID | Port of S Whidbey GEN | 0.1094540357 | $1,682,998 | $1,682,998 | $184.21 | | |
| SCH206BOND | School 206 BOND | 0.3161759235 | $1,682,998 | $1,682,998 | $532.12 | | |
| SCH206MO | School 206 Enrichment | 0.4547169547 | $1,682,998 | $1,682,998 | $765.29 | | |
| ST | State School | 1.3035497053 | $1,682,998 | $1,682,998 | $2,193.87 | | |
| ST2 | State School Part 2 | 0.8169543533 | $1,682,998 | $1,682,998 | $1,374.93 | | |
| SWHIDPRBD | P & R S Whidbey BOND | 0.0152817568 | $1,682,998 | $1,682,998 | $25.72 | | |
| SWHIDPRBD2 | P & R S Whidbey BOND2 | 0.0138911264 | $1,682,998 | $1,682,998 | $23.38 | | |
| SWHIDPRMT | P & R S Whidbey GEN | 0.2053334452 | $1,682,998 | $1,682,998 | $345.58 | | |
| | Total Tax Rate: | 6.6934522006 | | | | | |
| | | | | Taxes w/Current Exemptions: | $11,265.06 | | |
| | | | | Taxes w/o Exemptions: | $11,265.06 | | |
Improvement / Building
| Improvement #1: | RESIDENTIAL | State Code: | Y | 3717.5 sqft | Value: | $832,998 |
| Bathrooms: | 2.75 | Bedrooms: | 2 | | Ceiling: | BEAM PAINTED | Exterior Wall/Cover: | CEMENT FIBER | | Floor Covering: | TILE CERAMIC | Floor Structure: | WOOD W/SUBFLOOR | | Foundation: | CONCRETE | Heating: | RADIANT FLOOR | | Interior Finish: | DRYWALL PAINT | Plumbing Fixture Cnt: | 15 | | Roof Slope: | 12" IN 12" | Roof Structure/Cover: | BEAM ASPHALT |
|
| | Type | Description | Class CD | Sub Class CD | Year Built | Area |
| | BAS | BASE/MAIN FLOOR | 5 | 0 | 2006 | 1794.3 |
| | OP1 | OPEN PORCH SLAB | 5 | 0 | 2006 | 780.7 |
| | OP4 | OPEN PORCH W/CEILING-ROOF | 5 | 0 | 2006 | 55.0 |
| | BIG | BUILT IN GARAGE | 5 | 0 | 2006 | 482.0 |
| | UPS | UPPER STORY | 5 | 0 | 2006 | 1923.2 |
| | BAW | BALCONY WOOD RAIL | 5 | 0 | 2006 | 28.0 |
| | BAW | BALCONY WOOD RAIL | 5 | 0 | 2006 | 25.0 |
| | OWP | OPEN WOOD PORCH W/STEPS | 5 | 0 | 2006 | 297.0 |
| | OWC | OPEN WOOD PORCH W/STEPS/ROOF/C | 5 | 0 | 2006 | 203.0 |
Sketch
Property Image
Land
| 1 | LB | LOW BANK | 0.0000 | 0.00 | 60.00 | 0.00 | 1.00 | $850,000 | $0 |
Roll Value History
| 2026 | N/A | N/A | N/A | N/A | N/A |
| 2025 | $832,998 | $850,000 | $0 | $1,682,998 | $1,682,998 |
| 2024 | $831,301 | $850,000 | $0 | $1,681,301 | $1,681,301 |
| 2023 | $840,940 | $850,000 | $0 | $1,690,940 | $1,690,940 |
| 2022 | $752,773 | $900,000 | $0 | $1,652,773 | $1,652,773 |
| 2021 | $662,148 | $500,000 | $0 | $1,162,148 | $1,162,148 |
| 2020 | $631,560 | $500,000 | $0 | $1,131,560 | $1,131,560 |
| 2019 | $551,965 | $525,000 | $0 | $1,076,965 | $1,076,965 |
| 2018 | $553,545 | $400,000 | $0 | $953,545 | $953,545 |
| 2017 | $556,667 | $350,000 | $0 | $906,667 | $906,667 |
| 2016 | $562,994 | $350,000 | $0 | $912,994 | $912,994 |
| 2015 | $569,319 | $300,000 | $0 | $869,319 | $869,319 |
| 2014 | $564,110 | $300,000 | $0 | $864,110 | $864,110 |
| 2013 | $570,310 | $310,360 | $0 | $880,670 | $880,670 |
| 2012 | $576,510 | $310,360 | $0 | $886,870 | $886,870 |
| 2011 | $582,707 | $310,360 | $0 | $893,067 | $893,067 |
| 2010 | $589,269 | $344,844 | $0 | $934,113 | $934,113 |
| 2009 | $613,759 | $454,230 | $0 | $1,067,989 | $1,067,989 |
| 2008 | $606,324 | $611,820 | $0 | $1,218,144 | $1,218,144 |
| 2007 | $606,524 | $404,172 | $0 | $1,010,696 | $1,010,696 |
Deed and Sales History
| 1 | 03/07/2008 | QCD | Quit Claim Deed | MAVIS, KEVIN | GIOVANNA INVESTMENTS GP, LLC, | | | $0.00 | 80584 | 4223759 |
| 2 | 02/14/2002 | WD | Warranty Deed | CROSS, VIRGINIA H | MAVIS, KEVIN | | | $130,000.00 | 20689 | 4012254 |
| 3 | 04/01/1985 | OTHER | Other - Misc. Documents | LONG, VIRGINIA H | CROSS, VIRGINIA H | | | $0.00 | 61135 | 0 |
| 4 | 01/01/1900 | OTHER | Other - Misc. Documents | Unknown | LONG, VIRGINIA H | | | $0.00 | 0 | 0 |
Payout Agreement
| 539 | Defaulted | MONTHLY PAYMENT PLAN | | 6/29/2016 8:30:34 AM | Monthly | 25 | $0 |