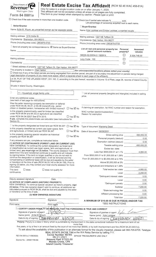
Property
Account |
| Property ID: | 380297 | Abbreviated Legal Description: | SCAT HD 1 LOT 80 BLK 14 DRAINFIELD LOC 32815-233- 2320 AF#96008141 |
| Geographic ID: | S8110-00-14080-0 | Agent Code: | |
| Type: | Real | | |
| Tax Area: | 740 - APPRAISER-S Whid Schl Dist, Special District, improved & less than 1 acre | Land Use Code | 11 |
| Open Space: | N | DFL | N |
| Historic Property: | N | Remodel Property: | N |
| Multi-Family Redevelopment: | N | | |
| Township: | | Section: | |
| Range: | |
Location |
| Address: | 3622 DRIFTWOOD DR CLINTON, WA 98236 | Mapsco: | |
| Neighborhood: | Cycle 4 | Map ID: | 712 |
| Neighborhood CD: | 4 |
Owner |
| Name: | WALSTON, RICHARD M | Owner ID: | 2665 |
| Mailing Address: | 325 N 160TH ST SHORELINE, WA 98133-5603 | % Ownership: | 100.0000000000% |
| | | Exemptions: | |
Taxes and Assessment Details
Values
| (+) Improvement Homesite Value: | + | $0 | |
| (+) Improvement Non-Homesite Value: | + | $435,059 | |
| (+) Land Homesite Value: | + | $0 | |
| (+) Land Non-Homesite Value: | + | $850,000 | |
| (+) Curr Use (HS): | + | $0 | $0 |
| (+) Curr Use (NHS): | + | $0 | $0 |
| | | -------------------------- | |
| (=) Market Value: | = | $1,285,059 | |
| (–) Productivity Loss: | – | $0 | |
| | | -------------------------- | |
| (=) Subtotal: | = | $1,285,059 | |
| (+) Senior Appraised Value: | + | $0 | |
| (+) Non-Senior Appraised Value: | + | $1,285,059 | |
| | | -------------------------- | |
| (=) Total Appraised Value: | = | $1,285,059 | |
| (–) Senior Exemption Loss: | – | $0 | |
| (–) Exemption Loss: | – | $0 | |
| | | -------------------------- | |
| (=) Taxable Value: | = | $1,285,059 | |
Taxing Jurisdiction
| Owner: | WALSTON, RICHARD M | | |
| % Ownership: | 100.0000000000% | | |
| Total Value: | $1,285,059 | | |
| Tax Area: | 740 - APPRAISER-S Whid Schl Dist, Special District, improved & less than 1 acre |
| CF | Conservation Futures | 0.0316035091 | $1,285,059 | $1,285,059 | $40.61 | | |
| FIRE3 | Fire & Rescue Dist #3 S Whidbey GEN | 1.2004855531 | $1,285,059 | $1,285,059 | $1,542.69 | | |
| HOBOND | Hospital BOND | 0.1910887512 | $1,285,059 | $1,285,059 | $245.56 | | |
| HOGEN | Hospital GEN | 0.3902502903 | $1,285,059 | $1,285,059 | $501.49 | | |
| CE | County Current Expense | 0.3708482477 | $1,285,059 | $1,285,059 | $476.56 | | |
| CR | County Roads | 0.4584763726 | $1,285,059 | $1,285,059 | $589.17 | | |
| ISLANDEMS | Hospital GEN (EMS) | 0.5000000000 | $1,285,059 | $1,285,059 | $642.53 | | |
| LIB | Library Sno-Isle GEN | 0.3153421757 | $1,285,059 | $1,285,059 | $405.23 | | |
| PORTWHID | Port of S Whidbey GEN | 0.1094540357 | $1,285,059 | $1,285,059 | $140.65 | | |
| SCH206BOND | School 206 BOND | 0.3161759235 | $1,285,059 | $1,285,059 | $406.30 | | |
| SCH206MO | School 206 Enrichment | 0.4547169547 | $1,285,059 | $1,285,059 | $584.34 | | |
| ST | State School | 1.3035497053 | $1,285,059 | $1,285,059 | $1,675.14 | | |
| ST2 | State School Part 2 | 0.8169543533 | $1,285,059 | $1,285,059 | $1,049.83 | | |
| SWHIDPRBD | P & R S Whidbey BOND | 0.0152817568 | $1,285,059 | $1,285,059 | $19.64 | | |
| SWHIDPRBD2 | P & R S Whidbey BOND2 | 0.0138911264 | $1,285,059 | $1,285,059 | $17.85 | | |
| SWHIDPRMT | P & R S Whidbey GEN | 0.2053334452 | $1,285,059 | $1,285,059 | $263.87 | | |
| | Total Tax Rate: | 6.6934522006 | | | | | |
| | | | | Taxes w/Current Exemptions: | $8,601.46 | | |
| | | | | Taxes w/o Exemptions: | $8,601.46 | | |
Improvement / Building
| Improvement #1: | RESIDENTIAL | State Code: | Y | 1760.5 sqft | Value: | $435,059 |
| Bathrooms: | 2.5 | Bedrooms: | 2 | | Ceiling: | BEAM PAINTED | Exterior Wall/Cover: | CEMENT FIBER | | Floor Covering: | CERAMIC TILE/HWD 40/60 | Floor Structure: | WOOD W/SUBFLOOR | | Foundation: | CONCRETE | Heating: | RADIANT FLOOR | | Interior Finish: | DRYWALL PAINT | Plumbing Fixture Cnt: | 12 | | Roof Slope: | 3" IN 12" | Roof Structure/Cover: | BEAM ALUMINUM HEAVY |
|
| | Type | Description | Class CD | Sub Class CD | Year Built | Area |
| | BAS | BASE/MAIN FLOOR | 4 | 0 | 2004 | 945.2 |
| | ENP | ENCLOSED PORCH | 4 | 0 | 2004 | 258.2 |
| | OP2 | OPEN PORCH W/STEPS | 4 | 0 | 2004 | 39.5 |
| | OP2 | OPEN PORCH W/STEPS | 4 | 0 | 2004 | 161.2 |
| | OP4 | OPEN PORCH W/CEILING-ROOF | 4 | 0 | 2004 | 57.1 |
| | AGR | ATTACHED GARAGE | 4 | 0 | 2004 | 408.0 |
| | UPS | UPPER STORY | 4 | 0 | 2004 | 170.6 |
| | UPS | UPPER STORY | 4 | 0 | 2004 | 152.6 |
| | LOF | LOFT | 4 | 0 | 2004 | 492.1 |
Sketch
Property Image
Land
| 1 | LB | LOW BANK | 0.0000 | 0.00 | 61.00 | 0.00 | 1.00 | $850,000 | $0 |
Roll Value History
| 2026 | N/A | N/A | N/A | N/A | N/A |
| 2025 | $435,059 | $850,000 | $0 | $1,285,059 | $1,285,059 |
| 2024 | $434,034 | $850,000 | $0 | $1,284,034 | $1,284,034 |
| 2023 | $439,065 | $850,000 | $0 | $1,289,065 | $1,289,065 |
| 2022 | $402,149 | $900,000 | $0 | $1,302,149 | $1,302,149 |
| 2021 | $353,650 | $500,000 | $0 | $853,650 | $853,650 |
| 2020 | $343,126 | $500,000 | $0 | $843,126 | $843,126 |
| 2019 | $254,241 | $525,000 | $0 | $779,241 | $779,241 |
| 2018 | $254,937 | $400,000 | $0 | $654,937 | $654,937 |
| 2017 | $255,412 | $350,000 | $0 | $605,412 | $605,412 |
| 2016 | $258,189 | $350,000 | $0 | $608,189 | $608,189 |
| 2015 | $260,966 | $300,000 | $0 | $560,966 | $560,966 |
| 2014 | $274,821 | $300,000 | $0 | $574,821 | $574,821 |
| 2013 | $277,842 | $315,530 | $0 | $593,372 | $593,372 |
| 2012 | $280,862 | $315,530 | $0 | $596,392 | $596,392 |
| 2011 | $283,880 | $315,530 | $0 | $599,410 | $599,410 |
| 2010 | $294,071 | $350,591 | $0 | $644,662 | $644,662 |
| 2009 | $306,326 | $461,801 | $0 | $768,127 | $768,127 |
| 2008 | $308,773 | $622,017 | $0 | $930,790 | $930,790 |
| 2007 | $312,301 | $410,908 | $0 | $723,209 | $723,209 |
Deed and Sales History
Payout Agreement
| No payout information available.. |