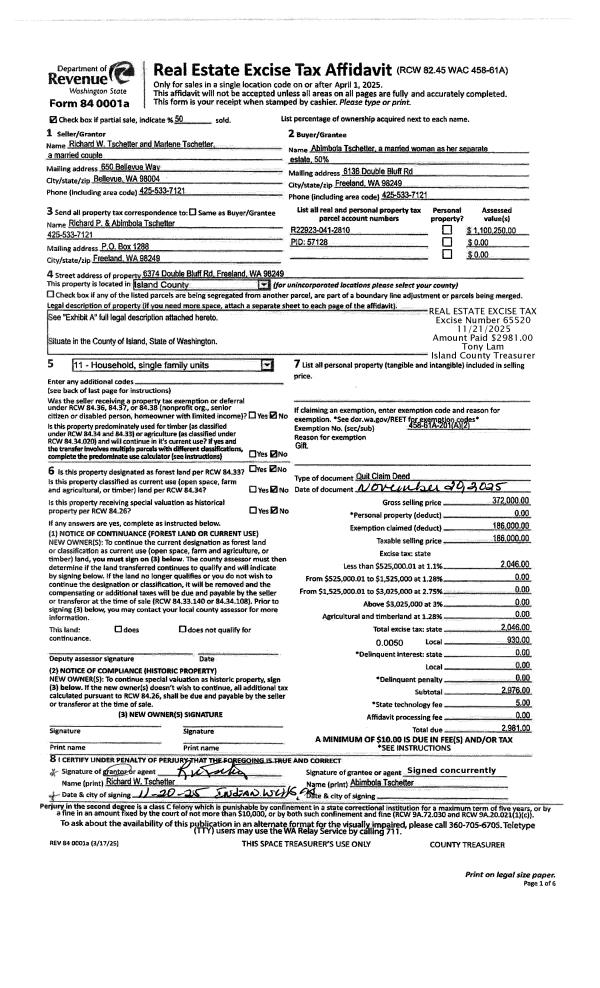
Property
Account |
| Property ID: | 380466 | Abbreviated Legal Description: | Scatchet Head - 1,s Lot 46 & 47,s Blk 15;s LOT COMB 4547834s |
| Geographic ID: | S8110-00-15047-0 | Agent Code: | |
| Type: | Real | | |
| Tax Area: | 740 - APPRAISER-S Whid Schl Dist, Special District, improved & less than 1 acre | Land Use Code | 11 |
| Open Space: | N | DFL | N |
| Historic Property: | N | Remodel Property: | N |
| Multi-Family Redevelopment: | N | | |
| Township: | | Section: | |
| Range: | |
Location |
| Address: | 3625 DRIFTWOOD DR CLINTON, WA 98236 | Mapsco: | |
| Neighborhood: | Cycle 4 | Map ID: | 712 |
| Neighborhood CD: | 4 |
Owner |
| Name: | MARTIN, MATHIEU G | Owner ID: | 302464 |
| Mailing Address: | ELLEN A PORTER 123 6TH CT KIRKLAND, WA 98033 | % Ownership: | 100.0000000000% |
| | | Exemptions: | |
Taxes and Assessment Details
Values
| (+) Improvement Homesite Value: | + | $0 | |
| (+) Improvement Non-Homesite Value: | + | $449,800 | |
| (+) Land Homesite Value: | + | $0 | |
| (+) Land Non-Homesite Value: | + | $360,000 | |
| (+) Curr Use (HS): | + | $0 | $0 |
| (+) Curr Use (NHS): | + | $0 | $0 |
| | | -------------------------- | |
| (=) Market Value: | = | $809,800 | |
| (–) Productivity Loss: | – | $0 | |
| | | -------------------------- | |
| (=) Subtotal: | = | $809,800 | |
| (+) Senior Appraised Value: | + | $0 | |
| (+) Non-Senior Appraised Value: | + | $809,800 | |
| | | -------------------------- | |
| (=) Total Appraised Value: | = | $809,800 | |
| (–) Senior Exemption Loss: | – | $0 | |
| (–) Exemption Loss: | – | $0 | |
| | | -------------------------- | |
| (=) Taxable Value: | = | $809,800 | |
Taxing Jurisdiction
| Owner: | MARTIN, MATHIEU G | | |
| % Ownership: | 100.0000000000% | | |
| Total Value: | $809,800 | | |
| Tax Area: | 740 - APPRAISER-S Whid Schl Dist, Special District, improved & less than 1 acre |
| CF | Conservation Futures | 0.0316035091 | $809,800 | $809,800 | $25.59 | | |
| FIRE3 | Fire & Rescue Dist #3 S Whidbey GEN | 1.2004855531 | $809,800 | $809,800 | $972.15 | | |
| HOBOND | Hospital BOND | 0.1910887512 | $809,800 | $809,800 | $154.74 | | |
| HOGEN | Hospital GEN | 0.3902502903 | $809,800 | $809,800 | $316.02 | | |
| CE | County Current Expense | 0.3708482477 | $809,800 | $809,800 | $300.31 | | |
| CR | County Roads | 0.4584763726 | $809,800 | $809,800 | $371.27 | | |
| ISLANDEMS | Hospital GEN (EMS) | 0.5000000000 | $809,800 | $809,800 | $404.90 | | |
| LIB | Library Sno-Isle GEN | 0.3153421757 | $809,800 | $809,800 | $255.36 | | |
| PORTWHID | Port of S Whidbey GEN | 0.1094540357 | $809,800 | $809,800 | $88.64 | | |
| SCH206BOND | School 206 BOND | 0.3161759235 | $809,800 | $809,800 | $256.04 | | |
| SCH206MO | School 206 Enrichment | 0.4547169547 | $809,800 | $809,800 | $368.23 | | |
| ST | State School | 1.3035497053 | $809,800 | $809,800 | $1,055.61 | | |
| ST2 | State School Part 2 | 0.8169543533 | $809,800 | $809,800 | $661.57 | | |
| SWHIDPRBD | P & R S Whidbey BOND | 0.0152817568 | $809,800 | $809,800 | $12.38 | | |
| SWHIDPRBD2 | P & R S Whidbey BOND2 | 0.0138911264 | $809,800 | $809,800 | $11.25 | | |
| SWHIDPRMT | P & R S Whidbey GEN | 0.2053334452 | $809,800 | $809,800 | $166.28 | | |
| | Total Tax Rate: | 6.6934522006 | | | | | |
| | | | | Taxes w/Current Exemptions: | $5,420.34 | | |
| | | | | Taxes w/o Exemptions: | $5,420.34 | | |
Improvement / Building
| Improvement #1: | RESIDENTIAL | State Code: | Y | 2270.1 sqft | Value: | $449,800 |
| Bathrooms: | 3 | Bedrooms: | 2 | | Ceiling: | DRYWALL PAINTED | Exterior Wall/Cover: | CEMENT FIBER | | Floor Covering: | HARDWOOD 100% | Floor Structure: | WOOD W/SUBFLOOR | | Foundation: | CONCRETE | Heating: | HEAT PUMP | | Interior Finish: | DRYWALL PAINT | Plumbing Fixture Cnt: | 14 | | Roof Slope: | FLAT | Roof Structure/Cover: | CJ ALUMINIUM HEAVY |
|
| | Type | Description | Class CD | Sub Class CD | Year Built | Area |
| | BAS | BASE/MAIN FLOOR | 4 | 0 | 2025 | 500.7 |
| | UPS | UPPER STORY | 4 | 0 | 2025 | 884.7 |
| | BIG | BUILT IN GARAGE | 4 | 0 | 2025 | 384.0 |
| | DWN | DOWNSTAIRS LIVING AREA | 4 | 0 | 2025 | 884.7 |
Sketch
Property Image
Land
| 1 | 15 | SQ (12001-21780) | 0.3500 | 15246.00 | 0.00 | 0.00 | 1.00 | $360,000 | $0 |
Roll Value History
| 2026 | N/A | N/A | N/A | N/A | N/A |
| 2025 | $449,800 | $360,000 | $0 | $809,800 | $809,800 |
| 2024 | $114,743 | $120,000 | $0 | $234,743 | $234,743 |
| 2023 | $16,753 | $120,000 | $0 | $136,753 | $136,753 |
| 2022 | $15,434 | $100,000 | $0 | $115,434 | $115,434 |
| 2021 | $6,000 | $180,000 | $0 | $186,000 | $186,000 |
| 2020 | $6,000 | $170,000 | $0 | $176,000 | $176,000 |
| 2019 | $6,000 | $190,000 | $0 | $196,000 | $196,000 |
| 2018 | $6,000 | $190,000 | $0 | $196,000 | $196,000 |
| 2017 | $6,000 | $150,000 | $0 | $156,000 | $156,000 |
| 2016 | $6,000 | $125,000 | $0 | $131,000 | $131,000 |
| 2015 | $6,000 | $125,000 | $0 | $131,000 | $131,000 |
| 2014 | $6,602 | $90,000 | $0 | $96,602 | $96,602 |
| 2013 | $6,602 | $90,000 | $0 | $96,602 | $96,602 |
| 2012 | $6,602 | $87,789 | $0 | $94,391 | $94,391 |
| 2011 | $6,602 | $103,280 | $0 | $109,882 | $109,882 |
| 2010 | $6,602 | $114,750 | $0 | $121,352 | $121,352 |
| 2009 | $6,982 | $125,400 | $0 | $132,382 | $132,382 |
| 2008 | $8,307 | $126,690 | $0 | $134,997 | $134,997 |
| 2007 | $8,423 | $105,000 | $0 | $113,423 | $113,423 |
Deed and Sales History
| 1 | 12/06/2021 | WD | Warranty Deed | MCCUE, TIMOTHY P | MARTIN, MATHIEU G | | | $200,000.00 | 51455 | 4536548 |
| 2 | 10/30/2003 | WD | Warranty Deed | GRENNAN, LORI K | MCCUE, TIMOTHY P | | | $70,000.00 | 35065 | 4082245 |
| 3 | 06/01/1995 | WD | Warranty Deed | JOHNSON, DONALD R | GRENNAN, LORI K | | | $13,000.00 | 52238 | 95010229 |
| 4 | 04/01/1993 | QCD | Quit Claim Deed | JOHNSON, DONALD R | JOHNSON, DONALD R | | | $0.00 | 31527 | 93007792 |
| 5 | 02/01/1988 | REC | Real Estate Contract | MARSHALL, HOWARD J | JOHNSON, DONALD R | | | $7,029.00 | 80650 | 88002631 |
| 6 | 05/01/1982 | EXECUTORD | Executor Deed | KING, DANIEL J | MARSHALL, HOWARD J | | | $14,000.00 | 21268 | 396810 |
| 7 | 01/01/1900 | OTHER | Other - Misc. Documents | Unknown | KING, DANIEL J | | | $0.00 | 0 | 0 |
Payout Agreement
| No payout information available.. |