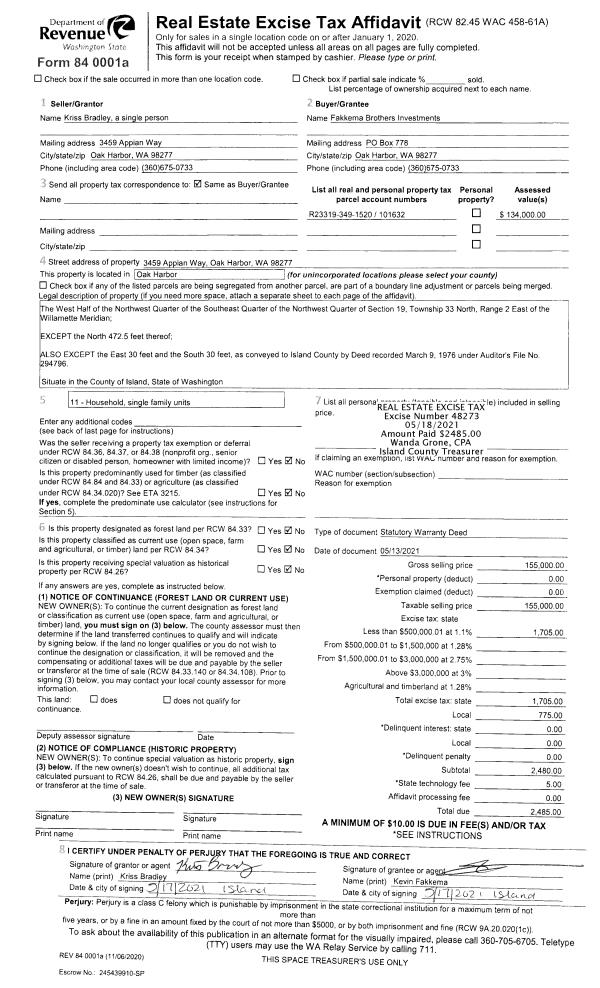
Property
Account |
| Property ID: | 380643 | Abbreviated Legal Description: | SCATCHET HD 3 LOT 23 BLK 12 |
| Geographic ID: | S8110-03-12023-0 | Agent Code: | |
| Type: | Real | | |
| Tax Area: | 740 - APPRAISER-S Whid Schl Dist, Special District, improved & less than 1 acre | Land Use Code | 11 |
| Open Space: | N | DFL | N |
| Historic Property: | N | Remodel Property: | N |
| Multi-Family Redevelopment: | N | | |
| Township: | | Section: | |
| Range: | |
Location |
| Address: | | Mapsco: | |
| Neighborhood: | Cycle 4 | Map ID: | 712 |
| Neighborhood CD: | 4 |
Owner |
| Name: | LARSON, THOMAS J | Owner ID: | 275620 |
| Mailing Address: | ANA MARIE LARSON 3629 FIDALGO DRIVE CLINTON, WA 98236 | % Ownership: | 100.0000000000% |
| | | Exemptions: | |
Taxes and Assessment Details
Values
| (+) Improvement Homesite Value: | + | $0 | |
| (+) Improvement Non-Homesite Value: | + | $4,000 | |
| (+) Land Homesite Value: | + | $0 | |
| (+) Land Non-Homesite Value: | + | $80,000 | |
| (+) Curr Use (HS): | + | $0 | $0 |
| (+) Curr Use (NHS): | + | $0 | $0 |
| | | -------------------------- | |
| (=) Market Value: | = | $84,000 | |
| (–) Productivity Loss: | – | $0 | |
| | | -------------------------- | |
| (=) Subtotal: | = | $84,000 | |
| (+) Senior Appraised Value: | + | $0 | |
| (+) Non-Senior Appraised Value: | + | $84,000 | |
| | | -------------------------- | |
| (=) Total Appraised Value: | = | $84,000 | |
| (–) Senior Exemption Loss: | – | $0 | |
| (–) Exemption Loss: | – | $0 | |
| | | -------------------------- | |
| (=) Taxable Value: | = | $84,000 | |
Taxing Jurisdiction
| Owner: | LARSON, THOMAS J | | |
| % Ownership: | 100.0000000000% | | |
| Total Value: | $84,000 | | |
| Tax Area: | 740 - APPRAISER-S Whid Schl Dist, Special District, improved & less than 1 acre |
| CF | Conservation Futures | 0.0316035091 | $84,000 | $84,000 | $2.65 | | |
| FIRE3 | Fire & Rescue Dist #3 S Whidbey GEN | 1.2004855531 | $84,000 | $84,000 | $100.84 | | |
| HOBOND | Hospital BOND | 0.1910887512 | $84,000 | $84,000 | $16.05 | | |
| HOGEN | Hospital GEN | 0.3902502903 | $84,000 | $84,000 | $32.78 | | |
| CE | County Current Expense | 0.3708482477 | $84,000 | $84,000 | $31.15 | | |
| CR | County Roads | 0.4584763726 | $84,000 | $84,000 | $38.51 | | |
| ISLANDEMS | Hospital GEN (EMS) | 0.5000000000 | $84,000 | $84,000 | $42.00 | | |
| LIB | Library Sno-Isle GEN | 0.3153421757 | $84,000 | $84,000 | $26.49 | | |
| PORTWHID | Port of S Whidbey GEN | 0.1094540357 | $84,000 | $84,000 | $9.19 | | |
| SCH206BOND | School 206 BOND | 0.3161759235 | $84,000 | $84,000 | $26.56 | | |
| SCH206MO | School 206 Enrichment | 0.4547169547 | $84,000 | $84,000 | $38.20 | | |
| ST | State School | 1.3035497053 | $84,000 | $84,000 | $109.50 | | |
| ST2 | State School Part 2 | 0.8169543533 | $84,000 | $84,000 | $68.62 | | |
| SWHIDPRBD | P & R S Whidbey BOND | 0.0152817568 | $84,000 | $84,000 | $1.28 | | |
| SWHIDPRBD2 | P & R S Whidbey BOND2 | 0.0138911264 | $84,000 | $84,000 | $1.17 | | |
| SWHIDPRMT | P & R S Whidbey GEN | 0.2053334452 | $84,000 | $84,000 | $17.25 | | |
| | Total Tax Rate: | 6.6934522006 | | | | | |
| | | | | Taxes w/Current Exemptions: | $562.24 | | |
| | | | | Taxes w/o Exemptions: | $562.24 | | |
Improvement / Building
| Improvement #1: | MISC | State Code: | Y | 0.0 sqft | Value: | $4,000 |
Sketch
| No sketches available for this property. |
Property Image
Land
| 1 | 14 | SQ (08001-12000) | 0.0000 | 0.00 | 0.00 | 0.00 | 1.00 | $80,000 | $0 |
Roll Value History
| 2026 | N/A | N/A | N/A | N/A | N/A |
| 2025 | $4,000 | $80,000 | $0 | $84,000 | $84,000 |
| 2024 | $4,000 | $75,000 | $0 | $79,000 | $79,000 |
| 2023 | $4,000 | $75,000 | $0 | $79,000 | $79,000 |
| 2022 | $4,000 | $75,000 | $0 | $79,000 | $79,000 |
| 2021 | $4,000 | $60,000 | $0 | $64,000 | $64,000 |
| 2020 | $4,000 | $20,000 | $0 | $24,000 | $24,000 |
| 2019 | $4,000 | $30,000 | $0 | $34,000 | $34,000 |
| 2018 | $4,000 | $30,000 | $0 | $34,000 | $34,000 |
| 2017 | $4,000 | $50,000 | $0 | $54,000 | $54,000 |
| 2016 | $4,000 | $50,000 | $0 | $54,000 | $54,000 |
| 2015 | $4,000 | $40,000 | $0 | $44,000 | $44,000 |
| 2014 | $4,000 | $45,000 | $0 | $49,000 | $49,000 |
| 2013 | $4,000 | $45,000 | $0 | $49,000 | $49,000 |
| 2012 | $4,000 | $50,074 | $0 | $54,074 | $54,074 |
| 2011 | $4,000 | $58,910 | $0 | $62,910 | $62,910 |
| 2010 | $4,000 | $65,450 | $0 | $69,450 | $69,450 |
| 2009 | $4,000 | $80,940 | $0 | $84,940 | $84,940 |
| 2008 | $4,256 | $86,100 | $0 | $90,356 | $90,356 |
| 2007 | $4,283 | $55,000 | $0 | $59,283 | $59,283 |
Deed and Sales History
| 1 | 06/03/2016 | WD | Warranty Deed | LINDBLOM, JOHN R | LARSON, THOMAS J | | | $420,000.00 | 24776 | 4401243 |
|   | |
| 2 | 09/27/2011 | WD | Warranty Deed | LOMBARD, TIMOTHY J | LINDBLOM, JOHN R | | | $56,000.00 | 5691 | 4302087 |
| 3 | 04/01/1990 | WD | Warranty Deed | KING, DANIEL J | LOMBARD, TIMOTHY J | | | $38,000.00 | 1949 | 90006294 |
| 4 | 09/01/1988 | DECREE | Divorce Decree/Legal Separation | KING, DANIEL J | KING, DANIEL J | | | $0.00 | 83446 | 88012890 |
| 5 | 01/01/1900 | OTHER | Other - Misc. Documents | Unknown | KING, DANIEL J | | | $0.00 | 0 | 0 |
Payout Agreement
| No payout information available.. |