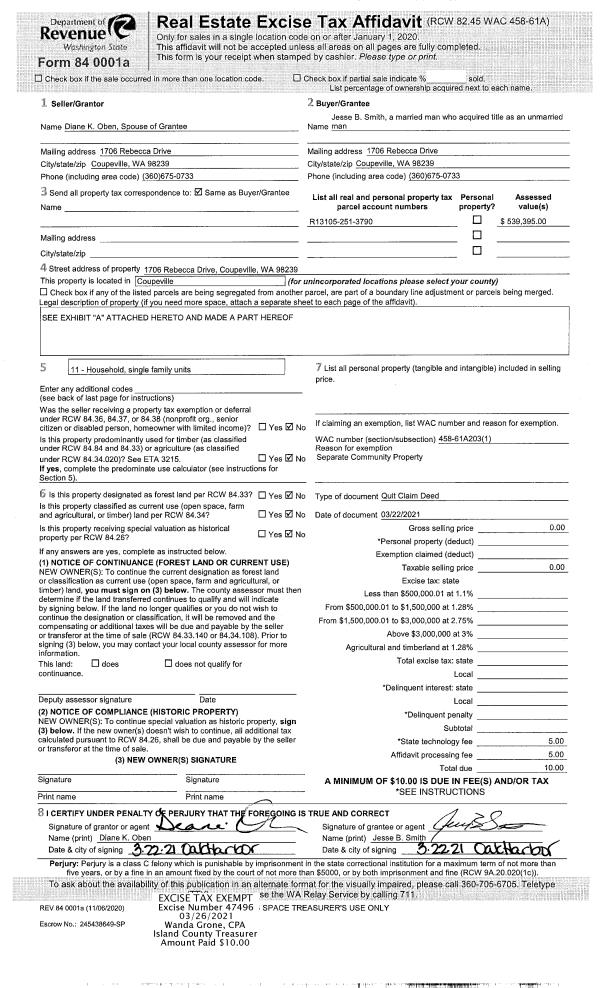
Property
Account |
| Property ID: | 380983 | Abbreviated Legal Description: | SCATCHET HD 3 LOT 57 BLK 12 |
| Geographic ID: | S8110-03-12057-0 | Agent Code: | |
| Type: | Real | | |
| Tax Area: | 742 - APPRAISER-S Whid Schl Dist, Special District, improved, greater than 1 acre | Land Use Code | 11 |
| Open Space: | N | DFL | N |
| Historic Property: | N | Remodel Property: | N |
| Multi-Family Redevelopment: | N | | |
| Township: | | Section: | |
| Range: | |
Location |
| Address: | 8121 LOPEZ DR CLINTON, WA 98236 | Mapsco: | |
| Neighborhood: | Cycle 4 | Map ID: | 712 |
| Neighborhood CD: | 4 |
Owner |
| Name: | KERN, CHARLENE M | Owner ID: | 311168 |
| Mailing Address: | TIMOTHY G SHERMAN 8121 LOPEZ DR CLINTON, WA 98236 | % Ownership: | 100.0000000000% |
| | | Exemptions: | SNR/DSBL |
Taxes and Assessment Details
Values
| (+) Improvement Homesite Value: | + | $183,288 | |
| (+) Improvement Non-Homesite Value: | + | $0 | |
| (+) Land Homesite Value: | + | $240,000 | |
| (+) Land Non-Homesite Value: | + | $0 | |
| (+) Curr Use (HS): | + | $0 | $0 |
| (+) Curr Use (NHS): | + | $0 | $0 |
| | | -------------------------- | |
| (=) Market Value: | = | $423,288 | |
| (–) Productivity Loss: | – | $0 | |
| | | -------------------------- | |
| (=) Subtotal: | = | $423,288 | |
| (+) Senior Appraised Value: | + | $400,602 | |
| (+) Non-Senior Appraised Value: | + | $0 | |
| | | -------------------------- | |
| (=) Total Appraised Value: | = | $400,602 | |
| (–) Senior Exemption Loss: | – | $0 | |
| (–) Exemption Loss: | – | $0 | |
| | | -------------------------- | |
| (=) Taxable Value: | = | $400,602 | |
Taxing Jurisdiction
| Owner: | KERN, CHARLENE M | | |
| % Ownership: | 100.0000000000% | | |
| Total Value: | $423,288 | | |
| Tax Area: | 742 - APPRAISER-S Whid Schl Dist, Special District, improved, greater than 1 acre |
| CF | Conservation Futures | 0.0316035091 | $423,288 | $400,602 | $12.66 | | |
| FIRE3 | Fire & Rescue Dist #3 S Whidbey GEN | 1.2004855531 | $423,288 | $400,602 | $480.92 | | |
| HOBOND | Hospital BOND | 0.0000000000 | $423,288 | $0 | $0.00 | | |
| HOGEN | Hospital GEN | 0.3902502903 | $423,288 | $400,602 | $156.34 | | |
| CE | County Current Expense | 0.3708482477 | $423,288 | $400,602 | $148.56 | | |
| CR | County Roads | 0.4584763726 | $423,288 | $400,602 | $183.67 | | |
| ISLANDEMS | Hospital GEN (EMS) | 0.5000000000 | $423,288 | $400,602 | $200.30 | | |
| LIB | Library Sno-Isle GEN | 0.3153421757 | $423,288 | $400,602 | $126.33 | | |
| PORTWHID | Port of S Whidbey GEN | 0.1094540357 | $423,288 | $400,602 | $43.85 | | |
| SCH206BOND | School 206 BOND | 0.3161759235 | $423,288 | $400,602 | $126.66 | | |
| SCH206MO | School 206 Enrichment | 0.0000000000 | $423,288 | $0 | $0.00 | | |
| ST | State School | 1.3035497053 | $423,288 | $400,602 | $522.20 | | |
| ST2 | State School Part 2 | 0.0000000000 | $423,288 | $0 | $0.00 | | |
| SWHIDPRBD | P & R S Whidbey BOND | 0.0000000000 | $423,288 | $0 | $0.00 | | |
| SWHIDPRBD2 | P & R S Whidbey BOND2 | 0.0000000000 | $423,288 | $0 | $0.00 | | |
| SWHIDPRMT | P & R S Whidbey GEN | 0.2053334452 | $423,288 | $400,602 | $82.26 | | |
| | Total Tax Rate: | 5.2015192582 | | | | | |
| | | | | Taxes w/Current Exemptions: | $2,083.75 | | |
| | | | | Taxes w/o Exemptions: | $2,833.28 | | |
Improvement / Building
| Improvement #1: | RESIDENTIAL | State Code: | Y | 929.4 sqft | Value: | $183,288 |
| Bathrooms: | 1.75 | Bedrooms: | 2 | | Ceiling: | DRYWALL PAINTED | Exterior Wall/Cover: | PLY/HARDBOARD T-111 | | Floor Covering: | CARPET/VINYL 80-20 | Floor Structure: | WOOD W/SUBFLOOR | | Foundation: | CONCRETE | Heating: | FHA ELECTRIC | | Interior Finish: | DRYWALL PAINT | Plumbing Fixture Cnt: | 9 | | Roof Slope: | 6" IN 12" | Roof Structure/Cover: | CJ ASPHALT |
|
| | Type | Description | Class CD | Sub Class CD | Year Built | Area |
| | BAS | BASE/MAIN FLOOR | 3 | 0 | 2001 | 929.4 |
| | AGR | ATTACHED GARAGE | 3 | 0 | 2001 | 324.9 |
| | UTY | STORAGE/UTILITY | 3 | 0 | 2001 | 10.4 |
| | OWP | OPEN WOOD PORCH W/STEPS | 3 | 0 | 2001 | 16.0 |
| | OWP | OPEN WOOD PORCH W/STEPS | 3 | 0 | 2001 | 210.0 |
| | OWC | OPEN WOOD PORCH W/STEPS/ROOF/C | 3 | 0 | 2001 | 19.6 |
Sketch
Property Image
Land
| 1 | 17 | AC (01.01-02.00) | 1.2800 | 55756.80 | 0.00 | 0.00 | 1.00 | $240,000 | $0 |
Roll Value History
| 2026 | N/A | N/A | N/A | N/A | N/A |
| 2025 | $183,288 | $240,000 | $0 | $423,288 | $400,602 |
| 2024 | $185,602 | $215,000 | $0 | $400,602 | $400,602 |
| 2023 | $187,914 | $210,000 | $0 | $397,914 | $397,914 |
| 2022 | $172,250 | $200,000 | $0 | $372,250 | $372,250 |
| 2021 | $151,603 | $150,000 | $0 | $301,603 | $301,603 |
| 2020 | $147,096 | $120,000 | $0 | $267,096 | $267,096 |
| 2019 | $98,763 | $135,000 | $0 | $233,763 | $233,763 |
| 2018 | $99,052 | $120,000 | $0 | $219,052 | $219,052 |
| 2017 | $99,563 | $80,000 | $0 | $179,563 | $179,563 |
| 2016 | $100,720 | $70,000 | $0 | $170,720 | $170,720 |
| 2015 | $101,879 | $55,000 | $0 | $156,879 | $156,879 |
| 2014 | $101,579 | $55,000 | $0 | $156,579 | $156,579 |
| 2013 | $102,754 | $55,000 | $0 | $157,754 | $157,754 |
| 2012 | $103,931 | $65,025 | $0 | $168,956 | $168,956 |
| 2011 | $105,107 | $76,500 | $0 | $181,607 | $181,607 |
| 2010 | $108,877 | $85,000 | $0 | $193,877 | $193,877 |
| 2009 | $113,505 | $114,000 | $0 | $227,505 | $227,505 |
| 2008 | $112,001 | $123,000 | $0 | $235,001 | $235,001 |
| 2007 | $113,338 | $88,000 | $0 | $201,338 | $201,338 |
Deed and Sales History
| 1 | 01/05/2024 | BARGSLD | Bargain And Sale Deed | VAN WEY, CRAIG A | KERN, CHARLENE M | | | $388,000.00 | 58974 | 4568432 |
| 2 | 05/21/2019 | WD | Warranty Deed | WYMAN, R. E. | VAN WEY, CRAIG A | | | $307,000.00 | 38694 | 4464129 |
| 3 | 10/13/1999 | WD | Warranty Deed | CLARK, JAMES E | WYMAN, R.E. | | | $29,000.00 | 94513 | 99024920 |
| 4 | 12/01/1992 | WD | Warranty Deed | CLARK, JAMES E | CLARK, JAMES E | | | $0.00 | 24976 | 92024571 |
| 5 | 01/01/1900 | OTHER | Other - Misc. Documents | Unknown | CLARK, JAMES E | | | $0.00 | 0 | 0 |
Payout Agreement
| No payout information available.. |