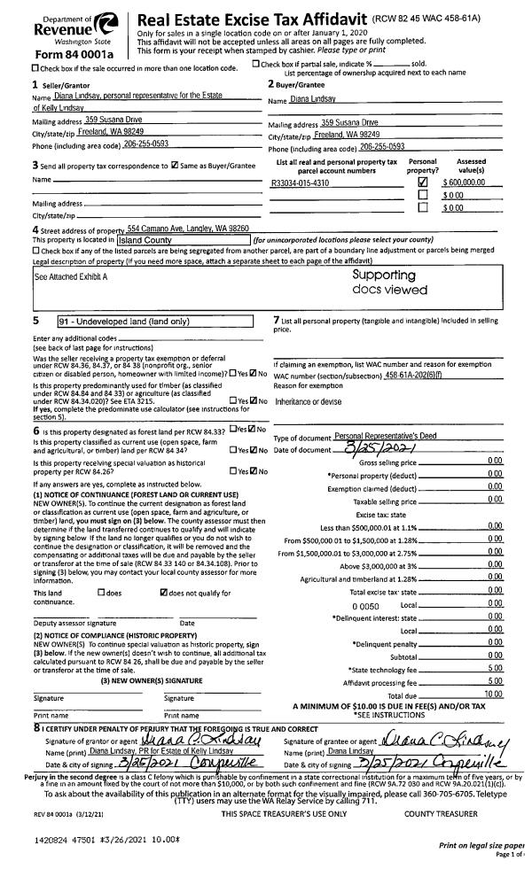
Property
Account |
| Property ID: | 381009 | Abbreviated Legal Description: | SCATCHET HD 3 LOT 59 BLK 12 |
| Geographic ID: | S8110-03-12059-0 | Agent Code: | |
| Type: | Real | | |
| Tax Area: | 740 - APPRAISER-S Whid Schl Dist, Special District, improved & less than 1 acre | Land Use Code | 11 |
| Open Space: | N | DFL | N |
| Historic Property: | N | Remodel Property: | N |
| Multi-Family Redevelopment: | N | | |
| Township: | | Section: | |
| Range: | |
Location |
| Address: | | Mapsco: | |
| Neighborhood: | Cycle 4 | Map ID: | 712 |
| Neighborhood CD: | 4 |
Owner |
| Name: | MILLER, STANLEY A | Owner ID: | 272391 |
| Mailing Address: | 8129 LOPEZ DR CLINTON, WA 98236 | % Ownership: | 100.0000000000% |
| | | Exemptions: | |
Taxes and Assessment Details
Values
| (+) Improvement Homesite Value: | + | $0 | |
| (+) Improvement Non-Homesite Value: | + | $280,075 | |
| (+) Land Homesite Value: | + | $0 | |
| (+) Land Non-Homesite Value: | + | $230,000 | |
| (+) Curr Use (HS): | + | $0 | $0 |
| (+) Curr Use (NHS): | + | $0 | $0 |
| | | -------------------------- | |
| (=) Market Value: | = | $510,075 | |
| (–) Productivity Loss: | – | $0 | |
| | | -------------------------- | |
| (=) Subtotal: | = | $510,075 | |
| (+) Senior Appraised Value: | + | $0 | |
| (+) Non-Senior Appraised Value: | + | $510,075 | |
| | | -------------------------- | |
| (=) Total Appraised Value: | = | $510,075 | |
| (–) Senior Exemption Loss: | – | $0 | |
| (–) Exemption Loss: | – | $0 | |
| | | -------------------------- | |
| (=) Taxable Value: | = | $510,075 | |
Taxing Jurisdiction
| Owner: | MILLER, STANLEY A | | |
| % Ownership: | 100.0000000000% | | |
| Total Value: | $510,075 | | |
| Tax Area: | 740 - APPRAISER-S Whid Schl Dist, Special District, improved & less than 1 acre |
| CF | Conservation Futures | 0.0316035091 | $510,075 | $510,075 | $16.12 | | |
| FIRE3 | Fire & Rescue Dist #3 S Whidbey GEN | 1.2004855531 | $510,075 | $510,075 | $612.34 | | |
| HOBOND | Hospital BOND | 0.1910887512 | $510,075 | $510,075 | $97.47 | | |
| HOGEN | Hospital GEN | 0.3902502903 | $510,075 | $510,075 | $199.06 | | |
| CE | County Current Expense | 0.3708482477 | $510,075 | $510,075 | $189.16 | | |
| CR | County Roads | 0.4584763726 | $510,075 | $510,075 | $233.86 | | |
| ISLANDEMS | Hospital GEN (EMS) | 0.5000000000 | $510,075 | $510,075 | $255.04 | | |
| LIB | Library Sno-Isle GEN | 0.3153421757 | $510,075 | $510,075 | $160.85 | | |
| PORTWHID | Port of S Whidbey GEN | 0.1094540357 | $510,075 | $510,075 | $55.83 | | |
| SCH206BOND | School 206 BOND | 0.3161759235 | $510,075 | $510,075 | $161.27 | | |
| SCH206MO | School 206 Enrichment | 0.4547169547 | $510,075 | $510,075 | $231.94 | | |
| ST | State School | 1.3035497053 | $510,075 | $510,075 | $664.91 | | |
| ST2 | State School Part 2 | 0.8169543533 | $510,075 | $510,075 | $416.71 | | |
| SWHIDPRBD | P & R S Whidbey BOND | 0.0152817568 | $510,075 | $510,075 | $7.79 | | |
| SWHIDPRBD2 | P & R S Whidbey BOND2 | 0.0138911264 | $510,075 | $510,075 | $7.09 | | |
| SWHIDPRMT | P & R S Whidbey GEN | 0.2053334452 | $510,075 | $510,075 | $104.74 | | |
| | Total Tax Rate: | 6.6934522006 | | | | | |
| | | | | Taxes w/Current Exemptions: | $3,414.18 | | |
| | | | | Taxes w/o Exemptions: | $3,414.18 | | |
Improvement / Building
| Improvement #1: | RESIDENTIAL | State Code: | Y | 1457.2 sqft | Value: | $280,075 |
| Bathrooms: | 2 | Bedrooms: | 3 | | Ceiling: | DRYWALL PAINTED | Exterior Wall/Cover: | SHINGLE | | Floor Covering: | HARDWOOD/CARP 60-40 | Floor Structure: | WOOD W/SUBFLOOR | | Foundation: | CONCRETE | Heating: | FHA GAS | | Interior Finish: | DRYWALL PAINT | Plumbing Fixture Cnt: | 9 | | Roof Slope: | 8" IN 12" | Roof Structure/Cover: | CJ ASPHALT |
|
| | Type | Description | Class CD | Sub Class CD | Year Built | Area |
| | BAS | BASE/MAIN FLOOR | 3 | 0 | 2002 | 983.2 |
| | UPH | HALF STORY | 3 | 0 | 2002 | 474.0 |
| | OWP | OPEN WOOD PORCH W/STEPS | 3 | 0 | 2002 | 222.0 |
| | OWC | OPEN WOOD PORCH W/STEPS/ROOF/C | 3 | 0 | 2002 | 128.0 |
| | AGR | ATTACHED GARAGE | 3 | 0 | 2002 | 330.8 |
Sketch
Property Image
Land
| 1 | 13 | SQ (06001-08000) | 0.0000 | 0.00 | 0.00 | 0.00 | 1.00 | $230,000 | $0 |
Roll Value History
| 2026 | N/A | N/A | N/A | N/A | N/A |
| 2025 | $280,075 | $230,000 | $0 | $510,075 | $510,075 |
| 2024 | $283,609 | $215,000 | $0 | $498,609 | $498,609 |
| 2023 | $287,143 | $210,000 | $0 | $497,143 | $497,143 |
| 2022 | $263,213 | $200,000 | $0 | $463,213 | $463,213 |
| 2021 | $231,659 | $150,000 | $0 | $381,659 | $381,659 |
| 2020 | $225,813 | $120,000 | $0 | $345,813 | $345,813 |
| 2019 | $164,397 | $135,000 | $0 | $299,397 | $299,397 |
| 2018 | $164,878 | $120,000 | $0 | $284,878 | $284,878 |
| 2017 | $165,842 | $80,000 | $0 | $245,842 | $245,842 |
| 2016 | $167,771 | $70,000 | $0 | $237,771 | $237,771 |
| 2015 | $119,720 | $55,000 | $0 | $174,720 | $174,720 |
| 2014 | $119,319 | $55,000 | $0 | $174,319 | $174,319 |
| 2013 | $120,688 | $55,000 | $0 | $175,688 | $175,688 |
| 2012 | $122,061 | $65,025 | $0 | $187,086 | $187,086 |
| 2011 | $123,432 | $76,500 | $0 | $199,932 | $199,932 |
| 2010 | $129,798 | $85,000 | $0 | $214,798 | $214,798 |
| 2009 | $137,792 | $114,000 | $0 | $251,792 | $251,792 |
| 2008 | $139,896 | $123,000 | $0 | $262,896 | $262,896 |
| 2007 | $142,908 | $88,000 | $0 | $230,908 | $230,908 |
Deed and Sales History
| 1 | 12/29/2016 | QCD | Quit Claim Deed | MILLER, STANLEY A | MILLER, STANLEY A | | | $0.00 | 27691 | 4414920 |
| 2 | 09/24/2015 | ESTSEPPROP | Establish Separate Property | MILLER, STANLEY A | MILLER, STANLEY A | | | $0.00 | 21669 | 4387337 |
| 3 | 10/01/2015 | WD | Warranty Deed | ROBINSON, CAROL A | MILLER, STANLEY A | | | $235,000.00 | 21668 | 4387336 |
| 4 | 01/08/2003 | WD | Warranty Deed | LOTTS, JUDD E | ROBINSON, CAROL A | | | $166,000.00 | 30134 | 4043792 |
| 5 | 04/19/2002 | WD | Warranty Deed | GIEDT, BARBARA A | LOTTS, JUDD E | | | $33,000.00 | 21516 | 4017801 |
| 6 | 09/01/1981 | TRUSTEED | Trustee's Deed | GIEDT, ALVIN R | GIEDT, BARBARA A | | | $3,500.00 | 12790 | 387620 |
| 7 | 04/01/1979 | OTHER | Other - Misc. Documents | ROBINSON, CAROL A | GIEDT, ALVIN R | | | $7,000.00 | 91737 | 350950 |
Payout Agreement
| No payout information available.. |