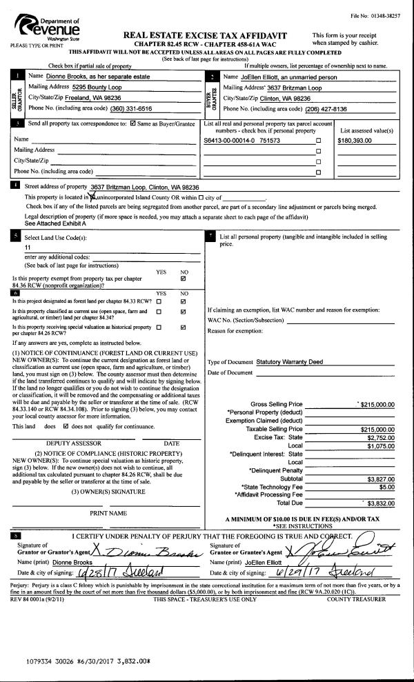
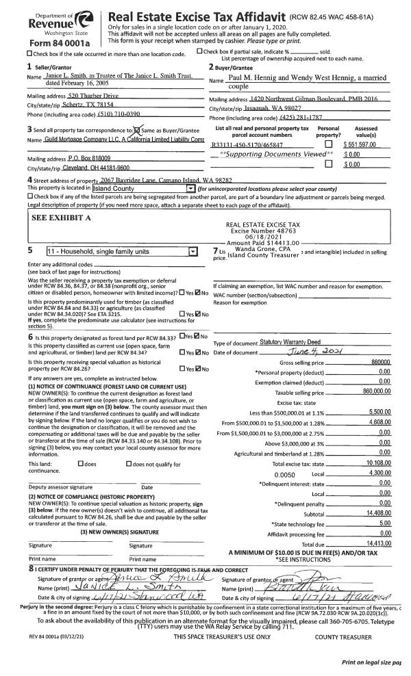
Property
Account |
| Property ID: | 381045 | Abbreviated Legal Description: | SCATCHET HD 3 LOT 54 BLK 14 |
| Geographic ID: | S8110-03-14054-0 | Agent Code: | |
| Type: | Real | | |
| Tax Area: | 740 - APPRAISER-S Whid Schl Dist, Special District, improved & less than 1 acre | Land Use Code | 11 |
| Open Space: | N | DFL | N |
| Historic Property: | N | Remodel Property: | N |
| Multi-Family Redevelopment: | N | | |
| Township: | | Section: | |
| Range: | |
Location |
| Address: | 3788 DRIFTWOOD DR CLINTON, WA 98236 | Mapsco: | |
| Neighborhood: | Cycle 4 | Map ID: | 712 |
| Neighborhood CD: | 4 |
Owner |
| Name: | PARSLEY, NICOLE LIANE | Owner ID: | 280587 |
| Mailing Address: | 1179 SPARKS COURT NEW WESTMINSTER BC V3M 6S1 | % Ownership: | 100.0000000000% |
| | | Exemptions: | |
Taxes and Assessment Details
Values
| (+) Improvement Homesite Value: | + | $0 | |
| (+) Improvement Non-Homesite Value: | + | $124,636 | |
| (+) Land Homesite Value: | + | $0 | |
| (+) Land Non-Homesite Value: | + | $850,000 | |
| (+) Curr Use (HS): | + | $0 | $0 |
| (+) Curr Use (NHS): | + | $0 | $0 |
| | | -------------------------- | |
| (=) Market Value: | = | $974,636 | |
| (–) Productivity Loss: | – | $0 | |
| | | -------------------------- | |
| (=) Subtotal: | = | $974,636 | |
| (+) Senior Appraised Value: | + | $0 | |
| (+) Non-Senior Appraised Value: | + | $974,636 | |
| | | -------------------------- | |
| (=) Total Appraised Value: | = | $974,636 | |
| (–) Senior Exemption Loss: | – | $0 | |
| (–) Exemption Loss: | – | $0 | |
| | | -------------------------- | |
| (=) Taxable Value: | = | $974,636 | |
Taxing Jurisdiction
| Owner: | PARSLEY, NICOLE LIANE | | |
| % Ownership: | 100.0000000000% | | |
| Total Value: | $974,636 | | |
| Tax Area: | 740 - APPRAISER-S Whid Schl Dist, Special District, improved & less than 1 acre |
| CF | Conservation Futures | 0.0316035091 | $974,636 | $974,636 | $30.80 | | |
| FIRE3 | Fire & Rescue Dist #3 S Whidbey GEN | 1.2004855531 | $974,636 | $974,636 | $1,170.04 | | |
| HOBOND | Hospital BOND | 0.1910887512 | $974,636 | $974,636 | $186.24 | | |
| HOGEN | Hospital GEN | 0.3902502903 | $974,636 | $974,636 | $380.35 | | |
| CE | County Current Expense | 0.3708482477 | $974,636 | $974,636 | $361.44 | | |
| CR | County Roads | 0.4584763726 | $974,636 | $974,636 | $446.85 | | |
| ISLANDEMS | Hospital GEN (EMS) | 0.5000000000 | $974,636 | $974,636 | $487.32 | | |
| LIB | Library Sno-Isle GEN | 0.3153421757 | $974,636 | $974,636 | $307.34 | | |
| PORTWHID | Port of S Whidbey GEN | 0.1094540357 | $974,636 | $974,636 | $106.68 | | |
| SCH206BOND | School 206 BOND | 0.3161759235 | $974,636 | $974,636 | $308.16 | | |
| SCH206MO | School 206 Enrichment | 0.4547169547 | $974,636 | $974,636 | $443.18 | | |
| ST | State School | 1.3035497053 | $974,636 | $974,636 | $1,270.49 | | |
| ST2 | State School Part 2 | 0.8169543533 | $974,636 | $974,636 | $796.23 | | |
| SWHIDPRBD | P & R S Whidbey BOND | 0.0152817568 | $974,636 | $974,636 | $14.89 | | |
| SWHIDPRBD2 | P & R S Whidbey BOND2 | 0.0138911264 | $974,636 | $974,636 | $13.54 | | |
| SWHIDPRMT | P & R S Whidbey GEN | 0.2053334452 | $974,636 | $974,636 | $200.13 | | |
| | Total Tax Rate: | 6.6934522006 | | | | | |
| | | | | Taxes w/Current Exemptions: | $6,523.68 | | |
| | | | | Taxes w/o Exemptions: | $6,523.68 | | |
Improvement / Building
| Improvement #1: | RESIDENTIAL | State Code: | Y | 960.0 sqft | Value: | $124,636 |
| Bathrooms: | 1 | Bedrooms: | 2 | | Ceiling: | DRYWALL PAINTED | Exterior Wall/Cover: | WOOD SIDING | | Floor Covering: | CARPET/VINYL 80-20 | Floor Structure: | WOOD W/SUBFLOOR | | Foundation: | CONCRETE BLOCKS | Heating: | BASEBOARD ELECTRIC | | Interior Finish: | DRYWALL PAINT | Plumbing Fixture Cnt: | 6 | | Roof Slope: | 3" IN 12" | Roof Structure/Cover: | CJ COMP ROLL |
|
| | Type | Description | Class CD | Sub Class CD | Year Built | Area |
| | BAS | BASE/MAIN FLOOR | 3 | 0 | 1968 | 960.0 |
| | AGR | ATTACHED GARAGE | 3 | 0 | 1968 | 288.0 |
| | OWP | OPEN WOOD PORCH W/STEPS | 3 | 0 | 1968 | 438.0 |
Sketch
Property Image
Land
| 1 | LB | LOW BANK | 0.0000 | 0.00 | 65.00 | 0.00 | 1.00 | $850,000 | $0 |
Roll Value History
| 2026 | N/A | N/A | N/A | N/A | N/A |
| 2025 | $124,636 | $850,000 | $0 | $974,636 | $974,636 |
| 2024 | $129,485 | $850,000 | $0 | $979,485 | $979,485 |
| 2023 | $131,634 | $850,000 | $0 | $981,634 | $981,634 |
| 2022 | $121,140 | $900,000 | $0 | $1,021,140 | $1,021,140 |
| 2021 | $107,028 | $500,000 | $0 | $607,028 | $607,028 |
| 2020 | $94,841 | $500,000 | $0 | $594,841 | $594,841 |
| 2019 | $67,452 | $525,000 | $0 | $592,452 | $592,452 |
| 2018 | $67,735 | $400,000 | $0 | $467,735 | $467,735 |
| 2017 | $68,304 | $350,000 | $0 | $418,304 | $418,304 |
| 2016 | $69,444 | $350,000 | $0 | $419,444 | $419,444 |
| 2015 | $70,582 | $300,000 | $0 | $370,582 | $370,582 |
| 2014 | $63,825 | $300,000 | $0 | $363,825 | $363,825 |
| 2013 | $64,945 | $332,860 | $0 | $397,805 | $397,805 |
| 2012 | $66,065 | $332,860 | $0 | $398,925 | $398,925 |
| 2011 | $67,185 | $332,860 | $0 | $400,045 | $400,045 |
| 2010 | $73,527 | $369,845 | $0 | $443,372 | $443,372 |
| 2009 | $76,896 | $487,162 | $0 | $564,058 | $564,058 |
| 2008 | $75,764 | $656,177 | $0 | $731,941 | $731,941 |
| 2007 | $76,896 | $433,475 | $0 | $510,371 | $510,371 |
Deed and Sales History
| 1 | 06/13/2017 | SPWARDEED | Special Warranty Deed | LEBLANC, DOUGLAS J | PARSLEY, NICOLE LIANE | | | $0.00 | 29926 | 4425044 |
| 2 | 01/01/1900 | OTHER | Other - Misc. Documents | Unknown | LEBLANC, DOUGLAS J | | | $0.00 | 0 | 0 |
Payout Agreement
| No payout information available.. |