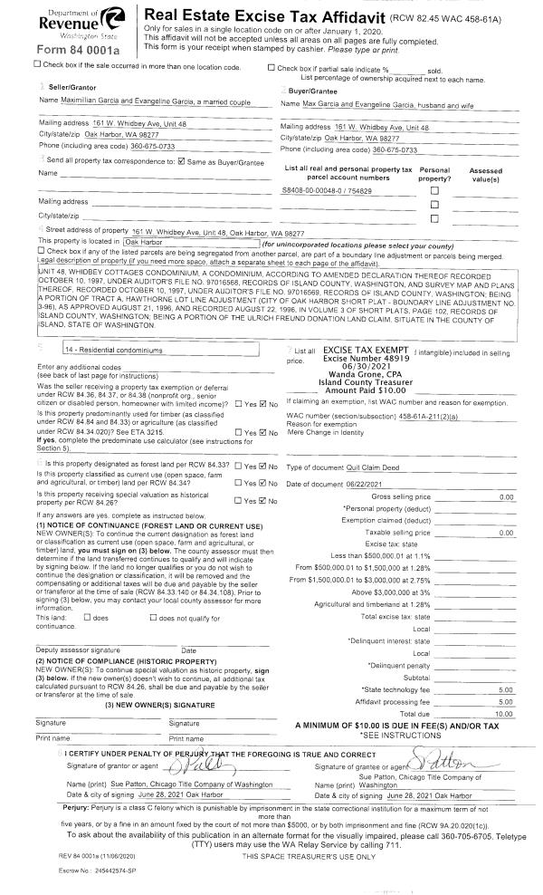
Property
Account |
| Property ID: | 381107 | Abbreviated Legal Description: | SCATCHET HD 3 LOT 61 BLK 14 DRAINFIELD LOC 32815-233- 2320 AF#96008143 |
| Geographic ID: | S8110-03-14061-0 | Agent Code: | |
| Type: | Real | | |
| Tax Area: | 740 - APPRAISER-S Whid Schl Dist, Special District, improved & less than 1 acre | Land Use Code | 11 |
| Open Space: | N | DFL | N |
| Historic Property: | N | Remodel Property: | N |
| Multi-Family Redevelopment: | N | | |
| Township: | | Section: | |
| Range: | |
Location |
| Address: | 3726 DRIFTWOOD DR CLINTON, WA 98236 | Mapsco: | |
| Neighborhood: | Cycle 4 | Map ID: | 712 |
| Neighborhood CD: | 4 |
Owner |
| Name: | WIEDENHOFT, LARRY A | Owner ID: | 2741 |
| Mailing Address: | JOYCE A WIEDENHOFT 3726 DRIFTWOOD DR CLINTON, WA 98236 | % Ownership: | 100.0000000000% |
| | | Exemptions: | SNR/DSBL |
Taxes and Assessment Details
Values
| (+) Improvement Homesite Value: | + | $266,362 | |
| (+) Improvement Non-Homesite Value: | + | $0 | |
| (+) Land Homesite Value: | + | $850,000 | |
| (+) Land Non-Homesite Value: | + | $0 | |
| (+) Curr Use (HS): | + | $0 | $0 |
| (+) Curr Use (NHS): | + | $0 | $0 |
| | | -------------------------- | |
| (=) Market Value: | = | $1,116,362 | |
| (–) Productivity Loss: | – | $0 | |
| | | -------------------------- | |
| (=) Subtotal: | = | $1,116,362 | |
| (+) Senior Appraised Value: | + | $1,116,362 | |
| (+) Non-Senior Appraised Value: | + | $0 | |
| | | -------------------------- | |
| (=) Total Appraised Value: | = | $1,116,362 | |
| (–) Senior Exemption Loss: | – | $669,817 | |
| (–) Exemption Loss: | – | $0 | |
| | | -------------------------- | |
| (=) Taxable Value: | = | $446,545 | |
Taxing Jurisdiction
| Owner: | WIEDENHOFT, LARRY A | | |
| % Ownership: | 100.0000000000% | | |
| Total Value: | $1,116,362 | | |
| Tax Area: | 740 - APPRAISER-S Whid Schl Dist, Special District, improved & less than 1 acre |
| CF | Conservation Futures | 0.0316035091 | $1,116,362 | $446,545 | $14.11 | | |
| FIRE3 | Fire & Rescue Dist #3 S Whidbey GEN | 1.2004855531 | $1,116,362 | $446,545 | $536.07 | | |
| HOBOND | Hospital BOND | 0.0000000000 | $1,116,362 | $0 | $0.00 | | |
| HOGEN | Hospital GEN | 0.3902502903 | $1,116,362 | $446,545 | $174.26 | | |
| CE | County Current Expense | 0.3708482477 | $1,116,362 | $446,545 | $165.60 | | |
| CR | County Roads | 0.4584763726 | $1,116,362 | $446,545 | $204.73 | | |
| ISLANDEMS | Hospital GEN (EMS) | 0.5000000000 | $1,116,362 | $446,545 | $223.27 | | |
| LIB | Library Sno-Isle GEN | 0.3153421757 | $1,116,362 | $446,545 | $140.81 | | |
| PORTWHID | Port of S Whidbey GEN | 0.1094540357 | $1,116,362 | $446,545 | $48.88 | | |
| SCH206BOND | School 206 BOND | 0.3161759235 | $1,116,362 | $446,545 | $141.19 | | |
| SCH206MO | School 206 Enrichment | 0.0000000000 | $1,116,362 | $0 | $0.00 | | |
| ST | State School | 1.3035497053 | $1,116,362 | $446,545 | $582.09 | | |
| ST2 | State School Part 2 | 0.0000000000 | $1,116,362 | $0 | $0.00 | | |
| SWHIDPRBD | P & R S Whidbey BOND | 0.0000000000 | $1,116,362 | $0 | $0.00 | | |
| SWHIDPRBD2 | P & R S Whidbey BOND2 | 0.0000000000 | $1,116,362 | $0 | $0.00 | | |
| SWHIDPRMT | P & R S Whidbey GEN | 0.2053334452 | $1,116,362 | $446,545 | $91.69 | | |
| | Total Tax Rate: | 5.2015192582 | | | | | |
| | | | | Taxes w/Current Exemptions: | $2,322.70 | | |
| | | | | Taxes w/o Exemptions: | $7,472.33 | | |
Improvement / Building
| Improvement #1: | RESIDENTIAL | State Code: | Y | 1496.2 sqft | Value: | $266,362 |
| Bathrooms: | 1.5 | Bedrooms: | 2 | | Ceiling: | DRYWALL PAINTED | Exterior Wall/Cover: | SHINGLE | | Floor Covering: | CARPET/VINYL 60-40 | Floor Structure: | WOOD W/SUBFLOOR | | Foundation: | CONCRETE | Heating: | FHA OIL | | Interior Finish: | DRYWALL PAINT | Plumbing Fixture Cnt: | 9 | | Roof Slope: | 12" IN 12" | Roof Structure/Cover: | CJ ASPHALT |
|
| | Type | Description | Class CD | Sub Class CD | Year Built | Area |
| | BAS | BASE/MAIN FLOOR | 3 | 0 | 2003 | 741.4 |
| | AGR | ATTACHED GARAGE | 3 | 0 | 2003 | 486.2 |
| | UTY | STORAGE/UTILITY | 3 | 0 | 2003 | 52.0 |
| | UPS | UPPER STORY | 3 | 0 | 2003 | 754.8 |
| | OWP | OPEN WOOD PORCH W/STEPS | 3 | 0 | 2003 | 90.5 |
| | OWC | OPEN WOOD PORCH W/STEPS/ROOF/C | 3 | 0 | 2003 | 97.2 |
| | UTY | STORAGE/UTILITY | 3 | 0 | 2003 | 120.0 |
Sketch
Property Image
Land
| 1 | LB | LOW BANK | 0.2191 | 9544.00 | 62.00 | 0.00 | 1.00 | $850,000 | $0 |
Roll Value History
| 2026 | N/A | N/A | N/A | N/A | N/A |
| 2025 | $266,362 | $850,000 | $0 | $1,116,362 | $446,545 |
| 2024 | $269,723 | $850,000 | $0 | $1,119,723 | $447,889 |
| 2023 | $273,085 | $850,000 | $0 | $1,123,085 | $1,123,085 |
| 2022 | $250,324 | $900,000 | $0 | $1,150,324 | $1,150,324 |
| 2021 | $220,324 | $500,000 | $0 | $720,324 | $720,324 |
| 2020 | $218,130 | $500,000 | $0 | $718,130 | $718,130 |
| 2019 | $159,180 | $525,000 | $0 | $684,180 | $684,180 |
| 2018 | $159,646 | $400,000 | $0 | $559,646 | $559,646 |
| 2017 | $159,973 | $350,000 | $0 | $509,973 | $509,973 |
| 2016 | $161,833 | $350,000 | $0 | $511,833 | $511,833 |
| 2015 | $163,694 | $300,000 | $0 | $463,694 | $463,694 |
| 2014 | $164,879 | $300,000 | $0 | $464,879 | $464,879 |
| 2013 | $166,709 | $320,710 | $0 | $487,419 | $487,419 |
| 2012 | $168,538 | $320,710 | $0 | $489,248 | $489,248 |
| 2011 | $170,368 | $320,710 | $0 | $491,078 | $491,078 |
| 2010 | $177,957 | $356,339 | $0 | $534,296 | $534,296 |
| 2009 | $185,615 | $469,371 | $0 | $654,986 | $654,986 |
| 2008 | $159,643 | $600,562 | $0 | $760,205 | $760,205 |
| 2007 | $171,560 | $417,644 | $0 | $589,204 | $589,204 |
Deed and Sales History
| 1 | 10/01/1994 | WD | Warranty Deed | CLARK, GERALD E | WIEDENHOFT, LARRY A | | | $13,000.00 | 44186 | 94021572 |
| 2 | 04/01/1987 | WD | Warranty Deed | KRUEGER, ROBERT L | CLARK, GERALD E | | | $23,000.00 | 71179 | 87005862 |
| 3 | 01/01/1979 | OTHER | Other - Misc. Documents | Unknown | KRUEGER, ROBERT L | | | $20,000.00 | 90510 | 346882 |
Payout Agreement
| No payout information available.. |