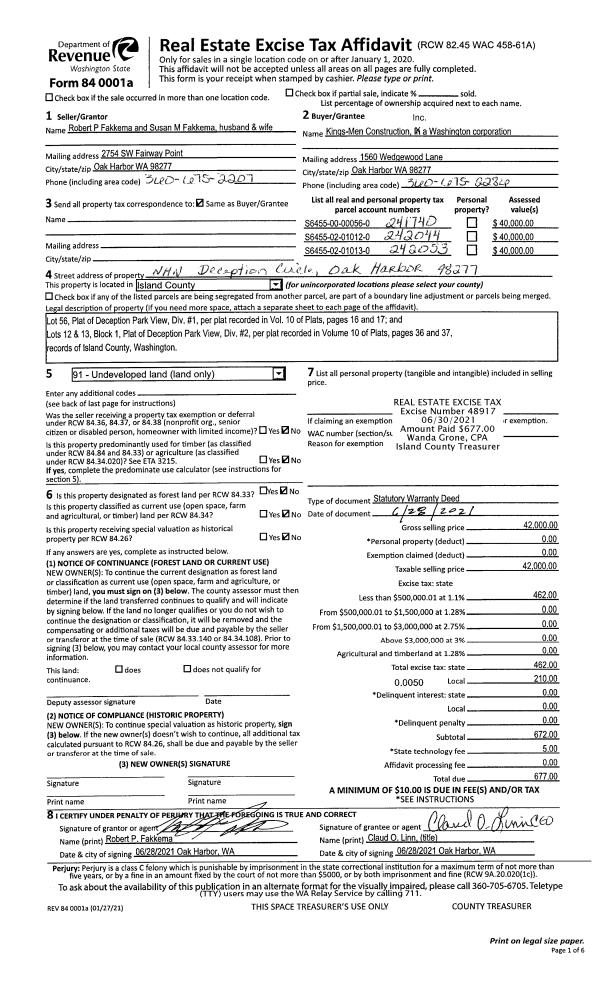
Property
Account |
| Property ID: | 381125 | Abbreviated Legal Description: | SCATCHET HD 3 LOT 63 BLK 14 DRAINFIELD LOC 32815-233- 2320 AF#96009844 |
| Geographic ID: | S8110-03-14063-0 | Agent Code: | |
| Type: | Real | | |
| Tax Area: | 740 - APPRAISER-S Whid Schl Dist, Special District, improved & less than 1 acre | Land Use Code | 11 |
| Open Space: | N | DFL | N |
| Historic Property: | N | Remodel Property: | N |
| Multi-Family Redevelopment: | N | | |
| Township: | | Section: | |
| Range: | |
Location |
| Address: | 3716 DRIFTWOOD DR CLINTON, WA 98236 | Mapsco: | |
| Neighborhood: | Cycle 4 | Map ID: | 712 |
| Neighborhood CD: | 4 |
Owner |
| Name: | RITZMARK HOLDINGS LLC | Owner ID: | 253440 |
| Mailing Address: | 1401 SUNSET AVE SW SEATTLE, WA 98116 | % Ownership: | 100.0000000000% |
| | | Exemptions: | |
Taxes and Assessment Details
Values
| (+) Improvement Homesite Value: | + | $0 | |
| (+) Improvement Non-Homesite Value: | + | $664,069 | |
| (+) Land Homesite Value: | + | $0 | |
| (+) Land Non-Homesite Value: | + | $850,000 | |
| (+) Curr Use (HS): | + | $0 | $0 |
| (+) Curr Use (NHS): | + | $0 | $0 |
| | | -------------------------- | |
| (=) Market Value: | = | $1,514,069 | |
| (–) Productivity Loss: | – | $0 | |
| | | -------------------------- | |
| (=) Subtotal: | = | $1,514,069 | |
| (+) Senior Appraised Value: | + | $0 | |
| (+) Non-Senior Appraised Value: | + | $1,514,069 | |
| | | -------------------------- | |
| (=) Total Appraised Value: | = | $1,514,069 | |
| (–) Senior Exemption Loss: | – | $0 | |
| (–) Exemption Loss: | – | $0 | |
| | | -------------------------- | |
| (=) Taxable Value: | = | $1,514,069 | |
Taxing Jurisdiction
| Owner: | RITZMARK HOLDINGS LLC | | |
| % Ownership: | 100.0000000000% | | |
| Total Value: | $1,514,069 | | |
| Tax Area: | 740 - APPRAISER-S Whid Schl Dist, Special District, improved & less than 1 acre |
| CF | Conservation Futures | 0.0316035091 | $1,514,069 | $1,514,069 | $47.85 | | |
| FIRE3 | Fire & Rescue Dist #3 S Whidbey GEN | 1.2004855531 | $1,514,069 | $1,514,069 | $1,817.62 | | |
| HOBOND | Hospital BOND | 0.1910887512 | $1,514,069 | $1,514,069 | $289.32 | | |
| HOGEN | Hospital GEN | 0.3902502903 | $1,514,069 | $1,514,069 | $590.87 | | |
| CE | County Current Expense | 0.3708482477 | $1,514,069 | $1,514,069 | $561.49 | | |
| CR | County Roads | 0.4584763726 | $1,514,069 | $1,514,069 | $694.16 | | |
| ISLANDEMS | Hospital GEN (EMS) | 0.5000000000 | $1,514,069 | $1,514,069 | $757.03 | | |
| LIB | Library Sno-Isle GEN | 0.3153421757 | $1,514,069 | $1,514,069 | $477.45 | | |
| PORTWHID | Port of S Whidbey GEN | 0.1094540357 | $1,514,069 | $1,514,069 | $165.72 | | |
| SCH206BOND | School 206 BOND | 0.3161759235 | $1,514,069 | $1,514,069 | $478.71 | | |
| SCH206MO | School 206 Enrichment | 0.4547169547 | $1,514,069 | $1,514,069 | $688.47 | | |
| ST | State School | 1.3035497053 | $1,514,069 | $1,514,069 | $1,973.66 | | |
| ST2 | State School Part 2 | 0.8169543533 | $1,514,069 | $1,514,069 | $1,236.93 | | |
| SWHIDPRBD | P & R S Whidbey BOND | 0.0152817568 | $1,514,069 | $1,514,069 | $23.14 | | |
| SWHIDPRBD2 | P & R S Whidbey BOND2 | 0.0138911264 | $1,514,069 | $1,514,069 | $21.03 | | |
| SWHIDPRMT | P & R S Whidbey GEN | 0.2053334452 | $1,514,069 | $1,514,069 | $310.89 | | |
| | Total Tax Rate: | 6.6934522006 | | | | | |
| | | | | Taxes w/Current Exemptions: | $10,134.34 | | |
| | | | | Taxes w/o Exemptions: | $10,134.34 | | |
Improvement / Building
| Improvement #1: | RESIDENTIAL | State Code: | Y | 3040.0 sqft | Value: | $664,069 |
| Bathrooms: | 3.5 | Bedrooms: | 2 | | Ceiling: | DRYWALL PAINTED | Cooling: | HEAT PUMP/CONV/V | | Exterior Wall/Cover: | CEMENT FIBER | Floor Covering: | HARDWOOD/CARP 60-40 | | Floor Structure: | WOOD W/SUBFLOOR | Foundation: | CONCRETE | | Interior Finish: | DRYWALL PAINT | Plumbing Fixture Cnt: | 16 | | Roof Slope: | 5" IN 12" | Roof Structure/Cover: | CJ ASPHALT |
|
| | Type | Description | Class CD | Sub Class CD | Year Built | Area |
| | BAS | BASE/MAIN FLOOR | 5 | 0 | 2009 | 1802.0 |
| | OP1 | OPEN PORCH SLAB | 5 | 0 | 2009 | 156.0 |
| | OP1 | OPEN PORCH SLAB | 5 | 0 | 2009 | 601.0 |
| | OP4 | OPEN PORCH W/CEILING-ROOF | 5 | 0 | 2009 | 32.0 |
| | OP4 | OPEN PORCH W/CEILING-ROOF | 5 | 0 | 2009 | 72.0 |
| | OP4 | OPEN PORCH W/CEILING-ROOF | 5 | 0 | 2009 | 216.0 |
| | AGR | ATTACHED GARAGE | 5 | 0 | 2009 | 272.0 |
| | BIG | BUILT IN GARAGE | 5 | 0 | 2009 | 256.0 |
| | UPS | UPPER STORY | 5 | 0 | 2009 | 1238.0 |
Sketch
Property Image
Land
| 1 | LB | LOW BANK | 0.0000 | 0.00 | 68.00 | 0.00 | 1.00 | $850,000 | $0 |
Roll Value History
| 2026 | N/A | N/A | N/A | N/A | N/A |
| 2025 | $664,069 | $850,000 | $0 | $1,514,069 | $1,514,069 |
| 2024 | $671,859 | $850,000 | $0 | $1,521,859 | $1,521,859 |
| 2023 | $679,647 | $850,000 | $0 | $1,529,647 | $1,529,647 |
| 2022 | $622,481 | $900,000 | $0 | $1,522,481 | $1,522,481 |
| 2021 | $547,397 | $500,000 | $0 | $1,047,397 | $1,047,397 |
| 2020 | $532,009 | $500,000 | $0 | $1,032,009 | $1,032,009 |
| 2019 | $445,918 | $525,000 | $0 | $970,918 | $970,918 |
| 2018 | $447,152 | $400,000 | $0 | $847,152 | $847,152 |
| 2017 | $449,626 | $350,000 | $0 | $799,626 | $799,626 |
| 2016 | $454,565 | $350,000 | $0 | $804,565 | $804,565 |
| 2015 | $459,506 | $300,000 | $0 | $759,506 | $759,506 |
| 2014 | $464,599 | $300,000 | $0 | $764,599 | $764,599 |
| 2013 | $469,543 | $348,220 | $0 | $817,763 | $817,763 |
| 2012 | $474,483 | $348,220 | $0 | $822,703 | $822,703 |
| 2011 | $479,428 | $348,220 | $0 | $827,648 | $827,648 |
| 2010 | $460,980 | $386,915 | $0 | $847,895 | $847,895 |
| 2009 | $231,848 | $254,823 | $0 | $486,671 | $486,671 |
| 2008 | $4,000 | $258,062 | $0 | $262,062 | $262,062 |
| 2007 | $4,000 | $263,081 | $0 | $267,081 | $267,081 |
Deed and Sales History
| 1 | 02/07/2011 | WD | Warranty Deed | HETTICH, MICHAEL S | RITZMARK HOLDINGS LLC | | | $875,000.00 | 3587 | 4290422 |
| 2 | 04/23/2008 | WD | Warranty Deed | FROSTAD, LARS R | HETTICH, MICHAEL S | | | $273,000.00 | 81004 | 4227024 |
| 3 | 04/01/1993 | WD | Warranty Deed | KING, WALTER E | FROSTAD, LARS R | | | $60,000.00 | 31598 | 93008237 |
| 4 | 01/01/1900 | OTHER | Other - Misc. Documents | Unknown | KING, WALTER E | | | $0.00 | 0 | 0 |
Payout Agreement
| No payout information available.. |