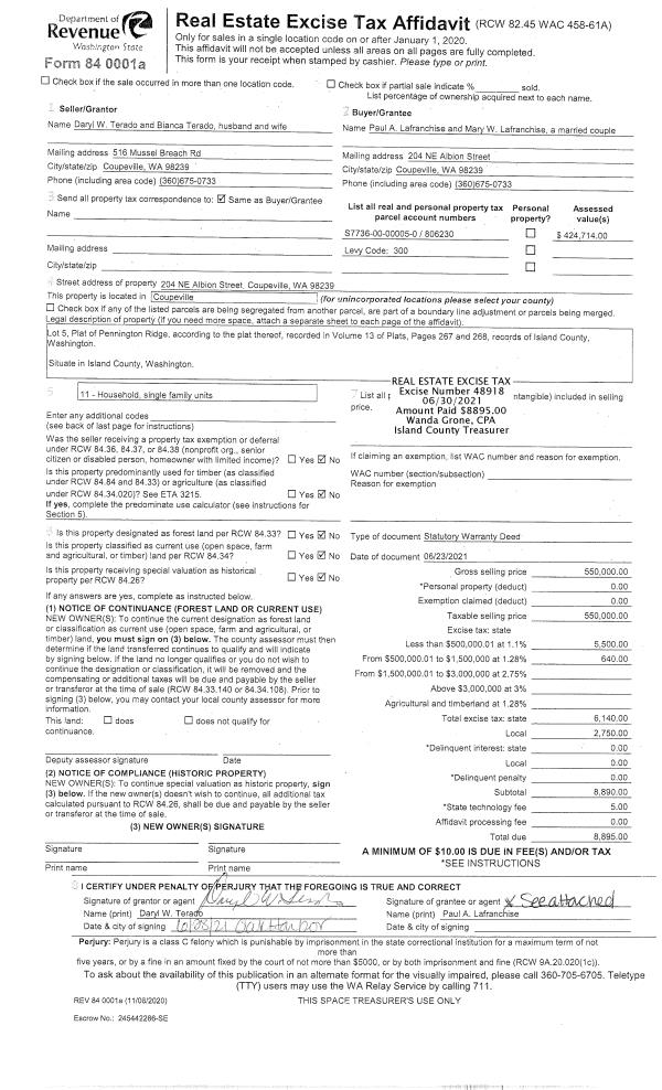
Property
Account |
| Property ID: | 381143 | Abbreviated Legal Description: | SCATCHET HD 3 LOT 65 BLK 14 |
| Geographic ID: | S8110-03-14065-0 | Agent Code: | |
| Type: | Real | | |
| Tax Area: | 740 - APPRAISER-S Whid Schl Dist, Special District, improved & less than 1 acre | Land Use Code | 11 |
| Open Space: | N | DFL | N |
| Historic Property: | N | Remodel Property: | N |
| Multi-Family Redevelopment: | N | | |
| Township: | | Section: | |
| Range: | |
Location |
| Address: | 3704 DRIFTWOOD DR CLINTON, WA 98236 | Mapsco: | |
| Neighborhood: | Cycle 4 | Map ID: | 712 |
| Neighborhood CD: | 4 |
Owner |
| Name: | ITAYA, JOSEPH E | Owner ID: | 278019 |
| Mailing Address: | ELIZABETH A ITAYA 3704 DRIFTWOOD DR CLINTON, WA 98236 | % Ownership: | 100.0000000000% |
| | | Exemptions: | |
Taxes and Assessment Details
Values
| (+) Improvement Homesite Value: | + | $0 | |
| (+) Improvement Non-Homesite Value: | + | $627,600 | |
| (+) Land Homesite Value: | + | $0 | |
| (+) Land Non-Homesite Value: | + | $850,000 | |
| (+) Curr Use (HS): | + | $0 | $0 |
| (+) Curr Use (NHS): | + | $0 | $0 |
| | | -------------------------- | |
| (=) Market Value: | = | $1,477,600 | |
| (–) Productivity Loss: | – | $0 | |
| | | -------------------------- | |
| (=) Subtotal: | = | $1,477,600 | |
| (+) Senior Appraised Value: | + | $0 | |
| (+) Non-Senior Appraised Value: | + | $1,477,600 | |
| | | -------------------------- | |
| (=) Total Appraised Value: | = | $1,477,600 | |
| (–) Senior Exemption Loss: | – | $0 | |
| (–) Exemption Loss: | – | $0 | |
| | | -------------------------- | |
| (=) Taxable Value: | = | $1,477,600 | |
Taxing Jurisdiction
| Owner: | ITAYA, JOSEPH E | | |
| % Ownership: | 100.0000000000% | | |
| Total Value: | $1,477,600 | | |
| Tax Area: | 740 - APPRAISER-S Whid Schl Dist, Special District, improved & less than 1 acre |
| CF | Conservation Futures | 0.0316035091 | $1,477,600 | $1,477,600 | $46.70 | | |
| FIRE3 | Fire & Rescue Dist #3 S Whidbey GEN | 1.2004855531 | $1,477,600 | $1,477,600 | $1,773.84 | | |
| HOBOND | Hospital BOND | 0.1910887512 | $1,477,600 | $1,477,600 | $282.35 | | |
| HOGEN | Hospital GEN | 0.3902502903 | $1,477,600 | $1,477,600 | $576.63 | | |
| CE | County Current Expense | 0.3708482477 | $1,477,600 | $1,477,600 | $547.97 | | |
| CR | County Roads | 0.4584763726 | $1,477,600 | $1,477,600 | $677.44 | | |
| ISLANDEMS | Hospital GEN (EMS) | 0.5000000000 | $1,477,600 | $1,477,600 | $738.80 | | |
| LIB | Library Sno-Isle GEN | 0.3153421757 | $1,477,600 | $1,477,600 | $465.95 | | |
| PORTWHID | Port of S Whidbey GEN | 0.1094540357 | $1,477,600 | $1,477,600 | $161.73 | | |
| SCH206BOND | School 206 BOND | 0.3161759235 | $1,477,600 | $1,477,600 | $467.18 | | |
| SCH206MO | School 206 Enrichment | 0.4547169547 | $1,477,600 | $1,477,600 | $671.89 | | |
| ST | State School | 1.3035497053 | $1,477,600 | $1,477,600 | $1,926.13 | | |
| ST2 | State School Part 2 | 0.8169543533 | $1,477,600 | $1,477,600 | $1,207.13 | | |
| SWHIDPRBD | P & R S Whidbey BOND | 0.0152817568 | $1,477,600 | $1,477,600 | $22.58 | | |
| SWHIDPRBD2 | P & R S Whidbey BOND2 | 0.0138911264 | $1,477,600 | $1,477,600 | $20.53 | | |
| SWHIDPRMT | P & R S Whidbey GEN | 0.2053334452 | $1,477,600 | $1,477,600 | $303.40 | | |
| | Total Tax Rate: | 6.6934522006 | | | | | |
| | | | | Taxes w/Current Exemptions: | $9,890.25 | | |
| | | | | Taxes w/o Exemptions: | $9,890.25 | | |
Improvement / Building
| Improvement #1: | RESIDENTIAL | State Code: | Y | 3058.3 sqft | Value: | $627,600 |
| Bathrooms: | 3 | Bedrooms: | 3 | | Ceiling: | DRYWALL PAINTED | Exterior Wall/Cover: | CEMENT FIBER | | Floor Covering: | HARDWOOD 100% | Floor Structure: | WOOD W/SUBFLOOR | | Foundation: | CONCRETE | Heating: | FHA ELECTRIC | | Interior Finish: | DRYWALL PAINT | Plumbing Fixture Cnt: | 12 | | Roof Slope: | 8" IN 12" | Roof Structure/Cover: | CJ ASPHALT |
|
| | Type | Description | Class CD | Sub Class CD | Year Built | Area |
| | BAS | BASE/MAIN FLOOR | 5 | 0 | 2000 | 1671.7 |
| | OP1 | OPEN PORCH SLAB | 5 | 0 | 2000 | 393.2 |
| | OP2 | OPEN PORCH W/STEPS | 5 | 0 | 2000 | 36.6 |
| | OP3 | OPEN PORCH W/ROOF | 5 | 0 | 2000 | 37.4 |
| | BIG | BUILT IN GARAGE | 5 | 0 | 2000 | 449.0 |
| | UPS | UPPER STORY | 5 | 0 | 2000 | 1141.0 |
| | OWP | OPEN WOOD PORCH W/STEPS | 5 | 0 | 2000 | 24.0 |
| | OWP | OPEN WOOD PORCH W/STEPS | 5 | 0 | 2000 | 111.2 |
| | OWC | OPEN WOOD PORCH W/STEPS/ROOF/C | 5 | 0 | 2000 | 257.8 |
| | OWC | OPEN WOOD PORCH W/STEPS/ROOF/C | 5 | 0 | 2000 | 234.7 |
| | UPH | HALF STORY | 5 | 0 | 2000 | 245.6 |
Sketch
Property Image
Land
| 1 | LB | LOW BANK | 0.2288 | 9966.53 | 80.00 | 0.00 | 1.00 | $850,000 | $0 |
Roll Value History
| 2026 | N/A | N/A | N/A | N/A | N/A |
| 2025 | $627,600 | $850,000 | $0 | $1,477,600 | $1,477,600 |
| 2024 | $635,518 | $850,000 | $0 | $1,485,518 | $1,485,518 |
| 2023 | $643,439 | $850,000 | $0 | $1,493,439 | $1,493,439 |
| 2022 | $589,790 | $900,000 | $0 | $1,489,790 | $1,489,790 |
| 2021 | $519,096 | $500,000 | $0 | $1,019,096 | $1,019,096 |
| 2020 | $506,656 | $500,000 | $0 | $1,006,656 | $1,006,656 |
| 2019 | $431,377 | $525,000 | $0 | $956,377 | $956,377 |
| 2018 | $432,641 | $400,000 | $0 | $832,641 | $832,641 |
| 2017 | $435,154 | $350,000 | $0 | $785,154 | $785,154 |
| 2016 | $333,441 | $350,000 | $0 | $683,441 | $683,441 |
| 2015 | $337,365 | $350,000 | $0 | $687,365 | $687,365 |
| 2014 | $342,643 | $350,000 | $0 | $692,643 | $692,643 |
| 2013 | $346,594 | $397,260 | $0 | $743,854 | $743,854 |
| 2012 | $350,544 | $397,260 | $0 | $747,804 | $747,804 |
| 2011 | $354,494 | $397,260 | $0 | $751,754 | $751,754 |
| 2010 | $365,276 | $441,400 | $0 | $806,676 | $806,676 |
| 2009 | $380,660 | $581,414 | $0 | $962,074 | $962,074 |
| 2008 | $352,620 | $749,317 | $0 | $1,101,937 | $1,101,937 |
| 2007 | $372,477 | $517,340 | $0 | $889,817 | $889,817 |
Deed and Sales History
| 1 | 12/06/2016 | WD | Warranty Deed | WASCHER-JAMES, SANDE R | ITAYA, JOSEPH E | | | $780,000.00 | 27472 | 4413917 |
| 2 | 09/16/2009 | ESTSEPPROP | Establish Separate Property | WASCHER-JAMES, SANDE | WASCHER-JAMES, SANDE R | | | $0.00 | 92230 | 4260460 |
| 3 | 11/16/2006 | OTHER | Other - Misc. Documents | JAMES, ALBERT R | WASCHER-JAMES, SANDE | | | $0.00 | 80070 | 0 |
| 4 | 04/01/1996 | WD | Warranty Deed | TUAI, LIEM E | JAMES, ALBERT R | | | $85,000.00 | 61278 | 96006591 |
| 5 | 03/01/1995 | QCD | Quit Claim Deed | TUAI, LIEM E | TUAI, LIEM E | | | $14,500.00 | 50902 | 95005292 |
| 6 | 03/01/1970 | CD | DNU - Correction Deed | CARNS, NEIL S | TUAI, LIEM E | | | $0.00 | 47738 | 0 |
Payout Agreement
| No payout information available.. |