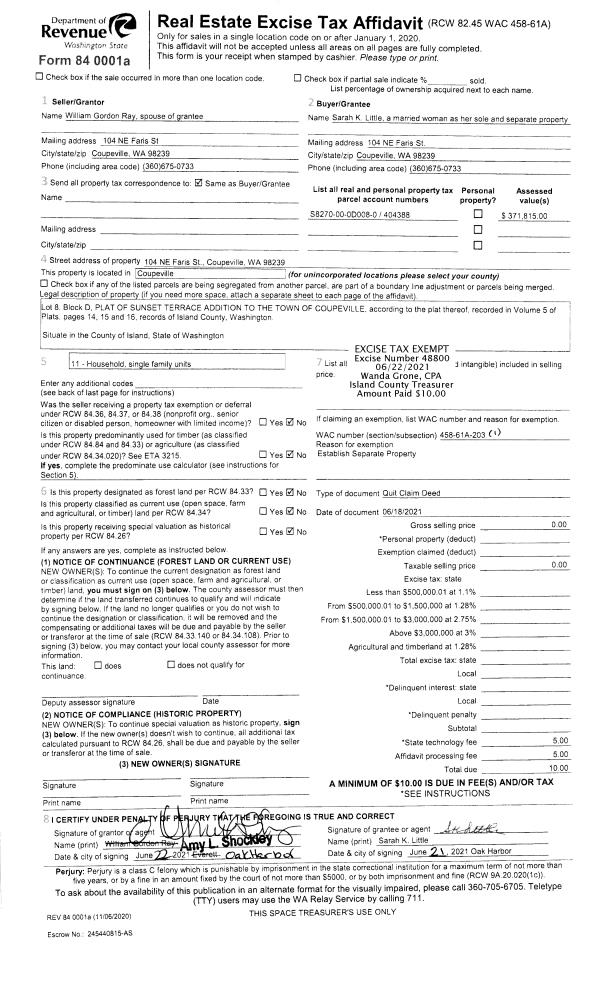
Property
Account |
| Property ID: | 381198 | Abbreviated Legal Description: | SCATCHET HD 3 LOT 70 BLK 14 |
| Geographic ID: | S8110-03-14070-0 | Agent Code: | |
| Type: | Real | | |
| Tax Area: | 740 - APPRAISER-S Whid Schl Dist, Special District, improved & less than 1 acre | Land Use Code | 11 |
| Open Space: | N | DFL | N |
| Historic Property: | N | Remodel Property: | N |
| Multi-Family Redevelopment: | N | | |
| Township: | | Section: | |
| Range: | |
Location |
| Address: | 3676 DRIFTWOOD DR CLINTON, WA 98236 | Mapsco: | |
| Neighborhood: | Cycle 4 | Map ID: | 712 |
| Neighborhood CD: | 4 |
Owner |
| Name: | WHELAN, ROCHELLE J | Owner ID: | 269570 |
| Mailing Address: | 8711 SE 44TH PLACE MERCER ISLAND, WA 98040 | % Ownership: | 100.0000000000% |
| | | Exemptions: | |
Taxes and Assessment Details
Values
| (+) Improvement Homesite Value: | + | $0 | |
| (+) Improvement Non-Homesite Value: | + | $501,742 | |
| (+) Land Homesite Value: | + | $0 | |
| (+) Land Non-Homesite Value: | + | $850,000 | |
| (+) Curr Use (HS): | + | $0 | $0 |
| (+) Curr Use (NHS): | + | $0 | $0 |
| | | -------------------------- | |
| (=) Market Value: | = | $1,351,742 | |
| (–) Productivity Loss: | – | $0 | |
| | | -------------------------- | |
| (=) Subtotal: | = | $1,351,742 | |
| (+) Senior Appraised Value: | + | $0 | |
| (+) Non-Senior Appraised Value: | + | $1,351,742 | |
| | | -------------------------- | |
| (=) Total Appraised Value: | = | $1,351,742 | |
| (–) Senior Exemption Loss: | – | $0 | |
| (–) Exemption Loss: | – | $0 | |
| | | -------------------------- | |
| (=) Taxable Value: | = | $1,351,742 | |
Taxing Jurisdiction
| Owner: | WHELAN, ROCHELLE J | | |
| % Ownership: | 100.0000000000% | | |
| Total Value: | $1,351,742 | | |
| Tax Area: | 740 - APPRAISER-S Whid Schl Dist, Special District, improved & less than 1 acre |
| CF | Conservation Futures | 0.0316035091 | $1,351,742 | $1,351,742 | $42.72 | | |
| FIRE3 | Fire & Rescue Dist #3 S Whidbey GEN | 1.2004855531 | $1,351,742 | $1,351,742 | $1,622.75 | | |
| HOBOND | Hospital BOND | 0.1910887512 | $1,351,742 | $1,351,742 | $258.30 | | |
| HOGEN | Hospital GEN | 0.3902502903 | $1,351,742 | $1,351,742 | $527.52 | | |
| CE | County Current Expense | 0.3708482477 | $1,351,742 | $1,351,742 | $501.29 | | |
| CR | County Roads | 0.4584763726 | $1,351,742 | $1,351,742 | $619.74 | | |
| ISLANDEMS | Hospital GEN (EMS) | 0.5000000000 | $1,351,742 | $1,351,742 | $675.87 | | |
| LIB | Library Sno-Isle GEN | 0.3153421757 | $1,351,742 | $1,351,742 | $426.26 | | |
| PORTWHID | Port of S Whidbey GEN | 0.1094540357 | $1,351,742 | $1,351,742 | $147.95 | | |
| SCH206BOND | School 206 BOND | 0.3161759235 | $1,351,742 | $1,351,742 | $427.39 | | |
| SCH206MO | School 206 Enrichment | 0.4547169547 | $1,351,742 | $1,351,742 | $614.66 | | |
| ST | State School | 1.3035497053 | $1,351,742 | $1,351,742 | $1,762.06 | | |
| ST2 | State School Part 2 | 0.8169543533 | $1,351,742 | $1,351,742 | $1,104.31 | | |
| SWHIDPRBD | P & R S Whidbey BOND | 0.0152817568 | $1,351,742 | $1,351,742 | $20.66 | | |
| SWHIDPRBD2 | P & R S Whidbey BOND2 | 0.0138911264 | $1,351,742 | $1,351,742 | $18.78 | | |
| SWHIDPRMT | P & R S Whidbey GEN | 0.2053334452 | $1,351,742 | $1,351,742 | $277.56 | | |
| | Total Tax Rate: | 6.6934522006 | | | | | |
| | | | | Taxes w/Current Exemptions: | $9,047.82 | | |
| | | | | Taxes w/o Exemptions: | $9,047.82 | | |
Improvement / Building
| Improvement #1: | RESIDENTIAL | State Code: | Y | 2231.3 sqft | Value: | $501,742 |
| Bathrooms: | 2.5 | Bedrooms: | 3 | | Ceiling: | DRYWALL PAINTED | Exterior Wall/Cover: | CEMENT FIBER | | Floor Covering: | HARDWOOD/CARP 60-40 | Floor Structure: | WOOD W/SUBFLOOR | | Foundation: | CONCRETE | Heating: | FHA ELECTRIC | | Interior Finish: | DRYWALL PAINT | Plumbing Fixture Cnt: | 11 | | Roof Slope: | 10" IN 12" | Roof Structure/Cover: | CJ ASPHALT |
|
| | Type | Description | Class CD | Sub Class CD | Year Built | Area |
| | BAS | BASE/MAIN FLOOR | 5 | 0 | 2002 | 1500.7 |
| | OP4 | OPEN PORCH W/CEILING-ROOF | 5 | 0 | 2002 | 80.0 |
| | AGR | ATTACHED GARAGE | 5 | 0 | 2002 | 468.4 |
| | UPS | UPPER STORY | 5 | 0 | 2002 | 730.6 |
| | OWP | OPEN WOOD PORCH W/STEPS | 5 | 0 | 2002 | 161.0 |
| | OWP | OPEN WOOD PORCH W/STEPS | 5 | 0 | 2002 | 195.0 |
| | OWR | OPEN WOOD PORCH W/STEPS/ROOF | 5 | 0 | 2002 | 77.0 |
| | OWC | OPEN WOOD PORCH W/STEPS/ROOF/C | 5 | 0 | 2002 | 226.4 |
Sketch
Property Image
Land
| 1 | LB | LOW BANK | 0.0000 | 0.00 | 75.00 | 0.00 | 1.00 | $850,000 | $0 |
Roll Value History
| 2026 | N/A | N/A | N/A | N/A | N/A |
| 2025 | $501,742 | $850,000 | $0 | $1,351,742 | $1,351,742 |
| 2024 | $507,994 | $850,000 | $0 | $1,357,994 | $1,357,994 |
| 2023 | $514,245 | $850,000 | $0 | $1,364,245 | $1,364,245 |
| 2022 | $471,316 | $900,000 | $0 | $1,371,316 | $1,371,316 |
| 2021 | $414,762 | $500,000 | $0 | $914,762 | $914,762 |
| 2020 | $399,322 | $500,000 | $0 | $899,322 | $899,322 |
| 2019 | $313,855 | $525,000 | $0 | $838,855 | $838,855 |
| 2018 | $314,777 | $400,000 | $0 | $714,777 | $714,777 |
| 2017 | $316,433 | $350,000 | $0 | $666,433 | $666,433 |
| 2016 | $320,114 | $350,000 | $0 | $670,114 | $670,114 |
| 2015 | $323,794 | $350,000 | $0 | $673,794 | $673,794 |
| 2014 | $266,879 | $350,000 | $0 | $616,879 | $616,879 |
| 2013 | $269,947 | $376,310 | $0 | $646,257 | $646,257 |
| 2012 | $273,014 | $376,310 | $0 | $649,324 | $649,324 |
| 2011 | $276,082 | $376,310 | $0 | $652,392 | $652,392 |
| 2010 | $278,469 | $418,123 | $0 | $696,592 | $696,592 |
| 2009 | $287,134 | $550,754 | $0 | $837,888 | $837,888 |
| 2008 | $294,798 | $741,832 | $0 | $1,036,630 | $1,036,630 |
| 2007 | $301,073 | $490,058 | $0 | $791,131 | $791,131 |
Deed and Sales History
| 1 | 03/18/2015 | ESTSEPPROP | Establish Separate Property | WHELAN, ROCHELLE J | WHELAN, ROCHELLE J | | | $0.00 | 18896 | 4375403 |
| 2 | 03/18/2015 | WD | Warranty Deed | RIGHTCAP, LLC | WHELAN, ROCHELLE J | | | $672,500.00 | 18895 | 4375402 |
| 3 | 05/14/2014 | SPWARDEED | Special Warranty Deed | NATIONSTAR MORTGAGE LLC | RIGHTCAP, LLC | | | $400,050.00 | 15477 | 4360236 |
| 4 | 11/21/2012 | TRUSTEED | Trustee's Deed | MCCAULEY, LAWRENCE M | NATIONSTAR MORTGAGE LLC | | | $651,564.00 | 9556 | 4327897 |
| 5 | 10/30/2002 | WD | Warranty Deed | DOMAN, SCOTT | MCCAULEY, LAWRENCE M | | | $180,000.00 | 24812 | 4039099 |
| 6 | 11/01/1978 | OTHER | Other - Misc. Documents | Unknown | DOMAN, SCOTT | | | $21,000.00 | 85571 | 343054 |
Payout Agreement
| No payout information available.. |