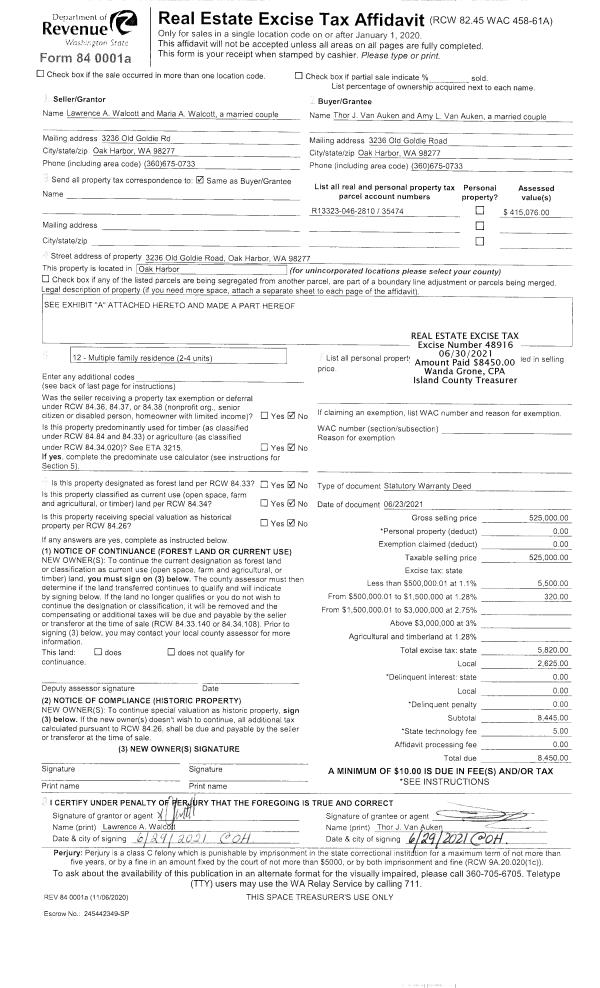
Property
Account |
| Property ID: | 381223 | Abbreviated Legal Description: | SCATCHET HD 3 LOT 73 BLK 14 DRAINFIELD LOC PT 32815-233 2320 AF#96009838 |
| Geographic ID: | S8110-03-14073-0 | Agent Code: | |
| Type: | Real | | |
| Tax Area: | 740 - APPRAISER-S Whid Schl Dist, Special District, improved & less than 1 acre | Land Use Code | 11 |
| Open Space: | N | DFL | N |
| Historic Property: | N | Remodel Property: | N |
| Multi-Family Redevelopment: | N | | |
| Township: | | Section: | |
| Range: | |
Location |
| Address: | 3660 DRIFTWOOD DR CLINTON, WA 98236 | Mapsco: | |
| Neighborhood: | Cycle 4 | Map ID: | 712 |
| Neighborhood CD: | 4 |
Owner |
| Name: | PLUMPE, MICHAEL D | Owner ID: | 259036 |
| Mailing Address: | ANNEMARIE PLUMPE 1335 N78TH ST SEATTLE, WA 98103 | % Ownership: | 100.0000000000% |
| | | Exemptions: | |
Taxes and Assessment Details
Values
| (+) Improvement Homesite Value: | + | $0 | |
| (+) Improvement Non-Homesite Value: | + | $421,048 | |
| (+) Land Homesite Value: | + | $0 | |
| (+) Land Non-Homesite Value: | + | $850,000 | |
| (+) Curr Use (HS): | + | $0 | $0 |
| (+) Curr Use (NHS): | + | $0 | $0 |
| | | -------------------------- | |
| (=) Market Value: | = | $1,271,048 | |
| (–) Productivity Loss: | – | $0 | |
| | | -------------------------- | |
| (=) Subtotal: | = | $1,271,048 | |
| (+) Senior Appraised Value: | + | $0 | |
| (+) Non-Senior Appraised Value: | + | $1,271,048 | |
| | | -------------------------- | |
| (=) Total Appraised Value: | = | $1,271,048 | |
| (–) Senior Exemption Loss: | – | $0 | |
| (–) Exemption Loss: | – | $0 | |
| | | -------------------------- | |
| (=) Taxable Value: | = | $1,271,048 | |
Taxing Jurisdiction
| Owner: | PLUMPE, MICHAEL D | | |
| % Ownership: | 100.0000000000% | | |
| Total Value: | $1,271,048 | | |
| Tax Area: | 740 - APPRAISER-S Whid Schl Dist, Special District, improved & less than 1 acre |
| CF | Conservation Futures | 0.0316035091 | $1,271,048 | $1,271,048 | $40.17 | | |
| FIRE3 | Fire & Rescue Dist #3 S Whidbey GEN | 1.2004855531 | $1,271,048 | $1,271,048 | $1,525.87 | | |
| HOBOND | Hospital BOND | 0.1910887512 | $1,271,048 | $1,271,048 | $242.88 | | |
| HOGEN | Hospital GEN | 0.3902502903 | $1,271,048 | $1,271,048 | $496.03 | | |
| CE | County Current Expense | 0.3708482477 | $1,271,048 | $1,271,048 | $471.37 | | |
| CR | County Roads | 0.4584763726 | $1,271,048 | $1,271,048 | $582.75 | | |
| ISLANDEMS | Hospital GEN (EMS) | 0.5000000000 | $1,271,048 | $1,271,048 | $635.52 | | |
| LIB | Library Sno-Isle GEN | 0.3153421757 | $1,271,048 | $1,271,048 | $400.82 | | |
| PORTWHID | Port of S Whidbey GEN | 0.1094540357 | $1,271,048 | $1,271,048 | $139.12 | | |
| SCH206BOND | School 206 BOND | 0.3161759235 | $1,271,048 | $1,271,048 | $401.87 | | |
| SCH206MO | School 206 Enrichment | 0.4547169547 | $1,271,048 | $1,271,048 | $577.97 | | |
| ST | State School | 1.3035497053 | $1,271,048 | $1,271,048 | $1,656.87 | | |
| ST2 | State School Part 2 | 0.8169543533 | $1,271,048 | $1,271,048 | $1,038.39 | | |
| SWHIDPRBD | P & R S Whidbey BOND | 0.0152817568 | $1,271,048 | $1,271,048 | $19.42 | | |
| SWHIDPRBD2 | P & R S Whidbey BOND2 | 0.0138911264 | $1,271,048 | $1,271,048 | $17.66 | | |
| SWHIDPRMT | P & R S Whidbey GEN | 0.2053334452 | $1,271,048 | $1,271,048 | $260.99 | | |
| | Total Tax Rate: | 6.6934522006 | | | | | |
| | | | | Taxes w/Current Exemptions: | $8,507.70 | | |
| | | | | Taxes w/o Exemptions: | $8,507.70 | | |
Improvement / Building
| Improvement #1: | RESIDENTIAL | State Code: | Y | 2158.6 sqft | Value: | $421,048 |
| Bathrooms: | 2.5 | Bedrooms: | 2 | | Ceiling: | TONGUE & GROOVE | Cooling: | HEAT PUMP/CONV/V | | Exterior Wall/Cover: | WOOD SIDING | Floor Covering: | COLORED CONCRETE | | Floor Structure: | SLAB ABOVE GRADE | Foundation: | CONCRETE | | Interior Finish: | DRYWALL PAINT | Plumbing Fixture Cnt: | 12 | | Roof Slope: | 6" IN 12" | Roof Structure/Cover: | STEEL TERNE |
|
| | Type | Description | Class CD | Sub Class CD | Year Built | Area |
| | BAS | BASE/MAIN FLOOR | 4 | 0 | 1999 | 1336.4 |
| | OP1 | OPEN PORCH SLAB | 4 | 0 | 1999 | 534.9 |
| | OP3 | OPEN PORCH W/ROOF | 4 | 0 | 1999 | 143.4 |
| | BIG | BUILT IN GARAGE | 4 | 0 | 1999 | 285.7 |
| | UPS | UPPER STORY | 4 | 0 | 1999 | 822.2 |
| | OWP | OPEN WOOD PORCH W/STEPS | 4 | 0 | 1999 | 137.6 |
Sketch
Property Image
Land
| 1 | LB | LOW BANK | 0.1734 | 7553.30 | 60.00 | 0.00 | 1.00 | $850,000 | $0 |
Roll Value History
| 2026 | N/A | N/A | N/A | N/A | N/A |
| 2025 | $421,048 | $850,000 | $0 | $1,271,048 | $1,271,048 |
| 2024 | $426,229 | $850,000 | $0 | $1,276,229 | $1,276,229 |
| 2023 | $431,411 | $850,000 | $0 | $1,281,411 | $1,281,411 |
| 2022 | $395,349 | $900,000 | $0 | $1,295,349 | $1,295,349 |
| 2021 | $347,851 | $500,000 | $0 | $847,851 | $847,851 |
| 2020 | $335,192 | $500,000 | $0 | $835,192 | $835,192 |
| 2019 | $249,709 | $525,000 | $0 | $774,709 | $774,709 |
| 2018 | $250,433 | $400,000 | $0 | $650,433 | $650,433 |
| 2017 | $246,232 | $350,000 | $0 | $596,232 | $596,232 |
| 2016 | $249,061 | $350,000 | $0 | $599,061 | $599,061 |
| 2015 | $251,892 | $300,000 | $0 | $551,892 | $551,892 |
| 2014 | $253,943 | $300,000 | $0 | $553,943 | $553,943 |
| 2013 | $256,828 | $310,360 | $0 | $567,188 | $567,188 |
| 2012 | $224,903 | $310,360 | $0 | $535,263 | $535,263 |
| 2011 | $227,497 | $310,360 | $0 | $537,857 | $537,857 |
| 2010 | $237,895 | $344,844 | $0 | $582,739 | $582,739 |
| 2009 | $248,037 | $454,230 | $0 | $702,267 | $702,267 |
| 2008 | $250,925 | $611,820 | $0 | $862,745 | $862,745 |
| 2007 | $249,434 | $404,172 | $0 | $653,606 | $653,606 |
Deed and Sales History
| 1 | 08/01/2012 | WD | Warranty Deed | BALLARD, KEVIN L | PLUMPE, MICHAEL D | | | $660,000.00 | 8465 | 4320739 |
| 2 | 08/16/2006 | WD | Warranty Deed | HENRY BENDER, BARBARA | BALLARD, KEVIN L | | | $1,000,000.00 | 63688 | 4180182 |
| 3 | 04/28/1999 | QCD | Quit Claim Deed | HENRY, BENDER, B | HENRY BENDER, BARBARA | | | $0.00 | 91622 | 99010335 |
| 4 | 06/01/1997 | WD | Warranty Deed | HENRY, BENDER, B | HENRY, BENDER, B | | | $165,000.00 | 72372 | 97011178 |
| 5 | 06/01/1997 | ESTSEPPROP | Establish Separate Property | FREDRIKSEN, ALLAN D | HENRY, BENDER, B | | | $0.00 | 72373 | 97011179 |
| 6 | 05/01/1996 | WD | Warranty Deed | LEWIS, SHIRLEY D | FREDRIKSEN, ALLAN D | | | $0.00 | 61703 | 96008413 |
| 7 | 01/01/1900 | OTHER | Other - Misc. Documents | Unknown | LEWIS, SHIRLEY D | | | $0.00 | 0 | 0 |
Payout Agreement
| No payout information available.. |