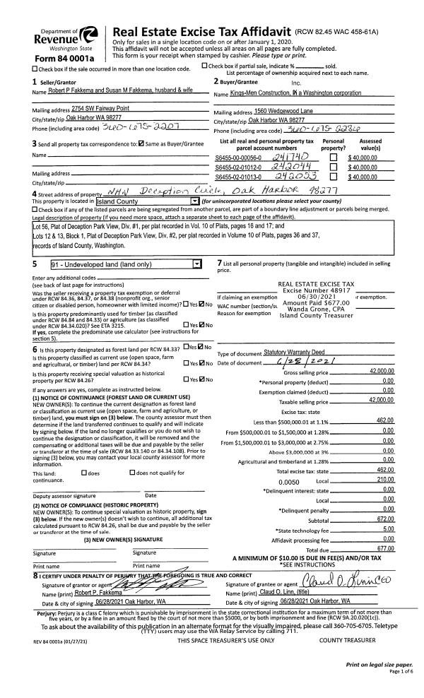
Property
Account |
| Property ID: | 381232 | Abbreviated Legal Description: | SCATCHET HD 3 LOT 74 BLK 14 DRAINFIELD LOC #2 32815-233 2320 AF#96002182 |
| Geographic ID: | S8110-03-14074-0 | Agent Code: | |
| Type: | Real | | |
| Tax Area: | 740 - APPRAISER-S Whid Schl Dist, Special District, improved & less than 1 acre | Land Use Code | 11 |
| Open Space: | N | DFL | N |
| Historic Property: | N | Remodel Property: | N |
| Multi-Family Redevelopment: | N | | |
| Township: | | Section: | |
| Range: | |
Location |
| Address: | 3656 DRIFTWOOD DR CLINTON, WA 98236 | Mapsco: | |
| Neighborhood: | Cycle 4 | Map ID: | 712 |
| Neighborhood CD: | 4 |
Owner |
| Name: | POPENOE, CONNIE M | Owner ID: | 307737 |
| Mailing Address: | 3656 DRIFTWOOD DR CLINTON, WA 98236 | % Ownership: | 100.0000000000% |
| | | Exemptions: | |
Taxes and Assessment Details
Values
| (+) Improvement Homesite Value: | + | $0 | |
| (+) Improvement Non-Homesite Value: | + | $413,119 | |
| (+) Land Homesite Value: | + | $0 | |
| (+) Land Non-Homesite Value: | + | $850,000 | |
| (+) Curr Use (HS): | + | $0 | $0 |
| (+) Curr Use (NHS): | + | $0 | $0 |
| | | -------------------------- | |
| (=) Market Value: | = | $1,263,119 | |
| (–) Productivity Loss: | – | $0 | |
| | | -------------------------- | |
| (=) Subtotal: | = | $1,263,119 | |
| (+) Senior Appraised Value: | + | $0 | |
| (+) Non-Senior Appraised Value: | + | $1,263,119 | |
| | | -------------------------- | |
| (=) Total Appraised Value: | = | $1,263,119 | |
| (–) Senior Exemption Loss: | – | $0 | |
| (–) Exemption Loss: | – | $0 | |
| | | -------------------------- | |
| (=) Taxable Value: | = | $1,263,119 | |
Taxing Jurisdiction
| Owner: | POPENOE, CONNIE M | | |
| % Ownership: | 100.0000000000% | | |
| Total Value: | $1,263,119 | | |
| Tax Area: | 740 - APPRAISER-S Whid Schl Dist, Special District, improved & less than 1 acre |
| CF | Conservation Futures | 0.0316035091 | $1,263,119 | $1,263,119 | $39.92 | | |
| FIRE3 | Fire & Rescue Dist #3 S Whidbey GEN | 1.2004855531 | $1,263,119 | $1,263,119 | $1,516.36 | | |
| HOBOND | Hospital BOND | 0.1910887512 | $1,263,119 | $1,263,119 | $241.37 | | |
| HOGEN | Hospital GEN | 0.3902502903 | $1,263,119 | $1,263,119 | $492.93 | | |
| CE | County Current Expense | 0.3708482477 | $1,263,119 | $1,263,119 | $468.43 | | |
| CR | County Roads | 0.4584763726 | $1,263,119 | $1,263,119 | $579.11 | | |
| ISLANDEMS | Hospital GEN (EMS) | 0.5000000000 | $1,263,119 | $1,263,119 | $631.56 | | |
| LIB | Library Sno-Isle GEN | 0.3153421757 | $1,263,119 | $1,263,119 | $398.31 | | |
| PORTWHID | Port of S Whidbey GEN | 0.1094540357 | $1,263,119 | $1,263,119 | $138.25 | | |
| SCH206BOND | School 206 BOND | 0.3161759235 | $1,263,119 | $1,263,119 | $399.37 | | |
| SCH206MO | School 206 Enrichment | 0.4547169547 | $1,263,119 | $1,263,119 | $574.36 | | |
| ST | State School | 1.3035497053 | $1,263,119 | $1,263,119 | $1,646.54 | | |
| ST2 | State School Part 2 | 0.8169543533 | $1,263,119 | $1,263,119 | $1,031.91 | | |
| SWHIDPRBD | P & R S Whidbey BOND | 0.0152817568 | $1,263,119 | $1,263,119 | $19.30 | | |
| SWHIDPRBD2 | P & R S Whidbey BOND2 | 0.0138911264 | $1,263,119 | $1,263,119 | $17.55 | | |
| SWHIDPRMT | P & R S Whidbey GEN | 0.2053334452 | $1,263,119 | $1,263,119 | $259.36 | | |
| | Total Tax Rate: | 6.6934522006 | | | | | |
| | | | | Taxes w/Current Exemptions: | $8,454.63 | | |
| | | | | Taxes w/o Exemptions: | $8,454.63 | | |
Improvement / Building
| Improvement #1: | RESIDENTIAL | State Code: | Y | 1732.9 sqft | Value: | $413,119 |
| Bathrooms: | 2.5 | Bedrooms: | 2 | | Ceiling: | BEAM PAINTED | Cooling: | HEAT PUMP/CONV/V | | Exterior Wall/Cover: | VINYL | Floor Covering: | VINYL/HARDWOOD 20-80 | | Floor Structure: | WOOD W/SUBFLOOR | Foundation: | CONCRETE | | Interior Finish: | DRYWALL PAINT | Plumbing Fixture Cnt: | 11 | | Roof Slope: | 4" IN 12" | Roof Structure/Cover: | BEAM ASPHALT |
|
| | Type | Description | Class CD | Sub Class CD | Year Built | Area |
| | BAS | BASE/MAIN FLOOR | 4 | 0 | 1996 | 910.4 |
| | AGR | ATTACHED GARAGE | 4 | 0 | 1996 | 456.8 |
| | UPS | UPPER STORY | 4 | 0 | 1996 | 822.5 |
| | OWP | OPEN WOOD PORCH W/STEPS | 4 | 0 | 1996 | 397.5 |
| | OWR | OPEN WOOD PORCH W/STEPS/ROOF | 4 | 0 | 1996 | 77.5 |
| | OWC | OPEN WOOD PORCH W/STEPS/ROOF/C | 4 | 0 | 1996 | 24.0 |
Sketch
Property Image
Land
| 1 | LB | LOW BANK | 0.0000 | 0.00 | 60.00 | 0.00 | 1.00 | $850,000 | $0 |
Roll Value History
| 2026 | N/A | N/A | N/A | N/A | N/A |
| 2025 | $413,119 | $850,000 | $0 | $1,263,119 | $1,263,119 |
| 2024 | $412,107 | $850,000 | $0 | $1,262,107 | $1,262,107 |
| 2023 | $416,997 | $850,000 | $0 | $1,266,997 | $1,266,997 |
| 2022 | $382,021 | $900,000 | $0 | $1,282,021 | $1,282,021 |
| 2021 | $336,048 | $500,000 | $0 | $836,048 | $836,048 |
| 2020 | $319,748 | $500,000 | $0 | $819,748 | $819,748 |
| 2019 | $236,563 | $525,000 | $0 | $761,563 | $761,563 |
| 2018 | $237,241 | $400,000 | $0 | $637,241 | $637,241 |
| 2017 | $159,338 | $350,000 | $0 | $509,338 | $509,338 |
| 2016 | $161,199 | $350,000 | $0 | $511,199 | $511,199 |
| 2015 | $163,060 | $300,000 | $0 | $463,060 | $393,060 |
| 2014 | $164,634 | $300,000 | $0 | $464,634 | $464,634 |
| 2013 | $166,641 | $310,360 | $0 | $477,001 | $477,001 |
| 2012 | $168,647 | $310,360 | $0 | $479,007 | $479,007 |
| 2011 | $170,655 | $310,360 | $0 | $481,015 | $481,015 |
| 2010 | $180,512 | $344,844 | $0 | $525,356 | $525,356 |
| 2009 | $188,366 | $454,230 | $0 | $642,596 | $587,938 |
| 2008 | $182,462 | $610,853 | $0 | $793,315 | $517,938 |
| 2007 | $183,766 | $404,172 | $0 | $587,938 | $587,938 |
Deed and Sales History
| 1 | 03/10/2023 | OTHER | Other - Misc. Documents | POPENOE, WARD | POPENOE, CONNIE M | | | | 89342 | |
| 2 | 07/28/2017 | WD | Warranty Deed | FREMMING, DONNA | POPENOE JTWROS, CONNIE M | | | $650,000.00 | 30507 | 4427601 |
| 3 | 03/22/2007 | OTHER | Other - Misc. Documents | FREMMING, JOHN R | FREMMING, DONNA | | | $0.00 | 80972 | 0 |
| 4 | 08/01/1980 | EXECUTORD | Executor Deed | BENSON, GRAHAM H | FREMMING, JOHN R | | | $47,000.00 | 2898 | 373096 |
| 5 | 07/01/1979 | EXECUTORD | Executor Deed | BENSON, GRAHAM H | BENSON, GRAHAM H | | | $25,000.00 | 93573 | 355954 |
| 6 | 07/01/1979 | EXECUTORD | Executor Deed | SCHOENECKE, JOAN F | BENSON, GRAHAM H | | | $25,000.00 | 93573 | 355954 |
| 7 | 05/01/1978 | OTHER | Other - Misc. Documents | SCHOENECKE, JOAN F | SCHOENECKE, JOAN F | | | $13,000.00 | 820660 | 0 |
| 8 | 05/01/1978 | OTHER | Other - Misc. Documents | Unknown | SCHOENECKE, JOAN F | | | $13,000.00 | 820660 | 0 |
Payout Agreement
| No payout information available.. |