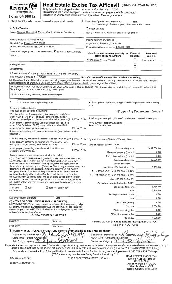
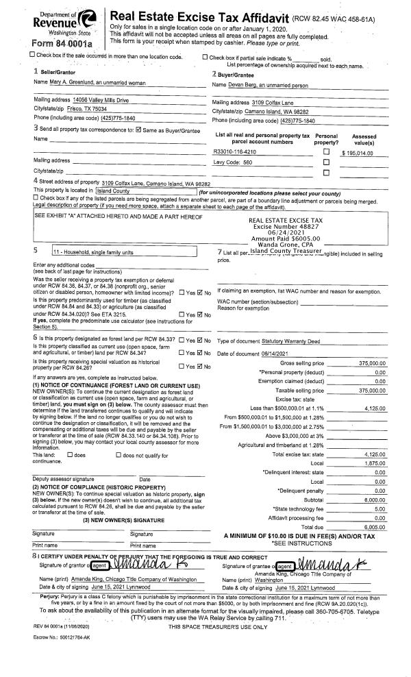
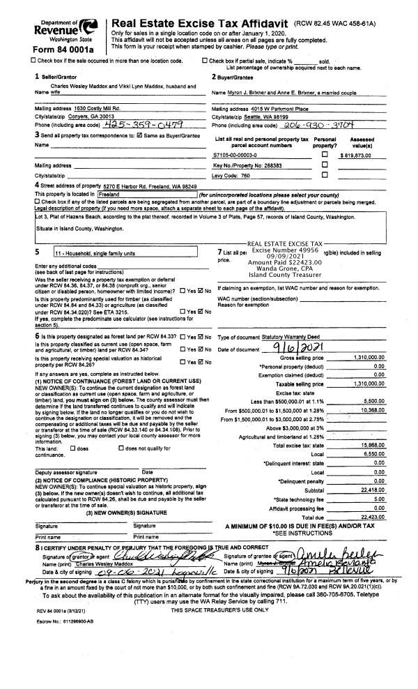
Property
Account |
| Property ID: | 381250 | Abbreviated Legal Description: | SCATCHET HD 3 LOT 22 BLK 15 EX SELY 27.13' |
| Geographic ID: | S8110-03-15022-0 | Agent Code: | |
| Type: | Real | | |
| Tax Area: | 749 - APPRAISER-S Whid Schl Dist, Special District, vacant & 50 acres or less | Land Use Code | 99 |
| Open Space: | N | DFL | N |
| Historic Property: | N | Remodel Property: | N |
| Multi-Family Redevelopment: | N | | |
| Township: | | Section: | |
| Range: | |
Location |
| Address: | 3774 WHALES TAIL LN CLINTON, WA 98236 | Mapsco: | |
| Neighborhood: | Cycle 4 | Map ID: | 712 |
| Neighborhood CD: | 4 |
Owner |
| Name: | MEAD, JACOB R | Owner ID: | 296577 |
| Mailing Address: | ALETHIA R MEAD 1752 NW MARKET ST SEATTLE, WA 98107 | % Ownership: | 100.0000000000% |
| | | Exemptions: | |
Taxes and Assessment Details
Values
| (+) Improvement Homesite Value: | + | $0 | |
| (+) Improvement Non-Homesite Value: | + | $0 | |
| (+) Land Homesite Value: | + | $0 | |
| (+) Land Non-Homesite Value: | + | $30,000 | |
| (+) Curr Use (HS): | + | $0 | $0 |
| (+) Curr Use (NHS): | + | $0 | $0 |
| | | -------------------------- | |
| (=) Market Value: | = | $30,000 | |
| (–) Productivity Loss: | – | $0 | |
| | | -------------------------- | |
| (=) Subtotal: | = | $30,000 | |
| (+) Senior Appraised Value: | + | $0 | |
| (+) Non-Senior Appraised Value: | + | $30,000 | |
| | | -------------------------- | |
| (=) Total Appraised Value: | = | $30,000 | |
| (–) Senior Exemption Loss: | – | $0 | |
| (–) Exemption Loss: | – | $0 | |
| | | -------------------------- | |
| (=) Taxable Value: | = | $30,000 | |
Taxing Jurisdiction
| Owner: | MEAD, JACOB R | | |
| % Ownership: | 100.0000000000% | | |
| Total Value: | $30,000 | | |
| Tax Area: | 749 - APPRAISER-S Whid Schl Dist, Special District, vacant & 50 acres or less |
| CF | Conservation Futures | 0.0316035091 | $30,000 | $30,000 | $0.95 | | |
| HOBOND | Hospital BOND | 0.1910887512 | $30,000 | $30,000 | $5.73 | | |
| HOGEN | Hospital GEN | 0.3902502903 | $30,000 | $30,000 | $11.71 | | |
| CE | County Current Expense | 0.3708482477 | $30,000 | $30,000 | $11.13 | | |
| CR | County Roads | 0.4584763726 | $30,000 | $30,000 | $13.75 | | |
| ISLANDEMS | Hospital GEN (EMS) | 0.5000000000 | $30,000 | $30,000 | $15.00 | | |
| LIB | Library Sno-Isle GEN | 0.3153421757 | $30,000 | $30,000 | $9.46 | | |
| PORTWHID | Port of S Whidbey GEN | 0.1094540357 | $30,000 | $30,000 | $3.28 | | |
| SCH206BOND | School 206 BOND | 0.3161759235 | $30,000 | $30,000 | $9.49 | | |
| SCH206MO | School 206 Enrichment | 0.4547169547 | $30,000 | $30,000 | $13.64 | | |
| ST | State School | 1.3035497053 | $30,000 | $30,000 | $39.11 | | |
| ST2 | State School Part 2 | 0.8169543533 | $30,000 | $30,000 | $24.51 | | |
| SWHIDPRBD | P & R S Whidbey BOND | 0.0152817568 | $30,000 | $30,000 | $0.46 | | |
| SWHIDPRBD2 | P & R S Whidbey BOND2 | 0.0138911264 | $30,000 | $30,000 | $0.42 | | |
| SWHIDPRMT | P & R S Whidbey GEN | 0.2053334452 | $30,000 | $30,000 | $6.16 | | |
| | Total Tax Rate: | 5.4929666475 | | | | | |
| | | | | Taxes w/Current Exemptions: | $164.80 | | |
| | | | | Taxes w/o Exemptions: | $164.80 | | |
Improvement / Building
Sketch
| No sketches available for this property. |
Property Image
Land
| 1 | HB | HIGH BLUFF | 0.0000 | 0.00 | 52.00 | 0.00 | 1.00 | $30,000 | $0 |
Roll Value History
| 2026 | N/A | N/A | N/A | N/A | N/A |
| 2025 | $0 | $30,000 | $0 | $30,000 | $30,000 |
| 2024 | $0 | $12,500 | $0 | $12,500 | $12,500 |
| 2023 | $0 | $12,500 | $0 | $12,500 | $12,500 |
| 2022 | $0 | $12,500 | $0 | $12,500 | $12,500 |
| 2021 | $0 | $10,000 | $0 | $10,000 | $10,000 |
| 2020 | $0 | $10,000 | $0 | $10,000 | $10,000 |
| 2019 | $0 | $10,000 | $0 | $10,000 | $10,000 |
| 2018 | $0 | $10,000 | $0 | $10,000 | $10,000 |
| 2017 | $0 | $10,000 | $0 | $10,000 | $10,000 |
| 2016 | $0 | $10,000 | $0 | $10,000 | $10,000 |
| 2015 | $0 | $10,000 | $0 | $10,000 | $10,000 |
| 2014 | $0 | $10,000 | $0 | $10,000 | $10,000 |
| 2013 | $0 | $6,450 | $0 | $6,450 | $6,450 |
| 2012 | $0 | $6,450 | $0 | $6,450 | $6,450 |
| 2011 | $0 | $6,450 | $0 | $6,450 | $6,450 |
| 2010 | $0 | $7,171 | $0 | $7,171 | $7,171 |
| 2009 | $0 | $9,553 | $0 | $9,553 | $9,553 |
| 2008 | $0 | $7,575 | $0 | $7,575 | $7,575 |
| 2007 | $0 | $7,575 | $0 | $7,575 | $7,575 |
Deed and Sales History
| 1 | 10/29/2020 | WD | Warranty Deed | SEAPORT ASSETS, INC | MEAD, JACOB R | | | $19,900.00 | 45512 | 4501180 |
|   | |
| 2 | 10/26/2020 | WD | Warranty Deed | KRASIK, MICHAEL | SEAPORT ASSETS, INC | | | $5,014.00 | 45508 | 4501152 |
|   | |
| 3 | 12/10/2000 | QCD | Quit Claim Deed | KRASIK, MICHAEL & | KRASIK, MICHAEL | | | $3.00 | 10346 | 20024592 |
| 4 | 09/01/1995 | TRUSTEED | Trustee's Deed | MORRISON, CEDRIC F | KRASIK, MICHAEL & | | | $0.00 | 53478 | 95015942 |
| 5 | 12/01/1993 | WD | Warranty Deed | FOLISE, MICHAEL J | MORRISON, CEDRIC F | | | $10,800.00 | 35229 | 93027092 |
| 6 | 01/01/1991 | WD | Warranty Deed | ERICKSON, BRUCE D | FOLISE, MICHAEL J | | | $7,700.00 | 10363 | 91001593 |
| 7 | 08/01/1983 | QCD | Quit Claim Deed | ERICKSON, GORDON R | ERICKSON, BRUCE D | | | $0.00 | 33105 | 416518 |
| 8 | 01/01/1900 | OTHER | Other - Misc. Documents | Unknown | ERICKSON, GORDON R | | | $0.00 | 0 | 0 |
Payout Agreement
| No payout information available.. |