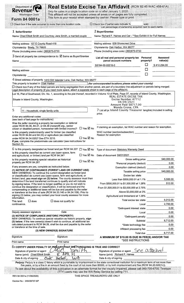
Property
Account |
| Property ID: | 381722 | Abbreviated Legal Description: | SCATCHET HD 3 LOTS 78 & 79 BLK 15 |
| Geographic ID: | S8110-03-15079-0 | Agent Code: | |
| Type: | Real | | |
| Tax Area: | 740 - APPRAISER-S Whid Schl Dist, Special District, improved & less than 1 acre | Land Use Code | 11 |
| Open Space: | N | DFL | N |
| Historic Property: | N | Remodel Property: | N |
| Multi-Family Redevelopment: | N | | |
| Township: | | Section: | |
| Range: | |
Location |
| Address: | 8157 LOPEZ DR CLINTON, WA 98236 | Mapsco: | |
| Neighborhood: | Cycle 4 | Map ID: | 712 |
| Neighborhood CD: | 4 |
Owner |
| Name: | MOORE, BRIAN W / BARBARA E | Owner ID: | 101137 |
| Mailing Address: | 1392 CROWNMILL AVE MUKILTEO, WA 98275-2270 | % Ownership: | 100.0000000000% |
| | | Exemptions: | |
Taxes and Assessment Details
Values
| (+) Improvement Homesite Value: | + | $0 | |
| (+) Improvement Non-Homesite Value: | + | $655,353 | |
| (+) Land Homesite Value: | + | $0 | |
| (+) Land Non-Homesite Value: | + | $400,000 | |
| (+) Curr Use (HS): | + | $0 | $0 |
| (+) Curr Use (NHS): | + | $0 | $0 |
| | | -------------------------- | |
| (=) Market Value: | = | $1,055,353 | |
| (–) Productivity Loss: | – | $0 | |
| | | -------------------------- | |
| (=) Subtotal: | = | $1,055,353 | |
| (+) Senior Appraised Value: | + | $0 | |
| (+) Non-Senior Appraised Value: | + | $1,055,353 | |
| | | -------------------------- | |
| (=) Total Appraised Value: | = | $1,055,353 | |
| (–) Senior Exemption Loss: | – | $0 | |
| (–) Exemption Loss: | – | $0 | |
| | | -------------------------- | |
| (=) Taxable Value: | = | $1,055,353 | |
Taxing Jurisdiction
| Owner: | MOORE, BRIAN W / BARBARA E | | |
| % Ownership: | 100.0000000000% | | |
| Total Value: | $1,055,353 | | |
| Tax Area: | 740 - APPRAISER-S Whid Schl Dist, Special District, improved & less than 1 acre |
| CF | Conservation Futures | 0.0316035091 | $1,055,353 | $1,055,353 | $33.35 | | |
| FIRE3 | Fire & Rescue Dist #3 S Whidbey GEN | 1.2004855531 | $1,055,353 | $1,055,353 | $1,266.94 | | |
| HOBOND | Hospital BOND | 0.1910887512 | $1,055,353 | $1,055,353 | $201.67 | | |
| HOGEN | Hospital GEN | 0.3902502903 | $1,055,353 | $1,055,353 | $411.85 | | |
| CE | County Current Expense | 0.3708482477 | $1,055,353 | $1,055,353 | $391.38 | | |
| CR | County Roads | 0.4584763726 | $1,055,353 | $1,055,353 | $483.85 | | |
| ISLANDEMS | Hospital GEN (EMS) | 0.5000000000 | $1,055,353 | $1,055,353 | $527.68 | | |
| LIB | Library Sno-Isle GEN | 0.3153421757 | $1,055,353 | $1,055,353 | $332.80 | | |
| PORTWHID | Port of S Whidbey GEN | 0.1094540357 | $1,055,353 | $1,055,353 | $115.51 | | |
| SCH206BOND | School 206 BOND | 0.3161759235 | $1,055,353 | $1,055,353 | $333.68 | | |
| SCH206MO | School 206 Enrichment | 0.4547169547 | $1,055,353 | $1,055,353 | $479.89 | | |
| ST | State School | 1.3035497053 | $1,055,353 | $1,055,353 | $1,375.71 | | |
| ST2 | State School Part 2 | 0.8169543533 | $1,055,353 | $1,055,353 | $862.18 | | |
| SWHIDPRBD | P & R S Whidbey BOND | 0.0152817568 | $1,055,353 | $1,055,353 | $16.13 | | |
| SWHIDPRBD2 | P & R S Whidbey BOND2 | 0.0138911264 | $1,055,353 | $1,055,353 | $14.66 | | |
| SWHIDPRMT | P & R S Whidbey GEN | 0.2053334452 | $1,055,353 | $1,055,353 | $216.70 | | |
| | Total Tax Rate: | 6.6934522006 | | | | | |
| | | | | Taxes w/Current Exemptions: | $7,063.98 | | |
| | | | | Taxes w/o Exemptions: | $7,063.98 | | |
Improvement / Building
| Improvement #1: | RESIDENTIAL | State Code: | Y | 2512.7 sqft | Value: | $655,353 |
| Bathrooms: | 3 | Bedrooms: | 2 | | Ceiling: | BEAM PAINTED | Exterior Wall/Cover: | PLY/HARDBOARD T-111 | | Floor Covering: | HARDWOOD/CARP 60-40 | Floor Structure: | WOOD W/SUBFLOOR | | Foundation: | CONCRETE | Heating: | RADIANT FLOOR | | Interior Finish: | DRYWALL PAINT | Plumbing Fixture Cnt: | 15 | | Roof Slope: | 6" IN 12" | Roof Structure/Cover: | CJ ASPHALT |
|
| | Type | Description | Class CD | Sub Class CD | Year Built | Area |
| | BAS | BASE/MAIN FLOOR | 4 | 0 | 2015 | 1760.7 |
| | DWN | DOWNSTAIRS LIVING AREA | 4 | 0 | 2015 | 752.0 |
| | DGR | DETACHED GARAGE | 4 | 0 | 2015 | 800.0 |
| | OWP | OPEN WOOD PORCH W/STEPS | 4 | 0 | 2015 | 607.2 |
| | OWC | OPEN WOOD PORCH W/STEPS/ROOF/C | 4 | 0 | 2015 | 330.8 |
| | UTY | STORAGE/UTILITY | 4 | 0 | 2015 | 191.9 |
| | OP4 | OPEN PORCH W/CEILING-ROOF | 4 | 0 | 2015 | 168.0 |
Sketch
Property Image
Land
| 1 | HB | HIGH BLUFF | 0.4500 | 19602.00 | 0.00 | 0.00 | 1.00 | $400,000 | $0 |
Roll Value History
| 2026 | N/A | N/A | N/A | N/A | N/A |
| 2025 | $655,353 | $400,000 | $0 | $1,055,353 | $1,055,353 |
| 2024 | $650,632 | $400,000 | $0 | $1,050,632 | $1,050,632 |
| 2023 | $655,879 | $400,000 | $0 | $1,055,879 | $1,055,879 |
| 2022 | $598,658 | $400,000 | $0 | $998,658 | $998,658 |
| 2021 | $524,720 | $200,000 | $0 | $724,720 | $724,720 |
| 2020 | $501,041 | $180,000 | $0 | $681,041 | $681,041 |
| 2019 | $381,601 | $200,000 | $0 | $581,601 | $581,601 |
| 2018 | $382,582 | $200,000 | $0 | $582,582 | $582,582 |
| 2017 | $384,545 | $200,000 | $0 | $584,545 | $584,545 |
| 2016 | $392,392 | $200,000 | $0 | $592,392 | $592,392 |
| 2015 | $165,409 | $200,000 | $0 | $365,409 | $365,409 |
| 2014 | $7,157 | $90,000 | $0 | $97,157 | $97,157 |
| 2013 | $7,157 | $130,000 | $0 | $137,157 | $137,157 |
| 2012 | $7,157 | $63,079 | $0 | $70,236 | $70,236 |
| 2011 | $7,157 | $74,210 | $0 | $81,367 | $81,367 |
| 2010 | $7,157 | $82,450 | $0 | $89,607 | $89,607 |
| 2009 | $7,234 | $102,600 | $0 | $109,834 | $109,834 |
| 2008 | $7,311 | $104,550 | $0 | $111,861 | $111,861 |
| 2007 | $7,427 | $78,000 | $0 | $85,427 | $85,427 |
Deed and Sales History
| 1 | 05/01/1993 | WD | Warranty Deed | MOORE, BRIAN L | MOORE, BRIAN W | | | $0.00 | 31610 | 93008321 |
| 2 | 01/01/1992 | WD | Warranty Deed | WIGHT, JAMES L | MOORE, BRIAN L | | | $45,000.00 | 30401 | 93002037 |
| 3 | 02/01/1985 | WD | Warranty Deed | CARR, MARKO M | WIGHT, JAMES L | | | $11,900.00 | 50392 | 85001829 |
| 4 | 01/01/1900 | OTHER | Other - Misc. Documents | Unknown | CARR, MARKO M | | | $0.00 | 0 | 0 |
Payout Agreement
| No payout information available.. |