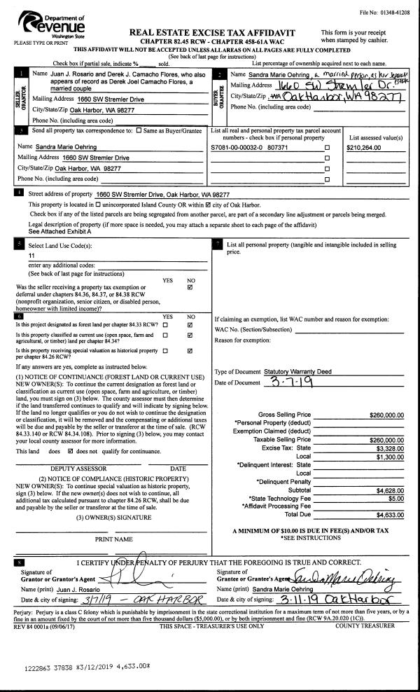
Property
Account |
| Property ID: | 381759 | Abbreviated Legal Description: | SCATCHET HD 3 LOT 82 BLK 15 |
| Geographic ID: | S8110-03-15082-0 | Agent Code: | |
| Type: | Real | | |
| Tax Area: | 710 - APPRAISER-S Whid Schl Dist, outside Langley, improved & 1 acre or less | Land Use Code | 11 |
| Open Space: | N | DFL | N |
| Historic Property: | N | Remodel Property: | N |
| Multi-Family Redevelopment: | N | | |
| Township: | | Section: | |
| Range: | |
Location |
| Address: | 8147 LOPEZ DR CLINTON, WA 98236 | Mapsco: | |
| Neighborhood: | Cycle 4 | Map ID: | 712 |
| Neighborhood CD: | 4 |
Owner |
| Name: | HEMSATH, JAMES RICHARD | Owner ID: | 289699 |
| Mailing Address: | NANCY LYNN HEMSATH 19670 N MITKOF LOOP EAGLE RIVER, AK 99577 | % Ownership: | 100.0000000000% |
| | | Exemptions: | |
Taxes and Assessment Details
Values
| (+) Improvement Homesite Value: | + | $0 | |
| (+) Improvement Non-Homesite Value: | + | $155,304 | |
| (+) Land Homesite Value: | + | $0 | |
| (+) Land Non-Homesite Value: | + | $230,000 | |
| (+) Curr Use (HS): | + | $0 | $0 |
| (+) Curr Use (NHS): | + | $0 | $0 |
| | | -------------------------- | |
| (=) Market Value: | = | $385,304 | |
| (–) Productivity Loss: | – | $0 | |
| | | -------------------------- | |
| (=) Subtotal: | = | $385,304 | |
| (+) Senior Appraised Value: | + | $0 | |
| (+) Non-Senior Appraised Value: | + | $385,304 | |
| | | -------------------------- | |
| (=) Total Appraised Value: | = | $385,304 | |
| (–) Senior Exemption Loss: | – | $0 | |
| (–) Exemption Loss: | – | $0 | |
| | | -------------------------- | |
| (=) Taxable Value: | = | $385,304 | |
Taxing Jurisdiction
| Owner: | HEMSATH, JAMES RICHARD | | |
| % Ownership: | 100.0000000000% | | |
| Total Value: | $385,304 | | |
| Tax Area: | 710 - APPRAISER-S Whid Schl Dist, outside Langley, improved & 1 acre or less |
| CF | Conservation Futures | 0.0316035091 | $385,304 | $385,304 | $12.18 | | |
| FIRE3 | Fire & Rescue Dist #3 S Whidbey GEN | 1.2004855531 | $385,304 | $385,304 | $462.55 | | |
| HOBOND | Hospital BOND | 0.1910887512 | $385,304 | $385,304 | $73.63 | | |
| HOGEN | Hospital GEN | 0.3902502903 | $385,304 | $385,304 | $150.36 | | |
| CE | County Current Expense | 0.3708482477 | $385,304 | $385,304 | $142.89 | | |
| CR | County Roads | 0.4584763726 | $385,304 | $385,304 | $176.65 | | |
| ISLANDEMS | Hospital GEN (EMS) | 0.5000000000 | $385,304 | $385,304 | $192.65 | | |
| LIB | Library Sno-Isle GEN | 0.3153421757 | $385,304 | $385,304 | $121.50 | | |
| PORTWHID | Port of S Whidbey GEN | 0.1094540357 | $385,304 | $385,304 | $42.17 | | |
| SCH206BOND | School 206 BOND | 0.3161759235 | $385,304 | $385,304 | $121.82 | | |
| SCH206MO | School 206 Enrichment | 0.4547169547 | $385,304 | $385,304 | $175.20 | | |
| ST | State School | 1.3035497053 | $385,304 | $385,304 | $502.26 | | |
| ST2 | State School Part 2 | 0.8169543533 | $385,304 | $385,304 | $314.78 | | |
| SWHIDPRBD | P & R S Whidbey BOND | 0.0152817568 | $385,304 | $385,304 | $5.89 | | |
| SWHIDPRBD2 | P & R S Whidbey BOND2 | 0.0138911264 | $385,304 | $385,304 | $5.35 | | |
| SWHIDPRMT | P & R S Whidbey GEN | 0.2053334452 | $385,304 | $385,304 | $79.12 | | |
| | Total Tax Rate: | 6.6934522006 | | | | | |
| | | | | Taxes w/Current Exemptions: | $2,579.00 | | |
| | | | | Taxes w/o Exemptions: | $2,579.00 | | |
Improvement / Building
| Improvement #1: | RESIDENTIAL | State Code: | Y | 660.0 sqft | Value: | $155,304 |
| Bathrooms: | 1 | Bedrooms: | 1 | | Ceiling: | DRYWALL PAINTED | Cooling: | HEAT PUMP/CONV/V | | Exterior Wall/Cover: | PLY/HARDBOARD T-111 | Floor Covering: | HARDWOOD 100% | | Floor Structure: | WOOD W/SUBFLOOR | Foundation: | CONCRETE | | Interior Finish: | DRYWALL PAINT | Plumbing Fixture Cnt: | 6 | | Roof Slope: | 4" IN 12" | Roof Structure/Cover: | CJ ASPHALT |
|
| | Type | Description | Class CD | Sub Class CD | Year Built | Area |
| | BAS | BASE/MAIN FLOOR | 3 | 0 | 1981 | 660.0 |
| | OWP | OPEN WOOD PORCH W/STEPS | 3 | 0 | 1981 | 488.0 |
| | OWP | OPEN WOOD PORCH W/STEPS | 3 | 0 | 1981 | 149.0 |
Sketch
Property Image
Land
| 1 | 14 | SQ (08001-12000) | 0.1768 | 7701.41 | 0.00 | 0.00 | 1.00 | $230,000 | $0 |
Roll Value History
| 2026 | N/A | N/A | N/A | N/A | N/A |
| 2025 | $155,304 | $230,000 | $0 | $385,304 | $385,304 |
| 2024 | $157,263 | $215,000 | $0 | $372,263 | $372,263 |
| 2023 | $153,907 | $210,000 | $0 | $363,907 | $363,907 |
| 2022 | $141,081 | $200,000 | $0 | $341,081 | $341,081 |
| 2021 | $124,166 | $150,000 | $0 | $274,166 | $274,166 |
| 2020 | $117,656 | $120,000 | $0 | $237,656 | $237,656 |
| 2019 | $68,525 | $135,000 | $0 | $203,525 | $203,525 |
| 2018 | $68,732 | $120,000 | $0 | $188,732 | $188,732 |
| 2017 | $69,143 | $80,000 | $0 | $149,143 | $149,143 |
| 2016 | $40,030 | $70,000 | $0 | $110,030 | $110,030 |
| 2015 | $40,602 | $55,000 | $0 | $95,602 | $95,602 |
| 2014 | $56,493 | $55,000 | $0 | $111,493 | $111,493 |
| 2013 | $57,317 | $55,000 | $0 | $112,317 | $112,317 |
| 2012 | $58,143 | $65,025 | $0 | $123,168 | $123,168 |
| 2011 | $58,969 | $76,500 | $0 | $135,469 | $135,469 |
| 2010 | $60,589 | $85,000 | $0 | $145,589 | $145,589 |
| 2009 | $63,238 | $114,000 | $0 | $177,238 | $177,238 |
| 2008 | $62,429 | $123,000 | $0 | $185,429 | $185,429 |
| 2007 | $63,238 | $88,000 | $0 | $151,238 | $151,238 |
Deed and Sales History
| 1 | 04/24/2019 | WD | Warranty Deed | DEREK, GAVIN | HEMSATH, JAMES RICHARD | | | $275,000.00 | 38440 | 4463032 |
| 2 | 10/09/2015 | WD | Warranty Deed | FOX HOMES, LLC | DEREK, GAVIN | | | $74,000.00 | 21835 | 4388059 |
| 3 | 07/02/2015 | SPWARDEED | Special Warranty Deed | HSBC BANK USA NATIONAL ASSOCIATION | FOX HOMES, LLC | | | $69,300.00 | 20355 | 4381737 |
| 4 | 03/25/2015 | TRUSTEED | Trustee's Deed | MESSMER, ANASTASIA | HSBC BANK USA NATIONAL ASSOCIATION | | | $0.00 | 18982 | 4375788 |
| 5 | 03/16/2004 | WD | Warranty Deed | BOHN, HEIDI M | MESSMER, ANASTASIA | | | $121,000.00 | 41134 | 4095085 |
| 6 | 12/07/1998 | WD | Warranty Deed | ITAYA, JOSEPH J | BOHN, HEIDI M | | | $79,900.00 | 84912 | 98027001 |
| 7 | 07/24/1998 | WD | Warranty Deed | SECRETARY OF, | ITAYA, JOSEPH J | | | $49,050.00 | 82977 | 98015624 |
| 8 | 04/21/1998 | WD | Warranty Deed | SECRETARY, OF | SECRETARY OF, | | | $81,448.00 | 81448 | 98007922 |
| 9 | 01/01/1998 | WD | Warranty Deed | HOMESIDE, LENDING I | SECRETARY, OF | | | $72,309.00 | 80207 | 98000959 |
| 10 | 09/01/1997 | TRUSTEED | Trustee's Deed | DREBLOW, ROBERT K | HOMESIDE, LENDING I | | | $0.00 | 73310 | 97015574 |
| 11 | 01/01/1996 | QCD | Quit Claim Deed | NAPHTALI, SANDARA L | DREBLOW, ROBERT K | | | $0.00 | 60869 | 96004547 |
| 12 | 06/01/1992 | WD | Warranty Deed | ARMSTRONG, MATTHEW R | NAPHTALI, SANDARA L | | | $67,500.00 | 22570 | 92012435 |
| 13 | 05/01/1990 | WD | Warranty Deed | WENDEL, LUCILLE O | ARMSTRONG, MATTHEW R | | | $45,000.00 | 3190 | 90010297 |
| 14 | 11/01/1985 | QCD | Quit Claim Deed | WENDEL, EDWIN A | WENDEL, LUCILLE O | | | $0.00 | 53369 | 85013310 |
| 15 | 11/01/1979 | EXECUTORD | Executor Deed | DUGGAR, GERALD A | WENDEL, EDWIN A | | | $8,000.00 | 95932 | 363277 |
Payout Agreement
| No payout information available.. |