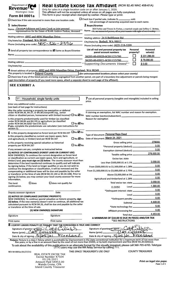
Property
Account |
| Property ID: | 381786 | Abbreviated Legal Description: | SCATCHET HD 3 LOT 85 BLK 15 |
| Geographic ID: | S8110-03-15085-0 | Agent Code: | |
| Type: | Real | | |
| Tax Area: | 740 - APPRAISER-S Whid Schl Dist, Special District, improved & less than 1 acre | Land Use Code | 11 |
| Open Space: | N | DFL | N |
| Historic Property: | N | Remodel Property: | N |
| Multi-Family Redevelopment: | N | | |
| Township: | | Section: | |
| Range: | |
Location |
| Address: | 3610 TIDE ST CLINTON, WA 98236 | Mapsco: | |
| Neighborhood: | Cycle 4 | Map ID: | 712 |
| Neighborhood CD: | 4 |
Owner |
| Name: | WASSER, TAVIER M E | Owner ID: | 271209 |
| Mailing Address: | SARAH M T WASSER 3610 TIDE ST CLINTON, WA 98236 | % Ownership: | 100.0000000000% |
| | | Exemptions: | |
Taxes and Assessment Details
Values
| (+) Improvement Homesite Value: | + | $0 | |
| (+) Improvement Non-Homesite Value: | + | $461,246 | |
| (+) Land Homesite Value: | + | $0 | |
| (+) Land Non-Homesite Value: | + | $230,000 | |
| (+) Curr Use (HS): | + | $0 | $0 |
| (+) Curr Use (NHS): | + | $0 | $0 |
| | | -------------------------- | |
| (=) Market Value: | = | $691,246 | |
| (–) Productivity Loss: | – | $0 | |
| | | -------------------------- | |
| (=) Subtotal: | = | $691,246 | |
| (+) Senior Appraised Value: | + | $0 | |
| (+) Non-Senior Appraised Value: | + | $691,246 | |
| | | -------------------------- | |
| (=) Total Appraised Value: | = | $691,246 | |
| (–) Senior Exemption Loss: | – | $0 | |
| (–) Exemption Loss: | – | $0 | |
| | | -------------------------- | |
| (=) Taxable Value: | = | $691,246 | |
Taxing Jurisdiction
| Owner: | WASSER, TAVIER M E | | |
| % Ownership: | 100.0000000000% | | |
| Total Value: | $691,246 | | |
| Tax Area: | 740 - APPRAISER-S Whid Schl Dist, Special District, improved & less than 1 acre |
| CF | Conservation Futures | 0.0316035091 | $691,246 | $691,246 | $21.85 | | |
| FIRE3 | Fire & Rescue Dist #3 S Whidbey GEN | 1.2004855531 | $691,246 | $691,246 | $829.83 | | |
| HOBOND | Hospital BOND | 0.1910887512 | $691,246 | $691,246 | $132.09 | | |
| HOGEN | Hospital GEN | 0.3902502903 | $691,246 | $691,246 | $269.76 | | |
| CE | County Current Expense | 0.3708482477 | $691,246 | $691,246 | $256.35 | | |
| CR | County Roads | 0.4584763726 | $691,246 | $691,246 | $316.92 | | |
| ISLANDEMS | Hospital GEN (EMS) | 0.5000000000 | $691,246 | $691,246 | $345.62 | | |
| LIB | Library Sno-Isle GEN | 0.3153421757 | $691,246 | $691,246 | $217.98 | | |
| PORTWHID | Port of S Whidbey GEN | 0.1094540357 | $691,246 | $691,246 | $75.66 | | |
| SCH206BOND | School 206 BOND | 0.3161759235 | $691,246 | $691,246 | $218.56 | | |
| SCH206MO | School 206 Enrichment | 0.4547169547 | $691,246 | $691,246 | $314.32 | | |
| ST | State School | 1.3035497053 | $691,246 | $691,246 | $901.07 | | |
| ST2 | State School Part 2 | 0.8169543533 | $691,246 | $691,246 | $564.72 | | |
| SWHIDPRBD | P & R S Whidbey BOND | 0.0152817568 | $691,246 | $691,246 | $10.56 | | |
| SWHIDPRBD2 | P & R S Whidbey BOND2 | 0.0138911264 | $691,246 | $691,246 | $9.60 | | |
| SWHIDPRMT | P & R S Whidbey GEN | 0.2053334452 | $691,246 | $691,246 | $141.94 | | |
| | Total Tax Rate: | 6.6934522006 | | | | | |
| | | | | Taxes w/Current Exemptions: | $4,626.83 | | |
| | | | | Taxes w/o Exemptions: | $4,626.83 | | |
Improvement / Building
| Improvement #1: | RESIDENTIAL | State Code: | Y | 2525.4 sqft | Value: | $461,246 |
| Bathrooms: | 2.5 | Bedrooms: | 2 | | Ceiling: | DRYWALL PAINTED | Exterior Wall/Cover: | CEMENT FIBER | | Floor Covering: | HARDWOOD/CARP 60-40 | Floor Structure: | WOOD W/SUBFLOOR | | Foundation: | CONCRETE | Heating: | FHA GAS | | Interior Finish: | DRYWALL PAINT | Plumbing Fixture Cnt: | 12 | | Roof Slope: | 10" IN 12" | Roof Structure/Cover: | CJ ASPHALT |
|
| | Type | Description | Class CD | Sub Class CD | Year Built | Area |
| | BAS | BASE/MAIN FLOOR | 4 | 0 | 2007 | 1245.9 |
| | OP4 | OPEN PORCH W/CEILING-ROOF | 4 | 0 | 2007 | 99.9 |
| | BIG | BUILT IN GARAGE | 4 | 0 | 2007 | 470.9 |
| | UPS | UPPER STORY | 4 | 0 | 2007 | 1279.5 |
Sketch
Property Image
Land
| 1 | 14 | SQ (08001-12000) | 0.0000 | 0.00 | 0.00 | 0.00 | 1.00 | $230,000 | $0 |
Roll Value History
| 2026 | N/A | N/A | N/A | N/A | N/A |
| 2025 | $461,246 | $230,000 | $0 | $691,246 | $691,246 |
| 2024 | $466,657 | $215,000 | $0 | $681,657 | $681,657 |
| 2023 | $472,067 | $210,000 | $0 | $682,067 | $682,067 |
| 2022 | $432,346 | $200,000 | $0 | $632,346 | $632,346 |
| 2021 | $380,214 | $150,000 | $0 | $530,214 | $530,214 |
| 2020 | $366,584 | $120,000 | $0 | $486,584 | $486,584 |
| 2019 | $274,577 | $135,000 | $0 | $409,577 | $409,577 |
| 2018 | $275,338 | $120,000 | $0 | $395,338 | $395,338 |
| 2017 | $276,717 | $80,000 | $0 | $356,717 | $356,717 |
| 2016 | $279,759 | $70,000 | $0 | $349,759 | $349,759 |
| 2015 | $282,800 | $55,000 | $0 | $337,800 | $337,800 |
| 2014 | $248,788 | $55,000 | $0 | $303,788 | $303,788 |
| 2013 | $251,475 | $55,000 | $0 | $306,475 | $306,475 |
| 2012 | $254,161 | $65,025 | $0 | $319,186 | $319,186 |
| 2011 | $256,846 | $76,500 | $0 | $333,346 | $333,346 |
| 2010 | $258,693 | $85,000 | $0 | $343,693 | $343,693 |
| 2009 | $269,465 | $114,000 | $0 | $383,465 | $383,465 |
| 2008 | $241,641 | $123,000 | $0 | $364,641 | $364,641 |
| 2007 | $221,638 | $88,000 | $0 | $309,638 | $309,638 |
Deed and Sales History
| 1 | 06/10/2015 | WD | Warranty Deed | TRUDEAU, WILLIAM F | WASSER, TAVIER M E | | | $365,000.00 | 20196 | 4381001 |
| 2 | 08/19/2005 | WD | Warranty Deed | MECHAM, DAVID J | TRUDEAU, WILLIAM F | | | $48,000.00 | 54151 | 4145175 |
| 3 | 08/01/1985 | OTHER | Other - Misc. Documents | URBAS, STANLEY A | MECHAM, DAVID J | | | $7,500.00 | 52557 | 0 |
| 4 | 08/01/1979 | EXECUTORD | Executor Deed | ZIELINSKI, ROBERT J | URBAS, STANLEY A | | | $5,500.00 | 94451 | 358480 |
| 5 | 01/01/1900 | OTHER | Other - Misc. Documents | Unknown | ZIELINSKI, ROBERT J | | | $0.00 | 0 | 0 |
Payout Agreement
| No payout information available.. |