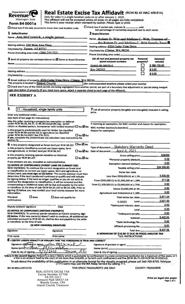
Property
Account |
| Property ID: | 381795 | Abbreviated Legal Description: | SCATCHET HD 3 LOT 1 BLK 16 |
| Geographic ID: | S8110-03-16001-0 | Agent Code: | |
| Type: | Real | | |
| Tax Area: | 740 - APPRAISER-S Whid Schl Dist, Special District, improved & less than 1 acre | Land Use Code | 11 |
| Open Space: | N | DFL | N |
| Historic Property: | N | Remodel Property: | N |
| Multi-Family Redevelopment: | N | | |
| Township: | | Section: | |
| Range: | |
Location |
| Address: | 8126 LOPEZ DR CLINTON, WA 98236 | Mapsco: | |
| Neighborhood: | Cycle 4 | Map ID: | 712 |
| Neighborhood CD: | 4 |
Owner |
| Name: | PENELOPE LIVINGSTON IRREVOCABLE TRUST | Owner ID: | 308622 |
| Mailing Address: | 6724 VIEWMONT CLINTON, WA 98236 | % Ownership: | 100.0000000000% |
| | | Exemptions: | |
Taxes and Assessment Details
Values
| (+) Improvement Homesite Value: | + | $0 | |
| (+) Improvement Non-Homesite Value: | + | $290,080 | |
| (+) Land Homesite Value: | + | $0 | |
| (+) Land Non-Homesite Value: | + | $230,000 | |
| (+) Curr Use (HS): | + | $0 | $0 |
| (+) Curr Use (NHS): | + | $0 | $0 |
| | | -------------------------- | |
| (=) Market Value: | = | $520,080 | |
| (–) Productivity Loss: | – | $0 | |
| | | -------------------------- | |
| (=) Subtotal: | = | $520,080 | |
| (+) Senior Appraised Value: | + | $0 | |
| (+) Non-Senior Appraised Value: | + | $520,080 | |
| | | -------------------------- | |
| (=) Total Appraised Value: | = | $520,080 | |
| (–) Senior Exemption Loss: | – | $0 | |
| (–) Exemption Loss: | – | $0 | |
| | | -------------------------- | |
| (=) Taxable Value: | = | $520,080 | |
Taxing Jurisdiction
| Owner: | PENELOPE LIVINGSTON IRREVOCABLE TRUST | | |
| % Ownership: | 100.0000000000% | | |
| Total Value: | $520,080 | | |
| Tax Area: | 740 - APPRAISER-S Whid Schl Dist, Special District, improved & less than 1 acre |
| CF | Conservation Futures | 0.0316035091 | $520,080 | $520,080 | $16.44 | | |
| FIRE3 | Fire & Rescue Dist #3 S Whidbey GEN | 1.2004855531 | $520,080 | $520,080 | $624.35 | | |
| HOBOND | Hospital BOND | 0.1910887512 | $520,080 | $520,080 | $99.38 | | |
| HOGEN | Hospital GEN | 0.3902502903 | $520,080 | $520,080 | $202.96 | | |
| CE | County Current Expense | 0.3708482477 | $520,080 | $520,080 | $192.87 | | |
| CR | County Roads | 0.4584763726 | $520,080 | $520,080 | $238.44 | | |
| ISLANDEMS | Hospital GEN (EMS) | 0.5000000000 | $520,080 | $520,080 | $260.04 | | |
| LIB | Library Sno-Isle GEN | 0.3153421757 | $520,080 | $520,080 | $164.00 | | |
| PORTWHID | Port of S Whidbey GEN | 0.1094540357 | $520,080 | $520,080 | $56.92 | | |
| SCH206BOND | School 206 BOND | 0.3161759235 | $520,080 | $520,080 | $164.44 | | |
| SCH206MO | School 206 Enrichment | 0.4547169547 | $520,080 | $520,080 | $236.49 | | |
| ST | State School | 1.3035497053 | $520,080 | $520,080 | $677.95 | | |
| ST2 | State School Part 2 | 0.8169543533 | $520,080 | $520,080 | $424.88 | | |
| SWHIDPRBD | P & R S Whidbey BOND | 0.0152817568 | $520,080 | $520,080 | $7.95 | | |
| SWHIDPRBD2 | P & R S Whidbey BOND2 | 0.0138911264 | $520,080 | $520,080 | $7.22 | | |
| SWHIDPRMT | P & R S Whidbey GEN | 0.2053334452 | $520,080 | $520,080 | $106.79 | | |
| | Total Tax Rate: | 6.6934522006 | | | | | |
| | | | | Taxes w/Current Exemptions: | $3,481.12 | | |
| | | | | Taxes w/o Exemptions: | $3,481.12 | | |
Improvement / Building
| Improvement #1: | RESIDENTIAL | State Code: | Y | 1648.0 sqft | Value: | $290,080 |
| Bathrooms: | 1.5 | Bedrooms: | 3 | | Ceiling: | BEAM PAINTED | Exterior Wall/Cover: | SHINGLE | | Floor Covering: | HARDWOOD/CARP 60-40 | Floor Structure: | WOOD W/SUBFLOOR | | Foundation: | CONCRETE | Heating: | WALL HEAT ELECTRIC | | Interior Finish: | DRYWALL PAINT | Plumbing Fixture Cnt: | 8 | | Roof Slope: | 4" IN 12" | Roof Structure/Cover: | BEAM ASPHALT |
|
| | Type | Description | Class CD | Sub Class CD | Year Built | Area |
| | BAS | BASE/MAIN FLOOR | 3 | 0 | 1992 | 1120.0 |
| | DWN | DOWNSTAIRS LIVING AREA | 3 | 0 | 1992 | 528.0 |
| | BIG | BUILT IN GARAGE | 3 | 0 | 1992 | 480.0 |
| | OWP | OPEN WOOD PORCH W/STEPS | 3 | 0 | 1992 | 60.0 |
| | OWP | OPEN WOOD PORCH W/STEPS | 3 | 0 | 1992 | 220.0 |
Sketch
Property Image
Land
| 1 | 14 | SQ (08001-12000) | 0.0000 | 0.00 | 0.00 | 0.00 | 1.00 | $230,000 | $0 |
Roll Value History
| 2026 | N/A | N/A | N/A | N/A | N/A |
| 2025 | $290,080 | $230,000 | $0 | $520,080 | $520,080 |
| 2024 | $288,554 | $215,000 | $0 | $503,554 | $503,554 |
| 2023 | $292,062 | $210,000 | $0 | $502,062 | $502,062 |
| 2022 | $267,640 | $200,000 | $0 | $467,640 | $467,640 |
| 2021 | $235,493 | $150,000 | $0 | $385,493 | $385,493 |
| 2020 | $229,798 | $120,000 | $0 | $349,798 | $349,798 |
| 2019 | $169,830 | $135,000 | $0 | $304,830 | $304,830 |
| 2018 | $170,317 | $120,000 | $0 | $290,317 | $290,317 |
| 2017 | $171,290 | $80,000 | $0 | $251,290 | $251,290 |
| 2016 | $143,719 | $70,000 | $0 | $213,719 | $213,719 |
| 2015 | $145,410 | $55,000 | $0 | $200,410 | $200,410 |
| 2014 | $143,821 | $55,000 | $0 | $198,821 | $198,821 |
| 2013 | $145,513 | $55,000 | $0 | $200,513 | $200,513 |
| 2012 | $147,205 | $65,025 | $0 | $212,230 | $212,230 |
| 2011 | $149,236 | $76,500 | $0 | $225,736 | $225,736 |
| 2010 | $151,072 | $85,000 | $0 | $236,072 | $236,072 |
| 2009 | $150,551 | $114,000 | $0 | $264,551 | $264,551 |
| 2008 | $140,331 | $123,000 | $0 | $263,331 | $263,331 |
| 2007 | $141,987 | $88,000 | $0 | $229,987 | $229,987 |
Deed and Sales History
| 1 | 05/02/2023 | QCD | Quit Claim Deed | LIVINGSTON, PENELOPE | PENELOPE LIVINGSTON IRREVOCABLE TRUST | | | $0.00 | 56723 | 4559997 |
| 2 | 08/01/2022 | QCD | Quit Claim Deed | STARK, JAMES | LIVINGSTON, PENELOPE | | | $0.00 | 55352 | 4554761 |
| 3 | 01/17/2017 | WD | Warranty Deed | MCCABE, AARON W | STARK, JAMES | | | $257,000.00 | 27784 | 4415453 |
| 4 | 11/29/2007 | WD | Warranty Deed | MCCABE, WILLIAM A | MCCABE, AARON W | | | $245,000.00 | 73902 | 4217105 |
| 5 | 12/01/1992 | WD | Warranty Deed | R, K P | MCCABE, WILLIAM A | | | $99,774.00 | 24777 | 92023546 |
| 6 | 02/01/1992 | WD | Warranty Deed | SMALL, DENNIS M | R, K P | | | $17,000.00 | 20650 | 92003201 |
Payout Agreement
| No payout information available.. |