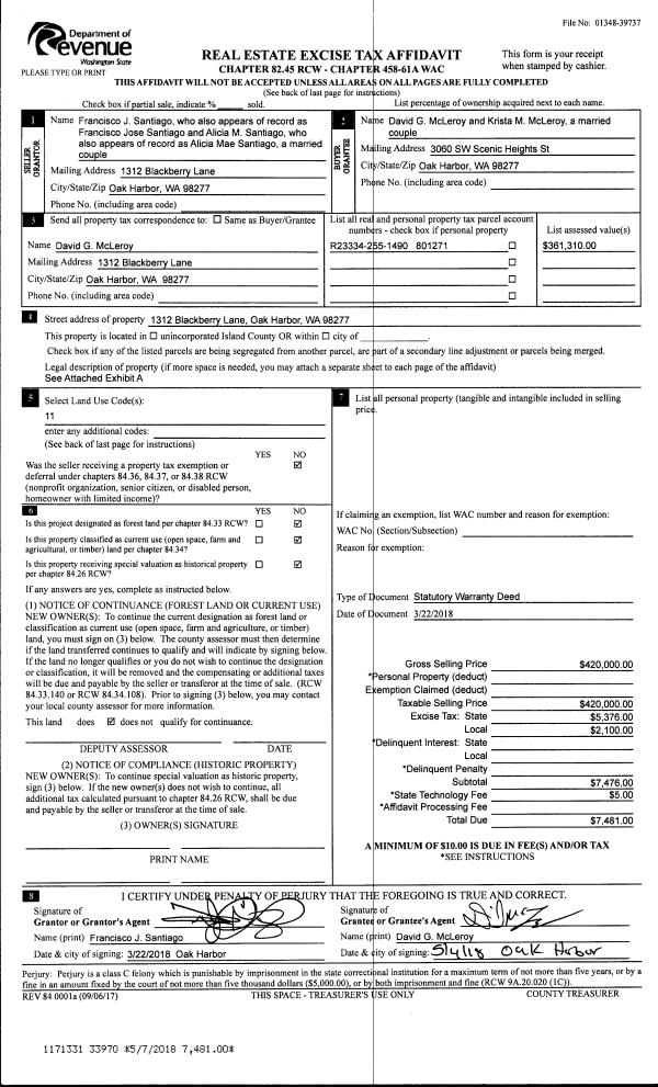
Property
Account |
| Property ID: | 381866 | Abbreviated Legal Description: | SCATCHET HD 3 LOT 8 BLK 16 |
| Geographic ID: | S8110-03-16008-0 | Agent Code: | |
| Type: | Real | | |
| Tax Area: | 740 - APPRAISER-S Whid Schl Dist, Special District, improved & less than 1 acre | Land Use Code | 11 |
| Open Space: | N | DFL | N |
| Historic Property: | N | Remodel Property: | N |
| Multi-Family Redevelopment: | N | | |
| Township: | | Section: | |
| Range: | |
Location |
| Address: | | Mapsco: | |
| Neighborhood: | Cycle 4 | Map ID: | 712 |
| Neighborhood CD: | 4 |
Owner |
| Name: | MUNCEY, PATRICIA JAE | Owner ID: | 295169 |
| Mailing Address: | 3495 EAST HARBOR DR LANGLEY, WA 98260 | % Ownership: | 100.0000000000% |
| | | Exemptions: | |
Taxes and Assessment Details
Values
| (+) Improvement Homesite Value: | + | $0 | |
| (+) Improvement Non-Homesite Value: | + | $55,029 | |
| (+) Land Homesite Value: | + | $0 | |
| (+) Land Non-Homesite Value: | + | $155,000 | |
| (+) Curr Use (HS): | + | $0 | $0 |
| (+) Curr Use (NHS): | + | $0 | $0 |
| | | -------------------------- | |
| (=) Market Value: | = | $210,029 | |
| (–) Productivity Loss: | – | $0 | |
| | | -------------------------- | |
| (=) Subtotal: | = | $210,029 | |
| (+) Senior Appraised Value: | + | $0 | |
| (+) Non-Senior Appraised Value: | + | $210,029 | |
| | | -------------------------- | |
| (=) Total Appraised Value: | = | $210,029 | |
| (–) Senior Exemption Loss: | – | $0 | |
| (–) Exemption Loss: | – | $0 | |
| | | -------------------------- | |
| (=) Taxable Value: | = | $210,029 | |
Taxing Jurisdiction
| Owner: | MUNCEY, PATRICIA JAE | | |
| % Ownership: | 100.0000000000% | | |
| Total Value: | $210,029 | | |
| Tax Area: | 740 - APPRAISER-S Whid Schl Dist, Special District, improved & less than 1 acre |
| CF | Conservation Futures | 0.0316035091 | $210,029 | $210,029 | $6.64 | | |
| FIRE3 | Fire & Rescue Dist #3 S Whidbey GEN | 1.2004855531 | $210,029 | $210,029 | $252.14 | | |
| HOBOND | Hospital BOND | 0.1910887512 | $210,029 | $210,029 | $40.13 | | |
| HOGEN | Hospital GEN | 0.3902502903 | $210,029 | $210,029 | $81.96 | | |
| CE | County Current Expense | 0.3708482477 | $210,029 | $210,029 | $77.89 | | |
| CR | County Roads | 0.4584763726 | $210,029 | $210,029 | $96.29 | | |
| ISLANDEMS | Hospital GEN (EMS) | 0.5000000000 | $210,029 | $210,029 | $105.01 | | |
| LIB | Library Sno-Isle GEN | 0.3153421757 | $210,029 | $210,029 | $66.23 | | |
| PORTWHID | Port of S Whidbey GEN | 0.1094540357 | $210,029 | $210,029 | $22.99 | | |
| SCH206BOND | School 206 BOND | 0.3161759235 | $210,029 | $210,029 | $66.41 | | |
| SCH206MO | School 206 Enrichment | 0.4547169547 | $210,029 | $210,029 | $95.50 | | |
| ST | State School | 1.3035497053 | $210,029 | $210,029 | $273.78 | | |
| ST2 | State School Part 2 | 0.8169543533 | $210,029 | $210,029 | $171.58 | | |
| SWHIDPRBD | P & R S Whidbey BOND | 0.0152817568 | $210,029 | $210,029 | $3.21 | | |
| SWHIDPRBD2 | P & R S Whidbey BOND2 | 0.0138911264 | $210,029 | $210,029 | $2.92 | | |
| SWHIDPRMT | P & R S Whidbey GEN | 0.2053334452 | $210,029 | $210,029 | $43.13 | | |
| | Total Tax Rate: | 6.6934522006 | | | | | |
| | | | | Taxes w/Current Exemptions: | $1,405.81 | | |
| | | | | Taxes w/o Exemptions: | $1,405.81 | | |
Improvement / Building
| Improvement #1: | RESIDENTIAL | State Code: | Y | 1478.5 sqft | Value: | $55,029 |
| Bathrooms: | 2 | Bedrooms: | 2 | | Ceiling: | (NONE) | Exterior Wall/Cover: | (NONE) | | Floor Covering: | (NONE) | Floor Structure: | WOOD W/SUBFLOOR | | Foundation: | CONCRETE | Heating: | (NONE) | | Interior Finish: | (NONE) | Plumbing Fixture Cnt: | 11 | | Roof Slope: | 8" IN 12" | Roof Structure/Cover: | CJ ASPHALT |
|
| | Type | Description | Class CD | Sub Class CD | Year Built | Area |
| | BAS | BASE/MAIN FLOOR | 3 | 0 | 2025 | 1478.5 |
| | AGR | ATTACHED GARAGE | 3 | 0 | 2025 | 440.0 |
| | OWP | OPEN WOOD PORCH W/STEPS | 3 | 0 | 2025 | 60.0 |
| | OWR | OPEN WOOD PORCH W/STEPS/ROOF | 3 | 0 | 2025 | 77.5 |
Sketch
| No sketches available for this property. |
Property Image
Land
| 1 | 14 | SQ (08001-12000) | 0.0000 | 0.00 | 0.00 | 0.00 | 1.00 | $155,000 | $0 |
Roll Value History
| 2026 | N/A | N/A | N/A | N/A | N/A |
| 2025 | $55,029 | $155,000 | $0 | $210,029 | $210,029 |
| 2024 | $0 | $75,000 | $0 | $75,000 | $75,000 |
| 2023 | $0 | $75,000 | $0 | $75,000 | $75,000 |
| 2022 | $0 | $75,000 | $0 | $75,000 | $75,000 |
| 2021 | $0 | $60,000 | $0 | $60,000 | $60,000 |
| 2020 | $0 | $20,000 | $0 | $20,000 | $20,000 |
| 2019 | $0 | $30,000 | $0 | $30,000 | $30,000 |
| 2018 | $0 | $30,000 | $0 | $30,000 | $30,000 |
| 2017 | $0 | $50,000 | $0 | $50,000 | $50,000 |
| 2016 | $0 | $50,000 | $0 | $50,000 | $50,000 |
| 2015 | $0 | $40,000 | $0 | $40,000 | $40,000 |
| 2014 | $0 | $40,000 | $0 | $40,000 | $40,000 |
| 2013 | $0 | $40,000 | $0 | $40,000 | $40,000 |
| 2012 | $0 | $41,310 | $0 | $41,310 | $41,310 |
| 2011 | $0 | $41,310 | $0 | $41,310 | $41,310 |
| 2010 | $0 | $45,900 | $0 | $45,900 | $45,900 |
| 2009 | $0 | $46,740 | $0 | $46,740 | $46,740 |
| 2008 | $0 | $50,430 | $0 | $50,430 | $50,430 |
| 2007 | $0 | $30,000 | $0 | $30,000 | $30,000 |
Deed and Sales History
| 1 | 07/09/2020 | WD | Warranty Deed | EBY, JOAN L | MUNCEY, PATRICIA JAE | | | $60,000.00 | 43782 | 4491246 |
| 2 | 04/09/2018 | WD | Warranty Deed | BASH, CHARLES | EBY, JOAN L | | | $70,000.00 | 33661 | 4442550 |
| 3 | 04/01/1997 | WD | Warranty Deed | STADLER, RONALD N | BASH, CHARLES L | | | $20,000.00 | 71134 | 97005088 |
| 4 | 08/01/1990 | WD | Warranty Deed | ELLINGSEN, LUDVIG T | STADLER, RONALD N | | | $22,500.00 | 4695 | 90015522 |
| 5 | 01/01/1900 | OTHER | Other - Misc. Documents | Unknown | ELLINGSEN, LUDVIG T | | | $0.00 | 0 | 0 |
Payout Agreement
| No payout information available.. |