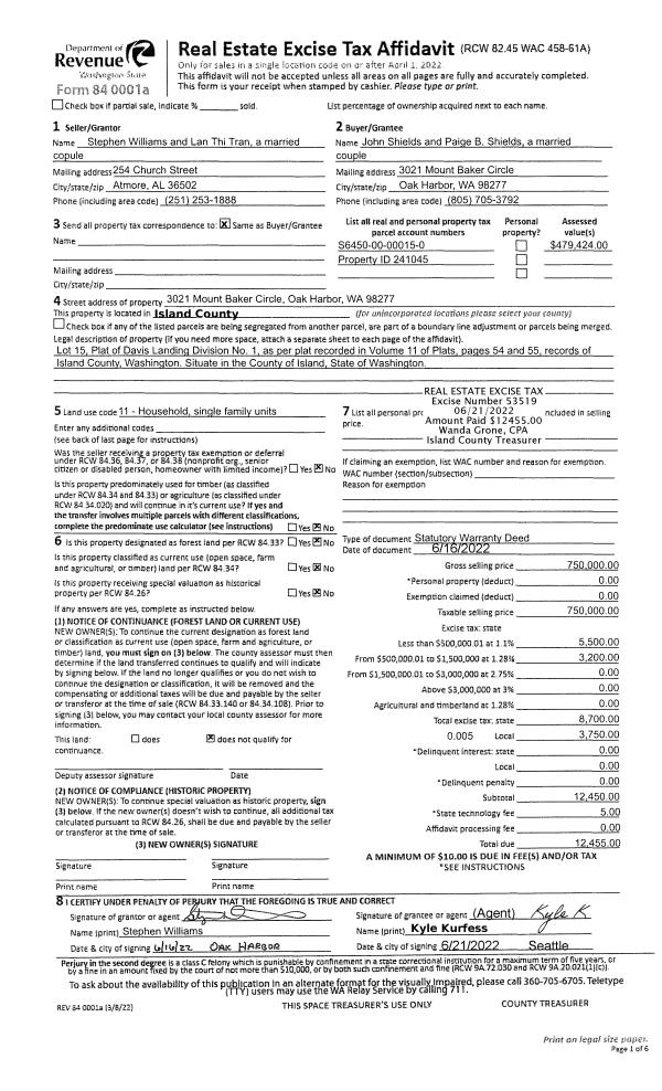
Property
Account |
| Property ID: | 381900 | Abbreviated Legal Description: | SCENIC HTS 1 E100'OF TRACT A |
| Geographic ID: | S8115-00-0000A-2 | Agent Code: | |
| Type: | Real | | |
| Tax Area: | 110 - APPRAISER-OH Schl Dist, outside OH, improved & 1 acre or less | Land Use Code | 11 |
| Open Space: | N | DFL | N |
| Historic Property: | N | Remodel Property: | N |
| Multi-Family Redevelopment: | N | | |
| Township: | | Section: | |
| Range: | |
Location |
| Address: | 1280 CANTERBURY LN OAK HARBOR, WA 98277 | Mapsco: | |
| Neighborhood: | Cycle 1 | Map ID: | 122 |
| Neighborhood CD: | 1 |
Owner |
| Name: | PRICE, DAVID | Owner ID: | 313733 |
| Mailing Address: | KERI DELA TORRE 1280 CANTERBURY LN OAK HARBOR, WA 98277 | % Ownership: | 100.0000000000% |
| | | Exemptions: | |
Taxes and Assessment Details
Values
| (+) Improvement Homesite Value: | + | $0 | |
| (+) Improvement Non-Homesite Value: | + | $349,587 | |
| (+) Land Homesite Value: | + | $0 | |
| (+) Land Non-Homesite Value: | + | $300,000 | |
| (+) Curr Use (HS): | + | $0 | $0 |
| (+) Curr Use (NHS): | + | $0 | $0 |
| | | -------------------------- | |
| (=) Market Value: | = | $649,587 | |
| (–) Productivity Loss: | – | $0 | |
| | | -------------------------- | |
| (=) Subtotal: | = | $649,587 | |
| (+) Senior Appraised Value: | + | $0 | |
| (+) Non-Senior Appraised Value: | + | $649,587 | |
| | | -------------------------- | |
| (=) Total Appraised Value: | = | $649,587 | |
| (–) Senior Exemption Loss: | – | $0 | |
| (–) Exemption Loss: | – | $0 | |
| | | -------------------------- | |
| (=) Taxable Value: | = | $649,587 | |
Taxing Jurisdiction
| Owner: | PRICE, DAVID | | |
| % Ownership: | 100.0000000000% | | |
| Total Value: | $649,587 | | |
| Tax Area: | 110 - APPRAISER-OH Schl Dist, outside OH, improved & 1 acre or less |
| CF | Conservation Futures | 0.0316035091 | $649,587 | $649,587 | $20.53 | | |
| CEM1 | Cemetery #1 | 0.0040320932 | $649,587 | $649,587 | $2.62 | | |
| FIRE2 | Fire & Rescue Dist #2 N Whidbey GEN | 0.5475949600 | $649,587 | $649,587 | $355.71 | | |
| HOBOND | Hospital BOND | 0.1910887512 | $649,587 | $649,587 | $124.13 | | |
| HOGEN | Hospital GEN | 0.3902502903 | $649,587 | $649,587 | $253.50 | | |
| CE | County Current Expense | 0.3708482477 | $649,587 | $649,587 | $240.90 | | |
| CR | County Roads | 0.4584763726 | $649,587 | $649,587 | $297.82 | | |
| ISLANDEMS | Hospital GEN (EMS) | 0.5000000000 | $649,587 | $649,587 | $324.79 | | |
| LIB | Library Sno-Isle GEN | 0.3153421757 | $649,587 | $649,587 | $204.84 | | |
| NWHIDPRMT | P & R N Whidbey GEN | 0.2004466701 | $649,587 | $649,587 | $130.21 | | |
| SCH201MO | School 201 Enrichment | 1.8559231640 | $649,587 | $649,587 | $1,205.58 | | |
| ST | State School | 1.3035497053 | $649,587 | $649,587 | $846.77 | | |
| ST2 | State School Part 2 | 0.8169543533 | $649,587 | $649,587 | $530.68 | | |
| | Total Tax Rate: | 6.9861102925 | | | | | |
| | | | | Taxes w/Current Exemptions: | $4,538.08 | | |
| | | | | Taxes w/o Exemptions: | $4,538.08 | | |
Improvement / Building
| Improvement #1: | RESIDENTIAL | State Code: | Y | 2336.0 sqft | Value: | $349,587 |
| Bathrooms: | 3 | Bedrooms: | 5 | | Ceiling: | DRY WALL SPRAYED | Exterior Wall/Cover: | WOOD SIDING | | Floor Covering: | VINYL/HARDWOOD 60-40 | Floor Structure: | WOOD W/SUBFLOOR | | Foundation: | CONCRETE | Heating: | FHA ELECTRIC | | Interior Finish: | DRYWALL PAINT | Plumbing Fixture Cnt: | 12 | | Roof Slope: | 4" IN 12" | Roof Structure/Cover: | CJ ASPHALT |
|
| | Type | Description | Class CD | Sub Class CD | Year Built | Area |
| | BAS | BASE/MAIN FLOOR | 3 | 0 | 1969 | 1168.0 |
| | DWN | DOWNSTAIRS LIVING AREA | 3 | 0 | 1969 | 1168.0 |
| | AGR | ATTACHED GARAGE | 3 | 0 | 1969 | 572.0 |
| | OWP | OPEN WOOD PORCH W/STEPS | 3 | 0 | 1969 | 572.0 |
Sketch
Property Image
Land
| 1 | 15 | SQ (12001-21780) | 0.0000 | 0.00 | 0.00 | 0.00 | 1.00 | $300,000 | $0 |
Roll Value History
| 2026 | N/A | N/A | N/A | N/A | N/A |
| 2025 | $349,587 | $300,000 | $0 | $649,587 | $649,587 |
| 2024 | $353,687 | $280,000 | $0 | $633,687 | $633,687 |
| 2023 | $382,932 | $240,000 | $0 | $622,932 | $622,932 |
| 2022 | $294,133 | $220,000 | $0 | $514,133 | $514,133 |
| 2021 | $173,839 | $120,000 | $0 | $293,839 | $293,839 |
| 2020 | $169,650 | $100,000 | $0 | $269,650 | $269,650 |
| 2019 | $117,507 | $130,000 | $0 | $247,507 | $247,507 |
| 2018 | $118,029 | $120,000 | $0 | $238,029 | $238,029 |
| 2017 | $119,477 | $120,000 | $0 | $239,477 | $239,477 |
| 2016 | $121,574 | $90,000 | $0 | $211,574 | $211,574 |
| 2015 | $122,898 | $90,000 | $0 | $212,898 | $212,898 |
| 2014 | $124,980 | $90,000 | $0 | $214,980 | $214,980 |
| 2013 | $127,064 | $110,000 | $0 | $237,064 | $237,064 |
| 2012 | $129,146 | $114,750 | $0 | $243,896 | $243,896 |
| 2011 | $131,229 | $135,000 | $0 | $266,229 | $266,229 |
| 2010 | $137,367 | $135,000 | $0 | $272,367 | $272,367 |
| 2009 | $141,466 | $120,000 | $0 | $261,466 | $261,466 |
| 2008 | $143,570 | $127,600 | $0 | $271,170 | $271,170 |
| 2007 | $145,674 | $127,600 | $0 | $273,274 | $273,274 |
Deed and Sales History
| 1 | 10/10/2022 | WD | Warranty Deed | 1280 CANTERBURY LANE, LLC | PRICE, DAVID | | | $639,200.00 | 54893 | 4552686 |
| 2 | 12/31/2021 | WD | Warranty Deed | WEEKS, HELEN CHATFIELD | 1280 CANTERBURY LANE, LLC | | | $465,000.00 | 51595 | 4537461 |
| 3 | 01/01/1900 | OTHER | Other - Misc. Documents | Unknown | CHATFIELD, HELEN E | | | $0.00 | 0 | 0 |
Payout Agreement
| No payout information available.. |